Catalog

Umumiy qoplama ramkasi bilan to'rt qavatgacha bo'lgan modulli binolar

Tezlik va ishonchlilik muvaffaqiyatni belgilaydigan paytda, DoorHan'ning modulli qurilish texnologiyasi birinchi o'ringa chiqadi. Biz vaqtinchalik inshootlarni emas, balki noyob afzallikka — ko'p martalik ko'chirish imkoniyatiga ega bo'lgan to'rt qavatgacha bo'lgan to'laqonli kapital binolarni taklif etamiz. Har bir binoning asosida 100% zavodda tayyorlangan po'lat yuk ko'taruvchi ramalar va yaxlit payvandlangan ustunlardan iborat fazoviy karkas yotadi. Ushbu texnologiya har qanday maqsaddagi to'liq komplektli ob'ektlarni qisqa muddatlarda yaratish imkonini beradi: zamonaviy ofislar, mehmonxonalar va ko'p qavatli turar-joy uylaridan tortib, tibbiyot muassasalari, maktablar, bolalar bog'chalari va butun vaxta posyolkalarigacha.

Har bir detalda fundamental ishonchlilik. Biz asrlar uchun qurayotganimiz sababli, karkaslarimiz asosida faqat eng yaxshilari yotadi:

  • Yuqori mustahkamlikdagi po'lat: Rama karkasi qalinligi kamida 4 mm bo'lgan, 09G2S markasidan past bo'lmagan po'latdan yasaladi. Ushbu material hatto eng og'ir iqlim sharoitida ham o'zining mustahkamlik xususiyatlarini saqlab qoladi.
  • Korroziyadan murosasiz himoya: Kukunli bo'yoq surtishdan oldin barcha metall konstruksiyalar avtomatik drobemyot (zarra oqimli) qurilmasida ishlovdan o'tkaziladi. Bu yopishish uchun ideal sirt yaratadi va qoplamaning o'n yillar davomida xizmat qilishini, metallni har qanday tashqi ta'sirlardan himoya qilishini kafolatlaydi.
  • Normalarga muvofiqlik: Bizning binolarimiz kapital qurilishning qattiq normalariga va yong'inga qarshi talablarga to'liq javob beradi. Biz faqat yonmaydigan, sertifikatlangan materiallardan, jumladan, yuqori zichlikdagi mineral jun bilan to'ldirilgan sendvich-panellardan foydalanamiz.

Sizning vaqtingiz — bizning mas'uliyatimiz. DoorHan bilan ishlashning asosiy afzalliklaridan biri — bu ishlab chiqarish ustidan to'liq nazoratimizdir. Biz boshqa yetkazib beruvchilarga bog'liq emasmiz, chunki hamma narsani o'zimiz ishlab chiqaramiz: metall konstruksiyalardan tortib sendvich-panellar va mineral jungacha. O'z ishlab chiqarish liniyalarimiz va katta xomashyo ombor zaxiralarimiz bizga yetkazib berish muddatlariga rioya qilishni kafolatlash imkonini beradi. Siz loyihangiz kechikishlarsiz va kutilmagan xarajatlarsiz o'z vaqtida topshirilishiga amin bo'lishingiz mumkin.

Intellektual logistika va mobillik. Biz nafaqat qurilishni, balki yetkazib berishni ham o'ylab qo'yganmiz. Binolar ajratilgan holda, har bir elementni shikastlanishdan himoya qiladigan maxsus o'ta ishonchli «DorXan Eko Pak» o'ramida tashiladi. MDH bo'ylab keng tarqalgan zavodlar tarmog'imiz yetkazib berish masofasini minimallashtiradi, ixcham o'ram esa transport xarajatlarini sezilarli darajada tejash imkonini beradi. Ammo eng muhimi — sizning binoingiz mobil aktiv bo'lib qoladi. Uni sifatini yo'qotmasdan qismlarga ajratish, ko'chirish va yangi joyda yig'ish mumkin, bu o'sib borayotgan biznes uchun bebaho afzallikdir.

DoorHan modulli binolari — bu eng ulug'vor vazifalarni hal qilish uchun kapital sifat, xavfsizlik va moslashuvchanlikni ta'minlaydigan zamonaviy, samarali va iqtisodiy jihatdan foydali yondashuvdir.

Qo'llanilish sohasi:
Yashash ob'ektlari
Sog'liqni saqlash vazirligi ehtiyojlari uchun modulli binolar: FAPlar, shifokor ambulatoriyalari va boshqalar
Ma'muriy-uy xo'jalik modulli binolari
Yashash-uy xo'jalik binolari
Tijorat ehtiyojlari uchun binolar: kafe, pavilonlar, ustaxonalar
Oshxonalar
Modulli ofis binolari
Vaxta posyolkalariga mo‘ljallangan modulli binolar
Piyodalar uchun galereyalar
Mehmonxonalar
Afzalliklar
Konstruktsiyaning ishonchliligi va mustahkamligi
Ramka karkasi, 09G2S markali po‘latdan tayyorlangan bo‘lib, qalinligi kamida 4 mm, sifatli kukunli qoplama bilan ta’minlangan bo‘lib, bu konstruktsiyaning uzoq muddat xizmat qilishini va tashqi ta’sirlarga chidamliligini kafolatlaydi. Ramka va ustunlarning metall konstruktsiyalari kukunli bo‘yoqni surishdan oldin avtomatik abraziv qum purkash qurilmasi yordamida korroziyaga qarshi eng samarali himoya uchun qayta ishlangan.
Kapital qurilish me’yorlari va yong‘inga qarshi talablariga muvofiqligi
Biz kapital qurilish me’yorlari va yong‘inga qarshi talablariga muvofiqligini ta’minlaymiz, chunki biz yonmaydigan, ishonchli va yuqori texnologik materiallar hamda konstruktsiyalardan foydalanamiz (mineral to‘la boshli, zichligi kamida 100 kg/m³ bo‘lgan qurilish sandwich-panellari, kukunli bo‘yoq bilan ishlangan metall konstruktsiyalar).
Yetkazib berish muddatlariga rioya etilishi
Modulli binolarning barcha butlovchi qismlari (metall konstruktsiyalar, sendvich panellar, mineral paxta va boshqalar) uchun o‘z ishlab chiqarish quvvatlari, metallning katta ombor zaxirasi hamda rulonli po‘latni bo‘yash bo‘yicha o‘z bo‘yoqxonamiz — bularning barchasi yetkazib berish muddatlariga qat’iy rioya etilishini kafolatlaydi.
Yukni ehtiyotkorlik bilan tashish
Modulli binolar «DoorHan Eco Pack» formatida, ya’ni maksimal darajada ishonchli tarzda, qismlarga ajratilgan holda yetkazib beriladi. Ushbu format ramkalar, panellar bilan birga, oraliqsiz bir bog‘lam ko‘rinishida taqdim etiladi; bino tashqi panellari esa alohida transport qadoqiga joylashtiriladi, deraza va eshik bloklari esa alohida qadoqlanadi. Bunday yetkazib berish shakli mahsulotni qurilish maydonchasiga hech qanday shikastlarsiz yetkazishga imkon beradi.
Yetkazib berishda tejash
DoorHan kompaniyasining keng tarmoqlangan zavodlari va ishlab chiqarish-ombor majmualari tarmog‘i qurilish ob’ekti bilan ishlab chiqaruvchi zavod o‘rtasidagi masofa 3 500 km dan oshmasligini kafolatlaydi. Bu esa mahsulotlarning ixcham qadoqlanishi bilan birgalikda yetkazib berish xarajatlarini maqbul darajada ushlab turishga imkon beradi.
Konstruktsiyaning ishonchliligi va mustahkamligi
Ramka karkasi, 09G2S markali po‘latdan tayyorlangan bo‘lib, qalinligi kamida 4 mm, sifatli kukunli qoplama bilan ta’minlangan bo‘lib, bu konstruktsiyaning uzoq muddat xizmat qilishini va tashqi ta’sirlarga chidamliligini kafolatlaydi. Ramka va ustunlarning metall konstruktsiyalari kukunli bo‘yoqni surishdan oldin avtomatik abraziv qum purkash qurilmasi yordamida korroziyaga qarshi eng samarali himoya uchun qayta ishlangan.
Kapital qurilish me’yorlari va yong‘inga qarshi talablariga muvofiqligi
Biz kapital qurilish me’yorlari va yong‘inga qarshi talablariga muvofiqligini ta’minlaymiz, chunki biz yonmaydigan, ishonchli va yuqori texnologik materiallar hamda konstruktsiyalardan foydalanamiz (mineral to‘la boshli, zichligi kamida 100 kg/m³ bo‘lgan qurilish sandwich-panellari, kukunli bo‘yoq bilan ishlangan metall konstruktsiyalar).
Yetkazib berish muddatlariga rioya etilishi
Modulli binolarning barcha butlovchi qismlari (metall konstruktsiyalar, sendvich panellar, mineral paxta va boshqalar) uchun o‘z ishlab chiqarish quvvatlari, metallning katta ombor zaxirasi hamda rulonli po‘latni bo‘yash bo‘yicha o‘z bo‘yoqxonamiz — bularning barchasi yetkazib berish muddatlariga qat’iy rioya etilishini kafolatlaydi.
Yukni ehtiyotkorlik bilan tashish
Modulli binolar «DoorHan Eco Pack» formatida, ya’ni maksimal darajada ishonchli tarzda, qismlarga ajratilgan holda yetkazib beriladi. Ushbu format ramkalar, panellar bilan birga, oraliqsiz bir bog‘lam ko‘rinishida taqdim etiladi; bino tashqi panellari esa alohida transport qadoqiga joylashtiriladi, deraza va eshik bloklari esa alohida qadoqlanadi. Bunday yetkazib berish shakli mahsulotni qurilish maydonchasiga hech qanday shikastlarsiz yetkazishga imkon beradi.
Yetkazib berishda tejash
DoorHan kompaniyasining keng tarmoqlangan zavodlari va ishlab chiqarish-ombor majmualari tarmog‘i qurilish ob’ekti bilan ishlab chiqaruvchi zavod o‘rtasidagi masofa 3 500 km dan oshmasligini kafolatlaydi. Bu esa mahsulotlarning ixcham qadoqlanishi bilan birgalikda yetkazib berish xarajatlarini maqbul darajada ushlab turishga imkon beradi.
Dizayn
Devor panellari dizayni
Ichki panel rangi
Panellarning old yuzasining rangi
Silliq
Silliq
Trapezoid
Trapezoid
To'lqin
To'lqin
RAL 9003 (oq)
RAL 9003 (oq)
RAL kartasiga muvofiq individual rang
RAL kartasiga muvofiq individual rang
Yog'och ko'rinishdagi panellar bilan qo'shimcha devor qoplamasi mumkin
Yog'och ko'rinishdagi panellar bilan qo'shimcha devor qoplamasi mumkin
RAL 9003 (oq)
RAL 9003 (oq)
RAL kartasiga muvofiq individual rang
RAL kartasiga muvofiq individual rang
Komplektatsiya
Bazaviy to'plam
Qo'shimcha to'plam
Ramka profilining maxsus konstruktsiyasi yuqori yuk ko‘tarish qobiliyatiga ega.

Ramka profilining maxsus konstruktsiyasi yuqori yuk ko‘tarish qobiliyatiga ega.

Burchak ustunlarining konstruktsiyasi uch qavatgacha bo‘lgan balandlikdagi binolarni qurishga imkon beradi.

Burchak ustunlarining konstruktsiyasi uch qavatgacha bo‘lgan balandlikdagi binolarni qurishga imkon beradi.

Burchak elementi ramka konstruktsiyasining ajraladigan ulanishini ta’minlaydi.

Burchak elementi ramka konstruktsiyasining ajraladigan ulanishini ta’minlaydi.

Sandwich-panellar zamonaviy avtomatik liniyalarda ishlab chiqariladi.

Sandwich-panellar zamonaviy avtomatik liniyalarda ishlab chiqariladi.

Tom qoplamasi materiali sifatida proflist ishlatiladi.

Tom qoplamasi materiali sifatida proflist ishlatiladi.

Qo‘shimcha tom qoplamasining konstruktsiyasi.

Qo‘shimcha tom qoplamasining konstruktsiyasi.

Muhandislik tizimlari bilan jihozlash.

Muhandislik tizimlari bilan jihozlash.

Kosyurli portal to‘plami.

Kosyurli portal to‘plami.

Tashqi bajarilishdagi zinapoya.

Tashqi bajarilishdagi zinapoya.

Ichki bajarilishdagi zinapoya.

Ichki bajarilishdagi zinapoya.

Qo‘shimcha metall konstruktsiyalar.

Qo‘shimcha metall konstruktsiyalar.

Texnik tavsif
O'lchamlar jadvali
Konstruktsiya
Standart konstruktiv yechimlar
Texnik xususiyatlar
Mahsulotni ishlatish shartlari
Qadoqlash
Параметр
Показатель
Длина, м
Konstruktsiya bilan cheklanmagan, qo‘llaniladigan blok-modullarning o‘lchamlariga karralidir
Ширина, мм
Konstruktsiya bilan cheklanmagan bo‘lib, qo‘llaniladigan blok-modullarning o‘lchamlariga mutanosib tarzda loyihalanadi
Высота конструкции, м
Loyihalash jarayonida aniqlanadi
  1. Umumiy yopma ramkali to‘liq jihozlangan modulli binoning karkasi
  2. Qo‘shimcha tom konstruksiyasi
  3. Devor sendvich panellari
  4. . Kichik yopiq verandaga mo‘ljallangan to‘liq komplekt
  5. Tashqi zinapoya
  6. Ichki zinapoya
  7. Qo‘shimcha metall konstruktsiyalar
  8. Tashqi devor
  9. Ichki devor
  10. Yopish ramkasi
  11. Yopma ramkasi
  12. Asos ramkasi

Blok-modulning frontal va torцевiy ulanishi.

Blok-modulning frontal va torцевiy ulanishi.

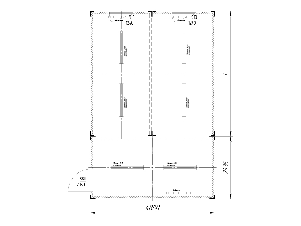
4 880 x 2 435 mm o‘lchamdagi modul bilan kombinatsiya qilingan. L o‘rniga har qanday standart blok-modul qo‘yilishi mumkin.

4 880 x 2 435 mm o‘lchamdagi modul bilan kombinatsiya qilingan. L o‘rniga har qanday standart blok-modul qo‘yilishi mumkin.

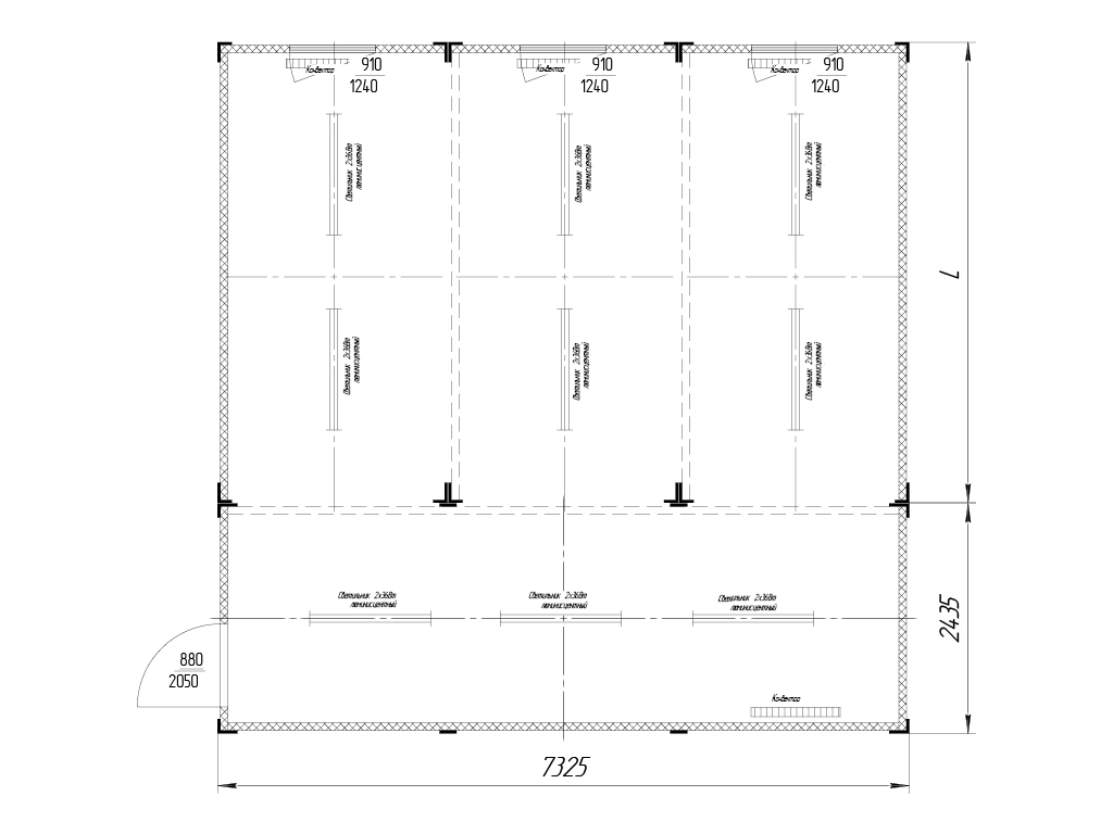
7 325 x 2 435 mm o‘lchamdagi modul bilan kombinatsiya qilingan. L o‘rniga har qanday standart blok-modul qo‘yilishi mumkin.

7 325 x 2 435 mm o‘lchamdagi modul bilan kombinatsiya qilingan. L o‘rniga har qanday standart blok-modul qo‘yilishi mumkin.

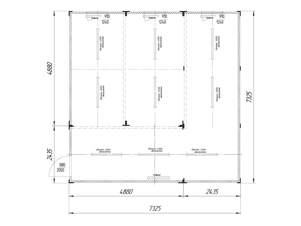
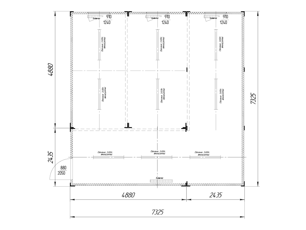
4 880 x 2 435 mm va 7 325 x 2 435 mm o‘lchamdagi blok-modul bilan kombinatsiya qilingan.

4 880 x 2 435 mm va 7 325 x 2 435 mm o‘lchamdagi blok-modul bilan kombinatsiya qilingan.

Параметр Значение Примечание
Диапазон рабочих температур, °С -50...+50
Нормативная ветровая нагрузка по региону (СНиП 2.01.07-85* «Нагрузки и воздействия»), КгС/м² SP 20.13330.2011 «Yuklar va ta’sirlar» o‘rnatiladi
Снеговая нагрузка, кг/м² 150 kg/m² Blok-modulning tom va shift ramkasiga
Снеговая нагрузка, кг/м² SP 20.13330.2011 «Yuklar va ta’sirlar» o‘rnatiladi Umumiy tom qoplamasining qo‘shimcha konstruktsiyasiga
Теплоизолятор Mineral plita 100 kg/m³, mineral plita 40 kg/m³, penopoliuretan, penopoliizoitsianurat* *80 mm qalinlikdagi plita ishlatiladi; qo‘shimcha ravishda ovoz o‘tkazmaslik funksiyasini bajaradi
Теплопроводность, Вт/м*°С 0,042–0,045 Mineral plita
Теплопроводность, Вт/м*°С 0,022–0,024 Penopoliuretan, penopoliizoitsianurat
Толщина, мм 80; 100; 150; 200; 250; 300; 350 Standart issiqlik va ovoz izolyatsiyasi qoplamalari
Толщина, мм 80; 100; 150; 200; 250 Standart issiqlik va ovoz izolyatsiyasi tashqi to‘siqlar
Толщина, мм 80; 100; 150 Blok-konteynerlarning ichki devor to‘siqlari (sandyvich-panellar) uchun standart ovoz izolyatsiyasi qalinligi
Этажность 4 qavatgacha
Срок службы, лет 50 gacha
Ресурс, циклов 5 Blok-modullarning yig‘ilish/ajratish tsikllari va ularni modulli binolarga ulash sifatsiz yo‘qotilmasdan ko‘rsatilgan
Вес изделия, кг Blok-modullar va modulli binolarni tayyorlash uchun kerakli qismlar soniga bog‘liq

1. Modulli binolarning ekspluatatsiya jarayonida alohida qismlar: tashqi po‘lat eshiklar, xonalararo eshiklar, plastik derazalar, himoya konstruktsiyalari, muhandislik kommunikatsiyalarini ekspluatatsiya qilish shartlariga rioya qilish zarur. Ushbu konstruktsiyalarni ekspluatatsiya qilishda ishlab chiqaruvchilarning ko‘rsatmalari asosida harakat qilish kerak.

2. Modulli binolar -50 °C dan +50 °C gacha bo‘lgan haroratlarda va har qanday iqlim zonasida ekspluatatsiya qilinishi mumkin.

3. Modulli binolarni ekspluatatsiya qilish jarayonida texnik xizmatni yilda kamida 1 marta bajarish zarur, shuningdek, yozgi va qishki mavsumlarga tayyorgarlik ko‘rish tavsiya etiladi.

4. Modulli binolarni ekspluatatsiya qilish jarayonida har kuni xonalar tozaligini va tartibini saqlash, xonalarda zarur bo‘lgan xona harorati va namlikni ta’minlash, qishki davrda tomdan va modulli binolar atrofidan qorni o‘z vaqtida tozalash, yong‘in o‘chirish va za‘mni tekshiruvlarini reja asosida bajarish zarur.

5. Modulli binolarni ekspluatatsiya qilishda yong‘in xavfsizligi qoidalariga rioya qilish zarur.

6. Modulli binolarni ekspluatatsiya qilish jarayonida ishlab chiqaruvchi bilan kelishilmagan o‘zgartirishlarni konstruktsiyaga kiritish taqiqlanadi, bu o‘zgartirishlar modulli binoning ekspluatatsiya shartlariga ta’sir ko‘rsatishi mumkin.

7. Standart maishiy blok-konteynerlardan tashkil topgan modulli binoning pol ramkasiga ruxsat etilgan yuklama 200 kg/m² dan oshmasligi kerak, modulli binoning qo‘shimcha tomiga yuklama loyihaviy hujjatlar bilan tartibga solinadi.

Упаковка в картон Характеристики упаковки
Описание Karton varaqalari polning yakuniy qoplamasini himoya qilish uchun joylashtiriladi; transport paketlarini (transport paketlari) o‘rab turishda karton varaqalari yopiq devor sэнdwich-panellari orasiga joylashtiriladi, bu ularning qoplamasining shikastlanishiga yo‘l qo‘ymaslik uchun
Упаковка в пузырчатую пленку Характеристики упаковки
Описание Blok-modullar va transport paketi komplektatsiyasining himoya qoplamasi
Упаковка в контейнер Характеристики упаковки
Описание tandart transport konteynerida joylashtiriladigan blok-modullar komplektatsiyasi
Упаковка в коробку Характеристики упаковки
Описание Komplektatsiya qadoqlash o‘rtacha o‘lchamdagi quti shaklida taqdim etiladi
Состав Uch qatlamli kartondan qilingan quti, stretch-plenka, logotipi bilan skotch
Ширина, мм 450
Высота, мм 300
Длина, мм 550
Упаковка в стретч - пленку Характеристики упаковки
Описание Blok-konteynerning po‘stlog‘idagi po‘stlog‘ni bo‘yash qoplamasini shikastlanishidan saqlash uchun yuzasini himoya qiluvchi yopishqoq lenta bilan yopish
Упаковка на палету Характеристики упаковки
Описание Modul binolarining qo‘shimcha metall konstruktsiyalarini (qo‘shimcha tom, zinapoyalari, boshpanalari, narvonlar va boshqa) transportirovka qilish uchun yog‘och ramka
O'rnatish
Montaj usullari
Bino qurilishi uchun tayyorgarlik
Sakalli poydevorlarga montaj.
Sakalli poydevorlarga montaj.
Lentali poydevorga montaj.
Lentali poydevorga montaj.
Tayyor beton asosga montaj.
Tayyor beton asosga montaj.
  1. Blok-modul yoki modulli binoni o‘rnatish uchun qurilish maydonchasini tayyorlash bosqichida quyidagilar zarur:
  2. Blok-modul yoki modulli bino uchun rejalashtirish qarorini va qo‘llab-quvvatlash nuqtalari sxemasini olish.
  3. Qurilish maydonchasida poydevor qurilishi bilan bog‘liq, yashirin kommunikatsiyalar bilan bog‘liq masalalarni tahlil qilish.
  4. Blok-modul yoki modulli bino o‘rnatilishini ta’minlash uchun optimal poydevorni tanlash.
  5. Poydevorni qabul qilishni amalga oshirish, blok-modullarning qo‘llab-quvvatlash nuqtalarini yagona gorizontal tekislikda va sxemaga muvofiq o‘lchamlarini nazorat qilish.
  6. Modulli binoni montaj qilishning samaradorligi poydevorning qurilish sifatiga bevosita bog‘liq.
  7. O‘rnatish yuzasi (poydevor) blok-modullari yoki modulli binolarining asosiy qo‘llab-quvvatlash nuqtalarining yagona gorizontaliga mos kelishi, blok-modullari yoki modulli binoning konstruktsiyasidan kelib chiqqan yuklarni, jihozlar, xodimlar, qor va boshqa mumkin bo‘lgan yuklar kabi ekspluatatsiya yuklarini qabul qilishga qodir bo‘lishi kerak.
Hujjatlar
Ko'rsatmalar
Pasportlar va sertifikatlar
Chizmalar

Blok-modullarga asoslangan modulyar binolarni montaj qilish bo‘yicha ko‘rsatma

«DOORHAN - Savdo Uy» MChJ mahsulotlari muvofiqlik sertifikati

Yong'inga qarshi xavfsizlik talablariga (YQX) muvofiqlik sertifikati

Yong'inga qarshi xavfsizlik talablariga (YQX) muvofiqlik sertifikatiga qo'shimcha

Gigiyenik sertifikat (bet 1)

Gigiyenik sertifikat (bet 2)

NАКС guvohnomasi «DOORHAN 21 asr - Novosibirsk» MChJning attestatsiyalangan payvandlash texnologiyasini qo‘llashga tayyorligi to‘g‘risida

NАКС guvohnomasi payvandlash uskunalarining attestatsiyasi to‘g‘risida

Modulyar konstruktsiyalar texnik yechimlari albomi. Blok-modullarning bog'lanish tugunlari

Modulyar konstruktsiyalar texnik yechimlari albomi. Kuchaytirilgan blok-modullarning bog'lanish tugunlari

Modulyar konstruktsiyalar texnik yechimlari albomi. Ichki zinapoyaning ulanish tugunlari

Modulyar konstruktsiyalar texnik yechimlari albomi. Tashqi zinapoyaning ulanish tugunlari (bir necha marşli bajarilishi)

Modulyar konstruktsiyalar texnik yechimlari albomi. Tashqi zinapoyaning ulanish tugunlari (bitta marşli bajarilishi)

Modulyar konstruktsiyalar texnik yechimlari albomi. Kriletslarning ulanish tugunlari

Modulyar konstruktsiyalar texnik yechimlari albomi. To'siq konstruktsiyalarining ulanish tugunlari

Modulyar konstruktsiyalar texnik yechimlari albomi. Qurilishdagi yong'inga qarshi himoya bilan to'siq konstruktsiyalarining ulanish tugunlari

Modulyar binolarni tashkil etish uchun standart blok-modullarning tip o'lchamlari

Blok-modullarning tipik ulanishlari

Kafolat majburiyatlari chop etish

- manfaatdor tomon vakili ishtirokida komissiya xulosasi.

Dizayn
Devor panellari dizayni
Silliq
Silliq
Trapezoid
Trapezoid
To'lqin
To'lqin
Ichki panel rangi
RAL 9003 (oq)
RAL 9003 (oq)
RAL kartasiga muvofiq individual rang
RAL kartasiga muvofiq individual rang
Yog'och ko'rinishdagi panellar bilan qo'shimcha devor qoplamasi mumkin
Yog'och ko'rinishdagi panellar bilan qo'shimcha devor qoplamasi mumkin
Panellarning old yuzasining rangi
RAL 9003 (oq)
RAL 9003 (oq)
RAL kartasiga muvofiq individual rang
RAL kartasiga muvofiq individual rang
Komplektatsiya
Bazaviy to'plam
Ramka profilining maxsus konstruktsiyasi yuqori yuk ko‘tarish qobiliyatiga ega.

Ramka profilining maxsus konstruktsiyasi yuqori yuk ko‘tarish qobiliyatiga ega.

Burchak ustunlarining konstruktsiyasi uch qavatgacha bo‘lgan balandlikdagi binolarni qurishga imkon beradi.

Burchak ustunlarining konstruktsiyasi uch qavatgacha bo‘lgan balandlikdagi binolarni qurishga imkon beradi.

Burchak elementi ramka konstruktsiyasining ajraladigan ulanishini ta’minlaydi.

Burchak elementi ramka konstruktsiyasining ajraladigan ulanishini ta’minlaydi.

Sandwich-panellar zamonaviy avtomatik liniyalarda ishlab chiqariladi.

Sandwich-panellar zamonaviy avtomatik liniyalarda ishlab chiqariladi.

Tom qoplamasi materiali sifatida proflist ishlatiladi.

Tom qoplamasi materiali sifatida proflist ishlatiladi.

Qo'shimcha to'plam
Qo‘shimcha tom qoplamasining konstruktsiyasi.

Qo‘shimcha tom qoplamasining konstruktsiyasi.

Muhandislik tizimlari bilan jihozlash.

Muhandislik tizimlari bilan jihozlash.

Kosyurli portal to‘plami.

Kosyurli portal to‘plami.

Tashqi bajarilishdagi zinapoya.

Tashqi bajarilishdagi zinapoya.

Ichki bajarilishdagi zinapoya.

Ichki bajarilishdagi zinapoya.

Qo‘shimcha metall konstruktsiyalar.

Qo‘shimcha metall konstruktsiyalar.

Texnik tavsif
O'lchamlar jadvali
Параметр
Показатель
Длина, м
Konstruktsiya bilan cheklanmagan, qo‘llaniladigan blok-modullarning o‘lchamlariga karralidir
Ширина, мм
Konstruktsiya bilan cheklanmagan bo‘lib, qo‘llaniladigan blok-modullarning o‘lchamlariga mutanosib tarzda loyihalanadi
Высота конструкции, м
Loyihalash jarayonida aniqlanadi
Konstruktsiya
  1. Umumiy yopma ramkali to‘liq jihozlangan modulli binoning karkasi
  2. Qo‘shimcha tom konstruksiyasi
  3. Devor sendvich panellari
  4. . Kichik yopiq verandaga mo‘ljallangan to‘liq komplekt
  5. Tashqi zinapoya
  6. Ichki zinapoya
  7. Qo‘shimcha metall konstruktsiyalar
  8. Tashqi devor
  9. Ichki devor
  10. Yopish ramkasi
  11. Yopma ramkasi
  12. Asos ramkasi
Standart konstruktiv yechimlar

Blok-modulning frontal va torцевiy ulanishi.

Blok-modulning frontal va torцевiy ulanishi.

4 880 x 2 435 mm o‘lchamdagi modul bilan kombinatsiya qilingan. L o‘rniga har qanday standart blok-modul qo‘yilishi mumkin.

4 880 x 2 435 mm o‘lchamdagi modul bilan kombinatsiya qilingan. L o‘rniga har qanday standart blok-modul qo‘yilishi mumkin.

7 325 x 2 435 mm o‘lchamdagi modul bilan kombinatsiya qilingan. L o‘rniga har qanday standart blok-modul qo‘yilishi mumkin.

7 325 x 2 435 mm o‘lchamdagi modul bilan kombinatsiya qilingan. L o‘rniga har qanday standart blok-modul qo‘yilishi mumkin.

4 880 x 2 435 mm va 7 325 x 2 435 mm o‘lchamdagi blok-modul bilan kombinatsiya qilingan.

4 880 x 2 435 mm va 7 325 x 2 435 mm o‘lchamdagi blok-modul bilan kombinatsiya qilingan.

Texnik xususiyatlar
Параметр Значение Примечание
Диапазон рабочих температур, °С -50...+50
Нормативная ветровая нагрузка по региону (СНиП 2.01.07-85* «Нагрузки и воздействия»), КгС/м² SP 20.13330.2011 «Yuklar va ta’sirlar» o‘rnatiladi
Снеговая нагрузка, кг/м² 150 kg/m² Blok-modulning tom va shift ramkasiga
Снеговая нагрузка, кг/м² SP 20.13330.2011 «Yuklar va ta’sirlar» o‘rnatiladi Umumiy tom qoplamasining qo‘shimcha konstruktsiyasiga
Теплоизолятор Mineral plita 100 kg/m³, mineral plita 40 kg/m³, penopoliuretan, penopoliizoitsianurat* *80 mm qalinlikdagi plita ishlatiladi; qo‘shimcha ravishda ovoz o‘tkazmaslik funksiyasini bajaradi
Теплопроводность, Вт/м*°С 0,042–0,045 Mineral plita
Теплопроводность, Вт/м*°С 0,022–0,024 Penopoliuretan, penopoliizoitsianurat
Толщина, мм 80; 100; 150; 200; 250; 300; 350 Standart issiqlik va ovoz izolyatsiyasi qoplamalari
Толщина, мм 80; 100; 150; 200; 250 Standart issiqlik va ovoz izolyatsiyasi tashqi to‘siqlar
Толщина, мм 80; 100; 150 Blok-konteynerlarning ichki devor to‘siqlari (sandyvich-panellar) uchun standart ovoz izolyatsiyasi qalinligi
Этажность 4 qavatgacha
Срок службы, лет 50 gacha
Ресурс, циклов 5 Blok-modullarning yig‘ilish/ajratish tsikllari va ularni modulli binolarga ulash sifatsiz yo‘qotilmasdan ko‘rsatilgan
Вес изделия, кг Blok-modullar va modulli binolarni tayyorlash uchun kerakli qismlar soniga bog‘liq
Mahsulotni ishlatish shartlari

1. Modulli binolarning ekspluatatsiya jarayonida alohida qismlar: tashqi po‘lat eshiklar, xonalararo eshiklar, plastik derazalar, himoya konstruktsiyalari, muhandislik kommunikatsiyalarini ekspluatatsiya qilish shartlariga rioya qilish zarur. Ushbu konstruktsiyalarni ekspluatatsiya qilishda ishlab chiqaruvchilarning ko‘rsatmalari asosida harakat qilish kerak.

2. Modulli binolar -50 °C dan +50 °C gacha bo‘lgan haroratlarda va har qanday iqlim zonasida ekspluatatsiya qilinishi mumkin.

3. Modulli binolarni ekspluatatsiya qilish jarayonida texnik xizmatni yilda kamida 1 marta bajarish zarur, shuningdek, yozgi va qishki mavsumlarga tayyorgarlik ko‘rish tavsiya etiladi.

4. Modulli binolarni ekspluatatsiya qilish jarayonida har kuni xonalar tozaligini va tartibini saqlash, xonalarda zarur bo‘lgan xona harorati va namlikni ta’minlash, qishki davrda tomdan va modulli binolar atrofidan qorni o‘z vaqtida tozalash, yong‘in o‘chirish va za‘mni tekshiruvlarini reja asosida bajarish zarur.

5. Modulli binolarni ekspluatatsiya qilishda yong‘in xavfsizligi qoidalariga rioya qilish zarur.

6. Modulli binolarni ekspluatatsiya qilish jarayonida ishlab chiqaruvchi bilan kelishilmagan o‘zgartirishlarni konstruktsiyaga kiritish taqiqlanadi, bu o‘zgartirishlar modulli binoning ekspluatatsiya shartlariga ta’sir ko‘rsatishi mumkin.

7. Standart maishiy blok-konteynerlardan tashkil topgan modulli binoning pol ramkasiga ruxsat etilgan yuklama 200 kg/m² dan oshmasligi kerak, modulli binoning qo‘shimcha tomiga yuklama loyihaviy hujjatlar bilan tartibga solinadi.

Qadoqlash
Упаковка в картон Характеристики упаковки
Описание Karton varaqalari polning yakuniy qoplamasini himoya qilish uchun joylashtiriladi; transport paketlarini (transport paketlari) o‘rab turishda karton varaqalari yopiq devor sэнdwich-panellari orasiga joylashtiriladi, bu ularning qoplamasining shikastlanishiga yo‘l qo‘ymaslik uchun
Упаковка в пузырчатую пленку Характеристики упаковки
Описание Blok-modullar va transport paketi komplektatsiyasining himoya qoplamasi
Упаковка в контейнер Характеристики упаковки
Описание tandart transport konteynerida joylashtiriladigan blok-modullar komplektatsiyasi
Упаковка в коробку Характеристики упаковки
Описание Komplektatsiya qadoqlash o‘rtacha o‘lchamdagi quti shaklida taqdim etiladi
Состав Uch qatlamli kartondan qilingan quti, stretch-plenka, logotipi bilan skotch
Ширина, мм 450
Высота, мм 300
Длина, мм 550
Упаковка в стретч - пленку Характеристики упаковки
Описание Blok-konteynerning po‘stlog‘idagi po‘stlog‘ni bo‘yash qoplamasini shikastlanishidan saqlash uchun yuzasini himoya qiluvchi yopishqoq lenta bilan yopish
Упаковка на палету Характеристики упаковки
Описание Modul binolarining qo‘shimcha metall konstruktsiyalarini (qo‘shimcha tom, zinapoyalari, boshpanalari, narvonlar va boshqa) transportirovka qilish uchun yog‘och ramka
O'rnatish
Montaj usullari
Sakalli poydevorlarga montaj.
Sakalli poydevorlarga montaj.
Lentali poydevorga montaj.
Lentali poydevorga montaj.
Tayyor beton asosga montaj.
Tayyor beton asosga montaj.
Bino qurilishi uchun tayyorgarlik
  1. Blok-modul yoki modulli binoni o‘rnatish uchun qurilish maydonchasini tayyorlash bosqichida quyidagilar zarur:
  2. Blok-modul yoki modulli bino uchun rejalashtirish qarorini va qo‘llab-quvvatlash nuqtalari sxemasini olish.
  3. Qurilish maydonchasida poydevor qurilishi bilan bog‘liq, yashirin kommunikatsiyalar bilan bog‘liq masalalarni tahlil qilish.
  4. Blok-modul yoki modulli bino o‘rnatilishini ta’minlash uchun optimal poydevorni tanlash.
  5. Poydevorni qabul qilishni amalga oshirish, blok-modullarning qo‘llab-quvvatlash nuqtalarini yagona gorizontal tekislikda va sxemaga muvofiq o‘lchamlarini nazorat qilish.
  6. Modulli binoni montaj qilishning samaradorligi poydevorning qurilish sifatiga bevosita bog‘liq.
  7. O‘rnatish yuzasi (poydevor) blok-modullari yoki modulli binolarining asosiy qo‘llab-quvvatlash nuqtalarining yagona gorizontaliga mos kelishi, blok-modullari yoki modulli binoning konstruktsiyasidan kelib chiqqan yuklarni, jihozlar, xodimlar, qor va boshqa mumkin bo‘lgan yuklar kabi ekspluatatsiya yuklarini qabul qilishga qodir bo‘lishi kerak.
Kafolat majburiyatlari

- manfaatdor tomon vakili ishtirokida komissiya xulosasi.

Hujjatlar
Ko'rsatmalar

Blok-modullarga asoslangan modulyar binolarni montaj qilish bo‘yicha ko‘rsatma

Pasportlar va sertifikatlar

«DOORHAN - Savdo Uy» MChJ mahsulotlari muvofiqlik sertifikati

Yong'inga qarshi xavfsizlik talablariga (YQX) muvofiqlik sertifikati

Yong'inga qarshi xavfsizlik talablariga (YQX) muvofiqlik sertifikatiga qo'shimcha

Gigiyenik sertifikat (bet 1)

Gigiyenik sertifikat (bet 2)

NАКС guvohnomasi «DOORHAN 21 asr - Novosibirsk» MChJning attestatsiyalangan payvandlash texnologiyasini qo‘llashga tayyorligi to‘g‘risida

NАКС guvohnomasi payvandlash uskunalarining attestatsiyasi to‘g‘risida

Chizmalar

Modulyar konstruktsiyalar texnik yechimlari albomi. Blok-modullarning bog'lanish tugunlari

Modulyar konstruktsiyalar texnik yechimlari albomi. Kuchaytirilgan blok-modullarning bog'lanish tugunlari

Modulyar konstruktsiyalar texnik yechimlari albomi. Ichki zinapoyaning ulanish tugunlari

Modulyar konstruktsiyalar texnik yechimlari albomi. Tashqi zinapoyaning ulanish tugunlari (bir necha marşli bajarilishi)

Modulyar konstruktsiyalar texnik yechimlari albomi. Tashqi zinapoyaning ulanish tugunlari (bitta marşli bajarilishi)

Modulyar konstruktsiyalar texnik yechimlari albomi. Kriletslarning ulanish tugunlari

Modulyar konstruktsiyalar texnik yechimlari albomi. To'siq konstruktsiyalarining ulanish tugunlari

Modulyar konstruktsiyalar texnik yechimlari albomi. Qurilishdagi yong'inga qarshi himoya bilan to'siq konstruktsiyalarining ulanish tugunlari

Modulyar binolarni tashkil etish uchun standart blok-modullarning tip o'lchamlari

Blok-modullarning tipik ulanishlari

Buyurtma berish
Kompaniya menejerlari barcha savollaringizga telefon orqali javob berishadi::