Catalog

AD-SP-TELESCOPE privodi uchun teleskopik surma eshik komplekti (to‘rtta harakatlanuvchi yengil qanot va framuza)

Teleskopik surma eshik odamlar oqimi yuqori bo‘lgan turli tijorat ob’ektlarining kirish guruhlari o‘tkazuv joylariga o‘rnatish uchun mo‘ljallangan. Bunday ob’ektlarga savdo-ko‘ngilochar va biznes markazlar, restoranlar, ombor va ishlab chiqarish majmualari, tibbiyot muassasalari, ijtimoiy-maishiy binolar kiradi. Ikkala tomonga ochiladigan teleskopik konstruksiyalar o‘tkazuv joylaridagi cheklangan pristenka kengligi bilan bog‘liq muammolarni hal qilishga yordam beradi.
Qo'llanilish sohasi:
Savdo va biznes markazlari
Xususiy sektor
Afzalliklar
Funktsionallik
Mahsulotni olti rejimda ishlatish imkoniyati odamlar o‘tishi uchun har qanday vazifani hal qilish imkonini beradi.
Qanot to‘ldirishining xilma-xilligi
Qanotni xavfsiz shisha bilan 8 yoki 9 mm qalinlikda yoki 24 mm li shishali paket bilan to‘ldirish imkoni.
Oson yig‘ish
Unikal qurilish ulanishi qanotlarni yig‘ish va mahsulotni o‘rnatish vaqtini sezilarli darajada qisqartirishga, shuningdek, yorug‘lik o‘tishini oshirishga imkon beradi.
Konstruksiyalar va mahsulotlar sinflarining xilma-xilligi
Afzallik har qanday ostonaning optimal konstruksiyasini tanlashga imkon beradi: pritoloka va pristenkalarning yo‘qligi, pristenkalar kengligining cheklangan (etishmas) bo‘lishi, hamda xonadan boshqa chiqish yo‘llarining yo‘qligi holatlarida.
Jozibali narx
Metallarga talabni kamaytirish va profil tizimini optimallashtirish hisobiga mahsulot jozibali narxga ega.
Funktsionallik
Mahsulotni olti rejimda ishlatish imkoniyati odamlar o‘tishi uchun har qanday vazifani hal qilish imkonini beradi.
Qanot to‘ldirishining xilma-xilligi
Qanotni xavfsiz shisha bilan 8 yoki 9 mm qalinlikda yoki 24 mm li shishali paket bilan to‘ldirish imkoni.
Oson yig‘ish
Unikal qurilish ulanishi qanotlarni yig‘ish va mahsulotni o‘rnatish vaqtini sezilarli darajada qisqartirishga, shuningdek, yorug‘lik o‘tishini oshirishga imkon beradi.
Konstruksiyalar va mahsulotlar sinflarining xilma-xilligi
Afzallik har qanday ostonaning optimal konstruksiyasini tanlashga imkon beradi: pritoloka va pristenkalarning yo‘qligi, pristenkalar kengligining cheklangan (etishmas) bo‘lishi, hamda xonadan boshqa chiqish yo‘llarining yo‘qligi holatlarida.
Jozibali narx
Metallarga talabni kamaytirish va profil tizimini optimallashtirish hisobiga mahsulot jozibali narxga ega.
Dizayn
To‘ldirish dizayni
Standart ranglar
Qanotlarning ikki tomonlama bo‘yalgani mavjudligi. Har xil turdagi to‘ldirish 8, 9 va 24 mm qalinlikda
Qanotlarning ikki tomonlama bo‘yalgani mavjudligi. Har xil turdagi to‘ldirish 8, 9 va 24 mm qalinlikda
RAL 9016 (oq)
RAL 9016 (oq)
RAL 9006 (silliq metall)
RAL 9006 (silliq metall)
RAL 7004 (kulrang)
RAL 7004 (kulrang)
RAL 1014 (bej)
RAL 1014 (bej)
RAL 2004 (to'q sariq)
RAL 2004 (to'q sariq)
RAL 3020 (qizil)
RAL 3020 (qizil)
RAL 3005 (bordo)
RAL 3005 (bordo)
RAL 6018 (ochiq yashil)
RAL 6018 (ochiq yashil)
RAL 6005 (yashil)
RAL 6005 (yashil)
RAL 7016 (antratsit)
RAL 7016 (antratsit)
RAL 5005 (ko'k)
RAL 5005 (ko'k)
RAL 8017 (jigarrang-qizil)
RAL 8017 (jigarrang-qizil)
RAL 9005 (qora)
RAL 9005 (qora)
RAL 8014 (jigarrang)
RAL 8014 (jigarrang)
Komplektatsiya
Bazaviy to'plam
Qo'shimcha to'plam
Elektron motor (art. AD-01SP)

Elektron motor (art. AD-01SP)

Kontroller (art. AD-03SP)

Kontroller (art. AD-03SP)

Rejimlar o‘zgartiruvchi ekran bilan (art. AD-08SP)

Rejimlar o‘zgartiruvchi ekran bilan (art. AD-08SP)

Harakat sensori (art. AD-06, 1 dona)

Harakat sensori (art. AD-06, 1 dona)

Kombinatsiyalangan harakat va xavfsizlik sensori (art. AD-34, 1 dona)

Kombinatsiyalangan harakat va xavfsizlik sensori (art. AD-34, 1 dona)

Kichik ko‘taruvchi rulon (art. AD-14SP, 1 dona)

Kichik ko‘taruvchi rulon (art. AD-14SP, 1 dona)

* Tashqi eshiklar uchun karetchalar to‘plami (4 dona) AD-SP-TELESCOPE drayverida

* Tashqi eshiklar uchun karetchalar to‘plami (4 dona) AD-SP-TELESCOPE drayverida

* Ichki eshiklar uchun karetchalar to‘plami (4 dona) AD-SP-TELESCOPE drayveridaE

* Ichki eshiklar uchun karetchalar to‘plami (4 dona) AD-SP-TELESCOPE drayveridaE

Korobning yon qopqog‘ining to‘plami (art. AD-16SPTel, 2 dona) AD-SP-TELESCOPEda

Korobning yon qopqog‘ining to‘plami (art. AD-16SPTel, 2 dona) AD-SP-TELESCOPEda

Drayverning tashqi belbog‘i (art. AD-17, 11 m)

Drayverning tashqi belbog‘i (art. AD-17, 11 m)

* Stoporlar to‘plami (2 dona) AD-SP-TELESCOPEda

* Stoporlar to‘plami (2 dona) AD-SP-TELESCOPEda

Belbog‘ni ushlab turish to‘plami (art. AD-20SP, 2 dona)

Belbog‘ni ushlab turish to‘plami (art. AD-20SP, 2 dona)

Polga qo‘yilgan pastki yo‘riqnoma (art. TPP-001-32D, 2 dona)

Polga qo‘yilgan pastki yo‘riqnoma (art. TPP-001-32D, 2 dona)

Korob va qopqoq (art. AHDS35 2019-2023) AD-SP-TELESCOPE drayveri uchun

Korob va qopqoq (art. AHDS35 2019-2023) AD-SP-TELESCOPE drayveri uchun

Yog‘ochli yo‘riqnoma (art. AHDS35 2023 c AD-29TEL, 2 dona) AD-SP-TELESCOPE drayveri uchun

Yog‘ochli yo‘riqnoma (art. AHDS35 2023 c AD-29TEL, 2 dona) AD-SP-TELESCOPE drayveri uchun

Fotoelement profili (art. AHDS35 0213, 2 dona)

Fotoelement profili (art. AHDS35 0213, 2 dona)

Vertikal eshik profili 30 × 35 mm (art. AHDS35 0106.FREZ)

Vertikal eshik profili 30 × 35 mm (art. AHDS35 0106.FREZ)

Профиль створки горизонтальный 64 × 35 мм (арт. AHDS35 0108)

Профиль створки горизонтальный 64 × 35 мм (арт. AHDS35 0108)

Plitalarni o‘rnatish to‘plami (art. AD-100KIT, 2 ta komplekt)

Plitalarni o‘rnatish to‘plami (art. AD-100KIT, 2 ta komplekt)

AD-07SP-TEL — teleskopik eshiklar uchun elektrozamok komplekti (ayrimlashtiruvchisiz), noqonuniy kirishni oldini olishda ishonchli himoya ta'minlaydi

AD-07SP-TEL — teleskopik eshiklar uchun elektrozamok komplekti (ayrimlashtiruvchisiz), noqonuniy kirishni oldini olishda ishonchli himoya ta'minlaydi

AD-27 — akkumulyor batareya (sig'imi 2,0 Ah), tashqi elektr manbalarisiz eshikning uzluksiz ishlashini 15–30 daqiqa davomida (170 sikl) ta'minlaydi

AD-27 — akkumulyor batareya (sig'imi 2,0 Ah), tashqi elektr manbalarisiz eshikning uzluksiz ishlashini 15–30 daqiqa davomida (170 sikl) ta'minlaydi

AD-30 — simsiz (tirnoqli) PUSH tugmasi. Eshikni harakat sensori o'rniga qo'lda aloqa orqali boshqarish uchun ishlatiladi (tugma bosish orqali eshikni ochish)

AD-30 — simsiz (tirnoqli) PUSH tugmasi. Eshikni harakat sensori o'rniga qo'lda aloqa orqali boshqarish uchun ishlatiladi (tugma bosish orqali eshikni ochish)

AD-31 — kontaktsiz infraqizil tugma. Eshikni harakat sensori o'rniga qo'lda kontaktsiz boshqarish uchun ishlatiladi (1 dan 15 sm gacha)

AD-31 — kontaktsiz infraqizil tugma. Eshikni harakat sensori o'rniga qo'lda kontaktsiz boshqarish uchun ishlatiladi (1 dan 15 sm gacha)

AD-32 — kalit bilan rejimlarni almashtirish tugmasi (5 ta rejim). Eshikni boshqarish uchun ekrani bo'lgan rejim almashtirgich o'rniga ishlatiladi va cheklangan kirish imkoniyatini ta'minlaydi

AD-32 — kalit bilan rejimlarni almashtirish tugmasi (5 ta rejim). Eshikni boshqarish uchun ekrani bo'lgan rejim almashtirgich o'rniga ishlatiladi va cheklangan kirish imkoniyatini ta'minlaydi

AD-34 — kombinatsiyalangan harakat va xavfsizlik sensori. Bir korpusda mikrovaviy harakat radarini va eshik ostonasidagi infraqizil xavfsizlik parda sensori funksiyalarini birlashtiradi

AD-34 — kombinatsiyalangan harakat va xavfsizlik sensori. Bir korpusda mikrovaviy harakat radarini va eshik ostonasidagi infraqizil xavfsizlik parda sensori funksiyalarini birlashtiradi

AD-09 — eshik ostonasidagi xavfsizlikni ta'minlovchi fotoselementlar komplekti

AD-09 — eshik ostonasidagi xavfsizlikni ta'minlovchi fotoselementlar komplekti

Texnik tavsif
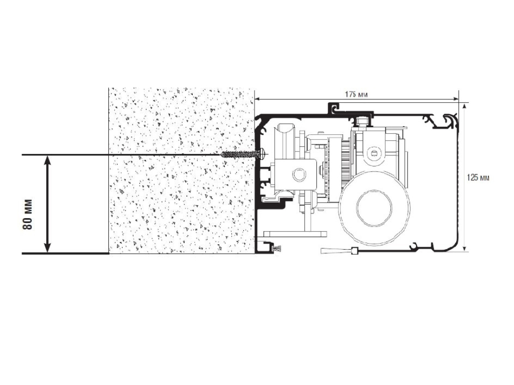
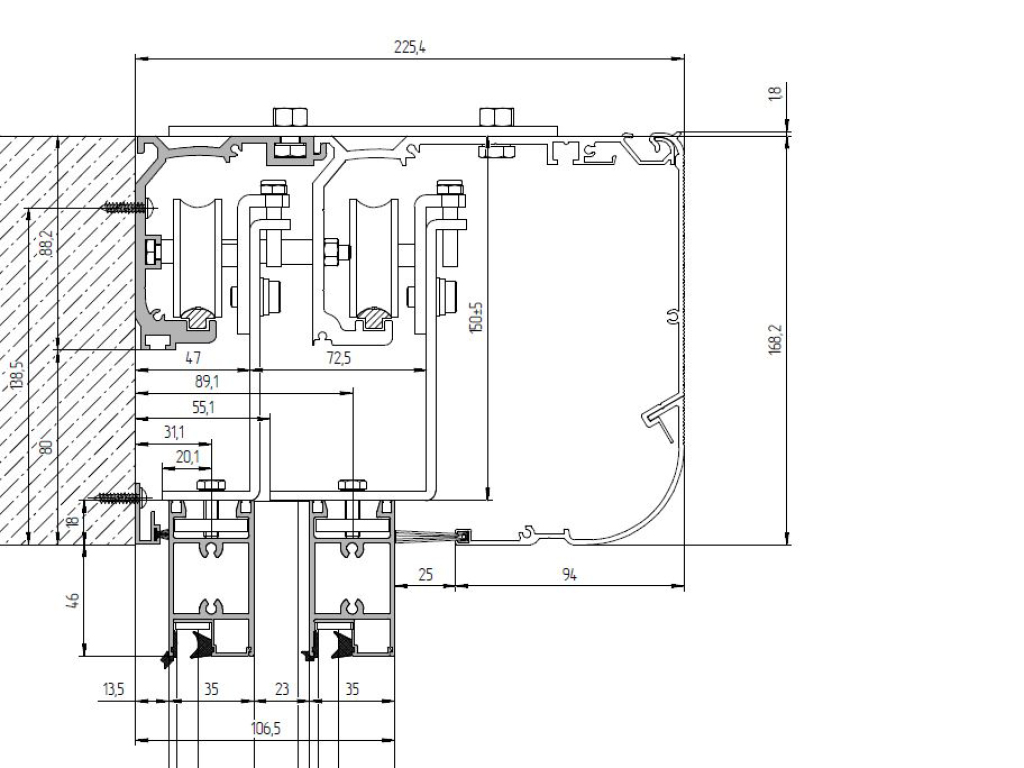
O'lchamlar jadvali
Konstruktsiya
Standart konstruktiv yechimlar
Texnik xususiyatlar
Mahsulotni ishlatish shartlari
Qadoqlash
Параметр
Показатель
Ширина проема, мм
1358 dan 4000 gacha
Высота проема, мм
2205 dan 4000 gacha
Притолока, мм
shart emas
  1. Qanot profili vertikal
  2. Qanot profili gorizontal
  3. Shtapik
  4. To‘ldirish 8, 9 mm (shtapik bilan) yoki 24 mm (shtapiksiz)
  5. Ichki muhrrat
  6. Tashqi muhrrat
  7. Markaziy muhrrat

Teleskopik eshik (ikki tomonlama)

Teleskopik eshik (ikki tomonlama)

Усл. обозначение, наименование параметра Расчетная формула
B, мм Ширина проема 1200 dan 4000 gacha
H, мм Высота проема 1700 dan 3000 gacha
Teleskopik eshik bir tomonlama (chapga ochilish)

Teleskopik eshik bir tomonlama (chapga ochilish)

Усл. обозначение, наименование параметра Расчетная формула
B, мм Ширина проема 900 dan 3000 gacha
H, мм Высота проема 1700 dan 3000 gacha
Teleskopik eshik ikki tomonlama framuqali

Teleskopik eshik ikki tomonlama framuqali

Усл. обозначение, наименование параметра Расчетная формула
B, мм Ширина проема 2205 dan 4000 gacha
H, мм Высота проема 1358 dan 4000 gacha
Параметр Значение Примечание
Толщина профилей, мм 35
Толщина заполнения, мм 8 yoki 9 Yengil eshik yaprog'i
Максимальная высота, м 4
Максимальный вес створки, кг. 2 × 100/4 × 90 Bitta tomondan / ikki tomondan teleskop
Двигатель, В 24
Мощность, Вт 100
Напряжение питания, В 220
Диапазон рабочих температур, °С -20…+70
Интенсивность использования, % 100 Intensiv o'tish uchun, 24 soat davomida

1. Eshikning elektromexanizmi bilan ramkasini xonadan tashqarida, ko‘chadan o‘rnatish qat'iyan man etiladi.

2. Eshikning yaprog‘ini qo‘lda ochish va yopish faqat favqulodda holatda (elektr energiyasi yo‘qligida) yoki sozlash ishlari davomida amalga oshiriladi.

3. Eshikning yaprog‘ini qo‘lda ochish va yopishda katta kuch sarflamang. Eshik yaprog‘ini keskin itarish orqali ochish qat'iyan man etiladi.

4. Bolalar va hayvonlarning eshik yaprog‘i ochilish/yopilish zonasida uzoq vaqt bo‘lishiga yo‘l qo‘ymang.

5. Qattiq yopilgan eshiklarni qo‘llar bilan majburan ochish, barmoqlarni yoki boshqa ob'ektlarni harakatlanuvchi yaproq va pol orasiga tiqish qat'iyan man etiladi, chunki bu jarohatlarga olib kelishi mumkin.

6. Eshik yaprog‘ining ochilishi va yopilishiga to‘sqinlik qilmasdan o‘tkazishda zarbalar bermang. Eshik yaprog‘i harakati zonasida yugurish yoki turish qat'iyan man etiladi.

7. Eshik yaprog‘i harakatlanayotgan paytda, uning yo‘lida tashqi ob'ektlar yoki axlat bo‘lmasligiga e'tibor bering: bu, eshik yaprog‘ining qiyshayishiga, tiqilishiga va eshik avtomatikasining ishlamay qolishiga olib kelishi mumkin.

8. Yo‘lga qo‘yiladigan izlar va roliklar ifloslanishiga yo‘l qo‘ymang, chunki bu eshik yaprog‘ining siljishining silliqligini buzishi, tiqilishiga va elektromexanizmining ishlamay qolishiga olib kelishi mumkin.

9. Avtomatik eshik yaprog‘i eshik ochish/yopish tsikli davomida eshik ramkasi bo‘ylab silliq harakatlanishi va to‘liq ochilgan yoki yopilgan holatga yetganda zaruriy tormozlanishi kerak.

10. Eshikni xavfsizlik elementlari, masalan, fotoelemenlar yoki IR pardalari o‘rnatilmagan holda ishlatish qat'iyan man etiladi.

Упаковка в картон Характеристики упаковки
Yog‘och palet, pastki qismida polistirol bloklar bilan. Profil gofrokarton varaqasi bilan o‘ralgan va PП lentasi bilan mustahkamlangan
Упаковка в пузырчатую пленку Характеристики упаковки
Qadoqlash, pufakli plyonka bilan o‘ralgan va logotipli skotch bilan mustahkamlangan profillarni tashkil etadi. Bir qadoq profillarning massasi 35 kg dan ortiq emas
Упаковка на палету Характеристики упаковки
Pufakli plyonkaga o‘ralgan profil paketlarini polistirol ramkali paletaga joylashtirib, skotch bilan mustahkamlashadi
Qo‘shimcha tavsif chop etish

Suriladigan eshiklarni nafaqat alohida o‘rnatish, balki bino fasadiga yoki kirish guruhiga integratsiya qilish mumkin.

O'rnatish
Montaj usullari
Bino qurilishi uchun tayyorgarlik
Avtomatik eshikka korobni proyemga o‘rnatish
Avtomatik eshikka korobni proyemga o‘rnatish
Teleskopik eshikning korobini proyemga o‘rnatish
Teleskopik eshikning korobini proyemga o‘rnatish
  1. Proyem parametrları: N — proyem balandligi (toza poldan proyem ustiga qadar masofa); B — proyem kengligi (chap chekkadan o‘ng chekkagacha bo‘lgan masofa); h — pritoloka balandligi (proyemning yuqori qismidan shiftgacha bo‘lgan masofa). Pritoloka, proyem kengligi va balandligini o‘lchash kamida ikkita joyda amalga oshiriladi. Yakuniy o‘lchov doimo eng kichik qiymatni hisobga olish orqali aniqlanadi.
  2. Sifatli montaj uchun va uning ishonchli ishlashini ta'minlash uchun xona proyemini tayyorlash zarur. Proyemga nisbatan aniq talablar mavjud: Proyem to‘rtburchak shaklida bo‘lishi kerak. Ramka sirtlari tekis va silliq bo‘lishi kerak, shuningdek, gips ishlov berish va yoriqlar bo‘lmasligi zarur. Pol yuzasi tekis, gorizontal bo‘lishi kerak, chiqindilar va chuqurliklar bo‘lmasligi kerak. 1 metrga 1 mm gacha cheklangan og‘ishlarga ruxsat beriladi. Vertikal va gorizontal sirtlar tekis bo‘lishi kerak, 1 metrga 1 mm gacha og‘ishlar bilan. Agar proyemni tayyorlashda yuqoridagi talablar bo‘yicha og‘ishlar mavjud bo‘lsa, o‘lchovlar olish va montajni boshlashdan oldin ushbu og‘ishlar bartaraf etilishi kerak. Pritoloka va yon tomonlardagi pristenkalar bir tekislikda bo‘lishi kerak. Proyem ramkasi mustahkam konstruktsiya, payvandlangan quvurlar, fasad profili yoki vitraj ko‘rinishida bo‘lishi kerak.
Hujjatlar
Ko'rsatmalar
Pasportlar va sertifikatlar
Chizmalar

“AD-SP privodi bilan avtomatik suriladigan eshik” yo‘riqnomasi

“AD-SP-TELESCOPE privodi bilan teleskopik eshik” yo‘riqnomasi

Avtomatik/teleskopik eshiklar uchun yengil yaproqlarni yig‘ish bo‘yicha yo‘riqnoma

“Antipanika” (ochilish funksiyasi bilan) eshiklarini yig‘ish bo‘yicha yo‘riqnoma

Framugali va avtomatik eshik konstruksiyalarini yig‘ish bo‘yicha yo‘riqnoma

Framugali va avtomatik eshik konstruksiyalarini yig‘ish bo‘yicha yo‘riqnoma

Ostonani tayyorlash va o‘rnatish talablariga oid yo‘riqnoma

Avtomatik suriladigan eshik pasporti / AD-SP / AD-SP-TELESCOPE privodi

Alyuminiy profiliga muvofiqlik sertifikati

Avtomatik eshik privodlari uchun muvofiqlik deklaratsiyasi

Asosiy yaproq profillari va qismlari katalogi (arxiv)

Avtomatik eshik uchun profillar va qismlar katalogi (light yaproqlar bilan)

Teleskopik eshik uchun profillar va qismlar katalogi (light yaproqlar bilan)

“Antipanika” avtomatik eshigi uchun profillar va qismlar katalogi

Kafolat majburiyatlari chop etish

Mijozga tizimni to‘liq ta'minlash uchun 2 yil kafolat taqdim etiladi, bu kafolat yuklash vaqtidan boshlab foydalanish shartlariga rioya qilgan holda amal qiladi.

Yangi mahsulotlar
Simsiz (tirnoqli) tugma AD-30 qo‘lda ochish boshqaruvi uchun ishlatiladi va u nafaqat toza xonalarda (operatsion va laboratoriya bloklari), balki ofis va savdo xonalarida ham qo‘llaniladi.

Simsiz (tirnoqli) tugma AD-30 qo‘lda ochish boshqaruvi uchun ishlatiladi va u nafaqat toza xonalarda (operatsion va laboratoriya bloklari), balki ofis va savdo xonalarida ham qo‘llaniladi.

AD-34 sensori — kombinatsiyalangan turdagi qurilma bo‘lib, bir korpusda mikrovaviy harakat radarini va infraqizil mavjudlik parda sensori funksiyalarini birlashtiradi. Ushbu sensor avtomatik suriladigan eshikda AD-SP privodi bilan o‘rnatilganda xavfsizlik fotoelemanlari juftligini o‘rnini bosishi yoki ular bilan birgalikda ishlashi mumkin.

AD-34 sensori — kombinatsiyalangan turdagi qurilma bo‘lib, bir korpusda mikrovaviy harakat radarini va infraqizil mavjudlik parda sensori funksiyalarini birlashtiradi. Ushbu sensor avtomatik suriladigan eshikda AD-SP privodi bilan o‘rnatilganda xavfsizlik fotoelemanlari juftligini o‘rnini bosishi yoki ular bilan birgalikda ishlashi mumkin.

Dizayn
To‘ldirish dizayni
Qanotlarning ikki tomonlama bo‘yalgani mavjudligi. Har xil turdagi to‘ldirish 8, 9 va 24 mm qalinlikda
Qanotlarning ikki tomonlama bo‘yalgani mavjudligi. Har xil turdagi to‘ldirish 8, 9 va 24 mm qalinlikda
Standart ranglar
RAL 9016 (oq)
RAL 9016 (oq)
RAL 9006 (silliq metall)
RAL 9006 (silliq metall)
RAL 7004 (kulrang)
RAL 7004 (kulrang)
RAL 1014 (bej)
RAL 1014 (bej)
RAL 2004 (to'q sariq)
RAL 2004 (to'q sariq)
RAL 3020 (qizil)
RAL 3020 (qizil)
RAL 3005 (bordo)
RAL 3005 (bordo)
RAL 6018 (ochiq yashil)
RAL 6018 (ochiq yashil)
RAL 6005 (yashil)
RAL 6005 (yashil)
RAL 7016 (antratsit)
RAL 7016 (antratsit)
RAL 5005 (ko'k)
RAL 5005 (ko'k)
RAL 8017 (jigarrang-qizil)
RAL 8017 (jigarrang-qizil)
RAL 9005 (qora)
RAL 9005 (qora)
RAL 8014 (jigarrang)
RAL 8014 (jigarrang)
Komplektatsiya
Bazaviy to'plam
Elektron motor (art. AD-01SP)

Elektron motor (art. AD-01SP)

Kontroller (art. AD-03SP)

Kontroller (art. AD-03SP)

Rejimlar o‘zgartiruvchi ekran bilan (art. AD-08SP)

Rejimlar o‘zgartiruvchi ekran bilan (art. AD-08SP)

Harakat sensori (art. AD-06, 1 dona)

Harakat sensori (art. AD-06, 1 dona)

Kombinatsiyalangan harakat va xavfsizlik sensori (art. AD-34, 1 dona)

Kombinatsiyalangan harakat va xavfsizlik sensori (art. AD-34, 1 dona)

Kichik ko‘taruvchi rulon (art. AD-14SP, 1 dona)

Kichik ko‘taruvchi rulon (art. AD-14SP, 1 dona)

* Tashqi eshiklar uchun karetchalar to‘plami (4 dona) AD-SP-TELESCOPE drayverida

* Tashqi eshiklar uchun karetchalar to‘plami (4 dona) AD-SP-TELESCOPE drayverida

* Ichki eshiklar uchun karetchalar to‘plami (4 dona) AD-SP-TELESCOPE drayveridaE

* Ichki eshiklar uchun karetchalar to‘plami (4 dona) AD-SP-TELESCOPE drayveridaE

Korobning yon qopqog‘ining to‘plami (art. AD-16SPTel, 2 dona) AD-SP-TELESCOPEda

Korobning yon qopqog‘ining to‘plami (art. AD-16SPTel, 2 dona) AD-SP-TELESCOPEda

Drayverning tashqi belbog‘i (art. AD-17, 11 m)

Drayverning tashqi belbog‘i (art. AD-17, 11 m)

* Stoporlar to‘plami (2 dona) AD-SP-TELESCOPEda

* Stoporlar to‘plami (2 dona) AD-SP-TELESCOPEda

Belbog‘ni ushlab turish to‘plami (art. AD-20SP, 2 dona)

Belbog‘ni ushlab turish to‘plami (art. AD-20SP, 2 dona)

Polga qo‘yilgan pastki yo‘riqnoma (art. TPP-001-32D, 2 dona)

Polga qo‘yilgan pastki yo‘riqnoma (art. TPP-001-32D, 2 dona)

Korob va qopqoq (art. AHDS35 2019-2023) AD-SP-TELESCOPE drayveri uchun

Korob va qopqoq (art. AHDS35 2019-2023) AD-SP-TELESCOPE drayveri uchun

Yog‘ochli yo‘riqnoma (art. AHDS35 2023 c AD-29TEL, 2 dona) AD-SP-TELESCOPE drayveri uchun

Yog‘ochli yo‘riqnoma (art. AHDS35 2023 c AD-29TEL, 2 dona) AD-SP-TELESCOPE drayveri uchun

Fotoelement profili (art. AHDS35 0213, 2 dona)

Fotoelement profili (art. AHDS35 0213, 2 dona)

Vertikal eshik profili 30 × 35 mm (art. AHDS35 0106.FREZ)

Vertikal eshik profili 30 × 35 mm (art. AHDS35 0106.FREZ)

Профиль створки горизонтальный 64 × 35 мм (арт. AHDS35 0108)

Профиль створки горизонтальный 64 × 35 мм (арт. AHDS35 0108)

Plitalarni o‘rnatish to‘plami (art. AD-100KIT, 2 ta komplekt)

Plitalarni o‘rnatish to‘plami (art. AD-100KIT, 2 ta komplekt)

Qo'shimcha to'plam
AD-07SP-TEL — teleskopik eshiklar uchun elektrozamok komplekti (ayrimlashtiruvchisiz), noqonuniy kirishni oldini olishda ishonchli himoya ta'minlaydi

AD-07SP-TEL — teleskopik eshiklar uchun elektrozamok komplekti (ayrimlashtiruvchisiz), noqonuniy kirishni oldini olishda ishonchli himoya ta'minlaydi

AD-27 — akkumulyor batareya (sig'imi 2,0 Ah), tashqi elektr manbalarisiz eshikning uzluksiz ishlashini 15–30 daqiqa davomida (170 sikl) ta'minlaydi

AD-27 — akkumulyor batareya (sig'imi 2,0 Ah), tashqi elektr manbalarisiz eshikning uzluksiz ishlashini 15–30 daqiqa davomida (170 sikl) ta'minlaydi

AD-30 — simsiz (tirnoqli) PUSH tugmasi. Eshikni harakat sensori o'rniga qo'lda aloqa orqali boshqarish uchun ishlatiladi (tugma bosish orqali eshikni ochish)

AD-30 — simsiz (tirnoqli) PUSH tugmasi. Eshikni harakat sensori o'rniga qo'lda aloqa orqali boshqarish uchun ishlatiladi (tugma bosish orqali eshikni ochish)

AD-31 — kontaktsiz infraqizil tugma. Eshikni harakat sensori o'rniga qo'lda kontaktsiz boshqarish uchun ishlatiladi (1 dan 15 sm gacha)

AD-31 — kontaktsiz infraqizil tugma. Eshikni harakat sensori o'rniga qo'lda kontaktsiz boshqarish uchun ishlatiladi (1 dan 15 sm gacha)

AD-32 — kalit bilan rejimlarni almashtirish tugmasi (5 ta rejim). Eshikni boshqarish uchun ekrani bo'lgan rejim almashtirgich o'rniga ishlatiladi va cheklangan kirish imkoniyatini ta'minlaydi

AD-32 — kalit bilan rejimlarni almashtirish tugmasi (5 ta rejim). Eshikni boshqarish uchun ekrani bo'lgan rejim almashtirgich o'rniga ishlatiladi va cheklangan kirish imkoniyatini ta'minlaydi

AD-34 — kombinatsiyalangan harakat va xavfsizlik sensori. Bir korpusda mikrovaviy harakat radarini va eshik ostonasidagi infraqizil xavfsizlik parda sensori funksiyalarini birlashtiradi

AD-34 — kombinatsiyalangan harakat va xavfsizlik sensori. Bir korpusda mikrovaviy harakat radarini va eshik ostonasidagi infraqizil xavfsizlik parda sensori funksiyalarini birlashtiradi

AD-09 — eshik ostonasidagi xavfsizlikni ta'minlovchi fotoselementlar komplekti

AD-09 — eshik ostonasidagi xavfsizlikni ta'minlovchi fotoselementlar komplekti

Texnik tavsif
O'lchamlar jadvali
Параметр
Показатель
Ширина проема, мм
1358 dan 4000 gacha
Высота проема, мм
2205 dan 4000 gacha
Притолока, мм
shart emas
Konstruktsiya
  1. Qanot profili vertikal
  2. Qanot profili gorizontal
  3. Shtapik
  4. To‘ldirish 8, 9 mm (shtapik bilan) yoki 24 mm (shtapiksiz)
  5. Ichki muhrrat
  6. Tashqi muhrrat
  7. Markaziy muhrrat
Standart konstruktiv yechimlar

Teleskopik eshik (ikki tomonlama)

Teleskopik eshik (ikki tomonlama)

Усл. обозначение, наименование параметра Расчетная формула
B, мм Ширина проема 1200 dan 4000 gacha
H, мм Высота проема 1700 dan 3000 gacha
Teleskopik eshik bir tomonlama (chapga ochilish)

Teleskopik eshik bir tomonlama (chapga ochilish)

Усл. обозначение, наименование параметра Расчетная формула
B, мм Ширина проема 900 dan 3000 gacha
H, мм Высота проема 1700 dan 3000 gacha
Teleskopik eshik ikki tomonlama framuqali

Teleskopik eshik ikki tomonlama framuqali

Усл. обозначение, наименование параметра Расчетная формула
B, мм Ширина проема 2205 dan 4000 gacha
H, мм Высота проема 1358 dan 4000 gacha
Texnik xususiyatlar
Параметр Значение Примечание
Толщина профилей, мм 35
Толщина заполнения, мм 8 yoki 9 Yengil eshik yaprog'i
Максимальная высота, м 4
Максимальный вес створки, кг. 2 × 100/4 × 90 Bitta tomondan / ikki tomondan teleskop
Двигатель, В 24
Мощность, Вт 100
Напряжение питания, В 220
Диапазон рабочих температур, °С -20…+70
Интенсивность использования, % 100 Intensiv o'tish uchun, 24 soat davomida
Mahsulotni ishlatish shartlari

1. Eshikning elektromexanizmi bilan ramkasini xonadan tashqarida, ko‘chadan o‘rnatish qat'iyan man etiladi.

2. Eshikning yaprog‘ini qo‘lda ochish va yopish faqat favqulodda holatda (elektr energiyasi yo‘qligida) yoki sozlash ishlari davomida amalga oshiriladi.

3. Eshikning yaprog‘ini qo‘lda ochish va yopishda katta kuch sarflamang. Eshik yaprog‘ini keskin itarish orqali ochish qat'iyan man etiladi.

4. Bolalar va hayvonlarning eshik yaprog‘i ochilish/yopilish zonasida uzoq vaqt bo‘lishiga yo‘l qo‘ymang.

5. Qattiq yopilgan eshiklarni qo‘llar bilan majburan ochish, barmoqlarni yoki boshqa ob'ektlarni harakatlanuvchi yaproq va pol orasiga tiqish qat'iyan man etiladi, chunki bu jarohatlarga olib kelishi mumkin.

6. Eshik yaprog‘ining ochilishi va yopilishiga to‘sqinlik qilmasdan o‘tkazishda zarbalar bermang. Eshik yaprog‘i harakati zonasida yugurish yoki turish qat'iyan man etiladi.

7. Eshik yaprog‘i harakatlanayotgan paytda, uning yo‘lida tashqi ob'ektlar yoki axlat bo‘lmasligiga e'tibor bering: bu, eshik yaprog‘ining qiyshayishiga, tiqilishiga va eshik avtomatikasining ishlamay qolishiga olib kelishi mumkin.

8. Yo‘lga qo‘yiladigan izlar va roliklar ifloslanishiga yo‘l qo‘ymang, chunki bu eshik yaprog‘ining siljishining silliqligini buzishi, tiqilishiga va elektromexanizmining ishlamay qolishiga olib kelishi mumkin.

9. Avtomatik eshik yaprog‘i eshik ochish/yopish tsikli davomida eshik ramkasi bo‘ylab silliq harakatlanishi va to‘liq ochilgan yoki yopilgan holatga yetganda zaruriy tormozlanishi kerak.

10. Eshikni xavfsizlik elementlari, masalan, fotoelemenlar yoki IR pardalari o‘rnatilmagan holda ishlatish qat'iyan man etiladi.

Qadoqlash
Упаковка в картон Характеристики упаковки
Yog‘och palet, pastki qismida polistirol bloklar bilan. Profil gofrokarton varaqasi bilan o‘ralgan va PП lentasi bilan mustahkamlangan
Упаковка в пузырчатую пленку Характеристики упаковки
Qadoqlash, pufakli plyonka bilan o‘ralgan va logotipli skotch bilan mustahkamlangan profillarni tashkil etadi. Bir qadoq profillarning massasi 35 kg dan ortiq emas
Упаковка на палету Характеристики упаковки
Pufakli plyonkaga o‘ralgan profil paketlarini polistirol ramkali paletaga joylashtirib, skotch bilan mustahkamlashadi
Qo‘shimcha tavsif

Suriladigan eshiklarni nafaqat alohida o‘rnatish, balki bino fasadiga yoki kirish guruhiga integratsiya qilish mumkin.

O'rnatish
Montaj usullari
Avtomatik eshikka korobni proyemga o‘rnatish
Avtomatik eshikka korobni proyemga o‘rnatish
Teleskopik eshikning korobini proyemga o‘rnatish
Teleskopik eshikning korobini proyemga o‘rnatish
Bino qurilishi uchun tayyorgarlik
  1. Proyem parametrları: N — proyem balandligi (toza poldan proyem ustiga qadar masofa); B — proyem kengligi (chap chekkadan o‘ng chekkagacha bo‘lgan masofa); h — pritoloka balandligi (proyemning yuqori qismidan shiftgacha bo‘lgan masofa). Pritoloka, proyem kengligi va balandligini o‘lchash kamida ikkita joyda amalga oshiriladi. Yakuniy o‘lchov doimo eng kichik qiymatni hisobga olish orqali aniqlanadi.
  2. Sifatli montaj uchun va uning ishonchli ishlashini ta'minlash uchun xona proyemini tayyorlash zarur. Proyemga nisbatan aniq talablar mavjud: Proyem to‘rtburchak shaklida bo‘lishi kerak. Ramka sirtlari tekis va silliq bo‘lishi kerak, shuningdek, gips ishlov berish va yoriqlar bo‘lmasligi zarur. Pol yuzasi tekis, gorizontal bo‘lishi kerak, chiqindilar va chuqurliklar bo‘lmasligi kerak. 1 metrga 1 mm gacha cheklangan og‘ishlarga ruxsat beriladi. Vertikal va gorizontal sirtlar tekis bo‘lishi kerak, 1 metrga 1 mm gacha og‘ishlar bilan. Agar proyemni tayyorlashda yuqoridagi talablar bo‘yicha og‘ishlar mavjud bo‘lsa, o‘lchovlar olish va montajni boshlashdan oldin ushbu og‘ishlar bartaraf etilishi kerak. Pritoloka va yon tomonlardagi pristenkalar bir tekislikda bo‘lishi kerak. Proyem ramkasi mustahkam konstruktsiya, payvandlangan quvurlar, fasad profili yoki vitraj ko‘rinishida bo‘lishi kerak.
Kafolat majburiyatlari

Mijozga tizimni to‘liq ta'minlash uchun 2 yil kafolat taqdim etiladi, bu kafolat yuklash vaqtidan boshlab foydalanish shartlariga rioya qilgan holda amal qiladi.

Hujjatlar
Ko'rsatmalar

“AD-SP privodi bilan avtomatik suriladigan eshik” yo‘riqnomasi

“AD-SP-TELESCOPE privodi bilan teleskopik eshik” yo‘riqnomasi

Avtomatik/teleskopik eshiklar uchun yengil yaproqlarni yig‘ish bo‘yicha yo‘riqnoma

“Antipanika” (ochilish funksiyasi bilan) eshiklarini yig‘ish bo‘yicha yo‘riqnoma

Framugali va avtomatik eshik konstruksiyalarini yig‘ish bo‘yicha yo‘riqnoma

Framugali va avtomatik eshik konstruksiyalarini yig‘ish bo‘yicha yo‘riqnoma

Ostonani tayyorlash va o‘rnatish talablariga oid yo‘riqnoma

Pasportlar va sertifikatlar

Avtomatik suriladigan eshik pasporti / AD-SP / AD-SP-TELESCOPE privodi

Alyuminiy profiliga muvofiqlik sertifikati

Avtomatik eshik privodlari uchun muvofiqlik deklaratsiyasi

Chizmalar

Asosiy yaproq profillari va qismlari katalogi (arxiv)

Avtomatik eshik uchun profillar va qismlar katalogi (light yaproqlar bilan)

Teleskopik eshik uchun profillar va qismlar katalogi (light yaproqlar bilan)

“Antipanika” avtomatik eshigi uchun profillar va qismlar katalogi

Buyurtma berish
Kompaniya menejerlari barcha savollaringizga telefon orqali javob berishadi::