Catalog

AD-SP privodi uchun avtomatik surma eshik komplekti (bitta harakatlanuvchi va bitta harakatsiz lightramka)

Kirish guruhi — har qanday tijorat ob'ektining tashrif qog'ozidir. U nafaqat jozibali, balki funksional, xavfsiz va intensiv odamlar oqimiga bardosh bera oladigan bo'lishi kerak. DoorHan konserni tayyor yechimni taqdim etadi — AD-SP privodi asosidagi avtomatik surilma eshiklar to'plami. Bu savdo va biznes markazlari, mehmonxonalar, restoranlar, tibbiyot muassasalari va transport tugunlari uchun ishlab chiqilgan intellektual tizimdir. U shunchaki o'tish joyini ochmaydi, balki tashrif buyuruvchilar oqimini boshqaradi, qulay mikroiqlim yaratadi va kirish guruhingizga zamonaviy, nufuzli ko'rinish beradi.

Har qanday o'tish joylari uchun muhandislik yechimlari. Biz har bir o'tish joyi ideal emasligini tushunamiz. Bizning konstruksiyamiz murakkab vazifalarni hal qilish uchun maxsus ishlab chiqilgan:

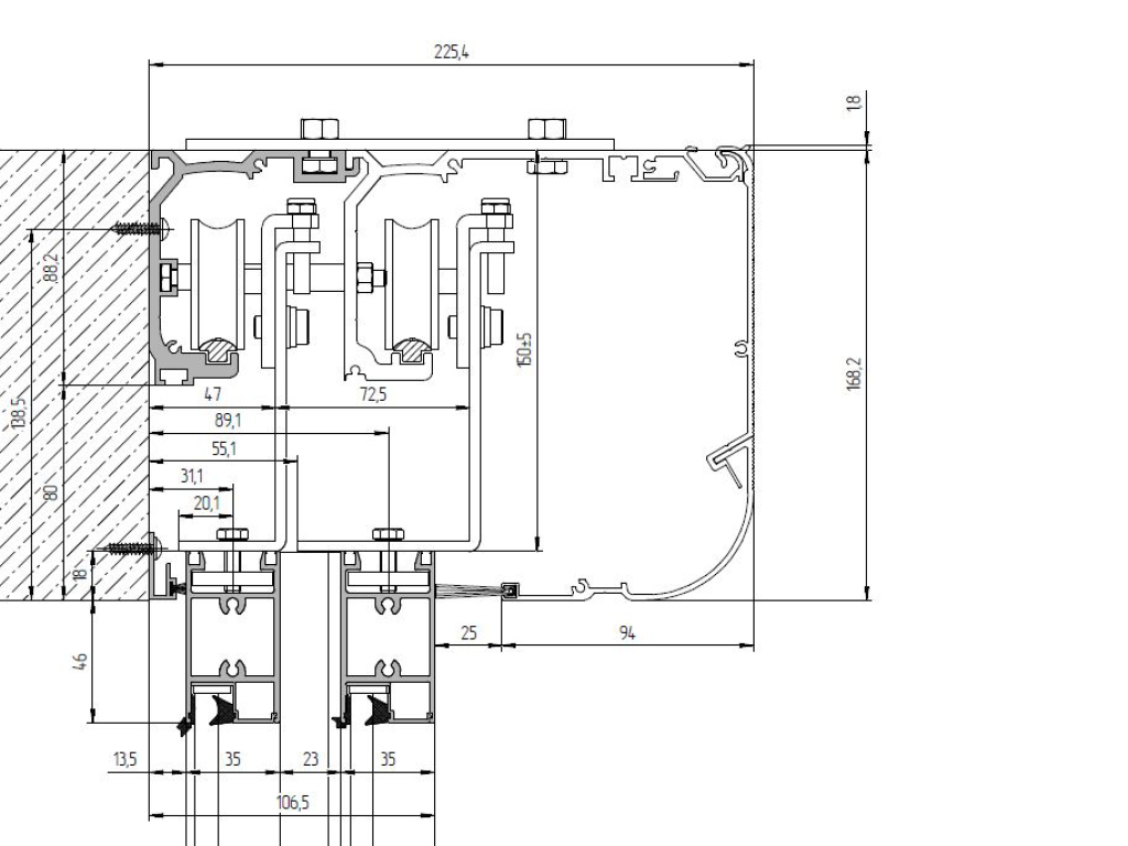
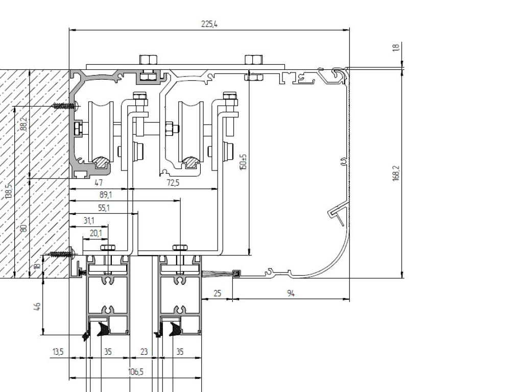
  • "Bitta harakatlanuvchi + bitta harakatsiz stvorka" konfiguratsiyasi devorning bir tomoni yo'q bo'lgan o'tish joylari uchun ideal yechimdir. Eshik statsionar shisha panel orqasiga silliq surilib, cheklangan maydon sharoitida ham keng va qulay o'tishni ta'minlaydi.
  • Profillarning noyob mexanik birikmasi — bu tez va aniq yig'ish uchun bizning texnologiyamizdir. U ob'ektda montaj vaqtini sezilarli darajada qisqartiradi va pulingizni tejaydi. Bundan tashqari, bunday texnologiya ramkaning ko'rinadigan qismini kamaytirishga, yorug'lik tushadigan qismini kengaytirishga va butun konstruksiyani yengilroq, havodorroq va zamonaviyroq qilishga imkon beradi.
  • To'ldirishning xilma-xilligi: Siz ichki xonalar uchun xavfsiz chiniqtirilgan shisha (8 yoki 9 mm) yoki tashqi kirish guruhlari uchun issiqlikni tejaydigan energiya tejamkor shisha paket (24 mm) tanlashingiz mumkin, bu qishda issiqlikni va yozda salqinlikni saqlaydi.

To'liq nazorat va funksionallik. AD-SP tizimi o'tishni tashkil etish bo'yicha har qanday vazifani hal qilish uchun moslashuvchan sozlamalarga ega. Qulay displeyli rejimlar o'zgartirgichi yordamida siz oltita ish mantig'idan birini tanlashingiz mumkin:

  • Ikki tomonlama o'tish uchun standart avtomatik rejim.
  • "Faqat kirish" yoki "faqat chiqish" rejimi.
  • Tig'iz vaqtlar yoki havo almashtirish uchun "doimiy ochiq" rejimi.
  • Issiqlikni tejash uchun kamaytirilgan ochilish kengligiga ega "qishki rejim".
  • To'liq yopiq va bloklangan rejim.

Murosasiz jozibador narx. Profil tizimini optimallashtirish va metall sig'imini kamaytirish tufayli biz konstruksiyaning mustahkamligi, ishonchliligi va uzoq muddatliligiga putur yetkazmasdan, to'plam uchun jozibador narxga erishdik. Bu DoorHan avtomatik eshiklarini nafaqat texnologik, balki biznesingiz uchun iqtisodiy jihatdan foydali yechimga aylantiradi. To'plam barcha kerakli komponentlar bilan birga yetkazib beriladi: dvigatel va kontrollerdan tortib harakat va xavfsizlik datchiklarigacha, bu to'liq moslikni va tez o'rnatishni kafolatlaydi. DoorHan'ni tanlab, siz bitta ishlab chiqaruvchidan ishonchlilik, funksionallik va zamonaviy dizaynni tanlaysiz.

Har qanday ob'ektlar uchun katta modellar tanlovi
Katta ochilishlarni qoplash, yuqori ish intensivligi, ko'rishni saqlash va boshqalar.
Nosozliklarsiz uzoq muddatli ish
DoorHan mahsulotlari intensiv foydalanish uchun yaratilgan va yuqori korroziya bardoshligiga ega.
o'z ishlab chiqarish
Toshkentdagi o'z zavodida barcha konstruktiv elementlarning to'liq ishlab chiqarish tsikli.
Yuqori energiya tejash va issiqlik izolyatsiya xususiyatlari
DoorHan mahsulotlari xonada yuqori issiqlik izolyatsiyasini ta'minlaydi va energiya tejash xususiyatlariga ega.
Har qanday ob'ektlar uchun katta modellar tanlovi
Katta ochilishlarni qoplash, yuqori ish intensivligi, ko'rishni saqlash va boshqalar.
Nosozliklarsiz uzoq muddatli ish
DoorHan mahsulotlari intensiv foydalanish uchun yaratilgan va yuqori korroziya bardoshligiga ega.
o'z ishlab chiqarish
Toshkentdagi o'z zavodida barcha konstruktiv elementlarning to'liq ishlab chiqarish tsikli.
Yuqori energiya tejash va issiqlik izolyatsiya xususiyatlari
DoorHan mahsulotlari xonada yuqori issiqlik izolyatsiyasini ta'minlaydi va energiya tejash xususiyatlariga ega.
Buyurtma berish
Kompaniya menejerlari barcha savollaringizga telefon orqali javob berishadi::