Catalog

Avtomatik sizli eshik komplekti (bitta harakatlanuvchi yengil qism) AD-SP drayvi uchun

Zamonaviy kirish joylarini tashkil etishda ko'pincha me'moriy cheklovlar uchraydi: tor o'tish joylari, stvorkalarni surish uchun bir yoki hatto ikkala devor yonining to'liq yo'qligi. Bunday murakkab sharoitlar uchun DoorHan konserni nafis va samarali yechimni taklif etadi — bitta harakatlanuvchi stvorkali avtomatik surilma eshiklar to'plami. Ushbu tizim standart ikki stvorkali eshikni o'rnatish imkonsiz bo'lgan joyda qulay, xavfsiz va avtomatlashtirilgan o'tishni ta'minlash uchun yaratilgan. U butiklar, dorixonalar, bank bo'limlari, biznes markazlari va tibbiyot muassasalaridagi ichki xonalar uchun ideal — qayerda har bir santimetr joy muhim bo'lsa va intensiv odamlar oqimida ishonchli ishlash talab etilsa.

Har qanday vazifalar uchun funksionallik va moslashuvchanlik. O'zining ixchamligiga qaramay, AD-SP privodi asosidagi bir stvorkali eshik flagman tizimlarning barcha funksiyalariga ega. Displeyli rejimlar o'zgartirgichi yordamida siz eshikning ishlash mantig'ini joriy ehtiyojlarga muvofiq osongina sozlashingiz mumkin:

  • Standart avtomatik rejim.
  • Oqimlarni boshqarish uchun "faqat kirish" yoki "faqat chiqish" rejimlari.
  • Tig'iz vaqtlar uchun "doimiy ochiq" rejimi.
  • Xonada issiqlikni saqlash uchun "qishki rejim".
  • Ishdan tashqari vaqtda xavfsizlikni ta'minlash uchun to'liq bloklangan rejim.

Tez yig'ish va estetika uchun muhandislik mukammalligi. Biz har bir detalni montaj tez bo'lishi va natija benuqson bo'lishi uchun o'ylab chiqdik:

  • Profillarning noyob mexanik birikmasi stvorkani minimal vaqt ichida to'g'ridan-to'g'ri ob'ektda yig'ish imkonini beradi, bu esa umumiy montaj muddatlarini sezilarli darajada qisqartiradi.
  • Kengaytirilgan yorug'lik tushadigan qism: Biriktirish texnologiyasi bizga ramka profillarini yupqaroq va nafisroq qilish imkonini berdi. Bu oynalangan maydonni kengaytiradi, kirishni yorug'roq, "havodorroq" va jozibaliroq qiladi.
  • To'ldirishning xilma-xilligi: Vazifaga qarab, stvorka 8 yoki 9 mm qalinlikdagi zarbaga chidamli chiniqtirilgan shisha yoki ko'cha kirishlari uchun 24 mm issiq ikki kamerali shisha paket bilan to'ldirilishi mumkin.

To'liq komplektatsiya va kafolatlangan ishonchlilik. Biz shunchaki profillar to'plamini emas, balki montajga tayyor to'liq jihozlangan tizimni taklif etamiz. To'plamga barcha kerakli narsalar kiradi: kuchli va sokin elektr dvigatel, intellektual kontroller, kombinatsiyalangan harakat va xavfsizlik datchiklari, karetkalar, remen, stoporlar va hatto zichlagichli rels. Bu barcha komponentlarning 100% mosligini va ularning muvofiqlashtirilgan ishlashini kafolatlaydi. Konstruksiyani optimallashtirish va metall sig'imini kamaytirish tufayli biz bozorda eng jozibador narxlardan birini taklif etamiz. Tizimning butun komplektatsiyasiga 2 yillik kafolat beriladi, bu mahsulot sifati va uzoq muddatliligiga bo'lgan ishonchimizni tasdiqlaydi.

Qo'llanilish sohasi:
Savdo va biznes markazlari
Xususiy sektor
Afzalliklar
Funktsionallik
Mahsulotni olti rejimda ishlatish imkoniyati odamlar o‘tishini tashkil etish bo‘yicha har qanday vazifani hal qilish imkonini beradi.
To‘ldirishning turli xil variantlari
To‘rtinchi rejimda 8 yoki 9 mm qalinlikdagi xavfsiz shishadan yoki 24 mm li shishali paketdan to‘ldirish imkoniyati.
Oson yig‘ish
Unikal quritilgan ulanish tizimi yaratish vaqtini sezilarli darajada qisqartirishga va mahsulotni yig‘ish hamda o‘rnatishni osonlashtirishga, shuningdek, yorug‘likni o‘tkazish darajasini oshirishga imkon beradi.
Mahsulotlarning turli konstruktsiyalari va klasslari
Afzallik har qanday eshik o‘tkazgichiga optimal konstruktsiyani tanlash imkonini beradi: yopiq ustun va devor bo‘lmagan holatda, cheklangan (yetarli bo‘lmagan) ustun kengligida yoki boshqa chiqishlar yo‘qligida.
Jozibali narx
Metall talabini kamaytirish va profil tizimini optimallashtirish hisobiga mahsulotning narxi jozibali bo‘ladi.
Funktsionallik
Mahsulotni olti rejimda ishlatish imkoniyati odamlar o‘tishini tashkil etish bo‘yicha har qanday vazifani hal qilish imkonini beradi.
To‘ldirishning turli xil variantlari
To‘rtinchi rejimda 8 yoki 9 mm qalinlikdagi xavfsiz shishadan yoki 24 mm li shishali paketdan to‘ldirish imkoniyati.
Oson yig‘ish
Unikal quritilgan ulanish tizimi yaratish vaqtini sezilarli darajada qisqartirishga va mahsulotni yig‘ish hamda o‘rnatishni osonlashtirishga, shuningdek, yorug‘likni o‘tkazish darajasini oshirishga imkon beradi.
Mahsulotlarning turli konstruktsiyalari va klasslari
Afzallik har qanday eshik o‘tkazgichiga optimal konstruktsiyani tanlash imkonini beradi: yopiq ustun va devor bo‘lmagan holatda, cheklangan (yetarli bo‘lmagan) ustun kengligida yoki boshqa chiqishlar yo‘qligida.
Jozibali narx
Metall talabini kamaytirish va profil tizimini optimallashtirish hisobiga mahsulotning narxi jozibali bo‘ladi.
Dizayn
To‘ldirish dizayni
Standart ranglar
Eshiklarning ikki tomondan bo‘yash mavjudligi. Har qanday turdagi to‘ldirish, 8, 9 va 24 mm qalinlikda
Eshiklarning ikki tomondan bo‘yash mavjudligi. Har qanday turdagi to‘ldirish, 8, 9 va 24 mm qalinlikda
RAL 9016 (oq)
RAL 9016 (oq)
RAL 9006 (silliq metall)
RAL 9006 (silliq metall)
RAL 7004 (kulrang)
RAL 7004 (kulrang)
RAL 1014 (bej)
RAL 1014 (bej)
RAL 2004 (to'q sariq)
RAL 2004 (to'q sariq)
RAL 3020 (qizil)
RAL 3020 (qizil)
RAL 3005 (bordo)
RAL 3005 (bordo)
RAL 6018 (ochiq yashil)
RAL 6018 (ochiq yashil)
RAL 6005 (yashil)
RAL 6005 (yashil)
RAL 7016 (antratsit)
RAL 7016 (antratsit)
RAL 5005 (ko'k)
RAL 5005 (ko'k)
RAL 8017 (jigarrang-qizil)
RAL 8017 (jigarrang-qizil)
RAL 9005 (qora)
RAL 9005 (qora)
RAL 8014 (jigarrang)
RAL 8014 (jigarrang)
Komplektatsiya
Bazaviy to'plam
Qo'shimcha to'plam
Elektromotor (art. AD-01SP)

Elektromotor (art. AD-01SP)

Kontroller (art. AD-03SP)

Kontroller (art. AD-03SP)

Rejimlarni o'zgartirish tugmasi va displey (art. AD-08SP)

Rejimlarni o'zgartirish tugmasi va displey (art. AD-08SP)

Harakat sensori (art. AD-06, 1 dona)

Harakat sensori (art. AD-06, 1 dona)

Kompleks harakat va xavfsizlik sensori (art. AD-34, 1 dona)

Kompleks harakat va xavfsizlik sensori (art. AD-34, 1 dona)

Tortish roliki (art. AD-14SP, 1 dona)

Tortish roliki (art. AD-14SP, 1 dona)

Karetkalar to‘plami (art. AD-15SP, 4 dona) AD-SP drayvda

Karetkalar to‘plami (art. AD-15SP, 4 dona) AD-SP drayvda

* Karetkalar to‘plami (4 dona) tashqi eshiklar uchun AD-SP-TELESCOPE drayvda

* Karetkalar to‘plami (4 dona) tashqi eshiklar uchun AD-SP-TELESCOPE drayvda

* Karetkalar to‘plami (4 dona) ichki eshiklar uchun AD-SP-TELESCOPE drayvda

* Karetkalar to‘plami (4 dona) ichki eshiklar uchun AD-SP-TELESCOPE drayvda

Yon qopqoq to‘plami (art. AD-16SP, 2 dona) AD-SP da / (art. AD-16SPTel, 2 dona) AD-SP-TELESCOPE da

Yon qopqoq to‘plami (art. AD-16SP, 2 dona) AD-SP da / (art. AD-16SPTel, 2 dona) AD-SP-TELESCOPE da

Drayv kamar (art. AD-17, 11 m)

Drayv kamar (art. AD-17, 11 m)

To‘plam to‘xtatuvchilari (art. AD-19SP, 2 dona) AD-SP drayvda

To‘plam to‘xtatuvchilari (art. AD-19SP, 2 dona) AD-SP drayvda

To‘plam to‘xtatuvchilari (2 dona) AD-SP-TELESCOPE drayvda

To‘plam to‘xtatuvchilari (2 dona) AD-SP-TELESCOPE drayvda

Kamar ushlagichlari to‘plami (art. AD-20SP, 2 dona)

Kamar ushlagichlari to‘plami (art. AD-20SP, 2 dona)

Pastki yo‘naltiruvchi (art. TPP-001-32D, 2 dona)

Pastki yo‘naltiruvchi (art. TPP-001-32D, 2 dona)

Qopqoq bilan korob (art. AHDS35 2009, 2011, 2012) AD-SP drayvi uchun / (art. AHDS35 2019-2023) AD-SP-TELESCOPE drayvi uchun

Qopqoq bilan korob (art. AHDS35 2009, 2011, 2012) AD-SP drayvi uchun / (art. AHDS35 2019-2023) AD-SP-TELESCOPE drayvi uchun

Rel’s bilan muhr (art. AHDS35 2010 c AD-29) AD-SP drayvi uchun / (art. AHDS35 2023 c AD-29TEL, 2 dona) AD-SP-TELESCOPE drayvi uchun

Rel’s bilan muhr (art. AHDS35 2010 c AD-29) AD-SP drayvi uchun / (art. AHDS35 2023 c AD-29TEL, 2 dona) AD-SP-TELESCOPE drayvi uchun

Fotoelektronli element uchun profil (art. AHDS35 0213, 2 dona)

Fotoelektronli element uchun profil (art. AHDS35 0213, 2 dona)

Eshik profilining vertikal holati, torasida 30 × 35 mm o‘chish bilan (art. AHDS35 0106.FREZ)

Eshik profilining vertikal holati, torasida 30 × 35 mm o‘chish bilan (art. AHDS35 0106.FREZ)

Eshik profilining gorizontal holati 64 × 35 mm (art. AHDS35 0108)

Eshik profilining gorizontal holati 64 × 35 mm (art. AHDS35 0108)

Qaytib o‘rnatish plastinkalari to‘plami (art. AD-100KIT, 2 to‘plam)

Qaytib o‘rnatish plastinkalari to‘plami (art. AD-100KIT, 2 to‘plam)

AD-07SP — elektromexanik qulflama AD-SP drayvi uchun, ruxsatsiz kirishdan ishonchli himoya qiladi / * (art. AD-07SPTEL) AD-SP-TELESCOPE drayvi uchun

AD-07SP — elektromexanik qulflama AD-SP drayvi uchun, ruxsatsiz kirishdan ishonchli himoya qiladi / * (art. AD-07SPTEL) AD-SP-TELESCOPE drayvi uchun

AD-27 — akkumulyator batareyasi (sig‘imi 2,0 Ah), tashqi elektr ta’minotisiz eshikning 15–30 daqiqa davomida (170 tsikl) uzluksiz ishlashini ta’minlaydi.

AD-27 — akkumulyator batareyasi (sig‘imi 2,0 Ah), tashqi elektr ta’minotisiz eshikning 15–30 daqiqa davomida (170 tsikl) uzluksiz ishlashini ta’minlaydi.

AD-30 — simsiz (bilak) PUSH tugmasi. Harakat sensori o‘rniga eshikni qo‘l bilan boshqarish uchun ishlatiladi (tugmani bosish orqali eshikni ochish)

AD-30 — simsiz (bilak) PUSH tugmasi. Harakat sensori o‘rniga eshikni qo‘l bilan boshqarish uchun ishlatiladi (tugmani bosish orqali eshikni ochish)

AD-31 — bexat kontaktli infraqizil tugma. Harakat sensori o‘rniga eshikni qo‘l bilan bexat kontaktli boshqarish uchun ishlatiladi (1 dan 15 sm gacha)

AD-31 — bexat kontaktli infraqizil tugma. Harakat sensori o‘rniga eshikni qo‘l bilan bexat kontaktli boshqarish uchun ishlatiladi (1 dan 15 sm gacha)

AD-32 — kalit bilan ishlash rejimini o‘zgartirish tugmasi (5 rejim). Displeyli rejim almashtirgich o‘rniga ishlatiladi va eshikni boshqarishga cheklangan kirishni ta’minlaydi

AD-32 — kalit bilan ishlash rejimini o‘zgartirish tugmasi (5 rejim). Displeyli rejim almashtirgich o‘rniga ishlatiladi va eshikni boshqarishga cheklangan kirishni ta’minlaydi

AD-34 — kompleks harakat va xavfsizlik sensori. Bir korpusda mikrovolnovoy harakat radarini va o‘tish joyidagi infraqizil xavfsizlik pardasini birlashtiradi

AD-34 — kompleks harakat va xavfsizlik sensori. Bir korpusda mikrovolnovoy harakat radarini va o‘tish joyidagi infraqizil xavfsizlik pardasini birlashtiradi

AD-09 — fotoelektronli elementlar to‘plami, eshik o‘tish joyida xavfsizlikni ta’minlaydi

AD-09 — fotoelektronli elementlar to‘plami, eshik o‘tish joyida xavfsizlikni ta’minlaydi

Texnik tavsif
O'lchamlar jadvali
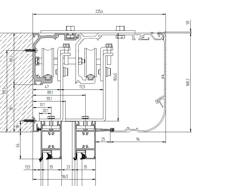
Konstruktsiya
Standart konstruktiv yechimlar
Texnik xususiyatlar
Mahsulotni ishlatish shartlari
Qadoqlash
Параметр
Показатель
Высота проема, мм
1 700–3 000
Ширина проема для одностворчатых дверей, мм
700–2 500
Ширина проема для одностворчатых дверей, мм
1 400–5 000 (bitta harakatsiz eshik bilan)
Притолока, мм
125 dan kam emas
  1. Eshik profilining vertikal holati
  2. Eshik profilining gorizontal holati
  3. Shtapik
  4. To‘ldirish 8 mm, 9 mm (shtapik bilan) yoki 24 mm (shtapiksiz)
  5. Ichki muhr
  6. Tashqi muhr
  7. Markaziy muhr

Bitta eshik (chapga ochilish)

Bitta eshik (chapga ochilish)

Усл. обозначение, наименование параметра Расчетная формула
B, мм Ширина проема 2500 gacha
H, мм Высота проема 3000 gacha
Ikki eshikli eshik

Ikki eshikli eshik

Усл. обозначение, наименование параметра Расчетная формула
B, мм Ширина проема 3000 gacha
H, мм Высота проема 3000 gacha
Bitta eshik, bitta harakatsiz eshik bilan (chapga ochilish)

Bitta eshik, bitta harakatsiz eshik bilan (chapga ochilish)

Усл. обозначение, наименование параметра Расчетная формула
B, мм Ширина проема 5000 gacha
H, мм Высота проема 3000 gacha
Ikki eshikli eshik, ikkita harakatsiz eshik bilan

Ikki eshikli eshik, ikkita harakatsiz eshik bilan

Усл. обозначение, наименование параметра Расчетная формула
B, мм Ширина проема 6000 gacha
H, мм Высота проема 3000 gacha
Bitta eshik, bitta harakatsiz eshik va framuğa bilan (o‘ngga ochilish)

Bitta eshik, bitta harakatsiz eshik va framuğa bilan (o‘ngga ochilish)

Усл. обозначение, наименование параметра Расчетная формула
B, мм Ширина проема 1184 dan 6200 gacha
H, мм Высота проема 2200 dan 4000 gacha
W, мм Ширина прохода 700 dan 3000 gacha
K, мм Высота прохода 1800 dan 3000 gacha
Ikki eshikli eshik, ikkita harakatsiz eshik va framuğa bilan

Ikki eshikli eshik, ikkita harakatsiz eshik va framuğa bilan

Усл. обозначение, наименование параметра Расчетная формула
B, мм Ширина проема 1806 dan 6200 gacha
H, мм Высота проема 2200 dan 4000 gacha
W, мм Ширина прохода 1000 dan 3000 gacha
K, мм Высота прохода 1800 dan 3000 gacha
Ikki eshikli eshik, ikkita butun shishadan yasalgan eshiklar bilan

Ikki eshikli eshik, ikkita butun shishadan yasalgan eshiklar bilan

Усл. обозначение, наименование параметра Расчетная формула
B, мм Ширина проема 3000 gacha
H, мм Высота проема 3000 gacha
Параметр Значение Примечание
Толщина профилей, мм 35
Толщина заполнения, мм 8, 9 yoki 24 Yengillashgan eshik
Максимальная высота, м 3
Максимальный вес створки, кг. 200/180 Bitta eshik / Ikki eshikli eshik
Двигатель, В 24
Мощность, Вт 100
Напряжение питания, В 220
Диапазон рабочих температур, °С -20…+70
Интенсивность использования, % 100 Intensiv o‘tish uchun, kun-u tun

1. Eshikning elektr drayvi korobkasini xona tashqarisida, ko‘chadan o‘rnatish qat'iyan man etiladi.

2. Eshikning eshiklarining qo‘l bilan ochilishi va yopilishi faqat favqulodda holatlarda (elektr energiyasi yo‘qligida) yoki sozlash ishlarini bajarishda amalga oshiriladi.

3. Eshiklarni qo‘l bilan ochish va yopishda katta kuch sarflamang. Eshiklarni tezkor itarish bilan ochish taqiqlanadi.

4. Bolalar va hayvonlarning eshiklar ochilish/yopilish zonasida uzoq vaqt bo‘lishini nazorat qiling.

5. Qattiq taqiqlanadi — qo‘llar bilan bloklangan eshiklarni ochishga urinish, barmoqlarni yoki boshqa tashqi buyumlarni harakatlanuvchi eshik va pol o‘rtasidagi bo‘shliqlarga tiqish, chunki bu jarohatlarga olib kelishi mumkin.

6. Eshiklar ochilishida yoki yopilishida ularga zarba bermang va ularning ochilishiga yoki yopilishiga to‘sqinlik qilmaslikka harakat qilmang. Eshiklar harakatlanadigan zonada yugurish yoki turish taqiqlanadi.

7. Eshiklar harakatlanayotgan paytda ularning yo‘lida tashqi buyumlar va axlatning yo‘qligini nazorat qiling: ularning borligi eshiklarning egilishiga, bloklanishiga va eshik avtomatikasining ishlamasligiga olib kelishi mumkin.

8. Polga o‘rnatilgan yo‘naltiruvchi va karetkalar rulonlarini ifloslanishdan saqlaning, chunki bu eshiklarning silliq harakatini buzilishiga, bloklanishiga va elektr drayvining ishlamasligiga olib kelishi mumkin.

9. Avtomatik eshiklarning eshik ochish/yopish tsikli davomida eshiklar yo‘naltiruvchi rels bo‘ylab silliq harakatlanishi kerak, eshiklar to‘liq ochilgan yoki yopilgan holatga yetganda esa majburiy to‘xtash amalga oshirilishi lozim.

10. Eshikni xavfsizlik elementlari, masalan, fotoelektronli elementlar yoki infraqizil pardalar o‘rnatilmagan holda ishlatish qat'iyan taqiqlanadi.

Упаковка в картон Характеристики упаковки
Drevosinli poddon pastki qismida polistirol bloklar bilan. Profilgacha qog‘ozli karton bilan o‘ralgan va PP lentasi bilan mustahkamlangan
Упаковка в пузырчатую пленку Характеристики упаковки
Qadoqlash profillarni havo pufakchalari bilan o‘ralgan va logotipli skotch bilan mustahkamlangan shaklda taqdim etiladi. Bir qadoq profilning og‘irligi 35 kg dan oshmaydi
Упаковка на палету Характеристики упаковки
Havo pufakchalari bilan o‘ralgan profil paketlarini polistirol ramkaga joylashtirib, skotch bilan mustahkamlaydi
Qo‘shimcha tavsif chop etish

Sirpanadigan eshiklarni alohida o‘rnatish mumkin, shuningdek, binoning fasadiga yoki kirish guruhiga integratsiya qilish mumkin.

O'rnatish
Montaj usullari
Bino qurilishi uchun tayyorgarlik
Avtomatik eshikning korobkasini o‘tish joyiga o‘rnatish
Avtomatik eshikning korobkasini o‘tish joyiga o‘rnatish
Telescopik eshik korobkasini o‘tish joyiga o‘rnatish
Telescopik eshik korobkasini o‘tish joyiga o‘rnatish
  1. O‘tish joyining parametrlari: N — o‘tish joyining balandligi (toza poldan o‘tish joyining yuqori qismigacha bo‘lgan masofa); B — o‘tish joyining kengligi (chap tomondan o‘ng tomonga bo‘lgan masofa); h — yopiq ustunning balandligi (o‘tish joyining yuqori qismidan shiftgacha bo‘lgan masofa). Yopiq ustun, o‘tish joyining kengligi va balandligi kamida ikki joydan o‘lchanadi. Yakuniy o‘lcham har doim eng kichik qiymatga asoslanadi.
  2. Konstruktsiyani sifatli o‘rnatish va uning keyinchalik ishonchli ishlashini ta’minlash uchun, xonadagi o‘tish joyini tayyorlash zarur. O‘tish joyining tozaligiga qo‘yilgan ma’lum talablar mavjud: O‘tish joyi to‘g‘ri burchakli bo‘lishi kerak. Ramka yuzasining tekis va silliq bo‘lishi, gipsli eritmaning ortiqchalari va yoriqlar bo‘lmasligi kerak. Pol yuzasi tekis, gorizontal bo‘lishi kerak, chiqishlar va chukurliklar bo‘lmasligi lozim. 1 metrga 1 mm gacha ogishlarga ruxsat etiladi. Vertikal va gorizontal yuzalar tekis bo‘lishi kerak, 1 metrga 1 mm gacha ogishlarga ruxsat etiladi. Agar o‘tish joylari yuqoridagi talablarga muvofiq bo‘lmasa, o‘lchovlarni olish va o‘rnatishdan oldin ushbu ogishlar bartaraf etilishi kerak. Yopiq ustun va yon devorlar bir tekisda bo‘lishi kerak. O‘tish joyining ramkasi mustahkam konstruktsiya, payvandlangan truba, fasad profili yoki vitraj shaklida bo‘lishi kerak
Hujjatlar
Ko'rsatmalar
Pasportlar va sertifikatlar
Chizmalar

«AD-SP drayverli avtomatik suriladigan eshik» qo'llanmasi

«AD-SP-TELESCOPE drayverli teleskopik eshik» qo'llanmasi

Avtomatik/teleskopik eshiklarning yengillashtirilgan qapqog'ini yig'ish bo'yicha qo'llanma

«Antipanika» (ochilish funksiyasi bilan) avtomatik eshiklar uchun qapqoqni yig'ish bo'yicha qo'llanma

Framuga va avtomatik eshik bilan konstruksiyalarni yig'ish bo'yicha qo'llanma

AD-34 kombinatsiyalangan harakat va xavfsizlik sensori sozlash bo'yicha qo'llanma

O'chish joyini tayyorlash va montaj qilish bo'yicha talablar

Avtomatik suriladigan eshik pasporti / AD-SP / AD-SP-TELESCOPE drayveri

Alyuminiy profil uchun moslik sertifikati

Avtomatik eshiklar uchun drayverlar bo'yicha moslik deklaratsiyasi

Asosiy eshikning profil va qismlari katalogi (arxiv)

Avtomatik eshik uchun profil va qismlar katalogi, yengil eshiklar bilan

Telescopik eshik uchun profil va qismlar katalogi, yengil eshiklar bilan

Avtomatik eshik uchun «antipanika» profil va qismlari katalogi

Kafolat majburiyatlari chop etish

Mijozga tizimni to‘liq jihozlash uchun 2 yil kafolat beriladi, agar ekspluatatsiya shartlariga rioya qilinsa, jo‘natuvchi sanadan boshlab.

Yangi mahsulotlar
Simsiz (qo'l osti) tugma AD-30 qo'lda ochish boshqaruvi uchun ishlatiladi va u nafaqat toza xonalarda (operatsion va laboratoriya bloklari), balki ofis va savdo xonalarida ham qo'llaniladi.

Simsiz (qo'l osti) tugma AD-30 qo'lda ochish boshqaruvi uchun ishlatiladi va u nafaqat toza xonalarda (operatsion va laboratoriya bloklari), balki ofis va savdo xonalarida ham qo'llaniladi.

AD-34 sensori — kombinirovangan turdagi qurilma bo'lib, bir korpusda mikrovavta harakat radarini va infraqizil mavjudlik pardasini birlashtiradi. Sensori, AD-SP drayverli avtomatik suriladigan eshik tarkibida o'rnatilganda, xavfsizlik fotoelektron juftligi bilan birgalikda yoki uning o'rnida ishlashi mumkin.

AD-34 sensori — kombinirovangan turdagi qurilma bo'lib, bir korpusda mikrovavta harakat radarini va infraqizil mavjudlik pardasini birlashtiradi. Sensori, AD-SP drayverli avtomatik suriladigan eshik tarkibida o'rnatilganda, xavfsizlik fotoelektron juftligi bilan birgalikda yoki uning o'rnida ishlashi mumkin.

Dizayn
To‘ldirish dizayni
Eshiklarning ikki tomondan bo‘yash mavjudligi. Har qanday turdagi to‘ldirish, 8, 9 va 24 mm qalinlikda
Eshiklarning ikki tomondan bo‘yash mavjudligi. Har qanday turdagi to‘ldirish, 8, 9 va 24 mm qalinlikda
Standart ranglar
RAL 9016 (oq)
RAL 9016 (oq)
RAL 9006 (silliq metall)
RAL 9006 (silliq metall)
RAL 7004 (kulrang)
RAL 7004 (kulrang)
RAL 1014 (bej)
RAL 1014 (bej)
RAL 2004 (to'q sariq)
RAL 2004 (to'q sariq)
RAL 3020 (qizil)
RAL 3020 (qizil)
RAL 3005 (bordo)
RAL 3005 (bordo)
RAL 6018 (ochiq yashil)
RAL 6018 (ochiq yashil)
RAL 6005 (yashil)
RAL 6005 (yashil)
RAL 7016 (antratsit)
RAL 7016 (antratsit)
RAL 5005 (ko'k)
RAL 5005 (ko'k)
RAL 8017 (jigarrang-qizil)
RAL 8017 (jigarrang-qizil)
RAL 9005 (qora)
RAL 9005 (qora)
RAL 8014 (jigarrang)
RAL 8014 (jigarrang)
Komplektatsiya
Bazaviy to'plam
Elektromotor (art. AD-01SP)

Elektromotor (art. AD-01SP)

Kontroller (art. AD-03SP)

Kontroller (art. AD-03SP)

Rejimlarni o'zgartirish tugmasi va displey (art. AD-08SP)

Rejimlarni o'zgartirish tugmasi va displey (art. AD-08SP)

Harakat sensori (art. AD-06, 1 dona)

Harakat sensori (art. AD-06, 1 dona)

Kompleks harakat va xavfsizlik sensori (art. AD-34, 1 dona)

Kompleks harakat va xavfsizlik sensori (art. AD-34, 1 dona)

Tortish roliki (art. AD-14SP, 1 dona)

Tortish roliki (art. AD-14SP, 1 dona)

Karetkalar to‘plami (art. AD-15SP, 4 dona) AD-SP drayvda

Karetkalar to‘plami (art. AD-15SP, 4 dona) AD-SP drayvda

* Karetkalar to‘plami (4 dona) tashqi eshiklar uchun AD-SP-TELESCOPE drayvda

* Karetkalar to‘plami (4 dona) tashqi eshiklar uchun AD-SP-TELESCOPE drayvda

* Karetkalar to‘plami (4 dona) ichki eshiklar uchun AD-SP-TELESCOPE drayvda

* Karetkalar to‘plami (4 dona) ichki eshiklar uchun AD-SP-TELESCOPE drayvda

Yon qopqoq to‘plami (art. AD-16SP, 2 dona) AD-SP da / (art. AD-16SPTel, 2 dona) AD-SP-TELESCOPE da

Yon qopqoq to‘plami (art. AD-16SP, 2 dona) AD-SP da / (art. AD-16SPTel, 2 dona) AD-SP-TELESCOPE da

Drayv kamar (art. AD-17, 11 m)

Drayv kamar (art. AD-17, 11 m)

To‘plam to‘xtatuvchilari (art. AD-19SP, 2 dona) AD-SP drayvda

To‘plam to‘xtatuvchilari (art. AD-19SP, 2 dona) AD-SP drayvda

To‘plam to‘xtatuvchilari (2 dona) AD-SP-TELESCOPE drayvda

To‘plam to‘xtatuvchilari (2 dona) AD-SP-TELESCOPE drayvda

Kamar ushlagichlari to‘plami (art. AD-20SP, 2 dona)

Kamar ushlagichlari to‘plami (art. AD-20SP, 2 dona)

Pastki yo‘naltiruvchi (art. TPP-001-32D, 2 dona)

Pastki yo‘naltiruvchi (art. TPP-001-32D, 2 dona)

Qopqoq bilan korob (art. AHDS35 2009, 2011, 2012) AD-SP drayvi uchun / (art. AHDS35 2019-2023) AD-SP-TELESCOPE drayvi uchun

Qopqoq bilan korob (art. AHDS35 2009, 2011, 2012) AD-SP drayvi uchun / (art. AHDS35 2019-2023) AD-SP-TELESCOPE drayvi uchun

Rel’s bilan muhr (art. AHDS35 2010 c AD-29) AD-SP drayvi uchun / (art. AHDS35 2023 c AD-29TEL, 2 dona) AD-SP-TELESCOPE drayvi uchun

Rel’s bilan muhr (art. AHDS35 2010 c AD-29) AD-SP drayvi uchun / (art. AHDS35 2023 c AD-29TEL, 2 dona) AD-SP-TELESCOPE drayvi uchun

Fotoelektronli element uchun profil (art. AHDS35 0213, 2 dona)

Fotoelektronli element uchun profil (art. AHDS35 0213, 2 dona)

Eshik profilining vertikal holati, torasida 30 × 35 mm o‘chish bilan (art. AHDS35 0106.FREZ)

Eshik profilining vertikal holati, torasida 30 × 35 mm o‘chish bilan (art. AHDS35 0106.FREZ)

Eshik profilining gorizontal holati 64 × 35 mm (art. AHDS35 0108)

Eshik profilining gorizontal holati 64 × 35 mm (art. AHDS35 0108)

Qaytib o‘rnatish plastinkalari to‘plami (art. AD-100KIT, 2 to‘plam)

Qaytib o‘rnatish plastinkalari to‘plami (art. AD-100KIT, 2 to‘plam)

Qo'shimcha to'plam
AD-07SP — elektromexanik qulflama AD-SP drayvi uchun, ruxsatsiz kirishdan ishonchli himoya qiladi / * (art. AD-07SPTEL) AD-SP-TELESCOPE drayvi uchun

AD-07SP — elektromexanik qulflama AD-SP drayvi uchun, ruxsatsiz kirishdan ishonchli himoya qiladi / * (art. AD-07SPTEL) AD-SP-TELESCOPE drayvi uchun

AD-27 — akkumulyator batareyasi (sig‘imi 2,0 Ah), tashqi elektr ta’minotisiz eshikning 15–30 daqiqa davomida (170 tsikl) uzluksiz ishlashini ta’minlaydi.

AD-27 — akkumulyator batareyasi (sig‘imi 2,0 Ah), tashqi elektr ta’minotisiz eshikning 15–30 daqiqa davomida (170 tsikl) uzluksiz ishlashini ta’minlaydi.

AD-30 — simsiz (bilak) PUSH tugmasi. Harakat sensori o‘rniga eshikni qo‘l bilan boshqarish uchun ishlatiladi (tugmani bosish orqali eshikni ochish)

AD-30 — simsiz (bilak) PUSH tugmasi. Harakat sensori o‘rniga eshikni qo‘l bilan boshqarish uchun ishlatiladi (tugmani bosish orqali eshikni ochish)

AD-31 — bexat kontaktli infraqizil tugma. Harakat sensori o‘rniga eshikni qo‘l bilan bexat kontaktli boshqarish uchun ishlatiladi (1 dan 15 sm gacha)

AD-31 — bexat kontaktli infraqizil tugma. Harakat sensori o‘rniga eshikni qo‘l bilan bexat kontaktli boshqarish uchun ishlatiladi (1 dan 15 sm gacha)

AD-32 — kalit bilan ishlash rejimini o‘zgartirish tugmasi (5 rejim). Displeyli rejim almashtirgich o‘rniga ishlatiladi va eshikni boshqarishga cheklangan kirishni ta’minlaydi

AD-32 — kalit bilan ishlash rejimini o‘zgartirish tugmasi (5 rejim). Displeyli rejim almashtirgich o‘rniga ishlatiladi va eshikni boshqarishga cheklangan kirishni ta’minlaydi

AD-34 — kompleks harakat va xavfsizlik sensori. Bir korpusda mikrovolnovoy harakat radarini va o‘tish joyidagi infraqizil xavfsizlik pardasini birlashtiradi

AD-34 — kompleks harakat va xavfsizlik sensori. Bir korpusda mikrovolnovoy harakat radarini va o‘tish joyidagi infraqizil xavfsizlik pardasini birlashtiradi

AD-09 — fotoelektronli elementlar to‘plami, eshik o‘tish joyida xavfsizlikni ta’minlaydi

AD-09 — fotoelektronli elementlar to‘plami, eshik o‘tish joyida xavfsizlikni ta’minlaydi

Texnik tavsif
O'lchamlar jadvali
Параметр
Показатель
Высота проема, мм
1 700–3 000
Ширина проема для одностворчатых дверей, мм
700–2 500
Ширина проема для одностворчатых дверей, мм
1 400–5 000 (bitta harakatsiz eshik bilan)
Притолока, мм
125 dan kam emas
Konstruktsiya
  1. Eshik profilining vertikal holati
  2. Eshik profilining gorizontal holati
  3. Shtapik
  4. To‘ldirish 8 mm, 9 mm (shtapik bilan) yoki 24 mm (shtapiksiz)
  5. Ichki muhr
  6. Tashqi muhr
  7. Markaziy muhr
Standart konstruktiv yechimlar

Bitta eshik (chapga ochilish)

Bitta eshik (chapga ochilish)

Усл. обозначение, наименование параметра Расчетная формула
B, мм Ширина проема 2500 gacha
H, мм Высота проема 3000 gacha
Ikki eshikli eshik

Ikki eshikli eshik

Усл. обозначение, наименование параметра Расчетная формула
B, мм Ширина проема 3000 gacha
H, мм Высота проема 3000 gacha
Bitta eshik, bitta harakatsiz eshik bilan (chapga ochilish)

Bitta eshik, bitta harakatsiz eshik bilan (chapga ochilish)

Усл. обозначение, наименование параметра Расчетная формула
B, мм Ширина проема 5000 gacha
H, мм Высота проема 3000 gacha
Ikki eshikli eshik, ikkita harakatsiz eshik bilan

Ikki eshikli eshik, ikkita harakatsiz eshik bilan

Усл. обозначение, наименование параметра Расчетная формула
B, мм Ширина проема 6000 gacha
H, мм Высота проема 3000 gacha
Bitta eshik, bitta harakatsiz eshik va framuğa bilan (o‘ngga ochilish)

Bitta eshik, bitta harakatsiz eshik va framuğa bilan (o‘ngga ochilish)

Усл. обозначение, наименование параметра Расчетная формула
B, мм Ширина проема 1184 dan 6200 gacha
H, мм Высота проема 2200 dan 4000 gacha
W, мм Ширина прохода 700 dan 3000 gacha
K, мм Высота прохода 1800 dan 3000 gacha
Ikki eshikli eshik, ikkita harakatsiz eshik va framuğa bilan

Ikki eshikli eshik, ikkita harakatsiz eshik va framuğa bilan

Усл. обозначение, наименование параметра Расчетная формула
B, мм Ширина проема 1806 dan 6200 gacha
H, мм Высота проема 2200 dan 4000 gacha
W, мм Ширина прохода 1000 dan 3000 gacha
K, мм Высота прохода 1800 dan 3000 gacha
Ikki eshikli eshik, ikkita butun shishadan yasalgan eshiklar bilan

Ikki eshikli eshik, ikkita butun shishadan yasalgan eshiklar bilan

Усл. обозначение, наименование параметра Расчетная формула
B, мм Ширина проема 3000 gacha
H, мм Высота проема 3000 gacha
Texnik xususiyatlar
Параметр Значение Примечание
Толщина профилей, мм 35
Толщина заполнения, мм 8, 9 yoki 24 Yengillashgan eshik
Максимальная высота, м 3
Максимальный вес створки, кг. 200/180 Bitta eshik / Ikki eshikli eshik
Двигатель, В 24
Мощность, Вт 100
Напряжение питания, В 220
Диапазон рабочих температур, °С -20…+70
Интенсивность использования, % 100 Intensiv o‘tish uchun, kun-u tun
Mahsulotni ishlatish shartlari

1. Eshikning elektr drayvi korobkasini xona tashqarisida, ko‘chadan o‘rnatish qat'iyan man etiladi.

2. Eshikning eshiklarining qo‘l bilan ochilishi va yopilishi faqat favqulodda holatlarda (elektr energiyasi yo‘qligida) yoki sozlash ishlarini bajarishda amalga oshiriladi.

3. Eshiklarni qo‘l bilan ochish va yopishda katta kuch sarflamang. Eshiklarni tezkor itarish bilan ochish taqiqlanadi.

4. Bolalar va hayvonlarning eshiklar ochilish/yopilish zonasida uzoq vaqt bo‘lishini nazorat qiling.

5. Qattiq taqiqlanadi — qo‘llar bilan bloklangan eshiklarni ochishga urinish, barmoqlarni yoki boshqa tashqi buyumlarni harakatlanuvchi eshik va pol o‘rtasidagi bo‘shliqlarga tiqish, chunki bu jarohatlarga olib kelishi mumkin.

6. Eshiklar ochilishida yoki yopilishida ularga zarba bermang va ularning ochilishiga yoki yopilishiga to‘sqinlik qilmaslikka harakat qilmang. Eshiklar harakatlanadigan zonada yugurish yoki turish taqiqlanadi.

7. Eshiklar harakatlanayotgan paytda ularning yo‘lida tashqi buyumlar va axlatning yo‘qligini nazorat qiling: ularning borligi eshiklarning egilishiga, bloklanishiga va eshik avtomatikasining ishlamasligiga olib kelishi mumkin.

8. Polga o‘rnatilgan yo‘naltiruvchi va karetkalar rulonlarini ifloslanishdan saqlaning, chunki bu eshiklarning silliq harakatini buzilishiga, bloklanishiga va elektr drayvining ishlamasligiga olib kelishi mumkin.

9. Avtomatik eshiklarning eshik ochish/yopish tsikli davomida eshiklar yo‘naltiruvchi rels bo‘ylab silliq harakatlanishi kerak, eshiklar to‘liq ochilgan yoki yopilgan holatga yetganda esa majburiy to‘xtash amalga oshirilishi lozim.

10. Eshikni xavfsizlik elementlari, masalan, fotoelektronli elementlar yoki infraqizil pardalar o‘rnatilmagan holda ishlatish qat'iyan taqiqlanadi.

Qadoqlash
Упаковка в картон Характеристики упаковки
Drevosinli poddon pastki qismida polistirol bloklar bilan. Profilgacha qog‘ozli karton bilan o‘ralgan va PP lentasi bilan mustahkamlangan
Упаковка в пузырчатую пленку Характеристики упаковки
Qadoqlash profillarni havo pufakchalari bilan o‘ralgan va logotipli skotch bilan mustahkamlangan shaklda taqdim etiladi. Bir qadoq profilning og‘irligi 35 kg dan oshmaydi
Упаковка на палету Характеристики упаковки
Havo pufakchalari bilan o‘ralgan profil paketlarini polistirol ramkaga joylashtirib, skotch bilan mustahkamlaydi
Qo‘shimcha tavsif

Sirpanadigan eshiklarni alohida o‘rnatish mumkin, shuningdek, binoning fasadiga yoki kirish guruhiga integratsiya qilish mumkin.

O'rnatish
Montaj usullari
Avtomatik eshikning korobkasini o‘tish joyiga o‘rnatish
Avtomatik eshikning korobkasini o‘tish joyiga o‘rnatish
Telescopik eshik korobkasini o‘tish joyiga o‘rnatish
Telescopik eshik korobkasini o‘tish joyiga o‘rnatish
Bino qurilishi uchun tayyorgarlik
  1. O‘tish joyining parametrlari: N — o‘tish joyining balandligi (toza poldan o‘tish joyining yuqori qismigacha bo‘lgan masofa); B — o‘tish joyining kengligi (chap tomondan o‘ng tomonga bo‘lgan masofa); h — yopiq ustunning balandligi (o‘tish joyining yuqori qismidan shiftgacha bo‘lgan masofa). Yopiq ustun, o‘tish joyining kengligi va balandligi kamida ikki joydan o‘lchanadi. Yakuniy o‘lcham har doim eng kichik qiymatga asoslanadi.
  2. Konstruktsiyani sifatli o‘rnatish va uning keyinchalik ishonchli ishlashini ta’minlash uchun, xonadagi o‘tish joyini tayyorlash zarur. O‘tish joyining tozaligiga qo‘yilgan ma’lum talablar mavjud: O‘tish joyi to‘g‘ri burchakli bo‘lishi kerak. Ramka yuzasining tekis va silliq bo‘lishi, gipsli eritmaning ortiqchalari va yoriqlar bo‘lmasligi kerak. Pol yuzasi tekis, gorizontal bo‘lishi kerak, chiqishlar va chukurliklar bo‘lmasligi lozim. 1 metrga 1 mm gacha ogishlarga ruxsat etiladi. Vertikal va gorizontal yuzalar tekis bo‘lishi kerak, 1 metrga 1 mm gacha ogishlarga ruxsat etiladi. Agar o‘tish joylari yuqoridagi talablarga muvofiq bo‘lmasa, o‘lchovlarni olish va o‘rnatishdan oldin ushbu ogishlar bartaraf etilishi kerak. Yopiq ustun va yon devorlar bir tekisda bo‘lishi kerak. O‘tish joyining ramkasi mustahkam konstruktsiya, payvandlangan truba, fasad profili yoki vitraj shaklida bo‘lishi kerak
Kafolat majburiyatlari

Mijozga tizimni to‘liq jihozlash uchun 2 yil kafolat beriladi, agar ekspluatatsiya shartlariga rioya qilinsa, jo‘natuvchi sanadan boshlab.

Hujjatlar
Ko'rsatmalar

«AD-SP drayverli avtomatik suriladigan eshik» qo'llanmasi

«AD-SP-TELESCOPE drayverli teleskopik eshik» qo'llanmasi

Avtomatik/teleskopik eshiklarning yengillashtirilgan qapqog'ini yig'ish bo'yicha qo'llanma

«Antipanika» (ochilish funksiyasi bilan) avtomatik eshiklar uchun qapqoqni yig'ish bo'yicha qo'llanma

Framuga va avtomatik eshik bilan konstruksiyalarni yig'ish bo'yicha qo'llanma

AD-34 kombinatsiyalangan harakat va xavfsizlik sensori sozlash bo'yicha qo'llanma

O'chish joyini tayyorlash va montaj qilish bo'yicha talablar

Pasportlar va sertifikatlar

Avtomatik suriladigan eshik pasporti / AD-SP / AD-SP-TELESCOPE drayveri

Alyuminiy profil uchun moslik sertifikati

Avtomatik eshiklar uchun drayverlar bo'yicha moslik deklaratsiyasi

Chizmalar

Asosiy eshikning profil va qismlari katalogi (arxiv)

Avtomatik eshik uchun profil va qismlar katalogi, yengil eshiklar bilan

Telescopik eshik uchun profil va qismlar katalogi, yengil eshiklar bilan

Avtomatik eshik uchun «antipanika» profil va qismlari katalogi

Buyurtma berish
Kompaniya menejerlari barcha savollaringizga telefon orqali javob berishadi::