Catalog

AD-SP privodi uchun avtomatik suriladigan eshik komplekti (bitta harakatlanuvchi yengil qanot va yuqoridagi framuga)

Zamonaviy arxitektura yangi standartlarni belgilaydi: baland shiftlar, keng hollar va nostandart eshik o'tish joylari. Kirish balandligi 4 metrgacha yetishi mumkin bo'lgan bunday ob'ektlar uchun DoorHan konserni ixtisoslashtirilgan yechimni taklif etadi — bitta harakatlanuvchi stvorkali va yuqori framugali avtomatik surilma eshiklar to'plami. Ushbu konstruksiya savdo-ko'ngilochar markazlar, aeroportlar, mehmonxonalar va biznes-markazlar kabi baland shiftli binolarda avtomatik kirishni nafis va samarali tashkil etish imkonini beradi, bunda estetika va funksionallik saqlanib qoladi.

Benuqson ko'rinish va tez yig'ish uchun muhandislik yechimlari. Biz baland o'tish joylari bilan ishlashda asosiy vazifalarni hal qiluvchi konstruksiyani yaratdik:

  • Har qanday balandlikka moslashish: Yuqori harakatsiz framuga 4 metrgacha bo'lgan har qanday balandlikdagi o'tish joyini "yopish" imkonini beradi, bunda harakatlanuvchi stvorkaning o'zi o'tish uchun standart, qulay balandlikka ega bo'ladi. Bu katta hajmli va og'ir to'rt metrli eshik yaratish zaruratisiz mexanizmning ishonchliligi va yengil ishlashini ta'minlaydi.
  • Tez va aniq montaj: Profillarning noyob mexanik birikma texnologiyasi tufayli stvorkalar va framugani yig'ish analoglarga qaraganda ancha tezroq amalga oshiriladi. Bu montaj brigadasining ob'ektda bo'lish vaqtini va ishlarning umumiy narxini qisqartiradi.
  • Ko'proq yorug'lik va havo: Mexanik birikmali optimallashtirilgan profil tizimi alyuminiy ramkaning ko'rinadigan qismini kamaytirishga imkon berdi. Natijada oynalangan maydon (yorug'lik tushadigan qism) kengayadi va butun kirish zonasi yengilroq, zamonaviyroq va jozibaliroq ko'rinadi.

Funksionallik va moslashuvchanlik. Eshik odamlar oqimini boshqarish uchun intellektual funksiyalarning to'liq to'plami bilan jihozlangan. Displeyli rejimlar o'zgartirgichi yordamida oltita ish stsenariysidan birini tanlash mumkin: standart avtomatikdan tortib, xonada issiqlikni saqlash uchun kamaytirilgan ochilish kengligiga ega "qishki" rejim, "faqat kirish/chiqish" rejimi yoki to'liq bloklashgacha.

Ishonchlilik va iqtisodiy foyda. Biz o'rnatishga to'liq tayyor bo'lgan to'plamni taklif etamiz, unga barcha kerakli elementlar kiradi: privod va kontrollerdan tortib datchiklar va profil tizimigacha. Bu barcha komponentlarning ideal mosligini va muvofiqlashtirilgan ishlashini kafolatlaydi. Konstruksiyaning metall sig'imini kamaytirish tufayli biz bunday sinfdagi yechimlar uchun bozorda eng jozibador narxlardan birini ta'minlaymiz. Mahsulotimiz sifatiga bo'lgan ishonchimizni butun tizim komplektatsiyasiga ikki yillik kafolat bilan tasdiqlaymiz. DoorHan — bu eng dadil me'moriy loyihalarni amalga oshirishda sizning ishonchli hamkoringizdir.

Qo'llanilish sohasi:
Savdo va biznes markazlari
Xususiy sektor
Afzalliklar
Funksionallik
Mahsulotni olti rejimda ishlatish imkoniyati odamlar o‘tishi uchun har qanday vazifani hal qilishga imkon beradi.
Qanotning to‘ldirish turlari
Qanotni 8 yoki 9 mm qalinlikdagi xavfsiz shisha yoki 24 mm li shishali paket bilan to‘ldirish imkoniyati.
Oson yig‘ish
Unikal quruq ulanish tizimi qanotlarni yig‘ish va mahsulotni umuman o‘rnatish vaqtini sezilarli darajada qisqartirishga, shuningdek, yorug‘likni o'tkazish darajasini oshirishga imkon beradi.
Konstruktsiyalar va mahsulotlarning sinflari xilma-xilligi
Afzallik har qanday o‘chish uchun optimal konstruktsiyani tanlash imkonini beradi: yengil ustun va devorlar yo‘qligida, devorlarning cheklangan (etishmayotgan) kengligida, yoki boshqa chiqish yo‘llari mavjud bo‘lmagan holatlarda.
Jozibali narx
Metall ishlatishni kamaytirish va profil tizimini optimallashtirish hisobiga mahsulot jozibali narxga ega.
Funksionallik
Mahsulotni olti rejimda ishlatish imkoniyati odamlar o‘tishi uchun har qanday vazifani hal qilishga imkon beradi.
Qanotning to‘ldirish turlari
Qanotni 8 yoki 9 mm qalinlikdagi xavfsiz shisha yoki 24 mm li shishali paket bilan to‘ldirish imkoniyati.
Oson yig‘ish
Unikal quruq ulanish tizimi qanotlarni yig‘ish va mahsulotni umuman o‘rnatish vaqtini sezilarli darajada qisqartirishga, shuningdek, yorug‘likni o'tkazish darajasini oshirishga imkon beradi.
Konstruktsiyalar va mahsulotlarning sinflari xilma-xilligi
Afzallik har qanday o‘chish uchun optimal konstruktsiyani tanlash imkonini beradi: yengil ustun va devorlar yo‘qligida, devorlarning cheklangan (etishmayotgan) kengligida, yoki boshqa chiqish yo‘llari mavjud bo‘lmagan holatlarda.
Jozibali narx
Metall ishlatishni kamaytirish va profil tizimini optimallashtirish hisobiga mahsulot jozibali narxga ega.
Dizayn
To‘ldirish dizayni
Standart ranglar
Qanotlarning ikki tomondan bo‘yash imkoniyati. Har xil turdagi to‘ldirish, qalinligi 8, 9 va 24 mm
Qanotlarning ikki tomondan bo‘yash imkoniyati. Har xil turdagi to‘ldirish, qalinligi 8, 9 va 24 mm
RAL 9016 (oq)
RAL 9016 (oq)
RAL 9006 (silliq metall)
RAL 9006 (silliq metall)
RAL 7004 (kulrang)
RAL 7004 (kulrang)
RAL 1014 (bej)
RAL 1014 (bej)
RAL 2004 (to'q sariq)
RAL 2004 (to'q sariq)
RAL 3020 (qizil)
RAL 3020 (qizil)
RAL 3005 (bordo)
RAL 3005 (bordo)
RAL 6018 (ochiq yashil)
RAL 6018 (ochiq yashil)
RAL 6005 (yashil)
RAL 6005 (yashil)
RAL 7016 (antratsit)
RAL 7016 (antratsit)
RAL 5005 (ko'k)
RAL 5005 (ko'k)
RAL 8017 (jigarrang-qizil)
RAL 8017 (jigarrang-qizil)
RAL 9005 (qora)
RAL 9005 (qora)
RAL 8014 (jigarrang)
RAL 8014 (jigarrang)
Komplektatsiya
Bazaviy to'plam
Qo'shimcha to'plam
Elektromotor (art. AD-01SP)

Elektromotor (art. AD-01SP)

Kontroller (art. AD-03SP)

Kontroller (art. AD-03SP)

Rejimlar o'zgartirgichi, displey bilan (art. AD-08SP)

Rejimlar o'zgartirgichi, displey bilan (art. AD-08SP)

Harakat sensori (art. AD-06, 1 dona)

Harakat sensori (art. AD-06, 1 dona)

Kompleks harakat va xavfsizlik sensori (art. AD-34, 1 dona)

Kompleks harakat va xavfsizlik sensori (art. AD-34, 1 dona)

Tortish roliki (art. AD-14SP, 1 dona)

Tortish roliki (art. AD-14SP, 1 dona)

Karretkalar to'plami (art. AD-15SP, 4 dona) AD-SP drayvda

Karretkalar to'plami (art. AD-15SP, 4 dona) AD-SP drayvda

* Karretkalar to'plami (4 dona) tashqi eshiklar uchun AD-SP-TELESCOPE drayvda

* Karretkalar to'plami (4 dona) tashqi eshiklar uchun AD-SP-TELESCOPE drayvda

* Karretkalar to'plami (4 dona) ichki eshiklar uchun AD-SP-TELESCOPE drayvda

* Karretkalar to'plami (4 dona) ichki eshiklar uchun AD-SP-TELESCOPE drayvda

Yon qopqoq to'plami (art. AD-16SP, 2 dona) AD-SP uchun / (art. AD-16SPTel, 2 dona) AD-SP-TELESCOPE uchun

Yon qopqoq to'plami (art. AD-16SP, 2 dona) AD-SP uchun / (art. AD-16SPTel, 2 dona) AD-SP-TELESCOPE uchun

Drayv belbog‘i (art. AD-17, 11 m)

Drayv belbog‘i (art. AD-17, 11 m)

Stoporlar to'plami (art. AD-19SP, 2 dona) AD-SP drayvda

Stoporlar to'plami (art. AD-19SP, 2 dona) AD-SP drayvda

* Stoporlar to'plami (2 dona) AD-SP-TELESCOPE drayvda

* Stoporlar to'plami (2 dona) AD-SP-TELESCOPE drayvda

Belbog' ushlagichlari to'plami (art. AD-20SP, 2 dona)

Belbog' ushlagichlari to'plami (art. AD-20SP, 2 dona)

Pastki yo'naltiruvchi (art. TPP-001-32D, 2 dona)

Pastki yo'naltiruvchi (art. TPP-001-32D, 2 dona)

Korob qopqoq bilan (art. AHDS35 2009, 2011, 2012) AD-SP drayvi uchun / (art. AHDS35 2019-2023) AD-SP-TELESCOPE drayvi uchun

Korob qopqoq bilan (art. AHDS35 2009, 2011, 2012) AD-SP drayvi uchun / (art. AHDS35 2019-2023) AD-SP-TELESCOPE drayvi uchun

Rel's bilan siquvchi (art. AHDS35 2010 c AD-29) AD-SP drayvi uchun / (art. AHDS35 2023 c AD-29TEL, 2 dona) AD-SP-TELESCOPE drayvi uchun

Rel's bilan siquvchi (art. AHDS35 2010 c AD-29) AD-SP drayvi uchun / (art. AHDS35 2023 c AD-29TEL, 2 dona) AD-SP-TELESCOPE drayvi uchun

Fotoelement uchun profil (art. AHDS35 0213, 2 dona)

Fotoelement uchun profil (art. AHDS35 0213, 2 dona)

Vertikal eshik profili, uchida kesma 30 × 35 mm (art. AHDS35 0106.FREZ)

Vertikal eshik profili, uchida kesma 30 × 35 mm (art. AHDS35 0106.FREZ)

Gorizontal eshik profili 64 × 35 mm (art. AHDS35 0108)

Gorizontal eshik profili 64 × 35 mm (art. AHDS35 0108)

Zaxira plitalari to'plami (art. AD-100KIT, 2 dona)

Zaxira plitalari to'plami (art. AD-100KIT, 2 dona)

AD-07SP — AD-SP drayvi uchun elektromexanik qulf, ruxsatsiz kirishdan ishonchli himoyani ta'minlaydi / * (art. AD-07SPTEL) AD-SP-TELESCOPE drayvi uchun

AD-07SP — AD-SP drayvi uchun elektromexanik qulf, ruxsatsiz kirishdan ishonchli himoyani ta'minlaydi / * (art. AD-07SPTEL) AD-SP-TELESCOPE drayvi uchun

AD-27 — akkumulyator batareyasi (sig‘imi 2,0 A·soat), tashqi quvvat manbaisiz eshikning uzluksiz ishlashini 15–30 daqiqa davomida (170 ta sikl) ta'minlaydi

AD-27 — akkumulyator batareyasi (sig‘imi 2,0 A·soat), tashqi quvvat manbaisiz eshikning uzluksiz ishlashini 15–30 daqiqa davomida (170 ta sikl) ta'minlaydi

AD-30 — simsiz (tirsak bilan bosiladigan) PUSH tugmasi. Harakat sensori o‘rniga eshikni qo‘lda kontaktli boshqarish uchun ishlatiladi (tugmani bosish orqali eshik ochiladi)

AD-30 — simsiz (tirsak bilan bosiladigan) PUSH tugmasi. Harakat sensori o‘rniga eshikni qo‘lda kontaktli boshqarish uchun ishlatiladi (tugmani bosish orqali eshik ochiladi)

AD-31 — kontaktsiz infraqizil tugma. Harakat sensori o‘rniga eshikni qo‘lda kontaktsiz boshqarish uchun ishlatiladi (1 dan 15 sm gacha masofada)

AD-31 — kontaktsiz infraqizil tugma. Harakat sensori o‘rniga eshikni qo‘lda kontaktsiz boshqarish uchun ishlatiladi (1 dan 15 sm gacha masofada)

AD-32 — kalitli ish rejimlari o‘zgartirgichi (5 ta rejim). Displeyli rejimlar o‘zgartirgichi o‘rniga qo‘llaniladi va eshikni boshqarishga cheklangan kirishni ta’minlaydi

AD-32 — kalitli ish rejimlari o‘zgartirgichi (5 ta rejim). Displeyli rejimlar o‘zgartirgichi o‘rniga qo‘llaniladi va eshikni boshqarishga cheklangan kirishni ta’minlaydi

AD-34 — kompleks harakat va xavfsizlik sensori. Bitta korpusda harakatni aniqlovchi mikroto‘lqinli radar sensorini va o‘tish joyidagi infraqizil xavfsizlik pardasini birlashtiradi

AD-34 — kompleks harakat va xavfsizlik sensori. Bitta korpusda harakatni aniqlovchi mikroto‘lqinli radar sensorini va o‘tish joyidagi infraqizil xavfsizlik pardasini birlashtiradi

AD-09 — eshik o‘tish joyida xavfsizlikni ta’minlovchi fotoelementlar to‘plami

AD-09 — eshik o‘tish joyida xavfsizlikni ta’minlovchi fotoelementlar to‘plami

Texnik tavsif
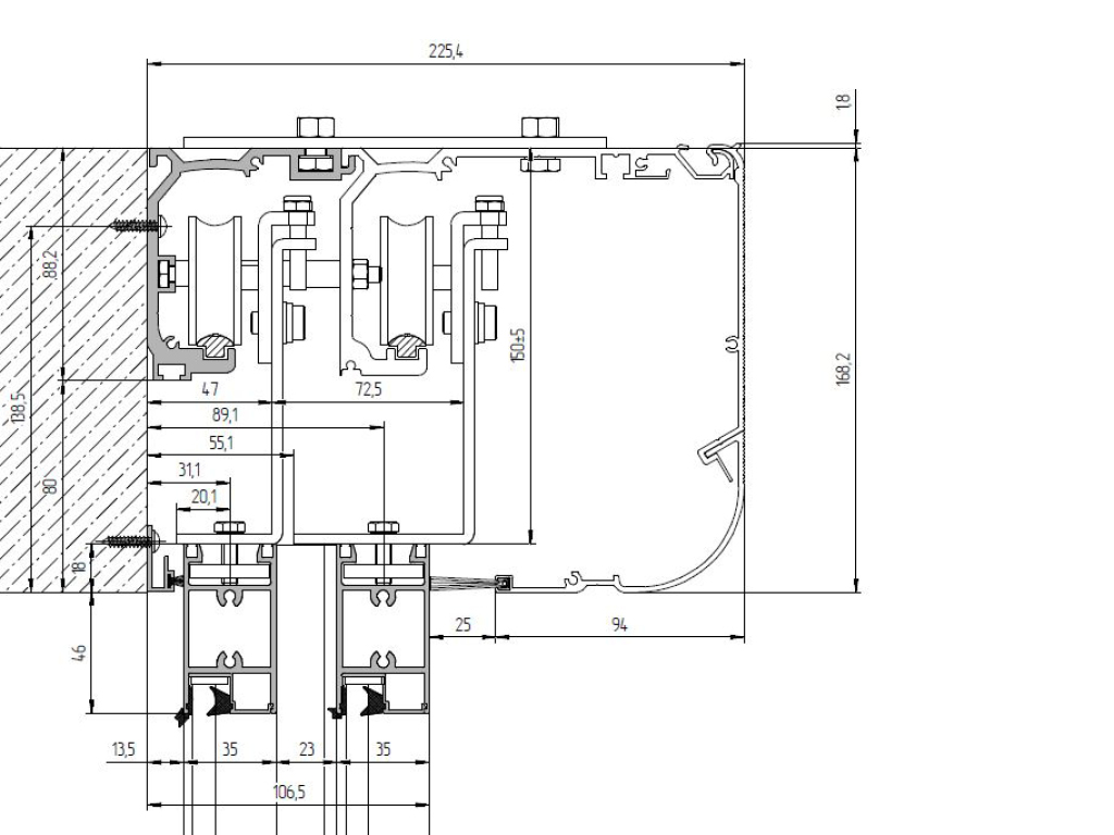
O'lchamlar jadvali
Konstruktsiya
Standart konstruktiv yechimlar
Texnik xususiyatlar
Mahsulotni ishlatish shartlari
Qadoqlash
Параметр
Показатель
Высота проема, мм
2200 dan 4000 gacha
Ширина проема для одностворчатых дверей, мм
1052 dan 2500 gacha
Притолока, мм
shart emas
  1. Qanotning vertikal profili
  2. Qanotning gorizontal profili
  3. Shtapik
  4. To‘ldirish 8 mm, 9 mm (shtapik bilan) yoki 24 mm (shtapiksiz)
  5. Ichki siqish
  6. Tashqi siqish
  7. Markaziy siqish

Bitta eshik (chapga ochiladigan)

Bitta eshik (chapga ochiladigan)

Усл. обозначение, наименование параметра Расчетная формула
B, мм Ширина проема 2500 gacha
H, мм Высота проема 3000 gacha
Ikki eshik

Ikki eshik

Усл. обозначение, наименование параметра Расчетная формула
B, мм Ширина проема 3000 gacha
H, мм Высота проема 3000 gacha
Bitta eshik, bitta harakatsiz qism bilan (chapga ochiladigan)

Bitta eshik, bitta harakatsiz qism bilan (chapga ochiladigan)

Усл. обозначение, наименование параметра Расчетная формула
B, мм Ширина проема 5000 gacha
H, мм Высота проема 3000 gacha
Ikki eshik, ikkita harakatsiz qism bilan

Ikki eshik, ikkita harakatsiz qism bilan

Усл. обозначение, наименование параметра Расчетная формула
B, мм Ширина проема 6000 gacha
H, мм Высота проема 3000 gacha
Bitta eshik, bitta harakatsiz qism va framoqa bilan (o‘ngga ochiladigan)

Bitta eshik, bitta harakatsiz qism va framoqa bilan (o‘ngga ochiladigan)

Усл. обозначение, наименование параметра Расчетная формула
B, мм Ширина проема 1184 dan 6200 gacha
H, мм Высота проема 2200 dan 4000 gacha
W, мм Ширина прохода 700 dan 3000 gacha
K, мм Высота прохода 1800 dan 3000 gacha
Ikki eshik, ikkita harakatsiz qism va framoqa bilan

Ikki eshik, ikkita harakatsiz qism va framoqa bilan

Усл. обозначение, наименование параметра Расчетная формула
B, мм Ширина проема 1806 dan 6200 gacha
H, мм Высота проема 2200 dan 4000 gacha
W, мм Ширина прохода 1000 dan 3000 gacha
K, мм Высота прохода 1800 dan 3000 gacha
Ikki eshik, ikkita to'liq shishali qism bilan

Ikki eshik, ikkita to'liq shishali qism bilan

Усл. обозначение, наименование параметра Расчетная формула
B, мм Ширина проема 3000 gacha
H, мм Высота проема 3000 gacha
Bitta eshik va framoqa bilan

Bitta eshik va framoqa bilan

Усл. обозначение, наименование параметра Расчетная формула
B, мм Ширина проема 1052 dan 2500 gacha
H, мм Высота проема 2200 dan 4000 gacha
Параметр Значение Примечание
Толщина профилей, мм 35
Толщина заполнения, мм 8, 9 yoki 24 Yengillashtirilgan eshik qismi
Максимальная высота, м 4
Максимальный вес створки, кг. 200/180 Bitta eshikli eshik / ikki eshikli eshik
Двигатель, В 24
Мощность, Вт 100
Напряжение питания, В 220
Диапазон рабочих температур, °С -20…+70
Интенсивность использования, % 100 Doimiy va sutkalik o'tish uchun mo‘ljallangan

1. Eshikni elektrdrayv bilan o‘rnatishda, uni xonadan tashqarida, ko‘cha tomonidan o‘rnatish qat'iyan taqiqlanadi.

2. Eshiklarning qo‘lda ochilishi va yopilishi faqat favqulodda holatda (elektr energiyasi yo‘qligida) yoki sozlash ishlari davomida amalga oshiriladi.

3. Eshik qismalarini qo‘lda ochish va yopishda katta kuch ishlatish tavsiya etilmaydi. Eshik qismalarini keskin itarish orqali ochish taqiqlanadi.

4. Bolalar va hayvonlarning eshik qismalarini ochish/yopish zonasida uzoq vaqt bo‘lmasligiga e'tibor bering.

5. Qattiq taqiqlanadi: qulflangan eshiklarni qo‘llar bilan ochishga urinish, harakatlanuvchi eshik qismi va pol orasiga barmoq yoki boshqa buyumlarni tiqish, chunki bu jarohatlarga olib kelishi mumkin.

6. Eshik qismalariga o‘tishda zarba bermang va ularning ochilishi yoki yopilishiga to‘sqinlik qilmang. Eshik qismalarining harakat zonasida yugurish yoki turish taqiqlanadi.

7. Eshik qismalari harakatlanayotgan paytda ularning yo‘lida tashqi buyumlar yoki axlatning yo‘qligiga e'tibor bering: bular eshik qismalarining egilishiga, qulflanishiga va eshik avtomatikasining nosozligiga olib kelishi mumkin.

8. Polga o‘rnatilgan yo‘naltilarni va karretkalar roliklarini ifloslantirmang, chunki bu eshik qismalarining silliq harakatini buzishi, qulflanishi va elektrdrayvning nosozligiga olib kelishi mumkin.

9. Avtomatik eshik qismalari eshik o‘tish joyi bo‘ylab yo‘naluvchi relsda silliq harakatlanishi, eshikni ochish/yopish siklida qismalar to‘liq ochilgan yoki yopilgan holatga yetganda to‘xtashni ta'minlashi kerak.

10. Eshikni xavfsizlik elementlari, masalan, fotoelementlar yoki IK-parda o‘rnatilmasdan ishlatish qat'iyan taqiqlanadi.

Упаковка в картон Характеристики упаковки
Drevesin padon, pastki qismida polyuretan bloklari bilan. Profilar g‘ofrokarton varaqlariga o‘ralgan va PP lenta bilan mustahkamlangan
Упаковка в пузырчатую пленку Характеристики упаковки
Pakuvka, pufakchali plyonka bilan o‘ralgan va logotipli skotch bilan mustahkamlangan profillardan iborat. Bir pakuvka profillari og‘irligi 35 kg dan oshmaydi
Упаковка на палету Характеристики упаковки
Pufakchali plyonkaga o‘ralgan profil paketlarini poliuretan ramkali paletaga joylashtirib, skotch bilan mustahkamlashadi
Qo‘shimcha tavsif chop etish

Sizli eshiklarni nafaqat alohida o‘rnatish, balki bino fasadiga yoki kirish guruhiga integratsiya qilish ham mumkin.

O'rnatish
Montaj usullari
Bino qurilishi uchun tayyorgarlik
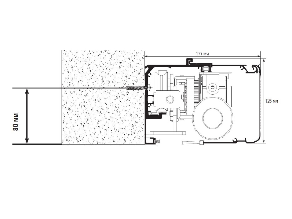
Avtomatik eshikning korpusini o‘chishga o‘rnatish
Avtomatik eshikning korpusini o‘chishga o‘rnatish
Teleskopik eshik korpusini o‘chishga o‘rnatish
Teleskopik eshik korpusini o‘chishga o‘rnatish
  1. O‘chish parametrlari: N — o‘chish balandligi (toza poldan o‘chishning yuqori qismigacha bo‘lgan masofa); V — o‘chish eni (o‘chishning chap va o‘ng chetlaridan o‘lchangan masofa); h — yengil ustun balandligi (o‘chishning yuqori qismidan tomgacha bo‘lgan masofa). Yengil ustun, o‘chish eni va balandligini o‘lchash kamida ikki joydan amalga oshiriladi. Yakuniy o‘lcham sifatida har doim eng kichik qiymat qabul qilinadi.
  2. Konstruktsiyani sifatli o‘rnatish va uning ishonchli ishlashini ta'minlash uchun xonadonning o‘chishini tayyorlash zarur. O‘chishning tozaligi bilan bog‘liq aniq talablar mavjud: O‘chish to‘g‘ri to‘rtburchak shaklida bo‘lishi kerak. Ramka yuzasi tekis va silliq bo‘lishi, gips eritmasi tomchilari va yoriqlar bo‘lmasligi kerak. Pol yuzasi tekis, gorizont bo‘lishi, chiqindilar va chuqurliklar bo‘lmasligi kerak. 1 metrga 1 mm gacha og‘ish ruxsat etiladi. Vertikal va gorizontal yuzalar tekis bo‘lishi kerak, 1 metrga 1 mm gacha og‘ish ruxsat etiladi. Agar o‘chish tayyorlashda yuqoridagi talablar bo‘yicha og‘ishlar bo‘lsa, o‘lchamlarni olishdan va o‘rnatishdan oldin ushbu og‘ishlar bartaraf etilishi kerak. Yengil ustun va yon devorlar bir tekisda bo‘lishi kerak. O‘chish ramkasi poydevor konstruktsiyasi, payvandlangan truba, fasad profili yoki vitraj shaklida bo‘lishi kerak.
Hujjatlar
Ko'rsatmalar
Pasportlar va sertifikatlar
Chizmalar

Yo‘riqnoma «Avtomatik sizli eshik, AD-SP drayvi bilan»

Yo‘riqnoma «Telescopik eshik, AD-SP-TELESCOPE drayvi bilan»

Avtomatik/teleskopik eshiklarning yengillashtirilgan qismalarini yig‘ish bo‘yicha yo‘riqnoma

«Antipaniya» eshik qismlarini yig‘ish bo‘yicha yo‘riqnoma (ochilish funksiyasi bilan) avtomatik eshiklar uchun

Framoqa va avtomatik eshik bilan konstruktsiyalarni yig‘ish bo‘yicha yo‘riqnoma

Kompleks harakat va xavfsizlik sensori AD-34 ni sozlash bo‘yicha yo‘riqnoma

O‘tish joyini tayyorlash va o‘rnatish bo‘yicha talablar

Avtomatik sizli eshik / AD-SP / AD-SP-TELESCOPE drayvi pasporti

Alyuminiy profiliga muvofiqlik sertifikati

Avtomatik eshiklar uchun drayvlar bo‘yicha moslik deklaratsiyasi

Asosiy eshik qismi profillari va jihozlari katalogi (arxiv)

Avtomatik eshik uchun profillar va jihozlar katalogi, yengil eshik qismalari bilan

Telescopik eshik uchun profillar va jihozlar katalogi, yengil eshik qismalari bilan

Avtomatik "antipanika" eshigi uchun profillar va jihozlar katalogi

Kafolat majburiyatlari chop etish

Mijozga tizimning to‘liq komplektatsiyasiga 2 yil kafolat beriladi, shu jumladan, tovarning jo‘natilganidan boshlab va foydalanish shartlariga rioya qilingan holda.

Yangi mahsulotlar
Simsiz (tirsak bilan bosiladigan) tugma AD-30 qo‘lda ochish boshqaruvi uchun mo‘ljallangan bo‘lib, uni toza xonalarda (operatsion va laboratoriya bloklari), shuningdek, ofis va savdo xonalarida ham ishlatish mumkin.

Simsiz (tirsak bilan bosiladigan) tugma AD-30 qo‘lda ochish boshqaruvi uchun mo‘ljallangan bo‘lib, uni toza xonalarda (operatsion va laboratoriya bloklari), shuningdek, ofis va savdo xonalarida ham ishlatish mumkin.

AD-34 sensori — kompleks turdagi qurilma bo‘lib, bir korpusda mikroto‘lqinli harakat radarini va infraqizil mavjudlik pardasini birlashtiradi. Ushbu sensor avtomatik sizli eshikda AD-SP drayvi bilan o‘rnatilganda, xavfsizlik fotoelementlari juftligi o‘rniga yoki ular bilan birgalikda ishlashi mumkin.

AD-34 sensori — kompleks turdagi qurilma bo‘lib, bir korpusda mikroto‘lqinli harakat radarini va infraqizil mavjudlik pardasini birlashtiradi. Ushbu sensor avtomatik sizli eshikda AD-SP drayvi bilan o‘rnatilganda, xavfsizlik fotoelementlari juftligi o‘rniga yoki ular bilan birgalikda ishlashi mumkin.

Dizayn
To‘ldirish dizayni
Qanotlarning ikki tomondan bo‘yash imkoniyati. Har xil turdagi to‘ldirish, qalinligi 8, 9 va 24 mm
Qanotlarning ikki tomondan bo‘yash imkoniyati. Har xil turdagi to‘ldirish, qalinligi 8, 9 va 24 mm
Standart ranglar
RAL 9016 (oq)
RAL 9016 (oq)
RAL 9006 (silliq metall)
RAL 9006 (silliq metall)
RAL 7004 (kulrang)
RAL 7004 (kulrang)
RAL 1014 (bej)
RAL 1014 (bej)
RAL 2004 (to'q sariq)
RAL 2004 (to'q sariq)
RAL 3020 (qizil)
RAL 3020 (qizil)
RAL 3005 (bordo)
RAL 3005 (bordo)
RAL 6018 (ochiq yashil)
RAL 6018 (ochiq yashil)
RAL 6005 (yashil)
RAL 6005 (yashil)
RAL 7016 (antratsit)
RAL 7016 (antratsit)
RAL 5005 (ko'k)
RAL 5005 (ko'k)
RAL 8017 (jigarrang-qizil)
RAL 8017 (jigarrang-qizil)
RAL 9005 (qora)
RAL 9005 (qora)
RAL 8014 (jigarrang)
RAL 8014 (jigarrang)
Komplektatsiya
Bazaviy to'plam
Elektromotor (art. AD-01SP)

Elektromotor (art. AD-01SP)

Kontroller (art. AD-03SP)

Kontroller (art. AD-03SP)

Rejimlar o'zgartirgichi, displey bilan (art. AD-08SP)

Rejimlar o'zgartirgichi, displey bilan (art. AD-08SP)

Harakat sensori (art. AD-06, 1 dona)

Harakat sensori (art. AD-06, 1 dona)

Kompleks harakat va xavfsizlik sensori (art. AD-34, 1 dona)

Kompleks harakat va xavfsizlik sensori (art. AD-34, 1 dona)

Tortish roliki (art. AD-14SP, 1 dona)

Tortish roliki (art. AD-14SP, 1 dona)

Karretkalar to'plami (art. AD-15SP, 4 dona) AD-SP drayvda

Karretkalar to'plami (art. AD-15SP, 4 dona) AD-SP drayvda

* Karretkalar to'plami (4 dona) tashqi eshiklar uchun AD-SP-TELESCOPE drayvda

* Karretkalar to'plami (4 dona) tashqi eshiklar uchun AD-SP-TELESCOPE drayvda

* Karretkalar to'plami (4 dona) ichki eshiklar uchun AD-SP-TELESCOPE drayvda

* Karretkalar to'plami (4 dona) ichki eshiklar uchun AD-SP-TELESCOPE drayvda

Yon qopqoq to'plami (art. AD-16SP, 2 dona) AD-SP uchun / (art. AD-16SPTel, 2 dona) AD-SP-TELESCOPE uchun

Yon qopqoq to'plami (art. AD-16SP, 2 dona) AD-SP uchun / (art. AD-16SPTel, 2 dona) AD-SP-TELESCOPE uchun

Drayv belbog‘i (art. AD-17, 11 m)

Drayv belbog‘i (art. AD-17, 11 m)

Stoporlar to'plami (art. AD-19SP, 2 dona) AD-SP drayvda

Stoporlar to'plami (art. AD-19SP, 2 dona) AD-SP drayvda

* Stoporlar to'plami (2 dona) AD-SP-TELESCOPE drayvda

* Stoporlar to'plami (2 dona) AD-SP-TELESCOPE drayvda

Belbog' ushlagichlari to'plami (art. AD-20SP, 2 dona)

Belbog' ushlagichlari to'plami (art. AD-20SP, 2 dona)

Pastki yo'naltiruvchi (art. TPP-001-32D, 2 dona)

Pastki yo'naltiruvchi (art. TPP-001-32D, 2 dona)

Korob qopqoq bilan (art. AHDS35 2009, 2011, 2012) AD-SP drayvi uchun / (art. AHDS35 2019-2023) AD-SP-TELESCOPE drayvi uchun

Korob qopqoq bilan (art. AHDS35 2009, 2011, 2012) AD-SP drayvi uchun / (art. AHDS35 2019-2023) AD-SP-TELESCOPE drayvi uchun

Rel's bilan siquvchi (art. AHDS35 2010 c AD-29) AD-SP drayvi uchun / (art. AHDS35 2023 c AD-29TEL, 2 dona) AD-SP-TELESCOPE drayvi uchun

Rel's bilan siquvchi (art. AHDS35 2010 c AD-29) AD-SP drayvi uchun / (art. AHDS35 2023 c AD-29TEL, 2 dona) AD-SP-TELESCOPE drayvi uchun

Fotoelement uchun profil (art. AHDS35 0213, 2 dona)

Fotoelement uchun profil (art. AHDS35 0213, 2 dona)

Vertikal eshik profili, uchida kesma 30 × 35 mm (art. AHDS35 0106.FREZ)

Vertikal eshik profili, uchida kesma 30 × 35 mm (art. AHDS35 0106.FREZ)

Gorizontal eshik profili 64 × 35 mm (art. AHDS35 0108)

Gorizontal eshik profili 64 × 35 mm (art. AHDS35 0108)

Zaxira plitalari to'plami (art. AD-100KIT, 2 dona)

Zaxira plitalari to'plami (art. AD-100KIT, 2 dona)

Qo'shimcha to'plam
AD-07SP — AD-SP drayvi uchun elektromexanik qulf, ruxsatsiz kirishdan ishonchli himoyani ta'minlaydi / * (art. AD-07SPTEL) AD-SP-TELESCOPE drayvi uchun

AD-07SP — AD-SP drayvi uchun elektromexanik qulf, ruxsatsiz kirishdan ishonchli himoyani ta'minlaydi / * (art. AD-07SPTEL) AD-SP-TELESCOPE drayvi uchun

AD-27 — akkumulyator batareyasi (sig‘imi 2,0 A·soat), tashqi quvvat manbaisiz eshikning uzluksiz ishlashini 15–30 daqiqa davomida (170 ta sikl) ta'minlaydi

AD-27 — akkumulyator batareyasi (sig‘imi 2,0 A·soat), tashqi quvvat manbaisiz eshikning uzluksiz ishlashini 15–30 daqiqa davomida (170 ta sikl) ta'minlaydi

AD-30 — simsiz (tirsak bilan bosiladigan) PUSH tugmasi. Harakat sensori o‘rniga eshikni qo‘lda kontaktli boshqarish uchun ishlatiladi (tugmani bosish orqali eshik ochiladi)

AD-30 — simsiz (tirsak bilan bosiladigan) PUSH tugmasi. Harakat sensori o‘rniga eshikni qo‘lda kontaktli boshqarish uchun ishlatiladi (tugmani bosish orqali eshik ochiladi)

AD-31 — kontaktsiz infraqizil tugma. Harakat sensori o‘rniga eshikni qo‘lda kontaktsiz boshqarish uchun ishlatiladi (1 dan 15 sm gacha masofada)

AD-31 — kontaktsiz infraqizil tugma. Harakat sensori o‘rniga eshikni qo‘lda kontaktsiz boshqarish uchun ishlatiladi (1 dan 15 sm gacha masofada)

AD-32 — kalitli ish rejimlari o‘zgartirgichi (5 ta rejim). Displeyli rejimlar o‘zgartirgichi o‘rniga qo‘llaniladi va eshikni boshqarishga cheklangan kirishni ta’minlaydi

AD-32 — kalitli ish rejimlari o‘zgartirgichi (5 ta rejim). Displeyli rejimlar o‘zgartirgichi o‘rniga qo‘llaniladi va eshikni boshqarishga cheklangan kirishni ta’minlaydi

AD-34 — kompleks harakat va xavfsizlik sensori. Bitta korpusda harakatni aniqlovchi mikroto‘lqinli radar sensorini va o‘tish joyidagi infraqizil xavfsizlik pardasini birlashtiradi

AD-34 — kompleks harakat va xavfsizlik sensori. Bitta korpusda harakatni aniqlovchi mikroto‘lqinli radar sensorini va o‘tish joyidagi infraqizil xavfsizlik pardasini birlashtiradi

AD-09 — eshik o‘tish joyida xavfsizlikni ta’minlovchi fotoelementlar to‘plami

AD-09 — eshik o‘tish joyida xavfsizlikni ta’minlovchi fotoelementlar to‘plami

Texnik tavsif
O'lchamlar jadvali
Параметр
Показатель
Высота проема, мм
2200 dan 4000 gacha
Ширина проема для одностворчатых дверей, мм
1052 dan 2500 gacha
Притолока, мм
shart emas
Konstruktsiya
  1. Qanotning vertikal profili
  2. Qanotning gorizontal profili
  3. Shtapik
  4. To‘ldirish 8 mm, 9 mm (shtapik bilan) yoki 24 mm (shtapiksiz)
  5. Ichki siqish
  6. Tashqi siqish
  7. Markaziy siqish
Standart konstruktiv yechimlar

Bitta eshik (chapga ochiladigan)

Bitta eshik (chapga ochiladigan)

Усл. обозначение, наименование параметра Расчетная формула
B, мм Ширина проема 2500 gacha
H, мм Высота проема 3000 gacha
Ikki eshik

Ikki eshik

Усл. обозначение, наименование параметра Расчетная формула
B, мм Ширина проема 3000 gacha
H, мм Высота проема 3000 gacha
Bitta eshik, bitta harakatsiz qism bilan (chapga ochiladigan)

Bitta eshik, bitta harakatsiz qism bilan (chapga ochiladigan)

Усл. обозначение, наименование параметра Расчетная формула
B, мм Ширина проема 5000 gacha
H, мм Высота проема 3000 gacha
Ikki eshik, ikkita harakatsiz qism bilan

Ikki eshik, ikkita harakatsiz qism bilan

Усл. обозначение, наименование параметра Расчетная формула
B, мм Ширина проема 6000 gacha
H, мм Высота проема 3000 gacha
Bitta eshik, bitta harakatsiz qism va framoqa bilan (o‘ngga ochiladigan)

Bitta eshik, bitta harakatsiz qism va framoqa bilan (o‘ngga ochiladigan)

Усл. обозначение, наименование параметра Расчетная формула
B, мм Ширина проема 1184 dan 6200 gacha
H, мм Высота проема 2200 dan 4000 gacha
W, мм Ширина прохода 700 dan 3000 gacha
K, мм Высота прохода 1800 dan 3000 gacha
Ikki eshik, ikkita harakatsiz qism va framoqa bilan

Ikki eshik, ikkita harakatsiz qism va framoqa bilan

Усл. обозначение, наименование параметра Расчетная формула
B, мм Ширина проема 1806 dan 6200 gacha
H, мм Высота проема 2200 dan 4000 gacha
W, мм Ширина прохода 1000 dan 3000 gacha
K, мм Высота прохода 1800 dan 3000 gacha
Ikki eshik, ikkita to'liq shishali qism bilan

Ikki eshik, ikkita to'liq shishali qism bilan

Усл. обозначение, наименование параметра Расчетная формула
B, мм Ширина проема 3000 gacha
H, мм Высота проема 3000 gacha
Bitta eshik va framoqa bilan

Bitta eshik va framoqa bilan

Усл. обозначение, наименование параметра Расчетная формула
B, мм Ширина проема 1052 dan 2500 gacha
H, мм Высота проема 2200 dan 4000 gacha
Texnik xususiyatlar
Параметр Значение Примечание
Толщина профилей, мм 35
Толщина заполнения, мм 8, 9 yoki 24 Yengillashtirilgan eshik qismi
Максимальная высота, м 4
Максимальный вес створки, кг. 200/180 Bitta eshikli eshik / ikki eshikli eshik
Двигатель, В 24
Мощность, Вт 100
Напряжение питания, В 220
Диапазон рабочих температур, °С -20…+70
Интенсивность использования, % 100 Doimiy va sutkalik o'tish uchun mo‘ljallangan
Mahsulotni ishlatish shartlari

1. Eshikni elektrdrayv bilan o‘rnatishda, uni xonadan tashqarida, ko‘cha tomonidan o‘rnatish qat'iyan taqiqlanadi.

2. Eshiklarning qo‘lda ochilishi va yopilishi faqat favqulodda holatda (elektr energiyasi yo‘qligida) yoki sozlash ishlari davomida amalga oshiriladi.

3. Eshik qismalarini qo‘lda ochish va yopishda katta kuch ishlatish tavsiya etilmaydi. Eshik qismalarini keskin itarish orqali ochish taqiqlanadi.

4. Bolalar va hayvonlarning eshik qismalarini ochish/yopish zonasida uzoq vaqt bo‘lmasligiga e'tibor bering.

5. Qattiq taqiqlanadi: qulflangan eshiklarni qo‘llar bilan ochishga urinish, harakatlanuvchi eshik qismi va pol orasiga barmoq yoki boshqa buyumlarni tiqish, chunki bu jarohatlarga olib kelishi mumkin.

6. Eshik qismalariga o‘tishda zarba bermang va ularning ochilishi yoki yopilishiga to‘sqinlik qilmang. Eshik qismalarining harakat zonasida yugurish yoki turish taqiqlanadi.

7. Eshik qismalari harakatlanayotgan paytda ularning yo‘lida tashqi buyumlar yoki axlatning yo‘qligiga e'tibor bering: bular eshik qismalarining egilishiga, qulflanishiga va eshik avtomatikasining nosozligiga olib kelishi mumkin.

8. Polga o‘rnatilgan yo‘naltilarni va karretkalar roliklarini ifloslantirmang, chunki bu eshik qismalarining silliq harakatini buzishi, qulflanishi va elektrdrayvning nosozligiga olib kelishi mumkin.

9. Avtomatik eshik qismalari eshik o‘tish joyi bo‘ylab yo‘naluvchi relsda silliq harakatlanishi, eshikni ochish/yopish siklida qismalar to‘liq ochilgan yoki yopilgan holatga yetganda to‘xtashni ta'minlashi kerak.

10. Eshikni xavfsizlik elementlari, masalan, fotoelementlar yoki IK-parda o‘rnatilmasdan ishlatish qat'iyan taqiqlanadi.

Qadoqlash
Упаковка в картон Характеристики упаковки
Drevesin padon, pastki qismida polyuretan bloklari bilan. Profilar g‘ofrokarton varaqlariga o‘ralgan va PP lenta bilan mustahkamlangan
Упаковка в пузырчатую пленку Характеристики упаковки
Pakuvka, pufakchali plyonka bilan o‘ralgan va logotipli skotch bilan mustahkamlangan profillardan iborat. Bir pakuvka profillari og‘irligi 35 kg dan oshmaydi
Упаковка на палету Характеристики упаковки
Pufakchali plyonkaga o‘ralgan profil paketlarini poliuretan ramkali paletaga joylashtirib, skotch bilan mustahkamlashadi
Qo‘shimcha tavsif

Sizli eshiklarni nafaqat alohida o‘rnatish, balki bino fasadiga yoki kirish guruhiga integratsiya qilish ham mumkin.

O'rnatish
Montaj usullari
Avtomatik eshikning korpusini o‘chishga o‘rnatish
Avtomatik eshikning korpusini o‘chishga o‘rnatish
Teleskopik eshik korpusini o‘chishga o‘rnatish
Teleskopik eshik korpusini o‘chishga o‘rnatish
Bino qurilishi uchun tayyorgarlik
  1. O‘chish parametrlari: N — o‘chish balandligi (toza poldan o‘chishning yuqori qismigacha bo‘lgan masofa); V — o‘chish eni (o‘chishning chap va o‘ng chetlaridan o‘lchangan masofa); h — yengil ustun balandligi (o‘chishning yuqori qismidan tomgacha bo‘lgan masofa). Yengil ustun, o‘chish eni va balandligini o‘lchash kamida ikki joydan amalga oshiriladi. Yakuniy o‘lcham sifatida har doim eng kichik qiymat qabul qilinadi.
  2. Konstruktsiyani sifatli o‘rnatish va uning ishonchli ishlashini ta'minlash uchun xonadonning o‘chishini tayyorlash zarur. O‘chishning tozaligi bilan bog‘liq aniq talablar mavjud: O‘chish to‘g‘ri to‘rtburchak shaklida bo‘lishi kerak. Ramka yuzasi tekis va silliq bo‘lishi, gips eritmasi tomchilari va yoriqlar bo‘lmasligi kerak. Pol yuzasi tekis, gorizont bo‘lishi, chiqindilar va chuqurliklar bo‘lmasligi kerak. 1 metrga 1 mm gacha og‘ish ruxsat etiladi. Vertikal va gorizontal yuzalar tekis bo‘lishi kerak, 1 metrga 1 mm gacha og‘ish ruxsat etiladi. Agar o‘chish tayyorlashda yuqoridagi talablar bo‘yicha og‘ishlar bo‘lsa, o‘lchamlarni olishdan va o‘rnatishdan oldin ushbu og‘ishlar bartaraf etilishi kerak. Yengil ustun va yon devorlar bir tekisda bo‘lishi kerak. O‘chish ramkasi poydevor konstruktsiyasi, payvandlangan truba, fasad profili yoki vitraj shaklida bo‘lishi kerak.
Kafolat majburiyatlari

Mijozga tizimning to‘liq komplektatsiyasiga 2 yil kafolat beriladi, shu jumladan, tovarning jo‘natilganidan boshlab va foydalanish shartlariga rioya qilingan holda.

Hujjatlar
Ko'rsatmalar

Yo‘riqnoma «Avtomatik sizli eshik, AD-SP drayvi bilan»

Yo‘riqnoma «Telescopik eshik, AD-SP-TELESCOPE drayvi bilan»

Avtomatik/teleskopik eshiklarning yengillashtirilgan qismalarini yig‘ish bo‘yicha yo‘riqnoma

«Antipaniya» eshik qismlarini yig‘ish bo‘yicha yo‘riqnoma (ochilish funksiyasi bilan) avtomatik eshiklar uchun

Framoqa va avtomatik eshik bilan konstruktsiyalarni yig‘ish bo‘yicha yo‘riqnoma

Kompleks harakat va xavfsizlik sensori AD-34 ni sozlash bo‘yicha yo‘riqnoma

O‘tish joyini tayyorlash va o‘rnatish bo‘yicha talablar

Pasportlar va sertifikatlar

Avtomatik sizli eshik / AD-SP / AD-SP-TELESCOPE drayvi pasporti

Alyuminiy profiliga muvofiqlik sertifikati

Avtomatik eshiklar uchun drayvlar bo‘yicha moslik deklaratsiyasi

Chizmalar

Asosiy eshik qismi profillari va jihozlari katalogi (arxiv)

Avtomatik eshik uchun profillar va jihozlar katalogi, yengil eshik qismalari bilan

Telescopik eshik uchun profillar va jihozlar katalogi, yengil eshik qismalari bilan

Avtomatik "antipanika" eshigi uchun profillar va jihozlar katalogi

Buyurtma berish
Kompaniya menejerlari barcha savollaringizga telefon orqali javob berishadi::