Catalog

AD-SP privodi uchun avtomatik suriluvchi eshik komplekti (bitta harakatlanuvchi, bitta harakatlanmaydigan, bitta eshik qanoti va yuqoridagi framuqa)

Savdo-ko'ngilochar markazlar, aeroportlar va vokzallar kabi odamlar oqimi yuqori bo'lgan zamonaviy binolarda kirish eshiklariga alohida, eng qattiq talablar qo'yiladi. Ular nafaqat kundalik o'tish uchun qulay bo'lishi, balki yong'in xavfsizligi normalariga to'liq javob berishi va to'siqsiz evakuatsiya chiqishini ta'minlashi kerak. DoorHan konserni ushbu ikki vazifani birlashtirgan noyob muhandislik yechimini taklif etadi — surilma, harakatsiz va ochiladigan stvorkali avtomatik eshiklar to'plami. Bu ko'p funksiyali tizim bo'lib, odatdagi rejimda qulay surilma eshik sifatida ishlaydi, favqulodda vaziyatda esa keng evakuatsiya yo'lini bir zumda tashkil etish imkonini beradi.

Maksimal xavfsizlik uchun ikki tomonlama funksional. Ushbu konstruksiya avtomatlashtirish va evakuatsiya yo'llarini birlashtirish talab qilinadigan ob'ektlar uchun ideal yechimdir:

  • Avtomatik o'tish: Standart rejimda bir stvorka harakatsiz stvorka orqasiga silliq surilib, tashrif buyuruvchilar uchun qulay va tez o'tishni ta'minlaydi. Tizim AD-SP privodi boshqaruvi ostida ishlaydi va oqimlarni moslashuvchan sozlash uchun oltita rejimga ega.
  • "Antipanika" evakuatsiya chiqishi: Ikkinchi, ochiladigan stvorka, odatdagi rejimda qulflangan. Ammo favqulodda vaziyatda u oddiy itarish bilan osongina tashqariga ochiladi va odamlarni tez va xavfsiz evakuatsiya qilish uchun keng (1200 mm gacha) yo'lakni bir zumda yaratadi. Bu yechim odamlar gavjum joylar uchun yong'in xavfsizligi talablariga to'liq javob beradi.

Murakkab va baland o'tish joylari uchun yechim. Bizning tizimimiz murakkab arxitekturaga ideal tarzda moslashadi:

  • 4 metrgacha balandlik: Yuqori framuganing mavjudligi juda baland o'tish joylarini nafis tarzda yopish imkonini beradi, bunda eshik stvorkalarining o'zi standart va qulay balandlikda qoladi.
  • Pritoloka yo'qligi: Konstruksiya shunday loyihalashtirilganki, u o'tish joyi ustida yuk ko'taruvchi to'sin (pritoloka) mavjudligini talab qilmaydi, bu uning qo'llanilish imkoniyatlarini sezilarli darajada kengaytiradi.
  • Tez va aniq yig'ish: Biz profillarning noyob mexanik birikma texnologiyasidan foydalanamiz, bu ob'ektda montaj vaqtini sezilarli darajada qisqartiradi va ramkalarni yupqaroq qilish, oynalangan maydonni kengaytirish imkonini beradi.

Ishonchlilik va to'liq komplektatsiya. Biz montajga tayyor "bir qo'ldan" yechimni taklif etamiz, unga barcha kerakli avtomatika (dvigatel, kontroller, datchiklar) va profil tizimi kiradi. Bu barcha komponentlarning 100% mosligini va muvofiqlashtirilgan ishlashini kafolatlaydi. Konstruksiyani optimallashtirish va metall sig'imini kamaytirish tufayli biz shunday ko'p funksiyali mahsulot uchun jozibador narxni ta'minlaymiz. Mahsulotimiz sifatiga bo'lgan ishonchimizni butun komplektatsiyaga ikki yillik kafolat bilan tasdiqlaymiz. DoorHan — bu xavfsiz, funksional va zamonaviy kirish zonalarini yaratishda sizning ishonchli hamkoringizdir.

Qo'llanilish sohasi:
Savdo va biznes markazlari
Xususiy sektor
Afzalliklar
Funktsional imkoniyatlar
Mahsulotning oltita ish rejimida ishlashi imkoniyati odamlar harakatini tashkil etish bo‘yicha istalgan vazifani hal qilishga imkon beradi.
Qanotni to‘ldirishning xilma-xilligi
Qanotni 8 yoki 9 mm qalinlikdagi xavfsizlik shishasi yoki 24 mm li oynali paket bilan to‘ldirish imkoniyati.
Oson yig‘ish
Noyob suxarli birikma eshik qanotlarini yig‘ish va butun mahsulotni o‘rnatish vaqtini sezilarli darajada qisqartirishga, shuningdek, yorug‘lik o‘tishini oshirishga imkon beradi.
Konstruktsiyalarning va mahsulotlar sinflarining xilma-xilligi
Ushbu afzallik istalgan o‘tkazish joyi uchun optimal konstruktsiyani tanlash imkonini beradi: yuqori panel (pritoloka) va yon devor qoplamalari mavjud bo‘lmagan holatlarda, yon devorlarning kengligi cheklangan (yetarli bo‘lmagan) taqdirda yoki xonada boshqa chiqish yo‘llari mavjud bo‘lmaganda.
Jozibador narx
Metall sarfini kamaytirish va profil tizimi konstruktsiyasini optimallashtirish hisobiga mahsulot jozibador narxga ega.
Funktsional imkoniyatlar
Mahsulotning oltita ish rejimida ishlashi imkoniyati odamlar harakatini tashkil etish bo‘yicha istalgan vazifani hal qilishga imkon beradi.
Qanotni to‘ldirishning xilma-xilligi
Qanotni 8 yoki 9 mm qalinlikdagi xavfsizlik shishasi yoki 24 mm li oynali paket bilan to‘ldirish imkoniyati.
Oson yig‘ish
Noyob suxarli birikma eshik qanotlarini yig‘ish va butun mahsulotni o‘rnatish vaqtini sezilarli darajada qisqartirishga, shuningdek, yorug‘lik o‘tishini oshirishga imkon beradi.
Konstruktsiyalarning va mahsulotlar sinflarining xilma-xilligi
Ushbu afzallik istalgan o‘tkazish joyi uchun optimal konstruktsiyani tanlash imkonini beradi: yuqori panel (pritoloka) va yon devor qoplamalari mavjud bo‘lmagan holatlarda, yon devorlarning kengligi cheklangan (yetarli bo‘lmagan) taqdirda yoki xonada boshqa chiqish yo‘llari mavjud bo‘lmaganda.
Jozibador narx
Metall sarfini kamaytirish va profil tizimi konstruktsiyasini optimallashtirish hisobiga mahsulot jozibador narxga ega.
Dizayn
To‘ldirish dizayni
Standart ranglar
Qanotlarning ikki tomonlama bo‘yalganligi. Har qanday turdagi, 8, 9 yoki 24 mm qalinlikdagi to‘ldirish mavjudligi.
Qanotlarning ikki tomonlama bo‘yalganligi. Har qanday turdagi, 8, 9 yoki 24 mm qalinlikdagi to‘ldirish mavjudligi.
RAL 9016 (oq)
RAL 9016 (oq)
RAL 9006 (silliq metall)
RAL 9006 (silliq metall)
RAL 7004 (kulrang)
RAL 7004 (kulrang)
RAL 1014 (bej)
RAL 1014 (bej)
RAL 2004 (to'q sariq)
RAL 2004 (to'q sariq)
RAL 3020 (qizil)
RAL 3020 (qizil)
RAL 3005 (bordo)
RAL 3005 (bordo)
RAL 6018 (ochiq yashil)
RAL 6018 (ochiq yashil)
RAL 6005 (yashil)
RAL 6005 (yashil)
RAL 7016 (antratsit)
RAL 7016 (antratsit)
RAL 5005 (ko'k)
RAL 5005 (ko'k)
RAL 8017 (jigarrang-qizil)
RAL 8017 (jigarrang-qizil)
RAL 9005 (qora)
RAL 9005 (qora)
RAL 8014 (jigarrang)
RAL 8014 (jigarrang)
Komplektatsiya
Bazaviy to'plam
Qo'shimcha to'plam
Elektr motor (art. AD-01SP).

Elektr motor (art. AD-01SP).

Kontroller (art. AD-03SP).

Kontroller (art. AD-03SP).

Rejimlarni o'zgartirish tugmasi ekrani bilan (art. AD-08SP).

Rejimlarni o'zgartirish tugmasi ekrani bilan (art. AD-08SP).

Harakat sensori (art. AD-06, 1 dona).

Harakat sensori (art. AD-06, 1 dona).

Kompleks harakat va xavfsizlik sensori (art. AD-34, 1 dona).

Kompleks harakat va xavfsizlik sensori (art. AD-34, 1 dona).

Tortish roliki (art. AD-14SP, 1 dona).

Tortish roliki (art. AD-14SP, 1 dona).

Karsetkalar to‘plami (art. AD-15SP, 4 dona) AD-SP drivermizda.

Karsetkalar to‘plami (art. AD-15SP, 4 dona) AD-SP drivermizda.

* Karsetkalar to‘plami (4 dona) tashqi qanotlar uchun AD-SP-TELESCOPE drivida.

* Karsetkalar to‘plami (4 dona) tashqi qanotlar uchun AD-SP-TELESCOPE drivida.

* Karsetkalar to‘plami (4 dona) ichki qanotlar uchun AD-SP-TELESCOPE drivida.

* Karsetkalar to‘plami (4 dona) ichki qanotlar uchun AD-SP-TELESCOPE drivida.

Yon qopqoq to‘plami (art. AD-16SP, 2 dona) AD-SPda / *(art. AD-16SPTel, 2 dona) AD-SP-TELESCOPEda.

Yon qopqoq to‘plami (art. AD-16SP, 2 dona) AD-SPda / *(art. AD-16SPTel, 2 dona) AD-SP-TELESCOPEda.

Driv belti (art. AD-17, 11 m).

Driv belti (art. AD-17, 11 m).

To‘plam to‘xtatuvchilari (art. AD-19SP, 2 dona) AD-SP drivida.

To‘plam to‘xtatuvchilari (art. AD-19SP, 2 dona) AD-SP drivida.

* To‘plam to‘xtatuvchilari (2 dona) AD-SP-TELESCOPE drivida.

* To‘plam to‘xtatuvchilari (2 dona) AD-SP-TELESCOPE drivida.

Bel't ushlagichlari to‘plami (art. AD-20SP, 2 dona).

Bel't ushlagichlari to‘plami (art. AD-20SP, 2 dona).

Pastki yo‘riqnomani polga (art. TPP-001-32D, 2 dona).

Pastki yo‘riqnomani polga (art. TPP-001-32D, 2 dona).

Korpus qopqoq bilan (art. AHDS35 2009, 2011, 2012) AD-SP driviga / *(art. AHDS35 2019-2023) AD-SP-TELESCOPE driviga.

Korpus qopqoq bilan (art. AHDS35 2009, 2011, 2012) AD-SP driviga / *(art. AHDS35 2019-2023) AD-SP-TELESCOPE driviga.

Rayon bilan muhr (art. AHDS35 2010 c AD-29) AD-SP driviga / *(art. AHDS35 2023 c AD-29TEL, 2 dona) AD-SP-TELESCOPE driviga.

Rayon bilan muhr (art. AHDS35 2010 c AD-29) AD-SP driviga / *(art. AHDS35 2023 c AD-29TEL, 2 dona) AD-SP-TELESCOPE driviga.

Fotoelement uchun profil (art. AHDS35 0213, 2 dona).

Fotoelement uchun profil (art. AHDS35 0213, 2 dona).

Vertikal profil eshik qanoti, uchida 30 × 35 mm o‘yma bilan (art. AHDS35 0106.FREZ).

Vertikal profil eshik qanoti, uchida 30 × 35 mm o‘yma bilan (art. AHDS35 0106.FREZ).

Gorizontal profil eshik qanoti, 64 × 35 mm (art. AHDS35 0108).

Gorizontal profil eshik qanoti, 64 × 35 mm (art. AHDS35 0108).

Qo‘shimcha plitalar to‘plami (art. AD-100KIT, 2 to‘plam).

Qo‘shimcha plitalar to‘plami (art. AD-100KIT, 2 to‘plam).

AD-07SP – elektromexanik qulflar AD-SP driviga, ruxsatsiz kirishdan ishonchli himoya ta'minlaydi / *(art. AD-07SPTEL) AD-SP-TELESCOPE driviga.

AD-07SP – elektromexanik qulflar AD-SP driviga, ruxsatsiz kirishdan ishonchli himoya ta'minlaydi / *(art. AD-07SPTEL) AD-SP-TELESCOPE driviga.

AD-27 – akkumulyator batareyasi (sig‘imi 2,0 Ah) eshigni tashqi quvvatlanishsiz 15–30 daqiqa davomida (170 tsikl) uzluksiz ishlashini ta'minlaydi.

AD-27 – akkumulyator batareyasi (sig‘imi 2,0 Ah) eshigni tashqi quvvatlanishsiz 15–30 daqiqa davomida (170 tsikl) uzluksiz ishlashini ta'minlaydi.

AD-30 – simsiz (loktevaya) PUSH tugmasi. Harakat sensori o‘rniga eshikni qo‘l bilan boshqarish uchun ishlatiladi (eshikni tugmani bosish orqali ochish).

AD-30 – simsiz (loktevaya) PUSH tugmasi. Harakat sensori o‘rniga eshikni qo‘l bilan boshqarish uchun ishlatiladi (eshikni tugmani bosish orqali ochish).

AD-31 – bekontakt infratuzilish tugmasi. Harakat sensori o‘rniga eshikni qo‘l bilan bekontakt boshqarish uchun ishlatiladi (1 dan 15 sm gacha).

AD-31 – bekontakt infratuzilish tugmasi. Harakat sensori o‘rniga eshikni qo‘l bilan bekontakt boshqarish uchun ishlatiladi (1 dan 15 sm gacha).

AD-32 – ish rejimini almashtirish tugmasi kalit bilan (5 rejim). Eshikni boshqarishning cheklangan kirishini ta'minlab, ekrani bo‘lgan rejim almashtirish tugmasi o‘rniga ishlatiladi.

AD-32 – ish rejimini almashtirish tugmasi kalit bilan (5 rejim). Eshikni boshqarishning cheklangan kirishini ta'minlab, ekrani bo‘lgan rejim almashtirish tugmasi o‘rniga ishlatiladi.

AD-34 – kombinatsiyalangan harakat va xavfsizlik sensori. Bir korpusda mikroto‘lqinli harakat radarini va eshikdagi xavfsizlik infraqizil parda sensori birlashtiradi.

AD-34 – kombinatsiyalangan harakat va xavfsizlik sensori. Bir korpusda mikroto‘lqinli harakat radarini va eshikdagi xavfsizlik infraqizil parda sensori birlashtiradi.

AD-09 – fotoelementlar to‘plami, eshikdagi proyemda xavfsizlikni ta'minlaydi.

AD-09 – fotoelementlar to‘plami, eshikdagi proyemda xavfsizlikni ta'minlaydi.

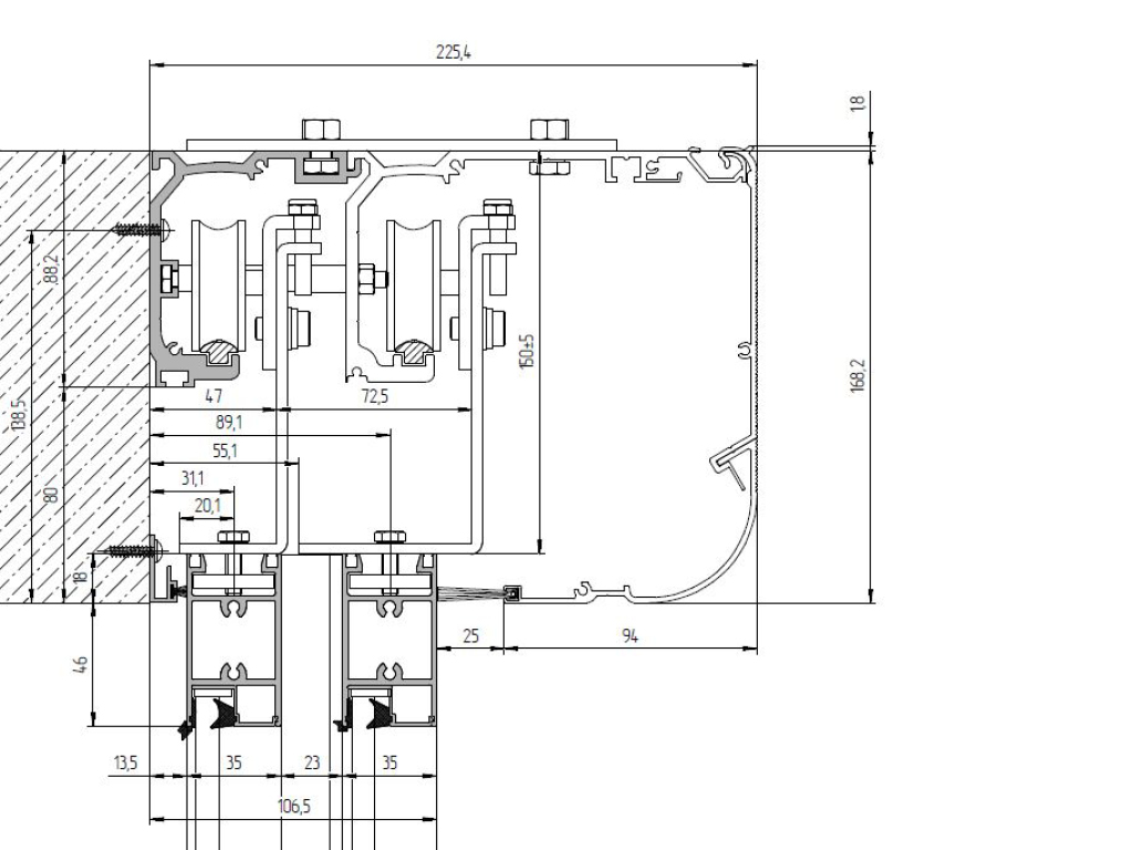
Texnik tavsif
O'lchamlar jadvali
Konstruktsiya
Standart konstruktiv yechimlar
Texnik xususiyatlar
Mahsulotni ishlatish shartlari
Qadoqlash
Параметр
Показатель
Высота проема, мм
2 505–4 000
Ширина проема для одностворчатых дверей, мм
3 010–6 200 (bitta harakatlanmaydigan, qanotli eshik va framuqa bilan)
Притолока, мм
Zarur emas
  1. Qanotning vertikal profili
  2. Qanotning gorizontal profili
  3. Shtepik
  4. To‘ldirish 8 mm, 9 mm (shtepik bilan) yoki 24 mm (shtepiksiz)
  5. Ichki muhr
  6. Tashqi muhr
  7. Markaziy muhr

Bitta eshik qanoti (chapga ochiladigan).

Bitta eshik qanoti (chapga ochiladigan).

Усл. обозначение, наименование параметра Расчетная формула
B, мм Ширина проема 2 500 gacha
H, мм Высота проема 3000 gacha
Chapga ochiladigan bitta eshik qanoti, framuqali, bitta harakatlanmaydigan va bitta qanotli eshik konstruktsiyalarida.

Chapga ochiladigan bitta eshik qanoti, framuqali, bitta harakatlanmaydigan va bitta qanotli eshik konstruktsiyalarida.

Усл. обозначение, наименование параметра Расчетная формула
B, мм Ширина проема 3 010–6 200
H, мм Высота проема 2 505–4 000
W, мм Ширина прохода 1 200–2 500
K, мм Высота прохода 2 129–2 529
Bitta eshik qanoti va bitta harakatlanmaydigan qanot bilan eshik (chapga ochiladigan).

Bitta eshik qanoti va bitta harakatlanmaydigan qanot bilan eshik (chapga ochiladigan).

Усл. обозначение, наименование параметра Расчетная формула
B, мм Ширина проема 5 000 gacha
H, мм Высота проема 3 000 gacha
Ikki qanotli eshik, ikkita harakatlanmaydigan qanot bilan.

Ikki qanotli eshik, ikkita harakatlanmaydigan qanot bilan.

Усл. обозначение, наименование параметра Расчетная формула
B, мм Ширина проема 6000 gacha
H, мм Высота проема 3000 gacha
Bitta eshik qanoti, bitta harakatlanmaydigan qanot va framuqasi bilan eshik (o‘ngga ochiladigan).

Bitta eshik qanoti, bitta harakatlanmaydigan qanot va framuqasi bilan eshik (o‘ngga ochiladigan).

Усл. обозначение, наименование параметра Расчетная формула
B, мм Ширина проема 1 184–6 200
H, мм Высота проема 2 200–4 000
W, мм Ширина прохода 700–3 000
K, мм Высота прохода 1 800–3 000
Ikki qanotli eshik, ikkita harakatlanmaydigan qanot va framuqasi bilan eshik.

Ikki qanotli eshik, ikkita harakatlanmaydigan qanot va framuqasi bilan eshik.

Усл. обозначение, наименование параметра Расчетная формула
B, мм Ширина проема 1 806–6 200
H, мм Высота проема 2 200–4 000
W, мм Ширина прохода 1 000–3 000
K, мм Высота прохода 1 800–3 000
Ikki qanotli eshik, ikkita butun shishadan yasalgan qanot bilan.

Ikki qanotli eshik, ikkita butun shishadan yasalgan qanot bilan.

Усл. обозначение, наименование параметра Расчетная формула
B, мм Ширина проема 3000 gacha
H, мм Высота проема 3000 gacha
Усл. обозначение, наименование параметра Расчетная формула
H, мм Высота проема от 2 000 до 2 400
B, мм Ширина проема от 700 до 1 250
Параметр Значение Примечание
Толщина профилей, мм 35
Толщина заполнения, мм 8 yoki 9 Yengillashtirilgan qanot
Максимальная высота, м 4
Максимальный вес створки, кг. 200/180 Bir qanotli eshik / ikki qanotli eshik
Двигатель, В 24
Мощность, Вт 100
Напряжение питания, В 220
Диапазон рабочих температур, °С -20…+70
Интенсивность использования, % 100 Intensiv o‘tish uchun, kunu-tun ishlash uchun

1. Eshikning elektrdriveli korpusini xonadan tashqariga, ko‘cha tomonidan o‘rnatish qat'iyan man etiladi.

2. Eshik qanotlarini qo‘lda ochish va yopish faqat favqulodda holatlarda (elektr energiyasi yo‘qligida) yoki sozlash ishlari jarayonida amalga oshiriladi.

3. Eshik qanotlarini qo‘lda ochish va yopishda katta kuch sarflamaslik kerak. Eshik qanotlarini keskin urish bilan ochish taqiqlanadi.

4. Bolalar va hayvonlarning eshik qanotlarini ochish/yopish zonasida uzoq vaqt bo‘lmasligiga e'tibor bering.

5. Bloklangan eshiklarni qo‘l bilan surib ochishga, barmoqlarni yoki tashqi obyektlarni harakatlanuvchi qanot bilan pol orasidagi bo‘shliqlarga tiqishga qat'iyan taqiqlanadi, chunki bu jarohatlarga olib kelishi mumkin.

6. Eshik qanotlarini o‘tish paytida urishdan saqlaning va ularning ochilishiga yoki yopilishiga to‘sqinlik qilmang. Eshik qanotlari harakati zonasida yugurish yoki turish taqiqlanadi.

7. Eshiklarning harakatlanishi davomida ularning yo‘lida begona narsalar va axlat bo‘lmasligiga e’tibor bering: bunday narsalar mavjudligi eshikning qiyshayishiga, qulfni to‘xtatishiga va eshik avtomatikasining buzilishiga olib kelishi mumkin.

8. Polga o‘rnatilgan yo‘riqnomalar va yuk ko‘taruvchi g‘ildiraklarni ifloslanishdan saqlang, chunki bu eshiklarning silliq harakatini buzilishiga, ularning to‘xtashiga va elektr dvigatelining ishlamasligiga olib kelishi mumkin.

9. Avtomatik eshiklarning qovoqlari eshik ochilish/yaqilish tsiklida yo‘riqnomali poydevor bo‘ylab silliq harakatlanishi kerak, shuningdek, eshiklar to‘liq ochilgan yoki yopilgan holatga yetganda majburiy to‘xtash amalga oshirilishi zarur.

10. Eshikni xavfsizlik elementlari, masalan, fotoelementlar yoki IR-panellar o‘rnatilmagan holda ishlatish qat’iyan man etiladi.

Упаковка в картон Характеристики упаковки
Drevoshtanga qo‘yilgan polistirol bloklari bilan yog‘och palet. Profil g‘ofrokarton varaqi bilan o‘ralgan va PP lentasi bilan mustahkamlangan
Упаковка в пузырчатую пленку Характеристики упаковки
Qadoqlashda profillar pufakli plyonka bilan o‘ralgan va logotipli skotch bilan mustahkamlangan. Bitta qadoqdagi profillarning og‘irligi 35 kg dan ortiq emas
Упаковка на палету Характеристики упаковки
Pufakli plyonkaga o‘ralgan profil paketlari polistirol ramkali paletaga joylashtiriladi va skotch bilan mustahkamlanadi
Qo‘shimcha tavsif chop etish

Sursiz eshiklarni nafaqat alohida o‘rnatish, balki binoning fasadiga yoki kirish guruhiga integratsiya qilish ham mumkin.

O'rnatish
Montaj usullari
Bino qurilishi uchun tayyorgarlik
Avtomatik eshik korpusining o‘tkazish joyiga o‘rnatilishi.
Avtomatik eshik korpusining o‘tkazish joyiga o‘rnatilishi.
Teleskopik eshik korpusining o‘tkazish joyiga o‘rnatilishi.
Teleskopik eshik korpusining o‘tkazish joyiga o‘rnatilishi.
  1. O‘tkazish joyi parametrlariga quyidagilar kiradi: N – o‘tkazish joyining balandligi (toza poldan o‘tkazish joyining yuqori qismigacha bo‘lgan masofa); B – o‘tkazish joyining kengligi (o‘tkazish joyining chap chetidan o‘ng chetiga bo‘lgan masofa); h – yuqori panelning balandligi (o‘tkazish joyining yuqori qismidan shiftgacha bo‘lgan masofa). Yuqori panel, o‘tkazish joyi kengligi va balandligini o‘lchash kamida ikki joyda amalga oshiriladi. Yakuniy o‘lcham har doim eng kichik qiymatga teng hisoblanadi.
  2. Sifatli montajni amalga oshirish va uning keyinchalik ishonchli ishlashini ta'minlash uchun, xonadagi o‘tkazish joyini tayyorlash zarur. O‘tkazish joyining tozaligiga qo‘yiladigan ma'lum talablar mavjud: O‘tkazish joyi to‘g‘ri burchakli shaklda bo‘lishi kerak. Ramka tekisliklarining yuzasi tekis va silliq bo‘lishi, gips eritmasi to‘kilmasligi va yoriqlar bo‘lmasligi kerak. Pol yuzasi tekis, gorizontal, chiqindilar va chuqurliklarsiz bo‘lishi kerak. 1 metrga 1 mm gacha og‘ish ruxsat etiladi. Vertikal va gorizontal yuzalar tekis bo‘lishi kerak, 1 metrga 1 mm gacha og‘ish ruxsat etiladi. Agar o‘tkazish joylari yuqoridagi talablar bo‘yicha og‘ishlar bilan tayyorlangan bo‘lsa, o‘lchovlar olishdan va montajni boshlashdan oldin bu og‘ishlarni bartaraf etish zarur. Yuqori panel va yon devorlar bir tekislikda bo‘lishi kerak. O‘tkazish joyining ramkasi mustahkam konstruktsiya, payvandlangan truba, fasad profili yoki vitraj shaklida bo‘lishi kerak.
Hujjatlar
Ko'rsatmalar
Pasportlar va sertifikatlar
Chizmalar

«Avtomatik surilmali eshik AD-SP privodi bilan» qo‘llanmasi

«Teleskopik eshik AD-SP-TELESCOPE privodi bilan» qo‘llanmasi

Avtomatik/teleskopik eshiklarning yengil qovoqlarini yig‘ish bo‘yicha qo‘llanma

«Antipanika» (ochish funksiyasi bilan) avtomatik eshiklarning qovoqlarini yig‘ish bo‘yicha qo‘llanma

Framuga va avtomatik eshik bilan konstruktsiyalarni yig‘ish bo‘yicha qo‘llanma

Raspxash eshik qovoqlari va framuga bilan avtomatik eshik konstruktsiyalarini yig‘ish bo‘yicha qo‘llanma

Kompleks harakat va xavfsizlik sensori AD-34 ni sozlash bo‘yicha qo‘llanma

Qovoq tayyorlash va o‘rnatish bo‘yicha talablar

Avtomatik surilmali eshik pasporti / AD-SP / AD-SP-TELESCOPE privodi

Alyuminiy profiliga muvofiqlik sertifikati

Avtomatik eshiklar uchun privodlarga muvofiqlik deklaratsiyasi

Asosiy qovoq profil va tarkibiy qismlarining katalogi (arxiv)

Avtomatik eshiklar uchun profil va tarkibiy qismlar katalogi, yengil qovoqlar bilan

Teleskopik eshiklar uchun profil va tarkibiy qismlar katalogi, yengil qovoqlar bilan

Avtomatik eshik "antipanika" uchun profil va tarkibiy qismlar katalogi

Avtomatik eshiklar uchun profil va tarkibiy qismlar katalogi, ikki eshikli konstruktsiyalarda

Kafolat majburiyatlari chop etish

Mijozga tizimning to‘liq komplektatsiyasiga 2 yil kafolat taqdim etiladi, agar ekspluatatsiya shartlari bajarilgan bo‘lsa, jo‘natish sanasidan boshlab.

Yangi mahsulotlar
Simsiz (tizzali) tugma AD-30 eshikni qo‘lda ochish uchun mo‘ljallangan bo‘lib, uni nafaqat toza xonalarda (operatsion va laboratoriya bo‘limlari), balki ofis va savdo joylarida ham ishlatish mumkin.

Simsiz (tizzali) tugma AD-30 eshikni qo‘lda ochish uchun mo‘ljallangan bo‘lib, uni nafaqat toza xonalarda (operatsion va laboratoriya bo‘limlari), balki ofis va savdo joylarida ham ishlatish mumkin.

AD-34 sensori – kombineytlangan turdagi qurilma bo‘lib, bitta korpusda mikroto‘lqinli harakat sensori-radar va infraqizil mavjudlik pardasini birlashtiradi. Ushbu sensor avtomatik surilmali eshikda AD-SP privodi bilan o‘rnatilgan holda xavfsizlik fotoelementlari juftligini o‘rniga yoki ular bilan birgalikda ishlashi mumkin.

AD-34 sensori – kombineytlangan turdagi qurilma bo‘lib, bitta korpusda mikroto‘lqinli harakat sensori-radar va infraqizil mavjudlik pardasini birlashtiradi. Ushbu sensor avtomatik surilmali eshikda AD-SP privodi bilan o‘rnatilgan holda xavfsizlik fotoelementlari juftligini o‘rniga yoki ular bilan birgalikda ishlashi mumkin.

Dizayn
To‘ldirish dizayni
Qanotlarning ikki tomonlama bo‘yalganligi. Har qanday turdagi, 8, 9 yoki 24 mm qalinlikdagi to‘ldirish mavjudligi.
Qanotlarning ikki tomonlama bo‘yalganligi. Har qanday turdagi, 8, 9 yoki 24 mm qalinlikdagi to‘ldirish mavjudligi.
Standart ranglar
RAL 9016 (oq)
RAL 9016 (oq)
RAL 9006 (silliq metall)
RAL 9006 (silliq metall)
RAL 7004 (kulrang)
RAL 7004 (kulrang)
RAL 1014 (bej)
RAL 1014 (bej)
RAL 2004 (to'q sariq)
RAL 2004 (to'q sariq)
RAL 3020 (qizil)
RAL 3020 (qizil)
RAL 3005 (bordo)
RAL 3005 (bordo)
RAL 6018 (ochiq yashil)
RAL 6018 (ochiq yashil)
RAL 6005 (yashil)
RAL 6005 (yashil)
RAL 7016 (antratsit)
RAL 7016 (antratsit)
RAL 5005 (ko'k)
RAL 5005 (ko'k)
RAL 8017 (jigarrang-qizil)
RAL 8017 (jigarrang-qizil)
RAL 9005 (qora)
RAL 9005 (qora)
RAL 8014 (jigarrang)
RAL 8014 (jigarrang)
Komplektatsiya
Bazaviy to'plam
Elektr motor (art. AD-01SP).

Elektr motor (art. AD-01SP).

Kontroller (art. AD-03SP).

Kontroller (art. AD-03SP).

Rejimlarni o'zgartirish tugmasi ekrani bilan (art. AD-08SP).

Rejimlarni o'zgartirish tugmasi ekrani bilan (art. AD-08SP).

Harakat sensori (art. AD-06, 1 dona).

Harakat sensori (art. AD-06, 1 dona).

Kompleks harakat va xavfsizlik sensori (art. AD-34, 1 dona).

Kompleks harakat va xavfsizlik sensori (art. AD-34, 1 dona).

Tortish roliki (art. AD-14SP, 1 dona).

Tortish roliki (art. AD-14SP, 1 dona).

Karsetkalar to‘plami (art. AD-15SP, 4 dona) AD-SP drivermizda.

Karsetkalar to‘plami (art. AD-15SP, 4 dona) AD-SP drivermizda.

* Karsetkalar to‘plami (4 dona) tashqi qanotlar uchun AD-SP-TELESCOPE drivida.

* Karsetkalar to‘plami (4 dona) tashqi qanotlar uchun AD-SP-TELESCOPE drivida.

* Karsetkalar to‘plami (4 dona) ichki qanotlar uchun AD-SP-TELESCOPE drivida.

* Karsetkalar to‘plami (4 dona) ichki qanotlar uchun AD-SP-TELESCOPE drivida.

Yon qopqoq to‘plami (art. AD-16SP, 2 dona) AD-SPda / *(art. AD-16SPTel, 2 dona) AD-SP-TELESCOPEda.

Yon qopqoq to‘plami (art. AD-16SP, 2 dona) AD-SPda / *(art. AD-16SPTel, 2 dona) AD-SP-TELESCOPEda.

Driv belti (art. AD-17, 11 m).

Driv belti (art. AD-17, 11 m).

To‘plam to‘xtatuvchilari (art. AD-19SP, 2 dona) AD-SP drivida.

To‘plam to‘xtatuvchilari (art. AD-19SP, 2 dona) AD-SP drivida.

* To‘plam to‘xtatuvchilari (2 dona) AD-SP-TELESCOPE drivida.

* To‘plam to‘xtatuvchilari (2 dona) AD-SP-TELESCOPE drivida.

Bel't ushlagichlari to‘plami (art. AD-20SP, 2 dona).

Bel't ushlagichlari to‘plami (art. AD-20SP, 2 dona).

Pastki yo‘riqnomani polga (art. TPP-001-32D, 2 dona).

Pastki yo‘riqnomani polga (art. TPP-001-32D, 2 dona).

Korpus qopqoq bilan (art. AHDS35 2009, 2011, 2012) AD-SP driviga / *(art. AHDS35 2019-2023) AD-SP-TELESCOPE driviga.

Korpus qopqoq bilan (art. AHDS35 2009, 2011, 2012) AD-SP driviga / *(art. AHDS35 2019-2023) AD-SP-TELESCOPE driviga.

Rayon bilan muhr (art. AHDS35 2010 c AD-29) AD-SP driviga / *(art. AHDS35 2023 c AD-29TEL, 2 dona) AD-SP-TELESCOPE driviga.

Rayon bilan muhr (art. AHDS35 2010 c AD-29) AD-SP driviga / *(art. AHDS35 2023 c AD-29TEL, 2 dona) AD-SP-TELESCOPE driviga.

Fotoelement uchun profil (art. AHDS35 0213, 2 dona).

Fotoelement uchun profil (art. AHDS35 0213, 2 dona).

Vertikal profil eshik qanoti, uchida 30 × 35 mm o‘yma bilan (art. AHDS35 0106.FREZ).

Vertikal profil eshik qanoti, uchida 30 × 35 mm o‘yma bilan (art. AHDS35 0106.FREZ).

Gorizontal profil eshik qanoti, 64 × 35 mm (art. AHDS35 0108).

Gorizontal profil eshik qanoti, 64 × 35 mm (art. AHDS35 0108).

Qo‘shimcha plitalar to‘plami (art. AD-100KIT, 2 to‘plam).

Qo‘shimcha plitalar to‘plami (art. AD-100KIT, 2 to‘plam).

Qo'shimcha to'plam
AD-07SP – elektromexanik qulflar AD-SP driviga, ruxsatsiz kirishdan ishonchli himoya ta'minlaydi / *(art. AD-07SPTEL) AD-SP-TELESCOPE driviga.

AD-07SP – elektromexanik qulflar AD-SP driviga, ruxsatsiz kirishdan ishonchli himoya ta'minlaydi / *(art. AD-07SPTEL) AD-SP-TELESCOPE driviga.

AD-27 – akkumulyator batareyasi (sig‘imi 2,0 Ah) eshigni tashqi quvvatlanishsiz 15–30 daqiqa davomida (170 tsikl) uzluksiz ishlashini ta'minlaydi.

AD-27 – akkumulyator batareyasi (sig‘imi 2,0 Ah) eshigni tashqi quvvatlanishsiz 15–30 daqiqa davomida (170 tsikl) uzluksiz ishlashini ta'minlaydi.

AD-30 – simsiz (loktevaya) PUSH tugmasi. Harakat sensori o‘rniga eshikni qo‘l bilan boshqarish uchun ishlatiladi (eshikni tugmani bosish orqali ochish).

AD-30 – simsiz (loktevaya) PUSH tugmasi. Harakat sensori o‘rniga eshikni qo‘l bilan boshqarish uchun ishlatiladi (eshikni tugmani bosish orqali ochish).

AD-31 – bekontakt infratuzilish tugmasi. Harakat sensori o‘rniga eshikni qo‘l bilan bekontakt boshqarish uchun ishlatiladi (1 dan 15 sm gacha).

AD-31 – bekontakt infratuzilish tugmasi. Harakat sensori o‘rniga eshikni qo‘l bilan bekontakt boshqarish uchun ishlatiladi (1 dan 15 sm gacha).

AD-32 – ish rejimini almashtirish tugmasi kalit bilan (5 rejim). Eshikni boshqarishning cheklangan kirishini ta'minlab, ekrani bo‘lgan rejim almashtirish tugmasi o‘rniga ishlatiladi.

AD-32 – ish rejimini almashtirish tugmasi kalit bilan (5 rejim). Eshikni boshqarishning cheklangan kirishini ta'minlab, ekrani bo‘lgan rejim almashtirish tugmasi o‘rniga ishlatiladi.

AD-34 – kombinatsiyalangan harakat va xavfsizlik sensori. Bir korpusda mikroto‘lqinli harakat radarini va eshikdagi xavfsizlik infraqizil parda sensori birlashtiradi.

AD-34 – kombinatsiyalangan harakat va xavfsizlik sensori. Bir korpusda mikroto‘lqinli harakat radarini va eshikdagi xavfsizlik infraqizil parda sensori birlashtiradi.

AD-09 – fotoelementlar to‘plami, eshikdagi proyemda xavfsizlikni ta'minlaydi.

AD-09 – fotoelementlar to‘plami, eshikdagi proyemda xavfsizlikni ta'minlaydi.

Texnik tavsif
O'lchamlar jadvali
Параметр
Показатель
Высота проема, мм
2 505–4 000
Ширина проема для одностворчатых дверей, мм
3 010–6 200 (bitta harakatlanmaydigan, qanotli eshik va framuqa bilan)
Притолока, мм
Zarur emas
Konstruktsiya
  1. Qanotning vertikal profili
  2. Qanotning gorizontal profili
  3. Shtepik
  4. To‘ldirish 8 mm, 9 mm (shtepik bilan) yoki 24 mm (shtepiksiz)
  5. Ichki muhr
  6. Tashqi muhr
  7. Markaziy muhr
Standart konstruktiv yechimlar

Bitta eshik qanoti (chapga ochiladigan).

Bitta eshik qanoti (chapga ochiladigan).

Усл. обозначение, наименование параметра Расчетная формула
B, мм Ширина проема 2 500 gacha
H, мм Высота проема 3000 gacha
Chapga ochiladigan bitta eshik qanoti, framuqali, bitta harakatlanmaydigan va bitta qanotli eshik konstruktsiyalarida.

Chapga ochiladigan bitta eshik qanoti, framuqali, bitta harakatlanmaydigan va bitta qanotli eshik konstruktsiyalarida.

Усл. обозначение, наименование параметра Расчетная формула
B, мм Ширина проема 3 010–6 200
H, мм Высота проема 2 505–4 000
W, мм Ширина прохода 1 200–2 500
K, мм Высота прохода 2 129–2 529
Bitta eshik qanoti va bitta harakatlanmaydigan qanot bilan eshik (chapga ochiladigan).

Bitta eshik qanoti va bitta harakatlanmaydigan qanot bilan eshik (chapga ochiladigan).

Усл. обозначение, наименование параметра Расчетная формула
B, мм Ширина проема 5 000 gacha
H, мм Высота проема 3 000 gacha
Ikki qanotli eshik, ikkita harakatlanmaydigan qanot bilan.

Ikki qanotli eshik, ikkita harakatlanmaydigan qanot bilan.

Усл. обозначение, наименование параметра Расчетная формула
B, мм Ширина проема 6000 gacha
H, мм Высота проема 3000 gacha
Bitta eshik qanoti, bitta harakatlanmaydigan qanot va framuqasi bilan eshik (o‘ngga ochiladigan).

Bitta eshik qanoti, bitta harakatlanmaydigan qanot va framuqasi bilan eshik (o‘ngga ochiladigan).

Усл. обозначение, наименование параметра Расчетная формула
B, мм Ширина проема 1 184–6 200
H, мм Высота проема 2 200–4 000
W, мм Ширина прохода 700–3 000
K, мм Высота прохода 1 800–3 000
Ikki qanotli eshik, ikkita harakatlanmaydigan qanot va framuqasi bilan eshik.

Ikki qanotli eshik, ikkita harakatlanmaydigan qanot va framuqasi bilan eshik.

Усл. обозначение, наименование параметра Расчетная формула
B, мм Ширина проема 1 806–6 200
H, мм Высота проема 2 200–4 000
W, мм Ширина прохода 1 000–3 000
K, мм Высота прохода 1 800–3 000
Ikki qanotli eshik, ikkita butun shishadan yasalgan qanot bilan.

Ikki qanotli eshik, ikkita butun shishadan yasalgan qanot bilan.

Усл. обозначение, наименование параметра Расчетная формула
B, мм Ширина проема 3000 gacha
H, мм Высота проема 3000 gacha
Усл. обозначение, наименование параметра Расчетная формула
H, мм Высота проема от 2 000 до 2 400
B, мм Ширина проема от 700 до 1 250
Texnik xususiyatlar
Параметр Значение Примечание
Толщина профилей, мм 35
Толщина заполнения, мм 8 yoki 9 Yengillashtirilgan qanot
Максимальная высота, м 4
Максимальный вес створки, кг. 200/180 Bir qanotli eshik / ikki qanotli eshik
Двигатель, В 24
Мощность, Вт 100
Напряжение питания, В 220
Диапазон рабочих температур, °С -20…+70
Интенсивность использования, % 100 Intensiv o‘tish uchun, kunu-tun ishlash uchun
Mahsulotni ishlatish shartlari

1. Eshikning elektrdriveli korpusini xonadan tashqariga, ko‘cha tomonidan o‘rnatish qat'iyan man etiladi.

2. Eshik qanotlarini qo‘lda ochish va yopish faqat favqulodda holatlarda (elektr energiyasi yo‘qligida) yoki sozlash ishlari jarayonida amalga oshiriladi.

3. Eshik qanotlarini qo‘lda ochish va yopishda katta kuch sarflamaslik kerak. Eshik qanotlarini keskin urish bilan ochish taqiqlanadi.

4. Bolalar va hayvonlarning eshik qanotlarini ochish/yopish zonasida uzoq vaqt bo‘lmasligiga e'tibor bering.

5. Bloklangan eshiklarni qo‘l bilan surib ochishga, barmoqlarni yoki tashqi obyektlarni harakatlanuvchi qanot bilan pol orasidagi bo‘shliqlarga tiqishga qat'iyan taqiqlanadi, chunki bu jarohatlarga olib kelishi mumkin.

6. Eshik qanotlarini o‘tish paytida urishdan saqlaning va ularning ochilishiga yoki yopilishiga to‘sqinlik qilmang. Eshik qanotlari harakati zonasida yugurish yoki turish taqiqlanadi.

7. Eshiklarning harakatlanishi davomida ularning yo‘lida begona narsalar va axlat bo‘lmasligiga e’tibor bering: bunday narsalar mavjudligi eshikning qiyshayishiga, qulfni to‘xtatishiga va eshik avtomatikasining buzilishiga olib kelishi mumkin.

8. Polga o‘rnatilgan yo‘riqnomalar va yuk ko‘taruvchi g‘ildiraklarni ifloslanishdan saqlang, chunki bu eshiklarning silliq harakatini buzilishiga, ularning to‘xtashiga va elektr dvigatelining ishlamasligiga olib kelishi mumkin.

9. Avtomatik eshiklarning qovoqlari eshik ochilish/yaqilish tsiklida yo‘riqnomali poydevor bo‘ylab silliq harakatlanishi kerak, shuningdek, eshiklar to‘liq ochilgan yoki yopilgan holatga yetganda majburiy to‘xtash amalga oshirilishi zarur.

10. Eshikni xavfsizlik elementlari, masalan, fotoelementlar yoki IR-panellar o‘rnatilmagan holda ishlatish qat’iyan man etiladi.

Qadoqlash
Упаковка в картон Характеристики упаковки
Drevoshtanga qo‘yilgan polistirol bloklari bilan yog‘och palet. Profil g‘ofrokarton varaqi bilan o‘ralgan va PP lentasi bilan mustahkamlangan
Упаковка в пузырчатую пленку Характеристики упаковки
Qadoqlashda profillar pufakli plyonka bilan o‘ralgan va logotipli skotch bilan mustahkamlangan. Bitta qadoqdagi profillarning og‘irligi 35 kg dan ortiq emas
Упаковка на палету Характеристики упаковки
Pufakli plyonkaga o‘ralgan profil paketlari polistirol ramkali paletaga joylashtiriladi va skotch bilan mustahkamlanadi
Qo‘shimcha tavsif

Sursiz eshiklarni nafaqat alohida o‘rnatish, balki binoning fasadiga yoki kirish guruhiga integratsiya qilish ham mumkin.

O'rnatish
Montaj usullari
Avtomatik eshik korpusining o‘tkazish joyiga o‘rnatilishi.
Avtomatik eshik korpusining o‘tkazish joyiga o‘rnatilishi.
Teleskopik eshik korpusining o‘tkazish joyiga o‘rnatilishi.
Teleskopik eshik korpusining o‘tkazish joyiga o‘rnatilishi.
Bino qurilishi uchun tayyorgarlik
  1. O‘tkazish joyi parametrlariga quyidagilar kiradi: N – o‘tkazish joyining balandligi (toza poldan o‘tkazish joyining yuqori qismigacha bo‘lgan masofa); B – o‘tkazish joyining kengligi (o‘tkazish joyining chap chetidan o‘ng chetiga bo‘lgan masofa); h – yuqori panelning balandligi (o‘tkazish joyining yuqori qismidan shiftgacha bo‘lgan masofa). Yuqori panel, o‘tkazish joyi kengligi va balandligini o‘lchash kamida ikki joyda amalga oshiriladi. Yakuniy o‘lcham har doim eng kichik qiymatga teng hisoblanadi.
  2. Sifatli montajni amalga oshirish va uning keyinchalik ishonchli ishlashini ta'minlash uchun, xonadagi o‘tkazish joyini tayyorlash zarur. O‘tkazish joyining tozaligiga qo‘yiladigan ma'lum talablar mavjud: O‘tkazish joyi to‘g‘ri burchakli shaklda bo‘lishi kerak. Ramka tekisliklarining yuzasi tekis va silliq bo‘lishi, gips eritmasi to‘kilmasligi va yoriqlar bo‘lmasligi kerak. Pol yuzasi tekis, gorizontal, chiqindilar va chuqurliklarsiz bo‘lishi kerak. 1 metrga 1 mm gacha og‘ish ruxsat etiladi. Vertikal va gorizontal yuzalar tekis bo‘lishi kerak, 1 metrga 1 mm gacha og‘ish ruxsat etiladi. Agar o‘tkazish joylari yuqoridagi talablar bo‘yicha og‘ishlar bilan tayyorlangan bo‘lsa, o‘lchovlar olishdan va montajni boshlashdan oldin bu og‘ishlarni bartaraf etish zarur. Yuqori panel va yon devorlar bir tekislikda bo‘lishi kerak. O‘tkazish joyining ramkasi mustahkam konstruktsiya, payvandlangan truba, fasad profili yoki vitraj shaklida bo‘lishi kerak.
Kafolat majburiyatlari

Mijozga tizimning to‘liq komplektatsiyasiga 2 yil kafolat taqdim etiladi, agar ekspluatatsiya shartlari bajarilgan bo‘lsa, jo‘natish sanasidan boshlab.

Hujjatlar
Ko'rsatmalar

«Avtomatik surilmali eshik AD-SP privodi bilan» qo‘llanmasi

«Teleskopik eshik AD-SP-TELESCOPE privodi bilan» qo‘llanmasi

Avtomatik/teleskopik eshiklarning yengil qovoqlarini yig‘ish bo‘yicha qo‘llanma

«Antipanika» (ochish funksiyasi bilan) avtomatik eshiklarning qovoqlarini yig‘ish bo‘yicha qo‘llanma

Framuga va avtomatik eshik bilan konstruktsiyalarni yig‘ish bo‘yicha qo‘llanma

Raspxash eshik qovoqlari va framuga bilan avtomatik eshik konstruktsiyalarini yig‘ish bo‘yicha qo‘llanma

Kompleks harakat va xavfsizlik sensori AD-34 ni sozlash bo‘yicha qo‘llanma

Qovoq tayyorlash va o‘rnatish bo‘yicha talablar

Pasportlar va sertifikatlar

Avtomatik surilmali eshik pasporti / AD-SP / AD-SP-TELESCOPE privodi

Alyuminiy profiliga muvofiqlik sertifikati

Avtomatik eshiklar uchun privodlarga muvofiqlik deklaratsiyasi

Chizmalar

Asosiy qovoq profil va tarkibiy qismlarining katalogi (arxiv)

Avtomatik eshiklar uchun profil va tarkibiy qismlar katalogi, yengil qovoqlar bilan

Teleskopik eshiklar uchun profil va tarkibiy qismlar katalogi, yengil qovoqlar bilan

Avtomatik eshik "antipanika" uchun profil va tarkibiy qismlar katalogi

Avtomatik eshiklar uchun profil va tarkibiy qismlar katalogi, ikki eshikli konstruktsiyalarda

Buyurtma berish
Kompaniya menejerlari barcha savollaringizga telefon orqali javob berishadi::