Catalog

FHSD seriyali tezkor muzlatkich darvozalar

Muzlatish kameralarida barqaror manfiy haroratni saqlab turish — oziq-ovqat ishlab chiqarish korxonalari, sovitish kombinatlari va logistika markazlari uchun asosiy vazifadir. Standart darvozalar sekin ochilib va yopilib, ulkan issiqlik oqimlariga, qirov hosil bo'lishiga va elektr energiyasiga katta xarajatlarga olib keladi. DoorHan konserni nafaqat o'tish joyini yopish, balki uni ishonchli termoizolyatsiya qilish va energiya yo'qotishlarini minimallashtirish uchun yaratilgan yuqori texnologiyali majmua — FHSD seriyali ixtisoslashtirilgan yuqori tezlikdagi muzlatish darvozalarini taqdim etadi.

Ikki qavatli polotno — sovuqdan ikki karra himoya. FHSD darvozalarini ajratib turadigan asosiy narsa — bu mustahkam armaturalangan PVXdan yasalgan ikkita mustaqil polotnoli noyob konstruksiyasidir. Ushbu ikki polotno o'rtasida termos kabi ishlaydigan havo yostig'i hosil bo'ladi:

  • Samarali termouzulish: Havo qatlami issiq va sovuq zonalar o'rtasidagi issiqlik almashinuvini keskin kamaytiradigan ajoyib issiqlik izolyatoridir. Bu kameradagi haroratni -25°C gacha saqlashga imkon beradi va sovitish uskunalariga tushadigan yukni sezilarli darajada kamaytiradi.
  • Muzlashning oldini olish: Tashqaridagi issiq va nam havo kameraga qaragan sovuq polotno bilan to'g'ridan-to'g'ri aloqa qilmaydi. Bu standart yechimlarning asosiy muammosi bo'lgan polotnoda va darvoza o'tish joyida qirov, muz va kondensat hosil bo'lishini deyarli butunlay istisno qiladi.

Sovuqni (va pulni) tejaydigan tezlik. FHSD darvozalari yuqori tezlikda ochiladi va yopiladi. Muzlatish kameralari uchun bu to'g'ridan-to'g'ri iqtisodiy foyda keltiradi:

  • Issiqlik oqimlarini minimallashtirish: O'tish joyi minimal mumkin bo'lgan vaqt davomida ochiq qoladi. Bu kameraga issiq havo kirishini keskin kamaytiradi, bu esa sovitish agregatlarining tejamkorroq rejimda ishlashiga va to'liq quvvatda kamroq yoqilishiga imkon beradi.
  • Trafikni optimallashtirish: Yuk ortgichlar va xodimlar zonalar o'rtasida kechikishlarsiz harakatlanishi mumkin, bu mehnat unumdorligini oshiradi.

Uzluksiz ishlash uchun intellektual isitish. Past haroratlar sharoitida uzluksiz ishlashni kafolatlash uchun FHSD darvozalari barcha asosiy tugunlarni isitish tizimi bilan jihozlangan: yo'naltiruvchilar, ustunlar va hatto privod dvigateli. Bu mexanizmlarning muzlashi va qirov bosishini oldini oladi va darvozalarning 24/7 barqaror ishlashini ta'minlaydi.

Xavfsizlik — bizning ustuvorligimiz. Xodimlar va texnikani himoya qilish uchun darvoza o'tish joyiga o'rnatilgan yorug'lik pardasi (фотозавеса) o'rnatiladi. U yaxlit ko'rinmas to'siq yaratadi va u har qanday ob'ekt tomonidan kesib o'tilganda, darvoza harakatini bir zumda va xavfsiz tarzda orqaga qaytaradi, bu to'qnashuv ehtimolini butunlay istisno qiladi. FHSD muzlatish darvozalarini tanlab, siz korxonangizda energiya sarfini kamaytirish, samaradorlikni oshirish va barqaror sovuqni saqlash uchun eng samarali yechimga sarmoya kiritasiz.

Qo'llanilish sohasi:
Muzlatkich kameralar. Past harorat rejimini saqlashni talab qiladigan xonalar
Buffer kamera. Past harorat rejimini saqlashni talab qiladigan xonalar
Afzalliklar
Sovuqqa chidamliligi
Muzlatgichlarda -30 °C gacha bo'lgan haroratlarda barqaror ishlash.
Izolyatsiya qilingan mato
Darvozaning to‘qimasi yuqori mustahkam tolalardan yasalgan poliuretan qoplamali ikki qatlamli kord matodan tayyorlangan.
Qattiqlik
Darvoza teshigini isitish va siqishning noyob tizimi.
O'z-o'zini davolash
Tasodifiy zarba tufayli to‘qima avtomatik ravishda yo‘naltiruvchilarga qayta joylashadi va keyingi yopilish tsiklida o‘rniga keladi.
Avtomatlashtirish imkoniyati
Ishonchli, o‘z ishlab chiqarishimiz bo‘lgan avtomatika.
Qo'shimcha variantlar
Turli qo‘shimcha uskunalarni o‘rnatish imkoniyati.
Sovuqqa chidamliligi
Muzlatgichlarda -30 °C gacha bo'lgan haroratlarda barqaror ishlash.
Izolyatsiya qilingan mato
Darvozaning to‘qimasi yuqori mustahkam tolalardan yasalgan poliuretan qoplamali ikki qatlamli kord matodan tayyorlangan.
Qattiqlik
Darvoza teshigini isitish va siqishning noyob tizimi.
O'z-o'zini davolash
Tasodifiy zarba tufayli to‘qima avtomatik ravishda yo‘naltiruvchilarga qayta joylashadi va keyingi yopilish tsiklida o‘rniga keladi.
Avtomatlashtirish imkoniyati
Ishonchli, o‘z ishlab chiqarishimiz bo‘lgan avtomatika.
Qo'shimcha variantlar
Turli qo‘shimcha uskunalarni o‘rnatish imkoniyati.
Dizayn
To‘qima ranglari
RAL 5002 (ko'k)
RAL 5002 (ko'k)
Komplektatsiya
Bazaviy to'plam
Qo'shimcha to'plam
Dvigatel valı va to‘qima o‘ralish valı, o‘z-o‘zini tiklash mexanizmi bilan.

Dvigatel valı va to‘qima o‘ralish valı, o‘z-o‘zini tiklash mexanizmi bilan.

Isitgichli yonaltiruvchi ustun

Isitgichli yonaltiruvchi ustun

Ikki qatlamli kord matodan yasalgan, yuqori kuchga ega tolalardan iborat poliuretan qoplamali panel, bo'shliq issiqlik izolatsiya materiali bilan to'ldirilgan.

Ikki qatlamli kord matodan yasalgan, yuqori kuchga ega tolalardan iborat poliuretan qoplamali panel, bo'shliq issiqlik izolatsiya materiali bilan to'ldirilgan.

Boshqaruv blokining korpusi zanglamaydigan po'latdan yasalgan: o'lchami — 250 × 490 × 140 mm; himoya darajasi — IP 54. Kuchlanish — 220-240 V / 50-60 Hz; quvvat — 1,5 kVt; himoya darajasi — IP 54.

Boshqaruv blokining korpusi zanglamaydigan po'latdan yasalgan: o'lchami — 250 × 490 × 140 mm; himoya darajasi — IP 54. Kuchlanish — 220-240 V / 50-60 Hz; quvvat — 1,5 kVt; himoya darajasi — IP 54.

Fotoelektron elementlari pol darajasidan 500 mm balandlikda o'rnatiladi (qo'shimchalar sifatida o'rnatish imkoni mavjud).

Fotoelektron elementlari pol darajasidan 500 mm balandlikda o'rnatiladi (qo'shimchalar sifatida o'rnatish imkoni mavjud).

Izolyatsion ramka isitish kabeli bilan issiqlik to'sig'ining funktsiyasini bajaradi.

Izolyatsion ramka isitish kabeli bilan issiqlik to'sig'ining funktsiyasini bajaradi.

Motor IP65

Motor IP65

Havo to'siqi (ventilyatorlar ikki tomondan)

Havo to'siqi (ventilyatorlar ikki tomondan)

Boshqaruv blokining isitilishi

Boshqaruv blokining isitilishi

Texnik tavsif
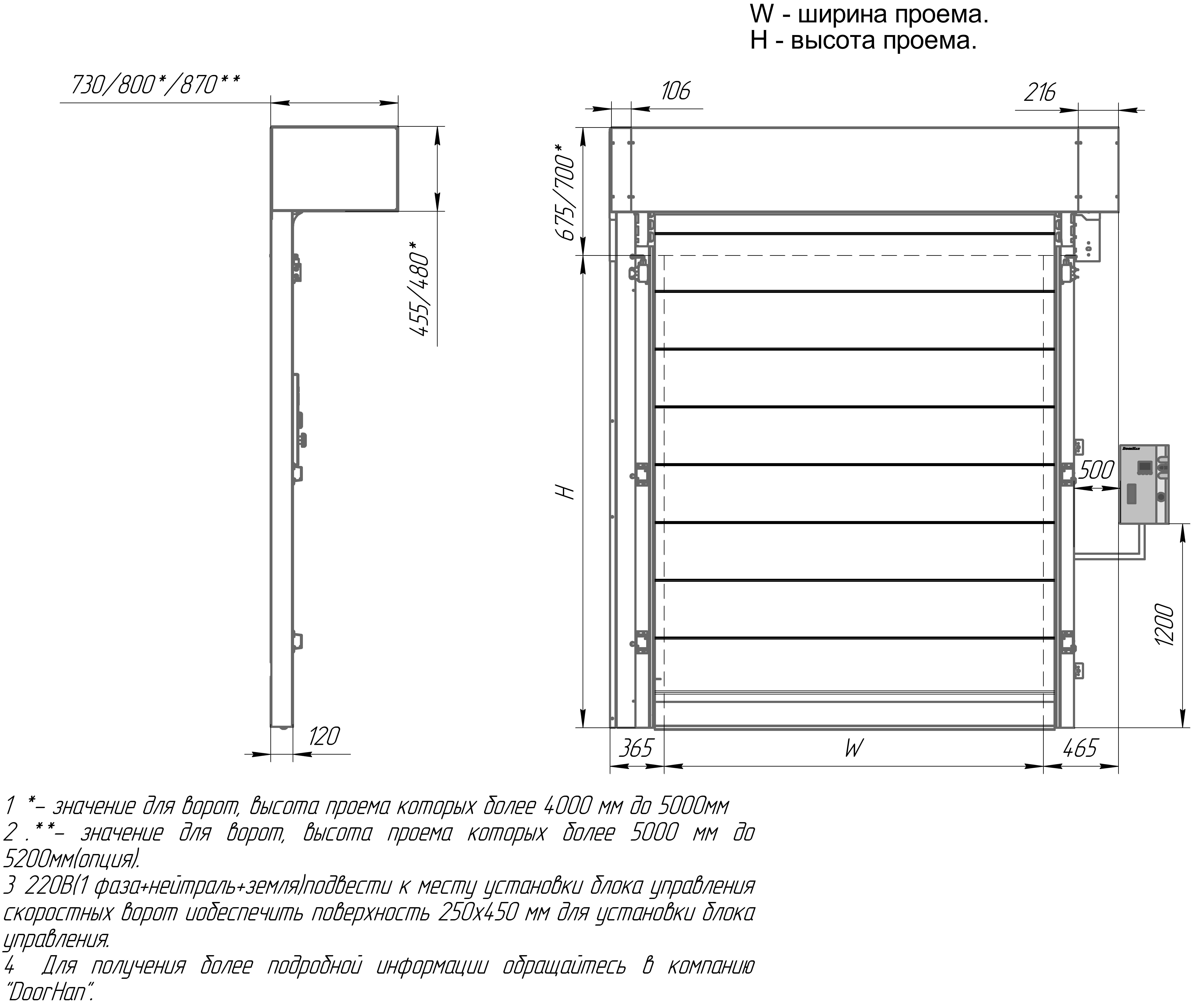
O'lchamlar jadvali
Konstruktsiya
Standart konstruktiv yechimlar
Texnik xususiyatlar
Mahsulotni ishlatish shartlari
Qadoqlash
Параметр
Показатель
Ширина проема, мм
1400–3370
Высота проема, мм
1800–5000 (variant 5200)
Притолока, мм
676+50, 697+50
Пристенки, мм
365+50/465+50 (tomonisiz haydash / haydash tomoni)
Глубина короба, мм
733, 803, 864
  1. Val
  2. Dvigatel valі
  3. Dvigatel
  4. Dvigatel qoplamasi
  5. Val qutisi
  6. To‘qima harakatini yo‘naltirish uchun ustun va yo‘riqnomasi
  7. Izolyatsion ramka bilan isitish kabeli
  8. Qarshi og‘irlik himoya qoplamasida
  9. Ikki qatlamli poliuretan to‘qimasi
  10. Fotoelementlar
  11. Boshqaruv bloki zanglamas po‘latdan yasalgan korpusda

Dvigatel yon tomondan.

Dvigatel yon tomondan.

Усл. обозначение, наименование параметра Расчетная формула
B, мм Ширина проема 1400–3370
H, мм Высота проема 1800–5000 (variant 5200)
Параметр Значение Примечание
Скорость открывания, м/с 0,8–1,6 м/с Darvoza o'lchamiga qarab, sozlanishi
Скорость закрывания, м/с 0,6 gacha Sozlanishi
Диапазон рабочих температур, °С -30…+50 °C
Герметичность Chok uzunligi birligiga havo o'tkazuvchanligi miqdori 5,4 m3 / (m h); maydon birligi uchun havo o'tkazuvchanligi - 8,2 m3 / (m h)
Сопротивление ветровой нагрузке, Па Nominal musbat bosim - 400 Pa; nominal salbiy bosim - 600 P
Коэффициент теплопроводности, Вт/(м·К) 3,0 Вт/(м2·К)
Мощность, Вт 1 500
Класс защиты IP IP54 (ixtiyoriy IP 65) Oxirgi holatlar enkoder orqali kuzatiladi
Напряжение питания, В 220 В / 50 Гц Yagona fazali
Безотказность, количество циклов открывания-закрывания, не менее 750 000
Элементы безопасности Darvozalar EN 13241 CN Yevropa standartiga mos keladi Bitta fotoelektron juftligi, pol darajasidan 500 mm balandlikda o'rnatilgan; chaqnaydigan indikator; sirena (ixtiyoriy).

Esiklarning ishonchli va uzluksiz ishlashini ta'minlash uchun ularni muntazam ravishda texnik tekshiruvdan va xizmat ko'rsatishdan o'tkazish tavsiya etiladi.

Esiklarni qo'lda ochish va yopish tormozlash vositasi yordamida amalga oshiriladi.

PVC panelining yo'naltiruvchisini ifloslanishdan saqlang.

Esiklarni ochish va yopish jarayonida yaralanishlarning oldini olish maqsadida, o‘tkazgichda bo‘lish taqiqlanadi.

Esiklarni ochish va yopish jarayonida o‘tkazgichda begona narsalar bo‘lmasligiga e'tibor bering.

Esik panelining yo'naltiruvchilarda o'z-o'zini tiklash funksiyasi avariya sharoitlarida, masalan, transport vositasining tasodifiy urishida esikning ishlashini ta'minlash uchun mo'ljallangan. U panelning yo'naltiruvchilardan maqsadli va tizimli tarzda chiqarilishiga qarshi ishlash uchun mo'ljallanmagan. Funksiyaning ishlashi, esik panelida o'rnatilgan "zipper" tizimi yordamida plastik yo'naltiruvchilardan chiqish imkoniyati bilan ta'minlanadi. Funksiya ishlashini, faqat individual komponentlarning mustahkamlik parametrlarini oshirib ta'sir qiluvchi zarbalar ta'sirida ta'minlash mumkin emas. Masalan, yuqori tezlikda panelga urish, o'tkir buyumlar bilan zarbalar, yuk ko'tarish mashinasining vilkalari bilan yuqori qismini urish va boshqalar. Panelga urilganidan so'ng, u avtomatik tarzda keyingi yopilish tsikliga o'tib, yo'naltiruvchilarga qaytadan o'rnatiladi.

Упаковка в дерево Характеристики упаковки
Состав Pufakchali plyonka, polistirol, yog'och pallet, yog'och laganlar
Длина, мм Esikning qismlarining uzunligiga bog'liq
Ширина, мм Esikning qismlarining kengligiga bog'liq
Высота, мм Esikning qismlarining balandligiga bog'liq
Qo‘shimcha tavsif chop etish

DoorHan konserni esiklarni yuk tashish transportiga gidravlik ko'tarish krani yoki vilkali ushlagichi kamida 2 m bo'lgan avtoupakovshik yordamida yuklaydi. Mijoz yoki o'rnatuvchi o'zi o'ralgan esiklarni ko'chirish uchun shunday uskunani ta'minlashi kerak. Vilka yog'och palletga, ishlab chiqaruvchi taqdim etgan, ostidan kirib, boshqa tomondan chiqishi kerak. Kranning yoki boshqa ko'tarish vositasining ishlatilishi paytida, tegishli yuk ko'tarish qobiliyatiga ega bo'lgan stroplardan foydalanish tavsiya etiladi.

O'rnatish
Montaj usullari
Bino qurilishi uchun tayyorgarlik
Tezkor darvozalarni yopishtirilgan usulda o‘rnatish.
Tezkor darvozalarni yopishtirilgan usulda o‘rnatish.
  1. Barcha o‘lchovlar ichki xonada amalga oshiriladi. Har bir kattalikni o‘lchash kamida uch nuqtada (chegaraviy holatlarda va markazda) bajarilishi kerak.
  2. B – teshik kengligi (chap chekkadan o‘ng chekkagacha bo‘lgan masofa).
  3. H – teshik balandligi (poldan teshikning yuqori qismigacha bo‘lgan masofa).
  4. h – pritoloka (teshikning yuqori qismidan shiftgacha bo‘lgan masofa).
  5. b1/b2 – chap/o‘ng tomondagi yon masofa (tegishli chekkadan teshikdagi to‘siqqa bo‘lgan masofa).
  6. L – darvozaning yuqori qismidagi chuqurlik (devordan to‘siqqa bo‘lgan masofa).
  7. H, B va L o‘lchovlarida yakuniy o‘lchov eng katta qiymatni tashkil etadi, h, b1 va b2 o‘lchovlarida esa eng kichik qiymat hisobga olinadi.
Hujjatlar
Ko'rsatmalar
Pasportlar va sertifikatlar
Chizmalar

Tezkor rulonli esiklar SPEEDROLL 2ST seriyasi (Push-pull)

Boshqaruv bloki DOORHAN SERVO

Tavsiya etilgan o'rnatish sxemasi, bufer kamerasi

Moslik sertifikati (tezkor esiklar)

Tezkor rulonli esiklar pasporti

Moslik sertifikati (boshqaruv bloklari)

Tezkor rulonli esiklar FHSD

Tezkor rulonli esiklar FHSD o'rnatish sxemasi

Kafolat majburiyatlari chop etish

Mijozga DoorHan konserni tomonidan ishlab chiqarilgan tezkor rulonli esiklar uchun chakana savdo buyurtmalari bo'yicha 1 yil va distribyutorlik buyurtmalari bo'yicha 2 yil davomida ishlash kafolati taqdim etiladi, bu kafolat mahsulotni sotib olishdan boshlab amal qiladi.

Yangi mahsulotlar
DOORHAN SERVO drayveri (220 V)

DOORHAN SERVO drayveri (220 V)

Dizayn
To‘qima ranglari
RAL 5002 (ko'k)
RAL 5002 (ko'k)
Komplektatsiya
Bazaviy to'plam
Dvigatel valı va to‘qima o‘ralish valı, o‘z-o‘zini tiklash mexanizmi bilan.

Dvigatel valı va to‘qima o‘ralish valı, o‘z-o‘zini tiklash mexanizmi bilan.

Isitgichli yonaltiruvchi ustun

Isitgichli yonaltiruvchi ustun

Ikki qatlamli kord matodan yasalgan, yuqori kuchga ega tolalardan iborat poliuretan qoplamali panel, bo'shliq issiqlik izolatsiya materiali bilan to'ldirilgan.

Ikki qatlamli kord matodan yasalgan, yuqori kuchga ega tolalardan iborat poliuretan qoplamali panel, bo'shliq issiqlik izolatsiya materiali bilan to'ldirilgan.

Boshqaruv blokining korpusi zanglamaydigan po'latdan yasalgan: o'lchami — 250 × 490 × 140 mm; himoya darajasi — IP 54. Kuchlanish — 220-240 V / 50-60 Hz; quvvat — 1,5 kVt; himoya darajasi — IP 54.

Boshqaruv blokining korpusi zanglamaydigan po'latdan yasalgan: o'lchami — 250 × 490 × 140 mm; himoya darajasi — IP 54. Kuchlanish — 220-240 V / 50-60 Hz; quvvat — 1,5 kVt; himoya darajasi — IP 54.

Fotoelektron elementlari pol darajasidan 500 mm balandlikda o'rnatiladi (qo'shimchalar sifatida o'rnatish imkoni mavjud).

Fotoelektron elementlari pol darajasidan 500 mm balandlikda o'rnatiladi (qo'shimchalar sifatida o'rnatish imkoni mavjud).

Izolyatsion ramka isitish kabeli bilan issiqlik to'sig'ining funktsiyasini bajaradi.

Izolyatsion ramka isitish kabeli bilan issiqlik to'sig'ining funktsiyasini bajaradi.

Qo'shimcha to'plam
Motor IP65

Motor IP65

Havo to'siqi (ventilyatorlar ikki tomondan)

Havo to'siqi (ventilyatorlar ikki tomondan)

Boshqaruv blokining isitilishi

Boshqaruv blokining isitilishi

Texnik tavsif
O'lchamlar jadvali
Параметр
Показатель
Ширина проема, мм
1400–3370
Высота проема, мм
1800–5000 (variant 5200)
Притолока, мм
676+50, 697+50
Пристенки, мм
365+50/465+50 (tomonisiz haydash / haydash tomoni)
Глубина короба, мм
733, 803, 864
Konstruktsiya
  1. Val
  2. Dvigatel valі
  3. Dvigatel
  4. Dvigatel qoplamasi
  5. Val qutisi
  6. To‘qima harakatini yo‘naltirish uchun ustun va yo‘riqnomasi
  7. Izolyatsion ramka bilan isitish kabeli
  8. Qarshi og‘irlik himoya qoplamasida
  9. Ikki qatlamli poliuretan to‘qimasi
  10. Fotoelementlar
  11. Boshqaruv bloki zanglamas po‘latdan yasalgan korpusda
Standart konstruktiv yechimlar

Dvigatel yon tomondan.

Dvigatel yon tomondan.

Усл. обозначение, наименование параметра Расчетная формула
B, мм Ширина проема 1400–3370
H, мм Высота проема 1800–5000 (variant 5200)
Texnik xususiyatlar
Параметр Значение Примечание
Скорость открывания, м/с 0,8–1,6 м/с Darvoza o'lchamiga qarab, sozlanishi
Скорость закрывания, м/с 0,6 gacha Sozlanishi
Диапазон рабочих температур, °С -30…+50 °C
Герметичность Chok uzunligi birligiga havo o'tkazuvchanligi miqdori 5,4 m3 / (m h); maydon birligi uchun havo o'tkazuvchanligi - 8,2 m3 / (m h)
Сопротивление ветровой нагрузке, Па Nominal musbat bosim - 400 Pa; nominal salbiy bosim - 600 P
Коэффициент теплопроводности, Вт/(м·К) 3,0 Вт/(м2·К)
Мощность, Вт 1 500
Класс защиты IP IP54 (ixtiyoriy IP 65) Oxirgi holatlar enkoder orqali kuzatiladi
Напряжение питания, В 220 В / 50 Гц Yagona fazali
Безотказность, количество циклов открывания-закрывания, не менее 750 000
Элементы безопасности Darvozalar EN 13241 CN Yevropa standartiga mos keladi Bitta fotoelektron juftligi, pol darajasidan 500 mm balandlikda o'rnatilgan; chaqnaydigan indikator; sirena (ixtiyoriy).
Mahsulotni ishlatish shartlari

Esiklarning ishonchli va uzluksiz ishlashini ta'minlash uchun ularni muntazam ravishda texnik tekshiruvdan va xizmat ko'rsatishdan o'tkazish tavsiya etiladi.

Esiklarni qo'lda ochish va yopish tormozlash vositasi yordamida amalga oshiriladi.

PVC panelining yo'naltiruvchisini ifloslanishdan saqlang.

Esiklarni ochish va yopish jarayonida yaralanishlarning oldini olish maqsadida, o‘tkazgichda bo‘lish taqiqlanadi.

Esiklarni ochish va yopish jarayonida o‘tkazgichda begona narsalar bo‘lmasligiga e'tibor bering.

Esik panelining yo'naltiruvchilarda o'z-o'zini tiklash funksiyasi avariya sharoitlarida, masalan, transport vositasining tasodifiy urishida esikning ishlashini ta'minlash uchun mo'ljallangan. U panelning yo'naltiruvchilardan maqsadli va tizimli tarzda chiqarilishiga qarshi ishlash uchun mo'ljallanmagan. Funksiyaning ishlashi, esik panelida o'rnatilgan "zipper" tizimi yordamida plastik yo'naltiruvchilardan chiqish imkoniyati bilan ta'minlanadi. Funksiya ishlashini, faqat individual komponentlarning mustahkamlik parametrlarini oshirib ta'sir qiluvchi zarbalar ta'sirida ta'minlash mumkin emas. Masalan, yuqori tezlikda panelga urish, o'tkir buyumlar bilan zarbalar, yuk ko'tarish mashinasining vilkalari bilan yuqori qismini urish va boshqalar. Panelga urilganidan so'ng, u avtomatik tarzda keyingi yopilish tsikliga o'tib, yo'naltiruvchilarga qaytadan o'rnatiladi.

Qadoqlash
Упаковка в дерево Характеристики упаковки
Состав Pufakchali plyonka, polistirol, yog'och pallet, yog'och laganlar
Длина, мм Esikning qismlarining uzunligiga bog'liq
Ширина, мм Esikning qismlarining kengligiga bog'liq
Высота, мм Esikning qismlarining balandligiga bog'liq
Qo‘shimcha tavsif

DoorHan konserni esiklarni yuk tashish transportiga gidravlik ko'tarish krani yoki vilkali ushlagichi kamida 2 m bo'lgan avtoupakovshik yordamida yuklaydi. Mijoz yoki o'rnatuvchi o'zi o'ralgan esiklarni ko'chirish uchun shunday uskunani ta'minlashi kerak. Vilka yog'och palletga, ishlab chiqaruvchi taqdim etgan, ostidan kirib, boshqa tomondan chiqishi kerak. Kranning yoki boshqa ko'tarish vositasining ishlatilishi paytida, tegishli yuk ko'tarish qobiliyatiga ega bo'lgan stroplardan foydalanish tavsiya etiladi.

O'rnatish
Montaj usullari
Tezkor darvozalarni yopishtirilgan usulda o‘rnatish.
Tezkor darvozalarni yopishtirilgan usulda o‘rnatish.
Bino qurilishi uchun tayyorgarlik
  1. Barcha o‘lchovlar ichki xonada amalga oshiriladi. Har bir kattalikni o‘lchash kamida uch nuqtada (chegaraviy holatlarda va markazda) bajarilishi kerak.
  2. B – teshik kengligi (chap chekkadan o‘ng chekkagacha bo‘lgan masofa).
  3. H – teshik balandligi (poldan teshikning yuqori qismigacha bo‘lgan masofa).
  4. h – pritoloka (teshikning yuqori qismidan shiftgacha bo‘lgan masofa).
  5. b1/b2 – chap/o‘ng tomondagi yon masofa (tegishli chekkadan teshikdagi to‘siqqa bo‘lgan masofa).
  6. L – darvozaning yuqori qismidagi chuqurlik (devordan to‘siqqa bo‘lgan masofa).
  7. H, B va L o‘lchovlarida yakuniy o‘lchov eng katta qiymatni tashkil etadi, h, b1 va b2 o‘lchovlarida esa eng kichik qiymat hisobga olinadi.
Kafolat majburiyatlari

Mijozga DoorHan konserni tomonidan ishlab chiqarilgan tezkor rulonli esiklar uchun chakana savdo buyurtmalari bo'yicha 1 yil va distribyutorlik buyurtmalari bo'yicha 2 yil davomida ishlash kafolati taqdim etiladi, bu kafolat mahsulotni sotib olishdan boshlab amal qiladi.

Hujjatlar
Ko'rsatmalar

Tezkor rulonli esiklar SPEEDROLL 2ST seriyasi (Push-pull)

Boshqaruv bloki DOORHAN SERVO

Tavsiya etilgan o'rnatish sxemasi, bufer kamerasi

Pasportlar va sertifikatlar

Moslik sertifikati (tezkor esiklar)

Tezkor rulonli esiklar pasporti

Moslik sertifikati (boshqaruv bloklari)

Chizmalar

Tezkor rulonli esiklar FHSD

Tezkor rulonli esiklar FHSD o'rnatish sxemasi

Buyurtma berish
Kompaniya menejerlari barcha savollaringizga telefon orqali javob berishadi::