Перегрузочное оборудование
Каталог

Ворота скоростные морозильные серии FHSD

Поддержание стабильной отрицательной температуры в морозильных камерах — ключевая задача для пищевых производств, хладокомбинатов и логистических центров. Стандартные ворота, медленно открываясь и закрываясь, приводят к колоссальным теплопритокам, образованию наледи и огромным расходам на электроэнергию. Концерн DoorHan представляет специализированные скоростные морозильные ворота серии FHSD — высокотехнологичный комплекс, созданный не просто для закрытия проема, а для его надежной термоизоляции и минимизации энергопотерь.

Двойное полотно — двойная защита от холода. Главное, что отличает ворота FHSD — это их уникальная конструкция с двумя независимыми полотнами из прочного армированного ПВХ. Между этими двумя полотнами создается воздушная подушка, которая работает как термос:

  • Эффективный терморазрыв: Воздушная прослойка является превосходным теплоизолятором, который радикально снижает теплообмен между теплой и холодной зонами. Это позволяет поддерживать температуру в камере до -25°C, значительно снижая нагрузку на холодильное оборудование.
  • Предотвращение обледенения: Теплый и влажный воздух извне не контактирует напрямую с холодным полотном, обращенным в камеру. Это практически полностью исключает образование инея, наледи и конденсата на полотне и в проеме ворот, что является главной проблемой стандартных решений.

Скорость, которая сохраняет холод (и деньги). Ворота FHSD открываются и закрываются с высокой скоростью. Для морозильных камер это означает прямую экономическую выгоду:

  • Минимизация теплопритоков: Проем остается открытым минимально возможное время. Это резко сокращает попадание теплого воздуха в камеру, позволяя холодильным агрегатам работать в более экономичном режиме и реже включаться на полную мощность.
  • Оптимизация трафика: Погрузчики и персонал могут перемещаться между зонами без задержек, что повышает производительность труда.

Интеллектуальный обогрев для безотказной работы. Чтобы гарантировать безотказную работу в условиях низких температур, ворота FHSD оснащены системой обогрева всех ключевых узлов: направляющих, стоек и даже двигателя привода. Это предотвращает замерзание и обледенение механизмов, обеспечивая стабильную работу ворот 24/7.

Безопасность — наш приоритет. Для защиты персонала и техники в проеме ворот устанавливается встроенная световая завеса (фотозавеса). Она создает сплошной невидимый барьер и при пересечении его любым объектом мгновенно и безопасно реверсирует движение ворот, полностью исключая возможность столкновения. Выбирая морозильные ворота DoorHan FHSD, вы инвестируете в самое эффективное решение для снижения энергозатрат, повышения эффективности и поддержания стабильного холода на вашем предприятии.


Зона применения:
Морозильные камеры
Помещения, где требуется соблюдение низкотемпературного режима.
Преимущества
Морозостойкость
Стабильная работа в морозильных камерах при температурах вплоть до -25 °С.
Утепленное полотно
Полотно ворот изготовлено из двух слоев кордовой ткани с полиуретановым покрытием из высокопрочного волокна.
Герметичность
Уникальная система подогрева и уплотнения проема ворот.
Самовосстановление
При случайном ударе по полотну оно автоматически заправляется обратно в направляющие в последующем цикле закрывания.
Возможность автоматизации
Надежная автоматика собственного производства.
Дополнительные опции
Возможность установки различного дополнительного оборудования.
Морозостойкость
Стабильная работа в морозильных камерах при температурах вплоть до -25 °С.
Утепленное полотно
Полотно ворот изготовлено из двух слоев кордовой ткани с полиуретановым покрытием из высокопрочного волокна.
Герметичность
Уникальная система подогрева и уплотнения проема ворот.
Самовосстановление
При случайном ударе по полотну оно автоматически заправляется обратно в направляющие в последующем цикле закрывания.
Возможность автоматизации
Надежная автоматика собственного производства.
Дополнительные опции
Возможность установки различного дополнительного оборудования.
Дизайн
Цвета полотна
RAL 5002 (синий)
RAL 5002 (синий)
Комплектация
Базовая комплектация
Дополнительная комплектация
Вал привода и вал намотки полотна, с механизмом самовастонавления.

Вал привода и вал намотки полотна, с механизмом самовастонавления.

Направляющая стойка с подогревом.

Направляющая стойка с подогревом.

Полотно из двух слоев кордовой ткани с полиуретановым покрытием из высокопрочного волокна, расстояние заполнено теплоизоляционным материалом.

Полотно из двух слоев кордовой ткани с полиуретановым покрытием из высокопрочного волокна, расстояние заполнено теплоизоляционным материалом.

Корпус блока управления из нержавеющей стали: размер — 250 × 490 × 140 мм; степень защиты — IP 54 Напряжение питания  — 220-240 В / 50-60 Гц; мощность -1,5 кВт; степень защиты — IP 54.

Корпус блока управления из нержавеющей стали: размер — 250 × 490 × 140 мм; степень защиты — IP 54 Напряжение питания — 220-240 В / 50-60 Гц; мощность -1,5 кВт; степень защиты — IP 54.

Фотоэлементы устанавливаются на высоте 500 мм от уровня пола (есть возможность установить дополнительные как опцию).

Фотоэлементы устанавливаются на высоте 500 мм от уровня пола (есть возможность установить дополнительные как опцию).

Изоляционная рама с нагревательным кабелем выполняет функцию теплового барьера.

Изоляционная рама с нагревательным кабелем выполняет функцию теплового барьера.

Двигатель IP65.

Двигатель IP65.

Воздушная завеса (вентиляторы с двух сторон),

Воздушная завеса (вентиляторы с двух сторон),

Подогрев блока управления.

Подогрев блока управления.

Техническое описание
Таблица размеров
Конструкция
Стандартные конструктивные решения
Технические характеристики
Условия эксплуатации продукции
Упаковка
Параметр
Показатель
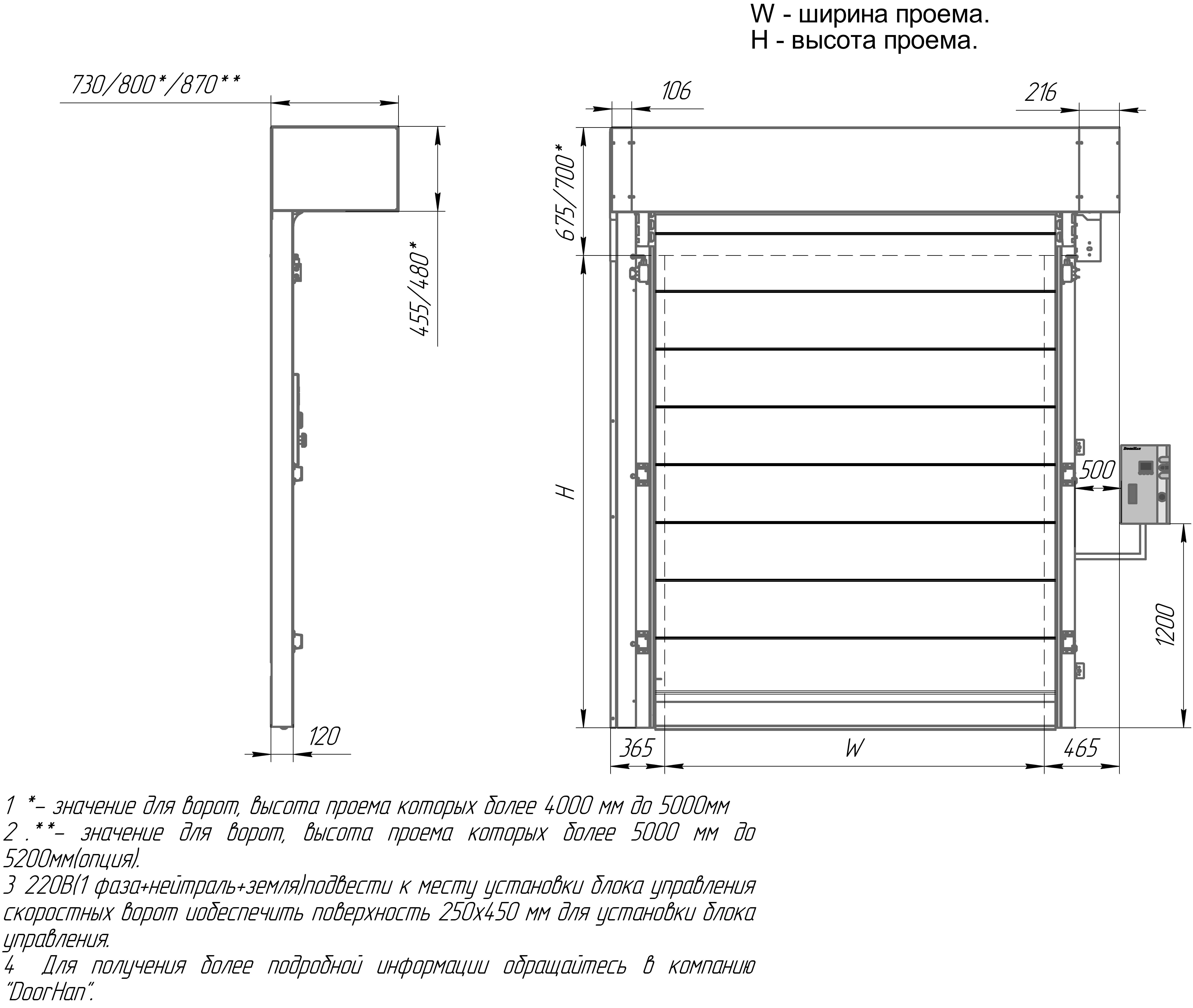
Ширина проема, мм
1 400–3 370
Высота проема, мм
1 800–5 000 (опция — 5 200)
Притолока, мм
676 + 50, 697 + 50
Пристенки, мм
365 + 50/465 + 50 (сторона без привода/сторона с приводом)
Глубина короба, мм
753, 803, 864
  1. Вал
  2. Вал привода
  3. Привод
  4. Кожух привода
  5. Короб вала
  6. Стойка с направляющей для движения полотна
  7. Изоляционная рама с нагревательным кабелем
  8. Противовес в защитном кожухе
  9. Двойное полотно из полиуретана
  10. Фотоэлементы
  11. Блок управления в корпусе из нержавеющей стали

Привод сбоку.

Привод сбоку.

Усл. обозначение, наименование параметра Расчетная формула
B, мм Ширина проема 1 400–3 370
H, мм Высота проема 1 800–5 000 (опция — 5 200)
Параметр Значение Примечание
Скорость открывания, м/с 0,8–1,6 В зависимости от размера ворот, регулируется
Скорость закрывания, м/с До 0,6 Регулируется
Диапазон рабочих температур, °С -25…+50 Ворота для морозильных помещений серии FHSD можно установить только с противоположной стороны морозильной камеры (снаружи)
Герметичность Величина воздухопроницаемости на единицу длины шва — 5,4 м³/(м·ч); воздухопроницаемость на единицу площади — 8,2 м³/(м·ч)
Сопротивление ветровой нагрузке, Па Номинальное положительное давление — 400; номинальное отрицательное давление — 600
Коэффициент теплопроводности, Вт/(м·К) 3,0
Мощность, Вт 1 500
Класс защиты IP IP 54 (опционально — IP 65) Концевые положения отслеживаются энкодером
Напряжение питания, В 220 В/50 Гц Однофазное
Безотказность, количество циклов открывания-закрывания, не менее 750 000
Элементы безопасности Ворота соответствуют европейскому стандарту EN 13241 CN Одна пара фотоэлементов, установленная на высоте 500 мм от уровня пола; мигающий индикатор; сирена (опционально)

Для обеспечения надежной и бесперебойной работы ворот рекомендуется регулярно проводить их технический осмотр и обслуживание.

Ручное открывание и закрываие ворот производится с помощью воротка.

Не допускайте загрязнения направляющей ПВХ-полотна.

Запрещено находиться в проеме во время открывания и закрывания ворот во избежание травмирования.

Следите за тем, чтобы во время открывания и закрывания ворот в проеме отсутствовали посторонние предметы.

Функция самовосстановления полотна ворот в направляющих служит для работы ворот в аварийных условиях, в случае непреднамеренного наезда транспортом. Она не предназначена для работы при намеренном и систематическом выбивании полотна из направляющих. Работоспособность функции обеспечивается возможностью выхода «зиппера», установленного на полотне ворот из пластиковых направляющих. Работоспособность функции не может быть обеспечена в случае нанесения ударов, по степени воздействия превышающих прочностные параметры отдельных компонентов полотна и элементов системы. Например, в случае наезда на полотно с высокой скоростью, ударов острыми предметами, ударов в верхнюю часть ворот поднятыми вилами погрузчика и т. п. После удара по полотну оно автоматически заправляется обратно в направляющие в последующем цикле закрывания.

Ворота для морозильных помещений серии FHSD возможно эксплуатировать, только с противоположной стороны морозильной камеры (снаружи).

Упаковка в дерево Характеристики упаковки
Состав Пузыpчатая пленка, пенопласт, деревянный поддон, деревянные бруски
Длина, мм Зависит от длины составных частей ворот
Ширина, мм Зависит от ширины составных частей ворот
Высота, мм Зависит от высоты составных частей ворот
Дополнительное описание печать

Концерн DoorHan производит погрузку ворот на грузовой транспорт с помощью гидравлического подъемного крана или автопогрузчика с вилочным захватом не менее 2 м. Покупатель или установщик должен предоставить такoе же оборудование для перемещения упакованных ворот. Вилка должна заходить под деревянный поддон, предоставляемый изготовителем, и выступать с другой стороны. При использовании крана или другого средства подъема рекомендуется использовать стропы соответствующей грузоподъемности.

Установка
Способы монтажа
Подготовка строительного объекта
Накладной монтаж скоростных воpот с противоположной стороны морозильной камеры (снаружи).
Накладной монтаж скоростных воpот с противоположной стороны морозильной камеры (снаружи).
Буферная камера. Помещения, где требуется соблюдение низкотемпературного режима. Рекомендуемая схема установки приведена в соответствующем разделе инструкции.
Буферная камера. Помещения, где требуется соблюдение низкотемпературного режима. Рекомендуемая схема установки приведена в соответствующем разделе инструкции.
  1. Все замеры производятся внутри помещения. Замер каждой величины необходимо производить как минимум по тpем точкам (в крайних положениях и по центру).
  2. B – ширина проема (расстояние от левого края до правого края проема).
  3. H – высота проема (расстояние от пола до верха проема).
  4. h – притолока (расстояние от верха проема до потолка).
  5. b1/b2 – левое/правое боковое расстояние (расстояние от соответствующего края проема до препятствия).
  6. L– глубина верхней части ворот (расстояние от стены до препятствия).
  7. При замере Н, В и L за итоговый размер принимается наибольшая величина, при замере h, b1 и b2 – наименьшая величина.
Документация
Инструкции
Паспорта и сертификаты
Чертежи

Ворота скоростные морозильные серии FHSD

Блок управления DOORHAN SERVO

Рекумендуемая схема установки, буферная камера

Сертификат соответствия (скоростные ворота)

Паспорт на скоростные рулонные ворота

Сертификат соответствия (блоки управления)

Скоростные рулонные ворота FHSD

Схема установки скоростных рулонных ворот FHSD

Гарантийные обязательства печать

Покупателю предоставляется гарантия работоспособности скоростных рулонных ворот производства концерна DoorHan на срок 1 год для розничных и на срок 2 года для дилерских заказов с момента приобретения.

Новинки
Привод DOORHAN SERVO (220 В).

Привод DOORHAN SERVO (220 В).

Дизайн
Цвета полотна
RAL 5002 (синий)
RAL 5002 (синий)
Комплектация
Базовая комплектация
Вал привода и вал намотки полотна, с механизмом самовастонавления.

Вал привода и вал намотки полотна, с механизмом самовастонавления.

Направляющая стойка с подогревом.

Направляющая стойка с подогревом.

Полотно из двух слоев кордовой ткани с полиуретановым покрытием из высокопрочного волокна, расстояние заполнено теплоизоляционным материалом.

Полотно из двух слоев кордовой ткани с полиуретановым покрытием из высокопрочного волокна, расстояние заполнено теплоизоляционным материалом.

Корпус блока управления из нержавеющей стали: размер — 250 × 490 × 140 мм; степень защиты — IP 54 Напряжение питания  — 220-240 В / 50-60 Гц; мощность -1,5 кВт; степень защиты — IP 54.

Корпус блока управления из нержавеющей стали: размер — 250 × 490 × 140 мм; степень защиты — IP 54 Напряжение питания — 220-240 В / 50-60 Гц; мощность -1,5 кВт; степень защиты — IP 54.

Фотоэлементы устанавливаются на высоте 500 мм от уровня пола (есть возможность установить дополнительные как опцию).

Фотоэлементы устанавливаются на высоте 500 мм от уровня пола (есть возможность установить дополнительные как опцию).

Изоляционная рама с нагревательным кабелем выполняет функцию теплового барьера.

Изоляционная рама с нагревательным кабелем выполняет функцию теплового барьера.

Дополнительная комплектация
Двигатель IP65.

Двигатель IP65.

Воздушная завеса (вентиляторы с двух сторон),

Воздушная завеса (вентиляторы с двух сторон),

Подогрев блока управления.

Подогрев блока управления.

Техническое описание
Таблица размеров
Параметр
Показатель
Ширина проема, мм
1 400–3 370
Высота проема, мм
1 800–5 000 (опция — 5 200)
Притолока, мм
676 + 50, 697 + 50
Пристенки, мм
365 + 50/465 + 50 (сторона без привода/сторона с приводом)
Глубина короба, мм
753, 803, 864
Конструкция
  1. Вал
  2. Вал привода
  3. Привод
  4. Кожух привода
  5. Короб вала
  6. Стойка с направляющей для движения полотна
  7. Изоляционная рама с нагревательным кабелем
  8. Противовес в защитном кожухе
  9. Двойное полотно из полиуретана
  10. Фотоэлементы
  11. Блок управления в корпусе из нержавеющей стали
Стандартные конструктивные решения

Привод сбоку.

Привод сбоку.

Усл. обозначение, наименование параметра Расчетная формула
B, мм Ширина проема 1 400–3 370
H, мм Высота проема 1 800–5 000 (опция — 5 200)
Технические характеристики
Параметр Значение Примечание
Скорость открывания, м/с 0,8–1,6 В зависимости от размера ворот, регулируется
Скорость закрывания, м/с До 0,6 Регулируется
Диапазон рабочих температур, °С -25…+50 Ворота для морозильных помещений серии FHSD можно установить только с противоположной стороны морозильной камеры (снаружи)
Герметичность Величина воздухопроницаемости на единицу длины шва — 5,4 м³/(м·ч); воздухопроницаемость на единицу площади — 8,2 м³/(м·ч)
Сопротивление ветровой нагрузке, Па Номинальное положительное давление — 400; номинальное отрицательное давление — 600
Коэффициент теплопроводности, Вт/(м·К) 3,0
Мощность, Вт 1 500
Класс защиты IP IP 54 (опционально — IP 65) Концевые положения отслеживаются энкодером
Напряжение питания, В 220 В/50 Гц Однофазное
Безотказность, количество циклов открывания-закрывания, не менее 750 000
Элементы безопасности Ворота соответствуют европейскому стандарту EN 13241 CN Одна пара фотоэлементов, установленная на высоте 500 мм от уровня пола; мигающий индикатор; сирена (опционально)
Условия эксплуатации продукции

Для обеспечения надежной и бесперебойной работы ворот рекомендуется регулярно проводить их технический осмотр и обслуживание.

Ручное открывание и закрываие ворот производится с помощью воротка.

Не допускайте загрязнения направляющей ПВХ-полотна.

Запрещено находиться в проеме во время открывания и закрывания ворот во избежание травмирования.

Следите за тем, чтобы во время открывания и закрывания ворот в проеме отсутствовали посторонние предметы.

Функция самовосстановления полотна ворот в направляющих служит для работы ворот в аварийных условиях, в случае непреднамеренного наезда транспортом. Она не предназначена для работы при намеренном и систематическом выбивании полотна из направляющих. Работоспособность функции обеспечивается возможностью выхода «зиппера», установленного на полотне ворот из пластиковых направляющих. Работоспособность функции не может быть обеспечена в случае нанесения ударов, по степени воздействия превышающих прочностные параметры отдельных компонентов полотна и элементов системы. Например, в случае наезда на полотно с высокой скоростью, ударов острыми предметами, ударов в верхнюю часть ворот поднятыми вилами погрузчика и т. п. После удара по полотну оно автоматически заправляется обратно в направляющие в последующем цикле закрывания.

Ворота для морозильных помещений серии FHSD возможно эксплуатировать, только с противоположной стороны морозильной камеры (снаружи).

Упаковка
Упаковка в дерево Характеристики упаковки
Состав Пузыpчатая пленка, пенопласт, деревянный поддон, деревянные бруски
Длина, мм Зависит от длины составных частей ворот
Ширина, мм Зависит от ширины составных частей ворот
Высота, мм Зависит от высоты составных частей ворот
Дополнительное описание

Концерн DoorHan производит погрузку ворот на грузовой транспорт с помощью гидравлического подъемного крана или автопогрузчика с вилочным захватом не менее 2 м. Покупатель или установщик должен предоставить такoе же оборудование для перемещения упакованных ворот. Вилка должна заходить под деревянный поддон, предоставляемый изготовителем, и выступать с другой стороны. При использовании крана или другого средства подъема рекомендуется использовать стропы соответствующей грузоподъемности.

Установка
Способы монтажа
Накладной монтаж скоростных воpот с противоположной стороны морозильной камеры (снаружи).
Накладной монтаж скоростных воpот с противоположной стороны морозильной камеры (снаружи).
Буферная камера. Помещения, где требуется соблюдение низкотемпературного режима. Рекомендуемая схема установки приведена в соответствующем разделе инструкции.
Буферная камера. Помещения, где требуется соблюдение низкотемпературного режима. Рекомендуемая схема установки приведена в соответствующем разделе инструкции.
Подготовка строительного объекта
  1. Все замеры производятся внутри помещения. Замер каждой величины необходимо производить как минимум по тpем точкам (в крайних положениях и по центру).
  2. B – ширина проема (расстояние от левого края до правого края проема).
  3. H – высота проема (расстояние от пола до верха проема).
  4. h – притолока (расстояние от верха проема до потолка).
  5. b1/b2 – левое/правое боковое расстояние (расстояние от соответствующего края проема до препятствия).
  6. L– глубина верхней части ворот (расстояние от стены до препятствия).
  7. При замере Н, В и L за итоговый размер принимается наибольшая величина, при замере h, b1 и b2 – наименьшая величина.
Гарантийные обязательства

Покупателю предоставляется гарантия работоспособности скоростных рулонных ворот производства концерна DoorHan на срок 1 год для розничных и на срок 2 года для дилерских заказов с момента приобретения.

Документация
Инструкции

Ворота скоростные морозильные серии FHSD

Блок управления DOORHAN SERVO

Рекумендуемая схема установки, буферная камера

Паспорта и сертификаты

Сертификат соответствия (скоростные ворота)

Паспорт на скоростные рулонные ворота

Сертификат соответствия (блоки управления)

Чертежи

Скоростные рулонные ворота FHSD

Схема установки скоростных рулонных ворот FHSD

Оформить заказ
Менеджеры компании ответят на все
вопросы по телефону: