Перегрузочное оборудование
Двустворчатые раздвижные двери
Каталог

Промышленные секционные ворота из стальных сэндвич-панелей с торсионным механизмом серии isd thermalpro (термостойкие)

В условиях, где каждый градус на счету — в морозильных камерах, холодильных складах и отапливаемых помещениях в регионах с экстремально холодным климатом — стандартные ворота становятся источником колоссальных теплопотерь и расходов на электроэнергию. Специально для таких объектов концерн DoorHan разработал промышленные секционные ворота ISD-ThermalPro. Это не просто ворота, а высокотехнологичный теплоизоляционный щит, созданный для поддержания стабильного температурного режима и радикального сокращения энергозатрат.

Сердце энергоэффективности: сэндвич-панель 80 мм с терморазрывом. Главное, что отличает ворота ThermalPro — это их уникальное полотно:

  • Толщина 80 мм: Вдвое толще стандартных промышленных ворот! Заполненная плотным пенополиуретаном, такая панель обладает феноменальными показателями по сопротивлению теплопередаче, сопоставимыми с кирпичной стеной толщиной 60 см.
  • Технология терморазрыва: Это ключевая инновация. Внешний и внутренний стальные листы панели не соприкасаются друг с другом напрямую, а соединены через специальную полиамидную вставку. Этот "терморазрыв" полностью исключает образование "мостиков холода", предотвращая промерзание стыков панелей, образование наледи и конденсата.

Комплексная система герметизации. Чтобы добиться максимальной изоляции, мы продумали каждый узел. Ворота ThermalPro оснащены специальной системой морозостойких уплотнителей по всему периметру, включая двойной нижний уплотнитель, которые обеспечивают идеальное прилегание к проему и полу, полностью блокируя утечки холода и тепла.

Надежность промышленного класса. Несмотря на свою "теплую" специализацию, это настоящие промышленные ворота, рассчитанные на интенсивную работу. В их основе лежит мощный торсионный механизм с ресурсом пружин не менее 25 000 циклов (может быть увеличен до 100 000). Каждая пружина в стандартной комплектации оснащается устройством защиты от обрыва, которое предотвратит падение тяжелого полотна в экстренной ситуации. Все стальные комплектующие ворот обработаны для защиты от коррозии, что гарантирует долгий срок службы даже в условиях повышенной влажности.

Выбирая ворота DoorHan ISD-ThermalPro, вы делаете умную инвестицию, которая окупается за счет прямой экономии на электроэнергии. Это профессиональное решение для бизнеса, где стабильность температуры и контроль расходов являются ключевыми факторами успеха.


Зона применения:
Промышленность
Объекты с холодильными и морозильными установками; объекты, расположенные в регионах с экстремально низкими температурами
Преимущества
Соответствие ГОСТ
Конструкция ворот полностью соответствует государственному стандарту ГОСТ 31174-2017, «Ворота металлические».
Теплоэффективность
Лучший коэффициент теплоизоляции на рынке — панель толщиной 80 мм, отсутствие мостика холода, профили с терморазрывом, надежная герметизация полотна по всему периметру.
Надежная система обогрева
Система обогрева ворот по всему контуру исключает примерзание полотна к проему при эксплуатации в низкотемпературном режиме.
Безопасность
Системы защиты от обрыва троса и обрыва пружины предотвращают падение полотна в нештатных ситуациях.
Универсальность применения
Многообразие типов подъема ворот позволяет монтировать их в помещениях с любой геометрией внутреннего пространства.
Соответствие ГОСТ
Конструкция ворот полностью соответствует государственному стандарту ГОСТ 31174-2017, «Ворота металлические».
Теплоэффективность
Лучший коэффициент теплоизоляции на рынке — панель толщиной 80 мм, отсутствие мостика холода, профили с терморазрывом, надежная герметизация полотна по всему периметру.
Надежная система обогрева
Система обогрева ворот по всему контуру исключает примерзание полотна к проему при эксплуатации в низкотемпературном режиме.
Безопасность
Системы защиты от обрыва троса и обрыва пружины предотвращают падение полотна в нештатных ситуациях.
Универсальность применения
Многообразие типов подъема ворот позволяет монтировать их в помещениях с любой геометрией внутреннего пространства.
Дизайн
Дизайн панелей
Тип поверхности
Цвета
Горизонтальные полосы
Горизонтальные полосы
Гладкая (внешняя)
Гладкая (внешняя)
Гладкая (внутренняя)
Гладкая (внутренняя)
RAL 9003 (белый)
RAL 9003 (белый)
Комплектация
Базовая комплектация
Дополнительная комплектация
Полотно из сэндвич-панели толщиной 80 мм с пенополиуретановым наполнителем высокой плотности. Листы панели термически разделены вставкой энергофлексового уплотнителя, который препятствует промерзанию стыка панелей.

Полотно из сэндвич-панели толщиной 80 мм с пенополиуретановым наполнителем высокой плотности. Листы панели термически разделены вставкой энергофлексового уплотнителя, который препятствует промерзанию стыка панелей.

Верхний алюминиевый профиль с терморазделением препятствует образованию конденсата и наледи в верхней части полотна ворот. Верхний уплотнитель сохраняет свою эластичность при отрицательных температурах и обеспечивает надежную герметизацию проема.

Верхний алюминиевый профиль с терморазделением препятствует образованию конденсата и наледи в верхней части полотна ворот. Верхний уплотнитель сохраняет свою эластичность при отрицательных температурах и обеспечивает надежную герметизацию проема.

Нижний алюминиевый профиль сохраняет терморазделение сэндвич-панели. Двойной уплотнитель нивелирует неровности пола, обеспечивает хорошую герметизацию. Греющий провод устанавливается в нижний уплотнитель при выборе опции «обогреваемый контур проема».

Нижний алюминиевый профиль сохраняет терморазделение сэндвич-панели. Двойной уплотнитель нивелирует неровности пола, обеспечивает хорошую герметизацию. Греющий провод устанавливается в нижний уплотнитель при выборе опции «обогреваемый контур проема».

Двойная система уплотнения проема: боковой двухлепестковый уплотнитель установлен между полотном и угловой стойкой, внешний двухлепестковый контур уплотнения — между проемом и щитом. Проем уплотняется четырьмя уплотнителями одновременно, дополнительные воздушные камеры обеспечивают максимально надежную герметизацию.

Двойная система уплотнения проема: боковой двухлепестковый уплотнитель установлен между полотном и угловой стойкой, внешний двухлепестковый контур уплотнения — между проемом и щитом. Проем уплотняется четырьмя уплотнителями одновременно, дополнительные воздушные камеры обеспечивают максимально надежную герметизацию.

Системы направляющих из стали толщиной 2 мм — надежное решение, обладающее повышенным запасом прочности.

Системы направляющих из стали толщиной 2 мм — надежное решение, обладающее повышенным запасом прочности.

Пружинный механизм на торсионных пружинах, рассчитанный на 25 000 циклов, обеспечивает долговечность конструкции ворот.

Пружинный механизм на торсионных пружинах, рассчитанный на 25 000 циклов, обеспечивает долговечность конструкции ворот.

Устройство защиты от обрыва пружины блокирует вал, что предотвращает падение полотна ворот.

Устройство защиты от обрыва пружины блокирует вал, что предотвращает падение полотна ворот.

Устройство защиты от обрыва троса устанавливается в качестве нижнего кронштейна на полотно ворот. В случае обрыва троса механизм срабатывает и предотвращает падение полотна ворот.

Устройство защиты от обрыва троса устанавливается в качестве нижнего кронштейна на полотно ворот. В случае обрыва троса механизм срабатывает и предотвращает падение полотна ворот.

Коробка с комплектацией для монтажа, паспортом на изделие и инструкцией по монтажу.

Коробка с комплектацией для монтажа, паспортом на изделие и инструкцией по монтажу.

Система обогрева контура проема представляет собой силовой каркас, выполненный из алюминиевого профиля, внутри которого размещается греющий ПЭН-провод, что позволяет избежать примерзания полотна ворот к проему. Помимо этого по нижней кромке полотна ворот также пускается греющий кабель. Таким образом получается замкнутый греющий контур по всему периметру проема.

Система обогрева контура проема представляет собой силовой каркас, выполненный из алюминиевого профиля, внутри которого размещается греющий ПЭН-провод, что позволяет избежать примерзания полотна ворот к проему. Помимо этого по нижней кромке полотна ворот также пускается греющий кабель. Таким образом получается замкнутый греющий контур по всему периметру проема.

Ручной цепной привод устанавливается на промышленные ворота всех типов подъема, служит для подъема/опускания полотна ворот вручную.

Ручной цепной привод устанавливается на промышленные ворота всех типов подъема, служит для подъема/опускания полотна ворот вручную.

Пружинный механизм на торсионных пружинах, рассчитанный на ресурс до 100 000 циклов.

Пружинный механизм на торсионных пружинах, рассчитанный на ресурс до 100 000 циклов.

Механическая задвижка позволяет запирать полотно изнутри помещения. Отличается простотой и надежностью.

Механическая задвижка позволяет запирать полотно изнутри помещения. Отличается простотой и надежностью.

Автоматизация. Возможность автоматизации ворот приводом (см. раздел «Автоматика для ворот»).

Автоматизация. Возможность автоматизации ворот приводом (см. раздел «Автоматика для ворот»).

Техническое описание
Таблица размеров
Размеры проема
Конструкция
Стандартные конструктивные решения
Технические характеристики
Условия эксплуатации продукции
Упаковка
Параметр
Показатель
Высота проема, мм
2 000–5 000
Ширина проема, мм
2 000–6 000
Притолока, мм
От 150
Пристенки, мм
От 120; с опцией обогреваемый контур — от 150
  1. Угловая стойка
  2. Вертикальная направляющая
  3. Вал цилиндрический
  4. Устройство защиты от обрыва пружины
  5. Барабан
  6. П-образный кронштейн
  7. Балансирующий пружинный механизм (торсионная пружина)
  8. Муфта соединительная
  9. Внутренний опорный кронштейн
  10. Верхняя опора с держателем ролика
  11. Боковая опора с держателем ролика
  12. Внутренняя петля
  13. Устройство защиты от разрыва троса
  14. Сэндвич-панель 80 мм
  15. Усиливающий дельта-профиль
  16. Нижний профиль и уплотнитель
  17. Уплотнитель боковой
  18. Верхний профиль и уплотнитель
  19. Боковая крышка усиленная для панелей с отверстиями для крепления
  20. Профиль-рама, оснащенный греющим ПЭН проводом (опция)
  21. Кронштейны крепления к потолку
  22. Пружинный амортизатор
  23. Дистанционный С-профиль

Низкий подъем, барабан спереди.

Низкий подъем, барабан спереди.

Усл. обозначение, наименование параметра Расчетная формула
H, мм Высота проема H
h, мм Высота притолоки ≥ 230;
≥ 280 (при H ≥ 3 700);
≥ 280 (с вальным приводом, при H < 3 700)
B, мм Ширина проема B
A, мм Высота угловой стойки H + 110
Ab, мм Высота оси вала и барабана ≥ A + 59
A1, мм Высота вертикальной направляющей А - 543
A2, мм Высота горизонтальной направляющей А - 106
E, мм Длина горизонтальных направляющих Н + 340
Db, мм Рабочая зона торсионного механизма Зависит от размеров проема и веса щита
S, мм Минимальное боковое пространство 120 (150 с опцией «обогреваемый контур»)
n, мм Перекрытие проема в открытом положении 190 (без привода);
0...10 (с приводом)
Низкий подъем, барабан сзади.

Низкий подъем, барабан сзади.

Усл. обозначение, наименование параметра Расчетная формула
H, мм Высота проема H
h, мм Высота притолоки ≥ 150
B, мм Ширина проема B
A, мм Высота угловой стойки при h < 170: H + 110;
при 150 ≤ h ≤ 170: H + h - 60
Ab, мм Высота оси вала и барабана при h ≤ 170: H + 55;
при 150 ≤ h ≤ 170: H + h - 47
A1, мм Высота вертикальной направляющей А - 543
A2, мм Высота горизонтальной направляющей А - 106
E, мм Длина горизонтальных направляющих Н + 550
Db, мм Рабочая зона торсионного механизма Зависит от размеров проема и веса щита
S, мм Минимальное боковое пространство 120 (150 с опцией «обогреваемый контур»)
n, мм Перекрытие проема в открытом положении 240 (без привода);
40...60 (с приводом)
Стандартный подъем.

Стандартный подъем.

Усл. обозначение, наименование параметра Расчетная формула
H, мм Высота проема H
h, мм Высота притолоки R381: ≥ 420;
R305: ≥ 350
B, мм Ширина проема B
A, мм Высота угловой стойки R381: H + 235;
R305: H + 165
Ab, мм Высота оси вала и барабана A + 97
A1, мм Высота вертикальной направляющей R381: A — 580;
R305: A — 490
A2, мм Высота горизонтальной направляющей А - 110
E, мм Длина горизонтальных направляющих R381: H + 240;
R305: H + 290
Db, мм Рабочая зона торсионного механизма Зависит от размеров проема и веса щита
S, мм Минимальное боковое пространство 120 (150 с опцией «обогреваемый контур»)
Q, мм Зона расположения привода на вал 300
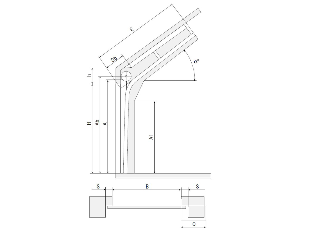
Стандартный наклонный подъем.

Стандартный наклонный подъем.

Усл. обозначение, наименование параметра Расчетная формула
H, мм Высота проема H
h, мм Высота притолоки ≥ 500
B, мм Ширина проема B
A, мм Высота угловой стойки H + 250…985
Ab, мм Высота оси вала и барабана А + 86/97
A1, мм Высота вертикальной направляющей Н - 300
E, мм Длина горизонтальных направляющих Зависит от угла α° (размер, ограничивающий рабочую зону ворот вглубь помещения)
Db, мм Рабочая зона торсионного механизма Зависит от размеров проема и веса щита
S, мм Минимальное боковое пространство 120 (150 с опцией «обогреваемый контур»)
α° Угол наклона направляющих к горизонтали 5...65 (кратен 5°)
Q, мм Зона расположения привода на вал 300
Высокий подъем.

Высокий подъем.

Усл. обозначение, наименование параметра Расчетная формула
H, мм Высота проема H
h, мм Высота притолоки > 660
B, мм Ширина проема B
HL, мм Расстояние от уровня горизонтальных направляющих до проема По умолчанию h - 330
A, мм Высота угловой стойки H + HL
Ab, мм Высота оси вала и барабана A + 86/97
A1, мм Высота вертикальной направляющей А - 580
A2, мм Высота горизонтальной направляющей А - 53
E, мм Длина горизонтальных направляющих H - НL + 510...640
Db, мм Рабочая зона торсионного механизма Зависит от размеров проема и веса щита
S, мм Минимальное боковое пространство 120 (150 с опцией «обогреваемый контур»)
Q, мм Зона расположения привода на вал 300
Высокий подъем, барабан снизу

Высокий подъем, барабан снизу

Усл. обозначение, наименование параметра Расчетная формула
H, мм Высота проема H
h, мм Высота притолоки ≥ 1 600
B, мм Ширина проема B
HL, мм Расстояние от уровня горизонтальных направляющих до проема 1 330 ≤ HL ≤ h - 150
A, мм Высота угловой стойки H + HL
Ab, мм Высота оси вала и барабана H + 400...600 + 280
A1, мм Высота вертикальной направляющей А - 580
A2, мм Высота горизонтальной направляющей А - 53
E, мм Длина горизонтальных направляющих H - НL + 510...640
Db, мм Рабочая зона торсионного механизма Зависит от размеров проема и веса щита
S, мм Минимальное боковое пространство ≥ 300
Q, мм Зона расположения привода на вал ≥ 500
Наклонный высокий подъем.

Наклонный высокий подъем.

Усл. обозначение, наименование параметра Расчетная формула
H, мм Высота проема H
h, мм Высота притолоки ≥ 660
B, мм Ширина проема B
HL, мм Расстояние от уровня горизонтальных направляющих до проема 330
A, мм Высота угловой стойки H + HL + 15...749
Ab, мм Высота оси вала и барабана ≤ А + 86/97
A1, мм Высота вертикальной направляющей Н + HL - 330...580
E, мм Длина горизонтальных направляющих Зависит от угла α° (размер, ограничивающий рабочую зону ворот вглубь помещения)
Db, мм Рабочая зона торсионного механизма Зависит от размеров проема и веса щита
S, мм Минимальное боковое пространство 120 (150 с опцией «обогреваемый контур»)
α° Угол наклона направляющих к горизонтали 5...65 (кратен 5°)
Q, мм Зона расположения привода на вал 300
Наклонный высокий подъем, барабан снизу.

Наклонный высокий подъем, барабан снизу.

Усл. обозначение, наименование параметра Расчетная формула
H, мм Высота проема H
h, мм Высота притолоки ≥ 1600
B, мм Ширина проема B
HL, мм Расстояние от уровня горизонтальных направляющих до проема ≥ 1 330
A, мм Высота угловой стойки H + HL + 15...749
Ab, мм Высота оси вала и барабана Ab > H + 680
A1, мм Высота вертикальной направляющей Н + HL - 330...580
E, мм Длина горизонтальных направляющих Зависит от угла α° (размер, ограничивающий рабочую зону ворот вглубь помещения)
Db, мм Рабочая зона торсионного механизма Зависит от размеров проема и веса щита
S, мм Минимальное боковое пространство 120 (150 с опцией «обогреваемый контур»)
α° Угол наклона направляющих к горизонтали 5...65 (кратен 5°)
Q, мм Зона расположения привода на вал ≥ 650
Вертикальный подъем.

Вертикальный подъем.

Усл. обозначение, наименование параметра Расчетная формула
H, мм Высота проема H
h, мм Высота притолоки ≥ Н + 500
B, мм Ширина проема B
A, мм Высота угловой стойки 2H + 120
Ab, мм Высота оси вала и барабана A + 166
S, мм Минимальное боковое пространство 120 (150 с опцией «обогреваемый контур»)
Q, мм Зона расположения привода на вал 300
Вертикальный подъем, барабан снизу.

Вертикальный подъем, барабан снизу.

Усл. обозначение, наименование параметра Расчетная формула
H, мм Высота проема H
h, мм Высота притолоки ≥ H + 120
B, мм Ширина проема B
A, мм Высота угловой стойки 2H + 120
Ab, мм Высота оси вала и барабана H + 680
S, мм Минимальное боковое пространство 500 min
Q, мм Зона расположения привода на вал ≥ 650
Параметр Значение Примечание
Безотказность, количество циклов открывания-закрывания, не менее 120 000 (для ворот); 25 000 (для торсионного механизма)
Усилие ручного открывания и закрывания, Н, не более 260
Вес полотна ворот, кг/м² 17 Точное значение зависит от типоразмера панелей, используемых в конструкции ворот
Напряжение питания, В 220 В, 50 Гц (для контурного обогрева)
Приведенное сопротивление теплопередаче, м² *°С/Вт 2,3 — без системы обогрева контура проема;
3,3 — с системой обогрева контура проема
Диапазон рабочих температур, °С До -30, ISD THERMALPRO с системой обогрева контура проема — низкотемпературные камеры;
до -5, ISD THERMALPRO без системы обогрева контура проема — среднетемпературные камеры

1. Секции полотна ворот должны плавно передвигаться по направляющим, а сами ворота должны быть сбалансированными, т. е. их вес должен компенсироваться крутящим моментом торсионных пружин.

2. Следите за тем, чтобы люди и животные не находились в зоне действия ворот во время их работы.

3. Строго запрещено передвигаться под движущимся полотном ворот, т. к. это может привести к травмам.

4. Не подвергайте ворота ударам и не препятствуйте их свободному движению при открывании и закрывании.

5. Не подвергайте загрязнению направляющие и ролики, т. к. это может привести к нарушению плавности хода, а при наличии электропривода — к его перегрузке и выходу из строя.

6. Следите за тем, чтобы во время движения полотна в проеме отсутствовали посторонние предметы и мусор. Их наличие может привести к перекосу и заклиниванию полотна ворот.

Упаковка в картон Характеристики упаковки
Описание Система направляющих и щит секционных ворот имеют жесткую комбинированную упаковку из картона и пенопласта, стянутую стретч-пленкой; комплектация для монтажа упаковывается в коробку из гофрокартона и запаивается упаковочной пленкой; все упаковки снабжены информационными наклейками, содержащими данные о заказе, а так же фирменным логотипом компании
Состав Картон, пенопласт, стретч-пленка, скотч
Ширина, мм Упаковка щита — от 500 до 800
Высота, мм Упаковка щита — от 350 до 800
Длина, мм Упаковка щита — от 2 100 до 6 100
Вес брутто, кг До 1 000
Количество в упаковке, шт. Упаковка щита — от 3 до 17 панелей; упаковка направляющих — 1 система направляющих; упаковка комплектующих — коробка с комплектацией (может быть несколько); возможны дополнительные упаковки (окантовка, дельта-профиль и пр.)
Дополнительное описание печать

Хранение сэндвич-панелей рекомендуется производить в заводской упаковке на ровной поверхности. Хранить упаковки с сэндвич-панелями рекомендуется не более 6 месяцев с момента производства в складах закрытого типа или под навесом. Панели должны быть защищены от попадания влаги, а в зимний период — от снега и загрязнения. Необходимо защищать их от воздействия прямых солнечных лучей, атмосферных осадков и пыли. Упаковки должны храниться в горизонтальном положении.

Установка
Способы монтажа
Подготовка строительного объекта
Накладной монтаж: cистема направляющих монтируется на  пристенки и притолоку с внутренней стороны проема. Пристенки — от 120 мм, с опцией «обогреваемый контур» — от 150 мм.
Накладной монтаж: cистема направляющих монтируется на пристенки и притолоку с внутренней стороны проема. Пристенки — от 120 мм, с опцией «обогреваемый контур» — от 150 мм.
  1. Для снятия необходимых показателей достаточно рулетки и строительного уровня. Все замеры производятся внутри помещения. Замер каждой величины необходимо производить как минимум по трем точкам (в крайних положениях и по центру).
  2. H — высота проема (расстояние от пола до верха проема).
  3. B — ширина проема (расстояние от левого края до правого края проема).
  4. h — притолока (расстояние от верха проема до потолка) от 150 мм.
  5. b1/ b2 — левое/правое боковое расстояние (расстояние от соответствующего края проема до препятствия) от 120 мм, с опцией «обогреваемый контур» — от 150 мм.
  6. L — глубина помещения.
  7. При замере Н и В за итоговый размер принимается наибольшая величина.
  8. При замере h, b1, b2 и L за итоговый размер принимается наименьшая величина.
  9. Перепад уровня пола по всей ширине проема не должен превышать 10 мм. Необходимо обеспечить выдержку монтажной плоскости (пристенков и притолоки). Основание под установку системы направляющих должно быть монолитным и прочным, при отсутствии такового требуется дополнительная окантовка либо формирование проема металлоизделиями.
Документация
Инструкции
Паспорта и сертификаты
Чертежи

Инструкция по монтажу секционных ворот серии isd thermalpro (термостойкие)

Инструкция по монтажу секционных ворот со стандартным и высоким типами подъема

Сервисная книжка «Секционные ворота»

Паспорт «Промышленные секционные ворота серии isd thermalpro (термостойкие)»

Сертификат соответствия «Ворота для зданий и сооружений»

Сертификат соответствия «Сэндвич-панели»

Сертификат соответствия «Изделия комплектующие для ворот»

Сертификат соответствия «Ворота секционные металлические» (Беларусь)

Экспертное заключение, соответствие СанПиН

Cерия isd thermalpro (термостойкие), низкий подъем

Cерия isd thermalpro (термостойкие), низкий подъем, с опцией «греющий контур»

Cерия isd thermalpro (термостойкие), низкий подъем, барабан сзади

Cерия isd thermalpro (термостойкие), низкий подъем, барабан сзади, с опцией «греющий контур»

Cерия isd thermalpro (термостойкие), стандартный подъем

Cерия isd thermalpro (термостойкие), стандартный подъем, с опцией «греющий контур»

Cерия isd thermalpro (термостойкие), стандартный наклонный подъем

Cерия isd thermalpro (термостойкие), стандартный наклонный подъем, с опцией «греющий контур»

Cерия isd thermalpro (термостойкие), высокий подъем

Cерия isd thermalpro (термостойкие), высокий подъем, с опцией «греющий контур»

Cерия isd thermalpro (термостойкие), высокий подъем с двойным изгибом направляющих

Cерия isd thermalpro (термостойкие), высокий подъем с двойным изгибом направляющих, с опцией «греющий контур»

Cерия isd thermalpro (термостойкие), высокий подъем, вал снизу

Cерия isd thermalpro (термостойкие), высокий подъем, вал снизу, с опцией «греющий контур»

Cерия isd thermalpro (термостойкие), высокий наклонный подъем

Cерия isd thermalpro (термостойкие), высокий наклонный подъем, с опцией «греющий контур»

Cерия isd thermalpro (термостойкие), высокий наклонный подъем, вал снизу

Cерия isd thermalpro (термостойкие), высокий наклонный подъем, вал снизу, с опцией «греющий контур»

Cерия isd thermalpro (термостойкие), вертикальный подъем

Cерия isd thermalpro (термостойкие), вертикальный подъем, с опцией «греющий контур»

Cерия isd thermalpro (термостойкие), вертикальный подъем, вал снизу

Cерия isd thermalpro (термостойкие), вертикальный подъем, вал снизу, с опцией «греющий контур»

Гарантийные обязательства печать

Покупателю предоставляется 10 лет гарантии на отсутствие сквозной коррозии cэндвич-панелей и стальных профилей системы направляющих.

Новинки
Сэндвич-панель толщиной 80 мм в совокупности с системой теплых профилей, снабженных терморазделительными вставками, не допускает промерзание панели.

Сэндвич-панель толщиной 80 мм в совокупности с системой теплых профилей, снабженных терморазделительными вставками, не допускает промерзание панели.

Полностью обновлена система опорных кронштейнов торсионного механизма, что позволило существенно облегчить процесс монтажа: <br>- удобная установка торсионного механизма в сборе и легкая фиксация подшипников на заранее установленных на выносной трубе кронштейнах; <br>- крепление устройств защиты от разрыва пружин производится напрямую к опорному кронштейну, без использования переходников; <br>- новая система предполагает фиксацию кронштейна охватывающей скобой, что позволяет изменять положение опорных кронштейнов в процессе монтажа.

Полностью обновлена система опорных кронштейнов торсионного механизма, что позволило существенно облегчить процесс монтажа:
- удобная установка торсионного механизма в сборе и легкая фиксация подшипников на заранее установленных на выносной трубе кронштейнах;
- крепление устройств защиты от разрыва пружин производится напрямую к опорному кронштейну, без использования переходников;
- новая система предполагает фиксацию кронштейна охватывающей скобой, что позволяет изменять положение опорных кронштейнов в процессе монтажа.

Уникальная система обогрева контура направляющих, предотвращающая образование конденсата и наледи, устанавливается при эксплуатации ворот в зоне раздела температурных сред.

Уникальная система обогрева контура направляющих, предотвращающая образование конденсата и наледи, устанавливается при эксплуатации ворот в зоне раздела температурных сред.

Система предотвращения примерзания полотна к полу, так же как и обогрев контура направляющих, применяется в случае установки ворот в зоне раздела температурных сред.

Система предотвращения примерзания полотна к полу, так же как и обогрев контура направляющих, применяется в случае установки ворот в зоне раздела температурных сред.

Дизайн
Дизайн панелей
Горизонтальные полосы
Горизонтальные полосы
Тип поверхности
Гладкая (внешняя)
Гладкая (внешняя)
Гладкая (внутренняя)
Гладкая (внутренняя)
Цвета
RAL 9003 (белый)
RAL 9003 (белый)
Комплектация
Базовая комплектация
Полотно из сэндвич-панели толщиной 80 мм с пенополиуретановым наполнителем высокой плотности. Листы панели термически разделены вставкой энергофлексового уплотнителя, который препятствует промерзанию стыка панелей.

Полотно из сэндвич-панели толщиной 80 мм с пенополиуретановым наполнителем высокой плотности. Листы панели термически разделены вставкой энергофлексового уплотнителя, который препятствует промерзанию стыка панелей.

Верхний алюминиевый профиль с терморазделением препятствует образованию конденсата и наледи в верхней части полотна ворот. Верхний уплотнитель сохраняет свою эластичность при отрицательных температурах и обеспечивает надежную герметизацию проема.

Верхний алюминиевый профиль с терморазделением препятствует образованию конденсата и наледи в верхней части полотна ворот. Верхний уплотнитель сохраняет свою эластичность при отрицательных температурах и обеспечивает надежную герметизацию проема.

Нижний алюминиевый профиль сохраняет терморазделение сэндвич-панели. Двойной уплотнитель нивелирует неровности пола, обеспечивает хорошую герметизацию. Греющий провод устанавливается в нижний уплотнитель при выборе опции «обогреваемый контур проема».

Нижний алюминиевый профиль сохраняет терморазделение сэндвич-панели. Двойной уплотнитель нивелирует неровности пола, обеспечивает хорошую герметизацию. Греющий провод устанавливается в нижний уплотнитель при выборе опции «обогреваемый контур проема».

Двойная система уплотнения проема: боковой двухлепестковый уплотнитель установлен между полотном и угловой стойкой, внешний двухлепестковый контур уплотнения — между проемом и щитом. Проем уплотняется четырьмя уплотнителями одновременно, дополнительные воздушные камеры обеспечивают максимально надежную герметизацию.

Двойная система уплотнения проема: боковой двухлепестковый уплотнитель установлен между полотном и угловой стойкой, внешний двухлепестковый контур уплотнения — между проемом и щитом. Проем уплотняется четырьмя уплотнителями одновременно, дополнительные воздушные камеры обеспечивают максимально надежную герметизацию.

Системы направляющих из стали толщиной 2 мм — надежное решение, обладающее повышенным запасом прочности.

Системы направляющих из стали толщиной 2 мм — надежное решение, обладающее повышенным запасом прочности.

Пружинный механизм на торсионных пружинах, рассчитанный на 25 000 циклов, обеспечивает долговечность конструкции ворот.

Пружинный механизм на торсионных пружинах, рассчитанный на 25 000 циклов, обеспечивает долговечность конструкции ворот.

Устройство защиты от обрыва пружины блокирует вал, что предотвращает падение полотна ворот.

Устройство защиты от обрыва пружины блокирует вал, что предотвращает падение полотна ворот.

Устройство защиты от обрыва троса устанавливается в качестве нижнего кронштейна на полотно ворот. В случае обрыва троса механизм срабатывает и предотвращает падение полотна ворот.

Устройство защиты от обрыва троса устанавливается в качестве нижнего кронштейна на полотно ворот. В случае обрыва троса механизм срабатывает и предотвращает падение полотна ворот.

Коробка с комплектацией для монтажа, паспортом на изделие и инструкцией по монтажу.

Коробка с комплектацией для монтажа, паспортом на изделие и инструкцией по монтажу.

Дополнительная комплектация
Система обогрева контура проема представляет собой силовой каркас, выполненный из алюминиевого профиля, внутри которого размещается греющий ПЭН-провод, что позволяет избежать примерзания полотна ворот к проему. Помимо этого по нижней кромке полотна ворот также пускается греющий кабель. Таким образом получается замкнутый греющий контур по всему периметру проема.

Система обогрева контура проема представляет собой силовой каркас, выполненный из алюминиевого профиля, внутри которого размещается греющий ПЭН-провод, что позволяет избежать примерзания полотна ворот к проему. Помимо этого по нижней кромке полотна ворот также пускается греющий кабель. Таким образом получается замкнутый греющий контур по всему периметру проема.

Ручной цепной привод устанавливается на промышленные ворота всех типов подъема, служит для подъема/опускания полотна ворот вручную.

Ручной цепной привод устанавливается на промышленные ворота всех типов подъема, служит для подъема/опускания полотна ворот вручную.

Пружинный механизм на торсионных пружинах, рассчитанный на ресурс до 100 000 циклов.

Пружинный механизм на торсионных пружинах, рассчитанный на ресурс до 100 000 циклов.

Механическая задвижка позволяет запирать полотно изнутри помещения. Отличается простотой и надежностью.

Механическая задвижка позволяет запирать полотно изнутри помещения. Отличается простотой и надежностью.

Автоматизация. Возможность автоматизации ворот приводом (см. раздел «Автоматика для ворот»).

Автоматизация. Возможность автоматизации ворот приводом (см. раздел «Автоматика для ворот»).

Техническое описание
Таблица размеров
Параметр
Показатель
Высота проема, мм
2 000–5 000
Ширина проема, мм
2 000–6 000
Притолока, мм
От 150
Пристенки, мм
От 120; с опцией обогреваемый контур — от 150
Конструкция
  1. Угловая стойка
  2. Вертикальная направляющая
  3. Вал цилиндрический
  4. Устройство защиты от обрыва пружины
  5. Барабан
  6. П-образный кронштейн
  7. Балансирующий пружинный механизм (торсионная пружина)
  8. Муфта соединительная
  9. Внутренний опорный кронштейн
  10. Верхняя опора с держателем ролика
  11. Боковая опора с держателем ролика
  12. Внутренняя петля
  13. Устройство защиты от разрыва троса
  14. Сэндвич-панель 80 мм
  15. Усиливающий дельта-профиль
  16. Нижний профиль и уплотнитель
  17. Уплотнитель боковой
  18. Верхний профиль и уплотнитель
  19. Боковая крышка усиленная для панелей с отверстиями для крепления
  20. Профиль-рама, оснащенный греющим ПЭН проводом (опция)
  21. Кронштейны крепления к потолку
  22. Пружинный амортизатор
  23. Дистанционный С-профиль
Стандартные конструктивные решения

Низкий подъем, барабан спереди.

Низкий подъем, барабан спереди.

Усл. обозначение, наименование параметра Расчетная формула
H, мм Высота проема H
h, мм Высота притолоки ≥ 230;
≥ 280 (при H ≥ 3 700);
≥ 280 (с вальным приводом, при H < 3 700)
B, мм Ширина проема B
A, мм Высота угловой стойки H + 110
Ab, мм Высота оси вала и барабана ≥ A + 59
A1, мм Высота вертикальной направляющей А - 543
A2, мм Высота горизонтальной направляющей А - 106
E, мм Длина горизонтальных направляющих Н + 340
Db, мм Рабочая зона торсионного механизма Зависит от размеров проема и веса щита
S, мм Минимальное боковое пространство 120 (150 с опцией «обогреваемый контур»)
n, мм Перекрытие проема в открытом положении 190 (без привода);
0...10 (с приводом)
Низкий подъем, барабан сзади.

Низкий подъем, барабан сзади.

Усл. обозначение, наименование параметра Расчетная формула
H, мм Высота проема H
h, мм Высота притолоки ≥ 150
B, мм Ширина проема B
A, мм Высота угловой стойки при h < 170: H + 110;
при 150 ≤ h ≤ 170: H + h - 60
Ab, мм Высота оси вала и барабана при h ≤ 170: H + 55;
при 150 ≤ h ≤ 170: H + h - 47
A1, мм Высота вертикальной направляющей А - 543
A2, мм Высота горизонтальной направляющей А - 106
E, мм Длина горизонтальных направляющих Н + 550
Db, мм Рабочая зона торсионного механизма Зависит от размеров проема и веса щита
S, мм Минимальное боковое пространство 120 (150 с опцией «обогреваемый контур»)
n, мм Перекрытие проема в открытом положении 240 (без привода);
40...60 (с приводом)
Стандартный подъем.

Стандартный подъем.

Усл. обозначение, наименование параметра Расчетная формула
H, мм Высота проема H
h, мм Высота притолоки R381: ≥ 420;
R305: ≥ 350
B, мм Ширина проема B
A, мм Высота угловой стойки R381: H + 235;
R305: H + 165
Ab, мм Высота оси вала и барабана A + 97
A1, мм Высота вертикальной направляющей R381: A — 580;
R305: A — 490
A2, мм Высота горизонтальной направляющей А - 110
E, мм Длина горизонтальных направляющих R381: H + 240;
R305: H + 290
Db, мм Рабочая зона торсионного механизма Зависит от размеров проема и веса щита
S, мм Минимальное боковое пространство 120 (150 с опцией «обогреваемый контур»)
Q, мм Зона расположения привода на вал 300
Стандартный наклонный подъем.

Стандартный наклонный подъем.

Усл. обозначение, наименование параметра Расчетная формула
H, мм Высота проема H
h, мм Высота притолоки ≥ 500
B, мм Ширина проема B
A, мм Высота угловой стойки H + 250…985
Ab, мм Высота оси вала и барабана А + 86/97
A1, мм Высота вертикальной направляющей Н - 300
E, мм Длина горизонтальных направляющих Зависит от угла α° (размер, ограничивающий рабочую зону ворот вглубь помещения)
Db, мм Рабочая зона торсионного механизма Зависит от размеров проема и веса щита
S, мм Минимальное боковое пространство 120 (150 с опцией «обогреваемый контур»)
α° Угол наклона направляющих к горизонтали 5...65 (кратен 5°)
Q, мм Зона расположения привода на вал 300
Высокий подъем.

Высокий подъем.

Усл. обозначение, наименование параметра Расчетная формула
H, мм Высота проема H
h, мм Высота притолоки > 660
B, мм Ширина проема B
HL, мм Расстояние от уровня горизонтальных направляющих до проема По умолчанию h - 330
A, мм Высота угловой стойки H + HL
Ab, мм Высота оси вала и барабана A + 86/97
A1, мм Высота вертикальной направляющей А - 580
A2, мм Высота горизонтальной направляющей А - 53
E, мм Длина горизонтальных направляющих H - НL + 510...640
Db, мм Рабочая зона торсионного механизма Зависит от размеров проема и веса щита
S, мм Минимальное боковое пространство 120 (150 с опцией «обогреваемый контур»)
Q, мм Зона расположения привода на вал 300
Высокий подъем, барабан снизу

Высокий подъем, барабан снизу

Усл. обозначение, наименование параметра Расчетная формула
H, мм Высота проема H
h, мм Высота притолоки ≥ 1 600
B, мм Ширина проема B
HL, мм Расстояние от уровня горизонтальных направляющих до проема 1 330 ≤ HL ≤ h - 150
A, мм Высота угловой стойки H + HL
Ab, мм Высота оси вала и барабана H + 400...600 + 280
A1, мм Высота вертикальной направляющей А - 580
A2, мм Высота горизонтальной направляющей А - 53
E, мм Длина горизонтальных направляющих H - НL + 510...640
Db, мм Рабочая зона торсионного механизма Зависит от размеров проема и веса щита
S, мм Минимальное боковое пространство ≥ 300
Q, мм Зона расположения привода на вал ≥ 500
Наклонный высокий подъем.

Наклонный высокий подъем.

Усл. обозначение, наименование параметра Расчетная формула
H, мм Высота проема H
h, мм Высота притолоки ≥ 660
B, мм Ширина проема B
HL, мм Расстояние от уровня горизонтальных направляющих до проема 330
A, мм Высота угловой стойки H + HL + 15...749
Ab, мм Высота оси вала и барабана ≤ А + 86/97
A1, мм Высота вертикальной направляющей Н + HL - 330...580
E, мм Длина горизонтальных направляющих Зависит от угла α° (размер, ограничивающий рабочую зону ворот вглубь помещения)
Db, мм Рабочая зона торсионного механизма Зависит от размеров проема и веса щита
S, мм Минимальное боковое пространство 120 (150 с опцией «обогреваемый контур»)
α° Угол наклона направляющих к горизонтали 5...65 (кратен 5°)
Q, мм Зона расположения привода на вал 300
Наклонный высокий подъем, барабан снизу.

Наклонный высокий подъем, барабан снизу.

Усл. обозначение, наименование параметра Расчетная формула
H, мм Высота проема H
h, мм Высота притолоки ≥ 1600
B, мм Ширина проема B
HL, мм Расстояние от уровня горизонтальных направляющих до проема ≥ 1 330
A, мм Высота угловой стойки H + HL + 15...749
Ab, мм Высота оси вала и барабана Ab > H + 680
A1, мм Высота вертикальной направляющей Н + HL - 330...580
E, мм Длина горизонтальных направляющих Зависит от угла α° (размер, ограничивающий рабочую зону ворот вглубь помещения)
Db, мм Рабочая зона торсионного механизма Зависит от размеров проема и веса щита
S, мм Минимальное боковое пространство 120 (150 с опцией «обогреваемый контур»)
α° Угол наклона направляющих к горизонтали 5...65 (кратен 5°)
Q, мм Зона расположения привода на вал ≥ 650
Вертикальный подъем.

Вертикальный подъем.

Усл. обозначение, наименование параметра Расчетная формула
H, мм Высота проема H
h, мм Высота притолоки ≥ Н + 500
B, мм Ширина проема B
A, мм Высота угловой стойки 2H + 120
Ab, мм Высота оси вала и барабана A + 166
S, мм Минимальное боковое пространство 120 (150 с опцией «обогреваемый контур»)
Q, мм Зона расположения привода на вал 300
Вертикальный подъем, барабан снизу.

Вертикальный подъем, барабан снизу.

Усл. обозначение, наименование параметра Расчетная формула
H, мм Высота проема H
h, мм Высота притолоки ≥ H + 120
B, мм Ширина проема B
A, мм Высота угловой стойки 2H + 120
Ab, мм Высота оси вала и барабана H + 680
S, мм Минимальное боковое пространство 500 min
Q, мм Зона расположения привода на вал ≥ 650
Технические характеристики
Параметр Значение Примечание
Безотказность, количество циклов открывания-закрывания, не менее 120 000 (для ворот); 25 000 (для торсионного механизма)
Усилие ручного открывания и закрывания, Н, не более 260
Вес полотна ворот, кг/м² 17 Точное значение зависит от типоразмера панелей, используемых в конструкции ворот
Напряжение питания, В 220 В, 50 Гц (для контурного обогрева)
Приведенное сопротивление теплопередаче, м² *°С/Вт 2,3 — без системы обогрева контура проема;
3,3 — с системой обогрева контура проема
Диапазон рабочих температур, °С До -30, ISD THERMALPRO с системой обогрева контура проема — низкотемпературные камеры;
до -5, ISD THERMALPRO без системы обогрева контура проема — среднетемпературные камеры
Условия эксплуатации продукции

1. Секции полотна ворот должны плавно передвигаться по направляющим, а сами ворота должны быть сбалансированными, т. е. их вес должен компенсироваться крутящим моментом торсионных пружин.

2. Следите за тем, чтобы люди и животные не находились в зоне действия ворот во время их работы.

3. Строго запрещено передвигаться под движущимся полотном ворот, т. к. это может привести к травмам.

4. Не подвергайте ворота ударам и не препятствуйте их свободному движению при открывании и закрывании.

5. Не подвергайте загрязнению направляющие и ролики, т. к. это может привести к нарушению плавности хода, а при наличии электропривода — к его перегрузке и выходу из строя.

6. Следите за тем, чтобы во время движения полотна в проеме отсутствовали посторонние предметы и мусор. Их наличие может привести к перекосу и заклиниванию полотна ворот.

Упаковка
Упаковка в картон Характеристики упаковки
Описание Система направляющих и щит секционных ворот имеют жесткую комбинированную упаковку из картона и пенопласта, стянутую стретч-пленкой; комплектация для монтажа упаковывается в коробку из гофрокартона и запаивается упаковочной пленкой; все упаковки снабжены информационными наклейками, содержащими данные о заказе, а так же фирменным логотипом компании
Состав Картон, пенопласт, стретч-пленка, скотч
Ширина, мм Упаковка щита — от 500 до 800
Высота, мм Упаковка щита — от 350 до 800
Длина, мм Упаковка щита — от 2 100 до 6 100
Вес брутто, кг До 1 000
Количество в упаковке, шт. Упаковка щита — от 3 до 17 панелей; упаковка направляющих — 1 система направляющих; упаковка комплектующих — коробка с комплектацией (может быть несколько); возможны дополнительные упаковки (окантовка, дельта-профиль и пр.)
Дополнительное описание

Хранение сэндвич-панелей рекомендуется производить в заводской упаковке на ровной поверхности. Хранить упаковки с сэндвич-панелями рекомендуется не более 6 месяцев с момента производства в складах закрытого типа или под навесом. Панели должны быть защищены от попадания влаги, а в зимний период — от снега и загрязнения. Необходимо защищать их от воздействия прямых солнечных лучей, атмосферных осадков и пыли. Упаковки должны храниться в горизонтальном положении.

Установка
Способы монтажа
Накладной монтаж: cистема направляющих монтируется на  пристенки и притолоку с внутренней стороны проема. Пристенки — от 120 мм, с опцией «обогреваемый контур» — от 150 мм.
Накладной монтаж: cистема направляющих монтируется на пристенки и притолоку с внутренней стороны проема. Пристенки — от 120 мм, с опцией «обогреваемый контур» — от 150 мм.
Подготовка строительного объекта
  1. Для снятия необходимых показателей достаточно рулетки и строительного уровня. Все замеры производятся внутри помещения. Замер каждой величины необходимо производить как минимум по трем точкам (в крайних положениях и по центру).
  2. H — высота проема (расстояние от пола до верха проема).
  3. B — ширина проема (расстояние от левого края до правого края проема).
  4. h — притолока (расстояние от верха проема до потолка) от 150 мм.
  5. b1/ b2 — левое/правое боковое расстояние (расстояние от соответствующего края проема до препятствия) от 120 мм, с опцией «обогреваемый контур» — от 150 мм.
  6. L — глубина помещения.
  7. При замере Н и В за итоговый размер принимается наибольшая величина.
  8. При замере h, b1, b2 и L за итоговый размер принимается наименьшая величина.
  9. Перепад уровня пола по всей ширине проема не должен превышать 10 мм. Необходимо обеспечить выдержку монтажной плоскости (пристенков и притолоки). Основание под установку системы направляющих должно быть монолитным и прочным, при отсутствии такового требуется дополнительная окантовка либо формирование проема металлоизделиями.
Гарантийные обязательства

Покупателю предоставляется 10 лет гарантии на отсутствие сквозной коррозии cэндвич-панелей и стальных профилей системы направляющих.

Документация
Инструкции

Инструкция по монтажу секционных ворот серии isd thermalpro (термостойкие)

Инструкция по монтажу секционных ворот со стандартным и высоким типами подъема

Сервисная книжка «Секционные ворота»

Паспорта и сертификаты

Паспорт «Промышленные секционные ворота серии isd thermalpro (термостойкие)»

Сертификат соответствия «Ворота для зданий и сооружений»

Сертификат соответствия «Сэндвич-панели»

Сертификат соответствия «Изделия комплектующие для ворот»

Сертификат соответствия «Ворота секционные металлические» (Беларусь)

Экспертное заключение, соответствие СанПиН

Чертежи

Cерия isd thermalpro (термостойкие), низкий подъем

Cерия isd thermalpro (термостойкие), низкий подъем, с опцией «греющий контур»

Cерия isd thermalpro (термостойкие), низкий подъем, барабан сзади

Cерия isd thermalpro (термостойкие), низкий подъем, барабан сзади, с опцией «греющий контур»

Cерия isd thermalpro (термостойкие), стандартный подъем

Cерия isd thermalpro (термостойкие), стандартный подъем, с опцией «греющий контур»

Cерия isd thermalpro (термостойкие), стандартный наклонный подъем

Cерия isd thermalpro (термостойкие), стандартный наклонный подъем, с опцией «греющий контур»

Cерия isd thermalpro (термостойкие), высокий подъем

Cерия isd thermalpro (термостойкие), высокий подъем, с опцией «греющий контур»

Cерия isd thermalpro (термостойкие), высокий подъем с двойным изгибом направляющих

Cерия isd thermalpro (термостойкие), высокий подъем с двойным изгибом направляющих, с опцией «греющий контур»

Cерия isd thermalpro (термостойкие), высокий подъем, вал снизу

Cерия isd thermalpro (термостойкие), высокий подъем, вал снизу, с опцией «греющий контур»

Cерия isd thermalpro (термостойкие), высокий наклонный подъем

Cерия isd thermalpro (термостойкие), высокий наклонный подъем, с опцией «греющий контур»

Cерия isd thermalpro (термостойкие), высокий наклонный подъем, вал снизу

Cерия isd thermalpro (термостойкие), высокий наклонный подъем, вал снизу, с опцией «греющий контур»

Cерия isd thermalpro (термостойкие), вертикальный подъем

Cерия isd thermalpro (термостойкие), вертикальный подъем, с опцией «греющий контур»

Cерия isd thermalpro (термостойкие), вертикальный подъем, вал снизу

Cерия isd thermalpro (термостойкие), вертикальный подъем, вал снизу, с опцией «греющий контур»

Оформить заказ
Менеджеры компании ответят на все
вопросы по телефону: