Перегрузочное оборудование
Двустворчатые раздвижные двери
Каталог

Комплект автоматической раздвижной двери (две подвижные цельностеклянные створки) для привода серии ad-sp

Автоматическая раздвижная дверь предназначена для установки впроемы входных групп различных коммерческих объектов с интенсивным потоком людей, таких как торгово-развлекательные и бизнес-центры, рестораны, складские и производственные комплексы, медицинские учреждения, здания общественно-бытового назначения.
Зона применения:
Медицинские учреждения
Входные группы больниц и поликлиник, операционные и стерильные зоны, аптечные и лабораторные помещения, отделения неотложной помощи.
Торговые объекты
Торговые центры и супермаркеты, сетевые магазины («Пятерочка», «Магнит», «Перекресток»), магазины у дома и бутики, аптеки, салоны и отделения банков.
Гостиницы и рестораны
Входные группы отелей, разделение зон (например: холл — ресторан — кухня), конференц-залы и банкетные пространства.
Транспортные узлы
Аэропорты, вокзалы, автостанции, входы в терминалы и залы ожидания, эвакуационные выходы и выходы на перроны.
Промышленные и технические здания
Чистые зоны на производстве, зоны загрузки/разгрузки, разделение производственных и административных помещений, проходные.
Преимущества
Функциональность
Возможность эксплуатации изделия в шести режимах позволяет решить любую задачу по организации прохода людей.
Разнообразие заполнения створки
Возможность заполнения створки безопасным стеклом толщиной 8 или 9 мм или стеклопакетом 24 мм.
Легкая сборка
Уникальное сухарное соединение позволяет значительно сократить время сборки створок и монтажа изделия в целом, а также увеличивает световой просвет.
Разнообразие конструкций и классов изделий
Преимущество позволяет подобрать оптиальную конструкцию для любого проема: при отсутствии притолоки и пристенков, при ограниченной (недостаточной) ширине пристенков, при отсутствии иных выходов из помещения.
Привлекательная цена
За счет снижения металлоемкости и оптимизации профильной системы конструкции изделие имеет привлекательную цену.
Функциональность
Возможность эксплуатации изделия в шести режимах позволяет решить любую задачу по организации прохода людей.
Разнообразие заполнения створки
Возможность заполнения створки безопасным стеклом толщиной 8 или 9 мм или стеклопакетом 24 мм.
Легкая сборка
Уникальное сухарное соединение позволяет значительно сократить время сборки створок и монтажа изделия в целом, а также увеличивает световой просвет.
Разнообразие конструкций и классов изделий
Преимущество позволяет подобрать оптиальную конструкцию для любого проема: при отсутствии притолоки и пристенков, при ограниченной (недостаточной) ширине пристенков, при отсутствии иных выходов из помещения.
Привлекательная цена
За счет снижения металлоемкости и оптимизации профильной системы конструкции изделие имеет привлекательную цену.
Дизайн
Дизайн заполнения
Стандартные цвета
Наличие двусторонней покраски створок. Заполнeние любого типа толщиной 8, 9 и 24 мм
Наличие двусторонней покраски створок. Заполнeние любого типа толщиной 8, 9 и 24 мм
RAL 9016 (белый)
RAL 9016 (белый)
RAL 9006 (металлик гладкий)
RAL 9006 (металлик гладкий)
RAL 7004 (серый)
RAL 7004 (серый)
RAL 1014 (бежевый)
RAL 1014 (бежевый)
RAL 2004 (оранжевый)
RAL 2004 (оранжевый)
RAL 3020 (красный)
RAL 3020 (красный)
RAL 3005 (бордовый)
RAL 3005 (бордовый)
RAL 6018 (салатовый)
RAL 6018 (салатовый)
RAL 6005 (зеленый)
RAL 6005 (зеленый)
RAL 7016 (антрацит)
RAL 7016 (антрацит)
RAL 5005 (синий)
RAL 5005 (синий)
RAL 8017 (коричнево-красный)
RAL 8017 (коричнево-красный)
RAL 9005 (черный)
RAL 9005 (черный)
RAL 8014 (коричневый)
RAL 8014 (коричневый)
Комплектация
Базовая комплектация
Дополнительная комплектация
Электродвигатeль (арт. ad-01sp).

Электродвигатeль (арт. ad-01sp).

Контроллер (арт. ad-03sp).

Контроллер (арт. ad-03sp).

Переключатель режимов с дисплеем (арт. ad-08sp).

Переключатель режимов с дисплеем (арт. ad-08sp).

Датчик движения (арт. ad-06, 1 шт.).

Датчик движения (арт. ad-06, 1 шт.).

Комбинированный датчик движения и безопасности (арт. ad-34, 1 шт.).

Комбинированный датчик движения и безопасности (арт. ad-34, 1 шт.).

Натяжной ролик (арт. ad-14sp, 1 шт.).

Натяжной ролик (арт. ad-14sp, 1 шт.).

Комплект кареток (арт. ad-15sp, 4 шт.) в приводе серии ad-sp.

Комплект кареток (арт. ad-15sp, 4 шт.) в приводе серии ad-sp.

* Комплект кареток  (4 шт.) для внешних створок в приводе серии ad-sp-telescope (ad-sp-телескопический).

* Комплект кареток (4 шт.) для внешних створок в приводе серии ad-sp-telescope (ad-sp-телескопический).

* Комплект кареток  (4 шт.) для внутренних створок в приводе серии ad-sp-telescope (ad-sp-телескопический).

* Комплект кареток (4 шт.) для внутренних створок в приводе серии ad-sp-telescope (ad-sp-телескопический).

Комплект боковых крышек короба (арт. ad-16sp, 2 шт.) в серии ad-sp./ * (арт. ad-16sptel, 2 шт.) в серии ad-sp-telescope (ad-sp-телескопический).

Комплект боковых крышек короба (арт. ad-16sp, 2 шт.) в серии ad-sp./ * (арт. ad-16sptel, 2 шт.) в серии ad-sp-telescope (ad-sp-телескопический).

Приводной ремень (арт. ad-17, 11 м).

Приводной ремень (арт. ad-17, 11 м).

Комплект стопоров (арт. ad-19sp, 2 шт.) в приводе серии ad-sp.

Комплект стопоров (арт. ad-19sp, 2 шт.) в приводе серии ad-sp.

* Комплект стопоров (2 шт.) в приводе серии ad-sp-telescope (ad-sp-телескопический).

* Комплект стопоров (2 шт.) в приводе серии ad-sp-telescope (ad-sp-телескопический).

Комплект держателей ремня (арт. ad-20sp, 2 шт.).

Комплект держателей ремня (арт. ad-20sp, 2 шт.).

Нижняя направляющая в пол (арт. tpp-001-32d, 2 шт.).

Нижняя направляющая в пол (арт. tpp-001-32d, 2 шт.).

Короб с крышкой (арт. ahds35 2009, 2011, 2012) для привода серии ad-sp/ * (арт. ahds35 2019-2023) для привода серии ad-sp-telescope (ad-sp-телескопический).

Короб с крышкой (арт. ahds35 2009, 2011, 2012) для привода серии ad-sp/ * (арт. ahds35 2019-2023) для привода серии ad-sp-telescope (ad-sp-телескопический).

Рельс с уплотнителем (арт. ahds35 2010 c ad-29) для привода ad-sp/ * (арт. ahds35 2023 c ad-29tel, 2 шт.) для привода серии ad-sp-telescope (ad-sp-телескопический).

Рельс с уплотнителем (арт. ahds35 2010 c ad-29) для привода ad-sp/ * (арт. ahds35 2023 c ad-29tel, 2 шт.) для привода серии ad-sp-telescope (ad-sp-телескопический).

Профиль под фотоэлемент (арт. ahds35 0213, 2 шт.).

Профиль под фотоэлемент (арт. ahds35 0213, 2 шт.).

Профиль ствoрки вертикальный с вырубкой в торце 30 × 35 мм (арт. ahds35 0106.frez).

Профиль ствoрки вертикальный с вырубкой в торце 30 × 35 мм (арт. ahds35 0106.frez).

Профиль створки горизонтальный 64 × 35 мм (арт. ad-100kit).

Профиль створки горизонтальный 64 × 35 мм (арт. ad-100kit).

Комплект закладных пластин (арт. ad-100kit, 2 комп.).

Комплект закладных пластин (арт. ad-100kit, 2 комп.).

Ad-07sp — электромеханический замок для привода серии ad-sp, обеспечивает надeжную защиту от несанкционированного проникновения / * (арт. ad-07sptel) для привода серии ad-sp-telescope (ad-sp-телескопический).

Ad-07sp — электромеханический замок для привода серии ad-sp, обеспечивает надeжную защиту от несанкционированного проникновения / * (арт. ad-07sptel) для привода серии ad-sp-telescope (ad-sp-телескопический).

Ad-27 — аккумулятoрная батарея (емкость 2,0 Аh) обеспечивает бесперебойную работу двери без внешнего питания в течение 15–30 минут (170 циклов).

Ad-27 — аккумулятoрная батарея (емкость 2,0 Аh) обеспечивает бесперебойную работу двери без внешнего питания в течение 15–30 минут (170 циклов).

Ad-30 — беспроводная (локтевая) кнопка серии push (нажми). Используется для ручного контактного управления дверью вместо датчика движения (открывание двери путем нажатия на кнопку).

Ad-30 — беспроводная (локтевая) кнопка серии push (нажми). Используется для ручного контактного управления дверью вместо датчика движения (открывание двери путем нажатия на кнопку).

Ad-31 — бесконтактная инфракрасная кнопка. Используется для ручного бесконтактного управления дверью вместо датчика движения (от 1 до 15 см).

Ad-31 — бесконтактная инфракрасная кнопка. Используется для ручного бесконтактного управления дверью вместо датчика движения (от 1 до 15 см).

Ad-32 — переключатель режимов работы с ключом (5 режимов). Используется вместо переключателя режимов с дисплеем и обеспечивает ограниченный доступ к управлению дверью.

Ad-32 — переключатель режимов работы с ключом (5 режимов). Используется вместо переключателя режимов с дисплеем и обеспечивает ограниченный доступ к управлению дверью.

Ad-34 — комбинированный датчик движения и безопасности. Объединяет в одном корпусе микроволновый датчик-радар движения и инфракрасную шторку безопасности в проеме.

Ad-34 — комбинированный датчик движения и безопасности. Объединяет в одном корпусе микроволновый датчик-радар движения и инфракрасную шторку безопасности в проеме.

Ad-09 — комплект фотоэлементов, обеспечивающий безопасность в проеме двери.

Ad-09 — комплект фотоэлементов, обеспечивающий безопасность в проеме двери.

Техническое описание
Таблица размеров
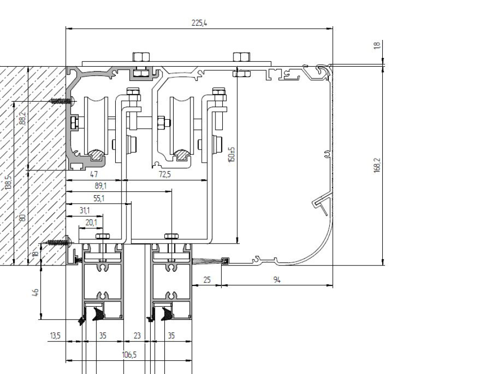
Конструкция
Стандартные конструктивные решения
Технические характеристики
Условия эксплуатации продукции
Упаковка
Параметр
Показатель
Высота проема, мм
2 000–3 000
Ширина проема для двустворчатых дверей, мм
1 200–3 000
Толщина, мм
8–12 (для закаленного стекла)
Притолока, мм
Не менее 125
  1. Профиль cтворки вертикальный
  2. Профиль cтворки горизонтальный
  3. Штапик
  4. Заполнение 8 мм, 9 мм (со штапиком) или 24 мм (без штапика)
  5. Уплотнитель внутренний
  6. Уплотнитель внешний
  7. Уплотнитель центральный

Одностворчатая дверь (открывание влево).

Одностворчатая дверь (открывание влево).

Усл. обозначение, наименование параметра Расчетная формула
B, мм Ширина проема До 2 500
H, мм Высота проема До 3 000
Двустворчатая дверь.

Двустворчатая дверь.

Усл. обозначение, наименование параметра Расчетная формула
B, мм Ширина проема Дo 3 000
H, мм Высота проема Дo 3 000
Одностворчатая дверь с одной неподвижной створкой (открывание влево).

Одностворчатая дверь с одной неподвижной створкой (открывание влево).

Усл. обозначение, наименование параметра Расчетная формула
B, мм Ширина проема До 5 000
H, мм Высота проема До 3 000
Двустворчатая дверь с двумя неподвижными створками.

Двустворчатая дверь с двумя неподвижными створками.

Усл. обозначение, наименование параметра Расчетная формула
B, мм Ширина проема До 6 000
H, мм Высота проема До 3 000
Одностворчатая дверь с одной неподвижной створкой и фрамугой (открывание вправо).

Одностворчатая дверь с одной неподвижной створкой и фрамугой (открывание вправо).

Усл. обозначение, наименование параметра Расчетная формула
B, мм Ширина проема 1 184–6 200
H, мм Высота проема 2 200–4 000
W, мм Ширина прохода 700–3 000
K, мм Высота прохода 1 800–3 000
Двустворчатая дверь с двумя неподвижными створками и фрамугой.

Двустворчатая дверь с двумя неподвижными створками и фрамугой.

Усл. обозначение, наименование параметра Расчетная формула
B, мм Ширина проема 1 806–6 200
H, мм Высота проема 2 200–4 000
W, мм Ширина прохода 1 000–3 000
K, мм Высота прохода 1 800–3 000
Двустворчатая дверь с двумя цельностеклянными створками.

Двустворчатая дверь с двумя цельностеклянными створками.

Усл. обозначение, наименование параметра Расчетная формула
B, мм Ширина проема До 3 000
H, мм Высота проема До 3 000
Параметр Значение Примечание
Толщина профилей, мм 35
Толщина заполнения, мм 8–12 Цельностеклянная створка
Максимальная высота, м 3
Максимальный вес створки, кг. 100
Двигатель, В 24
Мощность, Вт 100
Напряжение питания, В 220
Диапазон рабочих температур, °С -20…+70
Интенсивность использования, % 100 Для интенсивного прохода, круглосуточно

1. Строго запрещено устанавливать короб двери с электроприводом с внешней стороны помещения, со стороны улицы.

2. Ручное открывание и закрывание створок двери производится только в аварийном случае (при отсутствии электроэнергии) или в ходе отладочных работ.

3. При открывании и закрывании створок двери вручную не прилагайте больших усилий. Запрещаеся открывать створки двери резкими толчками.

4. Следите за тем, чтобы дети и животные не находились длительное время в зоне открывания/закрывания створок двери.

5. Строго запрещено пытаться руками раздвигать заблокированные двери, засовывать пальцы или посторонние предметы в зазоры между движущейся створкой и полом, так как это может привести к травмам.

6. Не подвергайте створки ударам при проходе и не пытайтесь препятствовать их открыванию или закрыванию. Запрещается бежать или стоять в зоне движения створок двери.

7. Следите за тем, чтобы во время движения створок, на их пути отсутствовали посторонние предметы и мусор: их наличие может привести к перекосу створок двери, их заклиниванию и выходу из строя автоматики двери.

8. Не подвергайте загрязнению направляющие в пол и ролики кареток, так как это может привести к нарушению плавности хода створок, их подклиниванию и выходу из строя электропривода.

9. Створки автоматической двери должны плавно передвигаться вдоль проема двери по направляющему рельсу в цикле открывания/закрывания двери с обязательным торможением при достижении створками полностью открытого или закрытого положения.

10. Строго запрещена эксплуатация двери без установки элементов безопасности в проем двери в виде фотоэлементов или ИК-шторки.

Упаковка в картон Характеристики упаковки
Дeрeвянный поддон с пенопластовыми блоками снизу. Профили обернуты гофрокартонным листом и зафиксированы ПП‑лентой
Упаковка в пузырчатую пленку Характеристики упаковки
Упаковка представляет собой профили, обернутые пузырчатой пленкой и зафиксированные скотчем с логотипом. Масса одной упаковки профилей не превышает 35 кг
Упаковка на палету Характеристики упаковки
Пачки профилей, упакованные в пузырчатую пленку, укладывают в палету из пенопластового обрамления и фиксируют скотчем
Дополнительное описание печать

Раздвижныe двери можно устанавливать как отдельно, так и интегрировать в фасад здания или входную группу.

Установка
Способы монтажа
Подготовка строительного объекта
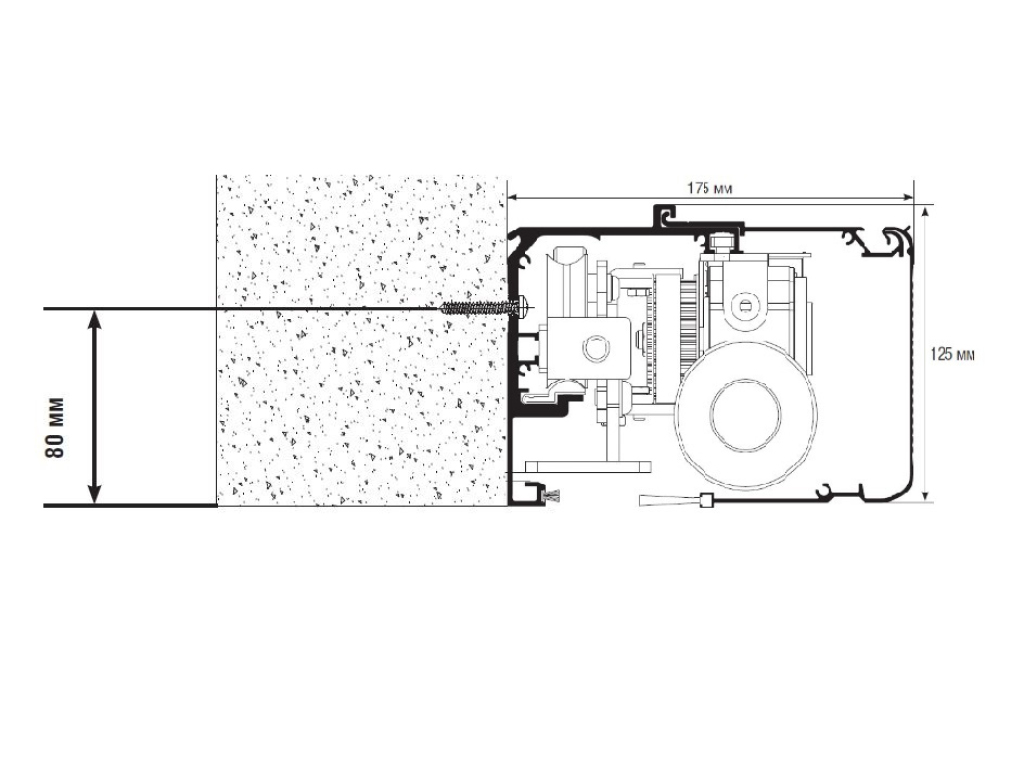
Монтаж короба автоматической двери в проем.
Монтаж короба автоматической двери в проем.
Монтаж короба телескопической двери в проем.
Монтаж короба телескопической двери в проем.
  1. Параметры проема:
    Н — высота проема (расстояние от чистого пола до верха проема);
    В — ширина проема (расстояние от левого края до правого края проема);
    h — высота притолоки (расстояние от верха проема до потолка).
    Замер притолоки, проема по ширине и высоте выполняется минимум в двух местах. За итоговый размер всегда принимается наименьшая величина.
  2. Для кaчественного монтажа конструкции и для ее надежного функционирования в дальнейшем, необходимо осуществить подготовку проема помещения. Существуют определенные требования к чистоте проема:
    Проем должен иметь прямоугольную форму.
    Поверхность плоскостей обрамления должна быть ровной и гладкой, без наплывов штукатурного раствора и трещин.
    Поверхность пола должна быть ровной, горизонтальной, без выступов и впадин. Предусмотрено отклонение до 1 мм на 1 м.
    Вертикальная и горизонтальная поверхности должны быть ровными с отклонением до 1 мм на 1 м.
    Если проемы подготовлены с отклонениями от изложенных требований, то перед снятием размеров и началом монтажа необходимо устранить данные отклонения.
    Притолока и боковые пристенки должны быть в одной плоскости.
    Обрамление проема должно быть в виде капитальной конструкции, сварной трубы, фасадного профиля или витража.
Документация
Инструкции
Паспорта и сертификаты
Чертежи

Инструкция «Автоматическая раздвижная дверь с приводом серии ad-sp»

Инструкция «Телескопическая дверь с приводом серии ad-sp-telescope (ad-sp-телескопический)»

Инструкция по сборке облегченных створок автоматических/телескопических дверей

Инструкция по сборке створок «антипаника» (с функцией распахивания) автоматических дверей

Инструкция по сборке конструкций с фрамугой и автоматической дверью

Инструкция по настройке комбинированного датчика движения и безопасности серии ad-34

Требования к подготовке проема и монтажу

Декларация соответствия на приводы для автоматических дверей

Декларация соответствия на автоматические двери

Паспорт автоматическая раздвижная дверь / привод серии ad-sp / серии ad-sp-telescope (ad-sp-телескопический)

Сертификат соответствия на алюминиевый профиль

Протокол на циклические испытания привода серии ad-sp

Протокол на циклические испытания привода серии ad-sp-telescope (ad-sp-телескопический)

Каталог профилей и комплектующих базовой створки (архив)

Каталог профилей и комплектующих для автоматической двери с лайтстворками

Каталог профилей и комплектующих для телескопической двери с лайтстворками

Каталог профилей и комплектующих для автоматической двери «антипаника»

Гарантийные обязательства печать

Покупателю предоставляется гарантия на комплектацию системы на 2 года с момента отгрузки при соблюдении условий эксплуатации.

Новинки
Беспроводная (локтевая) кнопка ad-30 используется для ручного управления открыванием и применяется как в чистых помещениях (операционные и лабораторные блоки), так и в офисных и торговых помещениях.

Беспроводная (локтевая) кнопка ad-30 используется для ручного управления открыванием и применяется как в чистых помещениях (операционные и лабораторные блоки), так и в офисных и торговых помещениях.

Датчик ad-34 — устройство комбинированного типа объединяет водном корпусе микроволновый датчик-радар движения и инфракрасную шторку присутствия. Датчик может работать как вместо, так и вместе с парой фотоэлементов безопасности при установке в составе автоматической раздвижной двери с приводом серии ad-sp.

Датчик ad-34 — устройство комбинированного типа объединяет водном корпусе микроволновый датчик-радар движения и инфракрасную шторку присутствия. Датчик может работать как вместо, так и вместе с парой фотоэлементов безопасности при установке в составе автоматической раздвижной двери с приводом серии ad-sp.

Дизайн
Дизайн заполнения
Наличие двусторонней покраски створок. Заполнeние любого типа толщиной 8, 9 и 24 мм
Наличие двусторонней покраски створок. Заполнeние любого типа толщиной 8, 9 и 24 мм
Стандартные цвета
RAL 9016 (белый)
RAL 9016 (белый)
RAL 9006 (металлик гладкий)
RAL 9006 (металлик гладкий)
RAL 7004 (серый)
RAL 7004 (серый)
RAL 1014 (бежевый)
RAL 1014 (бежевый)
RAL 2004 (оранжевый)
RAL 2004 (оранжевый)
RAL 3020 (красный)
RAL 3020 (красный)
RAL 3005 (бордовый)
RAL 3005 (бордовый)
RAL 6018 (салатовый)
RAL 6018 (салатовый)
RAL 6005 (зеленый)
RAL 6005 (зеленый)
RAL 7016 (антрацит)
RAL 7016 (антрацит)
RAL 5005 (синий)
RAL 5005 (синий)
RAL 8017 (коричнево-красный)
RAL 8017 (коричнево-красный)
RAL 9005 (черный)
RAL 9005 (черный)
RAL 8014 (коричневый)
RAL 8014 (коричневый)
Комплектация
Базовая комплектация
Электродвигатeль (арт. ad-01sp).

Электродвигатeль (арт. ad-01sp).

Контроллер (арт. ad-03sp).

Контроллер (арт. ad-03sp).

Переключатель режимов с дисплеем (арт. ad-08sp).

Переключатель режимов с дисплеем (арт. ad-08sp).

Датчик движения (арт. ad-06, 1 шт.).

Датчик движения (арт. ad-06, 1 шт.).

Комбинированный датчик движения и безопасности (арт. ad-34, 1 шт.).

Комбинированный датчик движения и безопасности (арт. ad-34, 1 шт.).

Натяжной ролик (арт. ad-14sp, 1 шт.).

Натяжной ролик (арт. ad-14sp, 1 шт.).

Комплект кареток (арт. ad-15sp, 4 шт.) в приводе серии ad-sp.

Комплект кареток (арт. ad-15sp, 4 шт.) в приводе серии ad-sp.

* Комплект кареток  (4 шт.) для внешних створок в приводе серии ad-sp-telescope (ad-sp-телескопический).

* Комплект кареток (4 шт.) для внешних створок в приводе серии ad-sp-telescope (ad-sp-телескопический).

* Комплект кареток  (4 шт.) для внутренних створок в приводе серии ad-sp-telescope (ad-sp-телескопический).

* Комплект кареток (4 шт.) для внутренних створок в приводе серии ad-sp-telescope (ad-sp-телескопический).

Комплект боковых крышек короба (арт. ad-16sp, 2 шт.) в серии ad-sp./ * (арт. ad-16sptel, 2 шт.) в серии ad-sp-telescope (ad-sp-телескопический).

Комплект боковых крышек короба (арт. ad-16sp, 2 шт.) в серии ad-sp./ * (арт. ad-16sptel, 2 шт.) в серии ad-sp-telescope (ad-sp-телескопический).

Приводной ремень (арт. ad-17, 11 м).

Приводной ремень (арт. ad-17, 11 м).

Комплект стопоров (арт. ad-19sp, 2 шт.) в приводе серии ad-sp.

Комплект стопоров (арт. ad-19sp, 2 шт.) в приводе серии ad-sp.

* Комплект стопоров (2 шт.) в приводе серии ad-sp-telescope (ad-sp-телескопический).

* Комплект стопоров (2 шт.) в приводе серии ad-sp-telescope (ad-sp-телескопический).

Комплект держателей ремня (арт. ad-20sp, 2 шт.).

Комплект держателей ремня (арт. ad-20sp, 2 шт.).

Нижняя направляющая в пол (арт. tpp-001-32d, 2 шт.).

Нижняя направляющая в пол (арт. tpp-001-32d, 2 шт.).

Короб с крышкой (арт. ahds35 2009, 2011, 2012) для привода серии ad-sp/ * (арт. ahds35 2019-2023) для привода серии ad-sp-telescope (ad-sp-телескопический).

Короб с крышкой (арт. ahds35 2009, 2011, 2012) для привода серии ad-sp/ * (арт. ahds35 2019-2023) для привода серии ad-sp-telescope (ad-sp-телескопический).

Рельс с уплотнителем (арт. ahds35 2010 c ad-29) для привода ad-sp/ * (арт. ahds35 2023 c ad-29tel, 2 шт.) для привода серии ad-sp-telescope (ad-sp-телескопический).

Рельс с уплотнителем (арт. ahds35 2010 c ad-29) для привода ad-sp/ * (арт. ahds35 2023 c ad-29tel, 2 шт.) для привода серии ad-sp-telescope (ad-sp-телескопический).

Профиль под фотоэлемент (арт. ahds35 0213, 2 шт.).

Профиль под фотоэлемент (арт. ahds35 0213, 2 шт.).

Профиль ствoрки вертикальный с вырубкой в торце 30 × 35 мм (арт. ahds35 0106.frez).

Профиль ствoрки вертикальный с вырубкой в торце 30 × 35 мм (арт. ahds35 0106.frez).

Профиль створки горизонтальный 64 × 35 мм (арт. ad-100kit).

Профиль створки горизонтальный 64 × 35 мм (арт. ad-100kit).

Комплект закладных пластин (арт. ad-100kit, 2 комп.).

Комплект закладных пластин (арт. ad-100kit, 2 комп.).

Дополнительная комплектация
Ad-07sp — электромеханический замок для привода серии ad-sp, обеспечивает надeжную защиту от несанкционированного проникновения / * (арт. ad-07sptel) для привода серии ad-sp-telescope (ad-sp-телескопический).

Ad-07sp — электромеханический замок для привода серии ad-sp, обеспечивает надeжную защиту от несанкционированного проникновения / * (арт. ad-07sptel) для привода серии ad-sp-telescope (ad-sp-телескопический).

Ad-27 — аккумулятoрная батарея (емкость 2,0 Аh) обеспечивает бесперебойную работу двери без внешнего питания в течение 15–30 минут (170 циклов).

Ad-27 — аккумулятoрная батарея (емкость 2,0 Аh) обеспечивает бесперебойную работу двери без внешнего питания в течение 15–30 минут (170 циклов).

Ad-30 — беспроводная (локтевая) кнопка серии push (нажми). Используется для ручного контактного управления дверью вместо датчика движения (открывание двери путем нажатия на кнопку).

Ad-30 — беспроводная (локтевая) кнопка серии push (нажми). Используется для ручного контактного управления дверью вместо датчика движения (открывание двери путем нажатия на кнопку).

Ad-31 — бесконтактная инфракрасная кнопка. Используется для ручного бесконтактного управления дверью вместо датчика движения (от 1 до 15 см).

Ad-31 — бесконтактная инфракрасная кнопка. Используется для ручного бесконтактного управления дверью вместо датчика движения (от 1 до 15 см).

Ad-32 — переключатель режимов работы с ключом (5 режимов). Используется вместо переключателя режимов с дисплеем и обеспечивает ограниченный доступ к управлению дверью.

Ad-32 — переключатель режимов работы с ключом (5 режимов). Используется вместо переключателя режимов с дисплеем и обеспечивает ограниченный доступ к управлению дверью.

Ad-34 — комбинированный датчик движения и безопасности. Объединяет в одном корпусе микроволновый датчик-радар движения и инфракрасную шторку безопасности в проеме.

Ad-34 — комбинированный датчик движения и безопасности. Объединяет в одном корпусе микроволновый датчик-радар движения и инфракрасную шторку безопасности в проеме.

Ad-09 — комплект фотоэлементов, обеспечивающий безопасность в проеме двери.

Ad-09 — комплект фотоэлементов, обеспечивающий безопасность в проеме двери.

Техническое описание
Таблица размеров
Параметр
Показатель
Высота проема, мм
2 000–3 000
Ширина проема для двустворчатых дверей, мм
1 200–3 000
Толщина, мм
8–12 (для закаленного стекла)
Притолока, мм
Не менее 125
Конструкция
  1. Профиль cтворки вертикальный
  2. Профиль cтворки горизонтальный
  3. Штапик
  4. Заполнение 8 мм, 9 мм (со штапиком) или 24 мм (без штапика)
  5. Уплотнитель внутренний
  6. Уплотнитель внешний
  7. Уплотнитель центральный
Стандартные конструктивные решения

Одностворчатая дверь (открывание влево).

Одностворчатая дверь (открывание влево).

Усл. обозначение, наименование параметра Расчетная формула
B, мм Ширина проема До 2 500
H, мм Высота проема До 3 000
Двустворчатая дверь.

Двустворчатая дверь.

Усл. обозначение, наименование параметра Расчетная формула
B, мм Ширина проема Дo 3 000
H, мм Высота проема Дo 3 000
Одностворчатая дверь с одной неподвижной створкой (открывание влево).

Одностворчатая дверь с одной неподвижной створкой (открывание влево).

Усл. обозначение, наименование параметра Расчетная формула
B, мм Ширина проема До 5 000
H, мм Высота проема До 3 000
Двустворчатая дверь с двумя неподвижными створками.

Двустворчатая дверь с двумя неподвижными створками.

Усл. обозначение, наименование параметра Расчетная формула
B, мм Ширина проема До 6 000
H, мм Высота проема До 3 000
Одностворчатая дверь с одной неподвижной створкой и фрамугой (открывание вправо).

Одностворчатая дверь с одной неподвижной створкой и фрамугой (открывание вправо).

Усл. обозначение, наименование параметра Расчетная формула
B, мм Ширина проема 1 184–6 200
H, мм Высота проема 2 200–4 000
W, мм Ширина прохода 700–3 000
K, мм Высота прохода 1 800–3 000
Двустворчатая дверь с двумя неподвижными створками и фрамугой.

Двустворчатая дверь с двумя неподвижными створками и фрамугой.

Усл. обозначение, наименование параметра Расчетная формула
B, мм Ширина проема 1 806–6 200
H, мм Высота проема 2 200–4 000
W, мм Ширина прохода 1 000–3 000
K, мм Высота прохода 1 800–3 000
Двустворчатая дверь с двумя цельностеклянными створками.

Двустворчатая дверь с двумя цельностеклянными створками.

Усл. обозначение, наименование параметра Расчетная формула
B, мм Ширина проема До 3 000
H, мм Высота проема До 3 000
Технические характеристики
Параметр Значение Примечание
Толщина профилей, мм 35
Толщина заполнения, мм 8–12 Цельностеклянная створка
Максимальная высота, м 3
Максимальный вес створки, кг. 100
Двигатель, В 24
Мощность, Вт 100
Напряжение питания, В 220
Диапазон рабочих температур, °С -20…+70
Интенсивность использования, % 100 Для интенсивного прохода, круглосуточно
Условия эксплуатации продукции

1. Строго запрещено устанавливать короб двери с электроприводом с внешней стороны помещения, со стороны улицы.

2. Ручное открывание и закрывание створок двери производится только в аварийном случае (при отсутствии электроэнергии) или в ходе отладочных работ.

3. При открывании и закрывании створок двери вручную не прилагайте больших усилий. Запрещаеся открывать створки двери резкими толчками.

4. Следите за тем, чтобы дети и животные не находились длительное время в зоне открывания/закрывания створок двери.

5. Строго запрещено пытаться руками раздвигать заблокированные двери, засовывать пальцы или посторонние предметы в зазоры между движущейся створкой и полом, так как это может привести к травмам.

6. Не подвергайте створки ударам при проходе и не пытайтесь препятствовать их открыванию или закрыванию. Запрещается бежать или стоять в зоне движения створок двери.

7. Следите за тем, чтобы во время движения створок, на их пути отсутствовали посторонние предметы и мусор: их наличие может привести к перекосу створок двери, их заклиниванию и выходу из строя автоматики двери.

8. Не подвергайте загрязнению направляющие в пол и ролики кареток, так как это может привести к нарушению плавности хода створок, их подклиниванию и выходу из строя электропривода.

9. Створки автоматической двери должны плавно передвигаться вдоль проема двери по направляющему рельсу в цикле открывания/закрывания двери с обязательным торможением при достижении створками полностью открытого или закрытого положения.

10. Строго запрещена эксплуатация двери без установки элементов безопасности в проем двери в виде фотоэлементов или ИК-шторки.

Упаковка
Упаковка в картон Характеристики упаковки
Дeрeвянный поддон с пенопластовыми блоками снизу. Профили обернуты гофрокартонным листом и зафиксированы ПП‑лентой
Упаковка в пузырчатую пленку Характеристики упаковки
Упаковка представляет собой профили, обернутые пузырчатой пленкой и зафиксированные скотчем с логотипом. Масса одной упаковки профилей не превышает 35 кг
Упаковка на палету Характеристики упаковки
Пачки профилей, упакованные в пузырчатую пленку, укладывают в палету из пенопластового обрамления и фиксируют скотчем
Дополнительное описание

Раздвижныe двери можно устанавливать как отдельно, так и интегрировать в фасад здания или входную группу.

Установка
Способы монтажа
Монтаж короба автоматической двери в проем.
Монтаж короба автоматической двери в проем.
Монтаж короба телескопической двери в проем.
Монтаж короба телескопической двери в проем.
Подготовка строительного объекта
  1. Параметры проема:
    Н — высота проема (расстояние от чистого пола до верха проема);
    В — ширина проема (расстояние от левого края до правого края проема);
    h — высота притолоки (расстояние от верха проема до потолка).
    Замер притолоки, проема по ширине и высоте выполняется минимум в двух местах. За итоговый размер всегда принимается наименьшая величина.
  2. Для кaчественного монтажа конструкции и для ее надежного функционирования в дальнейшем, необходимо осуществить подготовку проема помещения. Существуют определенные требования к чистоте проема:
    Проем должен иметь прямоугольную форму.
    Поверхность плоскостей обрамления должна быть ровной и гладкой, без наплывов штукатурного раствора и трещин.
    Поверхность пола должна быть ровной, горизонтальной, без выступов и впадин. Предусмотрено отклонение до 1 мм на 1 м.
    Вертикальная и горизонтальная поверхности должны быть ровными с отклонением до 1 мм на 1 м.
    Если проемы подготовлены с отклонениями от изложенных требований, то перед снятием размеров и началом монтажа необходимо устранить данные отклонения.
    Притолока и боковые пристенки должны быть в одной плоскости.
    Обрамление проема должно быть в виде капитальной конструкции, сварной трубы, фасадного профиля или витража.
Гарантийные обязательства

Покупателю предоставляется гарантия на комплектацию системы на 2 года с момента отгрузки при соблюдении условий эксплуатации.

Документация
Инструкции

Инструкция «Автоматическая раздвижная дверь с приводом серии ad-sp»

Инструкция «Телескопическая дверь с приводом серии ad-sp-telescope (ad-sp-телескопический)»

Инструкция по сборке облегченных створок автоматических/телескопических дверей

Инструкция по сборке створок «антипаника» (с функцией распахивания) автоматических дверей

Инструкция по сборке конструкций с фрамугой и автоматической дверью

Инструкция по настройке комбинированного датчика движения и безопасности серии ad-34

Требования к подготовке проема и монтажу

Паспорта и сертификаты

Декларация соответствия на приводы для автоматических дверей

Декларация соответствия на автоматические двери

Паспорт автоматическая раздвижная дверь / привод серии ad-sp / серии ad-sp-telescope (ad-sp-телескопический)

Сертификат соответствия на алюминиевый профиль

Протокол на циклические испытания привода серии ad-sp

Протокол на циклические испытания привода серии ad-sp-telescope (ad-sp-телескопический)

Чертежи

Каталог профилей и комплектующих базовой створки (архив)

Каталог профилей и комплектующих для автоматической двери с лайтстворками

Каталог профилей и комплектующих для телескопической двери с лайтстворками

Каталог профилей и комплектующих для автоматической двери «антипаника»

Оформить заказ
Менеджеры компании ответят на все
вопросы по телефону: