Catalog

AD-SP привод uchun avtomatik yuvilib ochiladigan eshik komplekti (ikki harakatlanuvchi butun shishadan yasalgan panellar)

Avtomatik yuvilib ochiladigan eshik turli tijorat obyektlarining kirish guruhlari bo'ylab, odamlar oqimi yuqori bo'lgan joylarga o'rnatish uchun mo'ljallangan, masalan, savdo-ko'ngilochar va biznes markazlari, restoranlar, ombor va ishlab chiqarish komplekslari, tibbiyot muassasalari, ijtimoiy va maishiy xizmatlar binolari.
Qo'llanilish sohasi:
Savdo va biznes markazlari
Xususiy sektor
Afzalliklar
Funksionallik
Mahsulotni olti rejimda ishlatish imkoni odamlar o'tishi uchun har qanday vazifani hal qilishga imkon beradi.
Panellarning to'ldirish turli xil
Panellarni xavfsiz shisha (8 yoki 9 mm qalinlikda) yoki 24 mm li shishali paket bilan to'ldirish imkoniyati.
Oson yig'ish
Noyob qotirma birikma panellarni yig‘ish va mahsulotni umuman o‘rnatish vaqtini sezilarli darajada qisqartirishga, shuningdek, yorug‘lik o‘tishini oshirishga imkon beradi.
Konstruktsiyalar va mahsulotlar sinflarining xilma-xilligi
Ushbu afzallik har qanday ochilish uchun optimal konstruktsiyani tanlash imkonini beradi: yuqori ramka va devor yelkalari bo‘lmaganda, yelka kengligi cheklangan (yoki yetarli bo‘lmagan) hollarda, shuningdek, xonadan boshqa chiqish yo‘llari mavjud bo‘lmaganda.
Jozibador narx
Metall sarfini kamaytirish va profil tizimi konstruktsiyasini optimallashtirish hisobiga mahsulot jo‘zibador narxga ega.
Funksionallik
Mahsulotni olti rejimda ishlatish imkoni odamlar o'tishi uchun har qanday vazifani hal qilishga imkon beradi.
Panellarning to'ldirish turli xil
Panellarni xavfsiz shisha (8 yoki 9 mm qalinlikda) yoki 24 mm li shishali paket bilan to'ldirish imkoniyati.
Oson yig'ish
Noyob qotirma birikma panellarni yig‘ish va mahsulotni umuman o‘rnatish vaqtini sezilarli darajada qisqartirishga, shuningdek, yorug‘lik o‘tishini oshirishga imkon beradi.
Konstruktsiyalar va mahsulotlar sinflarining xilma-xilligi
Ushbu afzallik har qanday ochilish uchun optimal konstruktsiyani tanlash imkonini beradi: yuqori ramka va devor yelkalari bo‘lmaganda, yelka kengligi cheklangan (yoki yetarli bo‘lmagan) hollarda, shuningdek, xonadan boshqa chiqish yo‘llari mavjud bo‘lmaganda.
Jozibador narx
Metall sarfini kamaytirish va profil tizimi konstruktsiyasini optimallashtirish hisobiga mahsulot jo‘zibador narxga ega.
Dizayn
To‘ldirish dizayni
Standart ranglar
Panellarni ikki tomonlama bo‘yash mavjudligi. Har xil turdagi to‘ldirish, qalinligi 8, 9 va 24 mm
Panellarni ikki tomonlama bo‘yash mavjudligi. Har xil turdagi to‘ldirish, qalinligi 8, 9 va 24 mm
RAL 9016 (oq)
RAL 9016 (oq)
RAL 9006 (silliq metall)
RAL 9006 (silliq metall)
RAL 7004 (kulrang)
RAL 7004 (kulrang)
RAL 1014 (bej)
RAL 1014 (bej)
RAL 2004 (to'q sariq)
RAL 2004 (to'q sariq)
RAL 3020 (qizil)
RAL 3020 (qizil)
RAL 3005 (bordo)
RAL 3005 (bordo)
RAL 6018 (ochiq yashil)
RAL 6018 (ochiq yashil)
RAL 6005 (yashil)
RAL 6005 (yashil)
RAL 7016 (antratsit)
RAL 7016 (antratsit)
RAL 5005 (ko'k)
RAL 5005 (ko'k)
RAL 8017 (jigarrang-qizil)
RAL 8017 (jigarrang-qizil)
RAL 9005 (qora)
RAL 9005 (qora)
RAL 8014 (jigarrang)
RAL 8014 (jigarrang)
Komplektatsiya
Bazaviy to'plam
Qo'shimcha to'plam
Elektr dvigateli (art. AD-01SP)

Elektr dvigateli (art. AD-01SP)

Kontroller (art. AD-03SP)

Kontroller (art. AD-03SP)

Rejimlarni o'zgartirish tugmasi bilan displey (art. AD-08SP)

Rejimlarni o'zgartirish tugmasi bilan displey (art. AD-08SP)

Harakat sensori (art. AD-06, 1 dona)

Harakat sensori (art. AD-06, 1 dona)

Kompleks harakat va xavfsizlik sensori (art. AD-34, 1 dona)

Kompleks harakat va xavfsizlik sensori (art. AD-34, 1 dona)

Tortish roliki (art. AD-14SP, 1 dona)

Tortish roliki (art. AD-14SP, 1 dona)

Karetka komplekti (art. AD-15SP, 4 dona) AD-SP privozida

Karetka komplekti (art. AD-15SP, 4 dona) AD-SP privozida

* Karetka komplekti (4 dona) tashqi panellar uchun AD-SP-TELESCOPE privozida

* Karetka komplekti (4 dona) tashqi panellar uchun AD-SP-TELESCOPE privozida

* Karetka komplekti (4 dona) ichki panellar uchun AD-SP-TELESCOPE privozida

* Karetka komplekti (4 dona) ichki panellar uchun AD-SP-TELESCOPE privozida

Yon qoplamalar komplekti (art. AD-16SP, 2 dona) AD-SP/ (art. AD-16SPTel, 2 dona) AD-SP-TELESCOPE privozida

Yon qoplamalar komplekti (art. AD-16SP, 2 dona) AD-SP/ (art. AD-16SPTel, 2 dona) AD-SP-TELESCOPE privozida

Drayv kamar (art. AD-17, 11 m)

Drayv kamar (art. AD-17, 11 m)

To'xtatish mexanizmlari komplekti (art. AD-19SP, 2 dona) AD-SP privozida

To'xtatish mexanizmlari komplekti (art. AD-19SP, 2 dona) AD-SP privozida

* To'xtatish mexanizmlari komplekti (2 dona) AD-SP-TELESCOPE privozida

* To'xtatish mexanizmlari komplekti (2 dona) AD-SP-TELESCOPE privozida

Kamar tutqichlari komplekti (art. AD-20SP, 2 dona)

Kamar tutqichlari komplekti (art. AD-20SP, 2 dona)

Pastki yo'naltiruvchi (art. TPP-001-32D, 2 dona)

Pastki yo'naltiruvchi (art. TPP-001-32D, 2 dona)

Korpus qopqoq bilan (art. AHDS35 2009, 2011, 2012) AD-SP privozi uchun / (art. AHDS35 2019-2023) AD-SP-TELESCOPE privozi uchun

Korpus qopqoq bilan (art. AHDS35 2009, 2011, 2012) AD-SP privozi uchun / (art. AHDS35 2019-2023) AD-SP-TELESCOPE privozi uchun

Rel's bilan siqgich (art. AHDS35 2010 c AD-29) AD-SP privozi uchun / (art. AHDS35 2023 c AD-29TEL, 2 dona) AD-SP-TELESCOPE privozi uchun

Rel's bilan siqgich (art. AHDS35 2010 c AD-29) AD-SP privozi uchun / (art. AHDS35 2023 c AD-29TEL, 2 dona) AD-SP-TELESCOPE privozi uchun

Fotoelement uchun profil (art. AHDS35 0213, 2 dona)

Fotoelement uchun profil (art. AHDS35 0213, 2 dona)

Vertikal panelli profil, uchida kesilgan 30 × 35 mm (art. AHDS35 0106.FREZ)

Vertikal panelli profil, uchida kesilgan 30 × 35 mm (art. AHDS35 0106.FREZ)

Gorizontal panelli profil 64 × 35 mm (art. AHDS35 0108)

Gorizontal panelli profil 64 × 35 mm (art. AHDS35 0108)

Qismlar uchun qo'shimcha plastinka komplekti (art. AD-100KIT, 2 komplekt)

Qismlar uchun qo'shimcha plastinka komplekti (art. AD-100KIT, 2 komplekt)

AD-07SP — elektr mexanik qulfi AD-SP privozi uchun, ruxsatsiz kirishdan ishonchli himoya qiladi / (art. AD-07SPTEL) AD-SP-TELESCOPE privozi uchun

AD-07SP — elektr mexanik qulfi AD-SP privozi uchun, ruxsatsiz kirishdan ishonchli himoya qiladi / (art. AD-07SPTEL) AD-SP-TELESCOPE privozi uchun

AD-27 — akkumulyator batareyasi (sig'imi 2,0 Ah), eshikka tashqi elektr ta'minotisiz 15–30 daqiqa (170 tsikl) davomida uzluksiz ishlashni ta'minlaydi

AD-27 — akkumulyator batareyasi (sig'imi 2,0 Ah), eshikka tashqi elektr ta'minotisiz 15–30 daqiqa (170 tsikl) davomida uzluksiz ishlashni ta'minlaydi

AD-30 — simsiz (lokat) PUSH tugmasi. Harakat sensori o'rniga eshikni qo'lda kontakt orqali boshqarish uchun ishlatiladi (tugmaga bosish orqali eshikni ochish)

AD-30 — simsiz (lokat) PUSH tugmasi. Harakat sensori o'rniga eshikni qo'lda kontakt orqali boshqarish uchun ishlatiladi (tugmaga bosish orqali eshikni ochish)

AD-31 — bexavfsiz infraqizil tugma. Harakat sensori o'rniga eshikni qo'lda bexavfsiz boshqarish uchun ishlatiladi (1 dan 15 sm gacha)

AD-31 — bexavfsiz infraqizil tugma. Harakat sensori o'rniga eshikni qo'lda bexavfsiz boshqarish uchun ishlatiladi (1 dan 15 sm gacha)

AD-32 — rejimlarni o'zgartirish tugmasi kalit bilan (5 ta rejim). Displeyli rejim o'zgartirish tugmasi o'rniga ishlatiladi va eshikni boshqarish uchun cheklangan kirish huquqini ta'minlaydi

AD-32 — rejimlarni o'zgartirish tugmasi kalit bilan (5 ta rejim). Displeyli rejim o'zgartirish tugmasi o'rniga ishlatiladi va eshikni boshqarish uchun cheklangan kirish huquqini ta'minlaydi

AD-34 — harakat va xavfsizlik uchun mo‘ljallangan kombinatsiyalashgan datchik. Ushbu qurilma bitta korpusda harakatni aniqlovchi mikroto‘lqinli radar datchigi hamda o‘tish joyida xavfsizlikni ta’minlovchi infraqizil pardali sensorni birlashtiradi

AD-34 — harakat va xavfsizlik uchun mo‘ljallangan kombinatsiyalashgan datchik. Ushbu qurilma bitta korpusda harakatni aniqlovchi mikroto‘lqinli radar datchigi hamda o‘tish joyida xavfsizlikni ta’minlovchi infraqizil pardali sensorni birlashtiradi

AD-09 — eshik o‘tish joyida xavfsizlikni ta’minlaydigan fotoelementlar to‘plami

AD-09 — eshik o‘tish joyida xavfsizlikni ta’minlaydigan fotoelementlar to‘plami

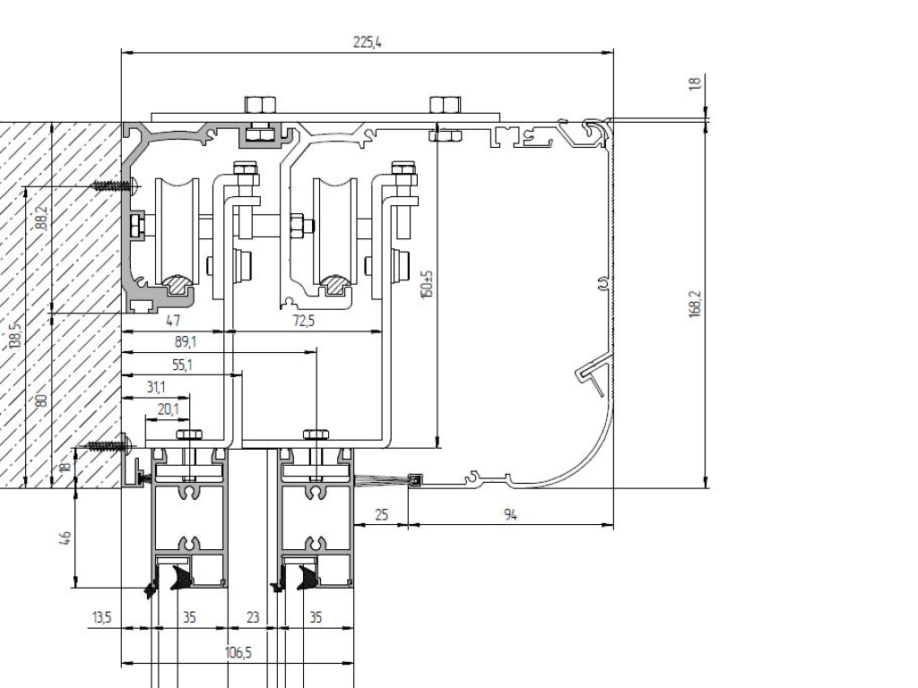
Texnik tavsif
O'lchamlar jadvali
Konstruktsiya
Standart konstruktiv yechimlar
Texnik xususiyatlar
Mahsulotni ishlatish shartlari
Qadoqlash
Параметр
Показатель
Высота проема, мм
2 000–3 000
Ширина проема для двустворчатых дверей, мм
1 200–3 000
Толщина, мм
8–12 (temirlangan shisha uchun)
Притолока, мм
125 dan kam emas
  1. Vertikal panel profili
  2. Gorizontal panel profili
  3. Shtapik
  4. To‘ldirish 8 mm, 9 mm (shtapik bilan) yoki 24 mm (shtapiksiz)
  5. Ichki siqgich
  6. Tashqi siqgich
  7. Markaziy siqgich

Bitta panelli eshik (chapga ochiladigan)

Bitta panelli eshik (chapga ochiladigan)

Усл. обозначение, наименование параметра Расчетная формула
B, мм Ширина проема 2500 gacha
H, мм Высота проема 3000 gacha
Ikki panelli eshik

Ikki panelli eshik

Усл. обозначение, наименование параметра Расчетная формула
B, мм Ширина проема 3000 gacha
H, мм Высота проема 3000 gacha
Bitta panelli eshik, bir harakatlanmaydigan panel bilan (chapga ochiladigan)

Bitta panelli eshik, bir harakatlanmaydigan panel bilan (chapga ochiladigan)

Усл. обозначение, наименование параметра Расчетная формула
B, мм Ширина проема 5000 gacha
H, мм Высота проема 3000 gacha
Ikki panelli eshik, ikki harakatlanmaydigan panel bilan

Ikki panelli eshik, ikki harakatlanmaydigan panel bilan

Усл. обозначение, наименование параметра Расчетная формула
B, мм Ширина проема 6000 gacha
H, мм Высота проема 3000 gacha
Bitta panelli eshik, bir harakatlanmaydigan panel va framuga bilan (o‘ngga ochiladigan)

Bitta panelli eshik, bir harakatlanmaydigan panel va framuga bilan (o‘ngga ochiladigan)

Усл. обозначение, наименование параметра Расчетная формула
B, мм Ширина проема 1184 dan 6200 gacha
H, мм Высота проема 2200 dan 4000 gacha
W, мм Ширина прохода 700 dan 3000 gacha
K, мм Высота прохода 1800 dan 3000 gacha
Ikki panelli eshik, ikki harakatlanmaydigan panel va framuga bilan

Ikki panelli eshik, ikki harakatlanmaydigan panel va framuga bilan

Усл. обозначение, наименование параметра Расчетная формула
B, мм Ширина проема 1 806 dan 6 200 gacha
H, мм Высота проема 2 200 dan 4 000 gacha
W, мм Ширина прохода 1 000 dan 3 000 gacha
K, мм Высота прохода 1 800 dan 3 000 gacha
Ikki panelli eshik, ikki butun shishadan yasalgan panelli

Ikki panelli eshik, ikki butun shishadan yasalgan panelli

Усл. обозначение, наименование параметра Расчетная формула
B, мм Ширина проема 3 000 gacha
H, мм Высота проема 3 000 gacha
Параметр Значение Примечание
Толщина профилей, мм 35
Толщина заполнения, мм 8–12 Butun shishali eshik qanoti
Максимальная высота, м 3
Максимальный вес створки, кг. 100
Двигатель, В 24
Мощность, Вт 100
Напряжение питания, В 220
Диапазон рабочих температур, °С -20…+70
Интенсивность использования, % 100 Doimiy va intensiv harakatlanish uchun, kunu-tun ishlash rejimida

1. Elektr haydovchi qurilmasi o‘rnatilgan eshik korpusini bino tashqarisiga, ko‘cha tomoniga o‘rnatish qat’iyan taqiqlanadi.

2. Eshik qanotlarini qo‘lda ochish va yopish faqat favqulodda holatlarda (elektr ta’minoti bo‘lmaganida) yoki sozlash ishlari davomida amalga oshiriladi.

3. Eshik qanotlarini qo‘lda ochish yoki yopish chog‘ida ortiqcha kuch ishlatmang. Qanotlarni keskin harakatlar bilan ochish qat’iyan man etiladi.

4. Bolalar va hayvonlar eshik qanotlarining ochilish/yopilish zonasida uzoq vaqt bo‘lishiga yo‘l qo‘ymang.

5. Bloklangan eshiklarni qo‘l bilan majburan ochishga, barmoqlar yoki begona buyumlarni harakatlanuvchi qanot bilan pol orasidagi bo‘shliqlarga tiqishga qat’iyan yo‘l qo‘yilmaydi — bu jarohatlarga olib kelishi mumkin.

6. Eshik qanotlarini o‘tkazishda ularga zarba bermang va ularning ochilish yoki yopilishiga to‘sqinlik qilmang. Eshik qanotlari harakatlanadigan zonada yugurish yoki turib qolish taqiqlanadi.

7. Eshik qanotlari harakatlanayotgan paytda ularning yo‘lida begona buyumlar va axlat bo‘lmasligiga e’tibor bering: bunday buyumlar qanotlarning egilishiga, ularning tiqilib qolishiga va eshik avtomatikasining ishlamay qolishiga olib kelishi mumkin.

8. Polga o‘rnatilgan yo‘riqchilarni va roliklarni ifloslantirmang, chunki bu eshik qanotlarining silliq harakatlanishini buzishi, ularning tiqilib qolishiga va elektr haydovchining ishlamay qolishiga olib kelishi mumkin.

9. Avtomatik eshik qanotlari eshik o‘tish joyi bo‘ylab yo‘riqchidan silliq harakatlanishi, eshikni ochish/yopish tsikli davomida qanotlar to‘liq ochiq yoki yopiq holatga yetganda majburiy to‘xtash bilan amalga oshirilishi kerak.

10. Eshikni xavfsizlik elementlari, ya'ni fotoelementlar yoki IR-parda o‘rnatilmagan holda ishlatish qat’iyan taqiqlanadi.

Упаковка в картон Характеристики упаковки
araxtdan yasalgan palet, pastki qismida polistirol bloklar bilan. Profil g‘ofrokarton varaqasi bilan o‘ralgan va PP lenta bilan mustahkamlangan
Упаковка в пузырчатую пленку Характеристики упаковки
Qadoqlash — bu profilning pufakli plyonka bilan o‘ralib, logotipli skotch bilan mustahkamlangan holati. Bitta profil qadoqlanishining og‘irligi 35 kg dan ortiq emas
Упаковка на палету Характеристики упаковки
Pufakli plyonkaga o‘ralgan profil to‘plamlari polistirol ramkadan yasalgan paletaga joylashtiriladi va skotch bilan mustahkamlanadi
Qo‘shimcha tavsif chop etish

Yuvish eshiklarini alohida o‘rnatish mumkin, shuningdek, binoning fasadiga yoki kirish guruhiga integratsiya qilish mumkin.

O'rnatish
Montaj usullari
Bino qurilishi uchun tayyorgarlik
Avtomatik eshik korpusini ochilishga o‘rnatish
Avtomatik eshik korpusini ochilishga o‘rnatish
Teleskopik eshik korpusini ochilishga o‘rnatish
Teleskopik eshik korpusini ochilishga o‘rnatish
  1. Ochilish parametrlarini o'lchash: N — ochilish balandligi (toza poldan ochilish yuqorisigacha bo'lgan masofa); B — ochilish kengligi (chap chekkadan o'ng chekkagacha bo'lgan masofa); h — yuqori ramka balandligi (ochilish yuqorisidan shiftgacha bo'lgan masofa). Yuqori ramka, ochilish kengligi va balandligini o'lchash kamida ikki joyda amalga oshiriladi. Yakuniy o'lchov sifatida har doim eng kichik qiymat qabul qilinadi.
  2. Konstruktsiyani sifatli o'rnatish va uning ishonchli ishlashini ta'minlash uchun, xonani ochilish uchun tayyorlash zarur. Ochilishning tozaligi uchun ma'lum talablar mavjud: Ochilish to'g'ri to'rtburchak shaklida bo'lishi kerak. Ramka yuzasi tekis va silliq bo'lishi, gips aralashmasining ortiqcha qatlamlari va yoriqlarsiz bo'lishi kerak. Pol yuzasi tekis, gorizontal, chiqindilar va chuqurliksiz bo'lishi kerak. 1 m uzunlikda 1 mm gacha og'ishlarga ruxsat etiladi. Vertikal va gorizontal yuzalar tekis bo'lishi kerak, og'ish 1 m uzunlikda 1 mm gacha bo'lishi mumkin. Agar ochilishlar yuqoridagi talablar bo'yicha tayyorlanmagan bo'lsa, o'lchovlarni olish va montajni boshlashdan oldin bu og'ishlarni bartaraf etish zarur. Yuqori ramka va yon devor yelkalari bir tekislikda bo'lishi kerak. Ochilish ramkasi mustahkam konstruktsiya, payvandlangan truba, fasad profili yoki vitraj ko'rinishida bo'lishi kerak.
Hujjatlar
Ko'rsatmalar
Pasportlar va sertifikatlar
Chizmalar

«Avtomatik yuvish eshigi AD-SP haydovchisi bilan» ko‘rsatmalar

«Teleskopik eshik AD-SP-TELESCOPE haydovchisi bilan» ko‘rsatmalar

Avtomatik/teleskopik eshiklarning yengil qanotlarini yig‘ish bo‘yicha ko‘rsatmalar

«Antipanika» qanotlarini yig‘ish bo‘yicha ko‘rsatmalar (ochilish funksiyasi bilan) avtomatik eshiklar

Framuga va avtomatik eshik bilan konstruksiyalarni yig‘ish bo‘yicha ko‘rsatmalar

AD-34 kombinatsiyalashgan harakat va xavfsizlik datchig‘ini sozlash bo‘yicha ko‘rsatmalar

O‘tish joyini tayyorlash va o‘rnatish talablari

Avtomatik yuvish eshigi / haydovchi AD-SP / AD-SP-TELESCOPE pasporti

Aluminiy profiliga moslik sertifikati

Avtomatik eshiklar uchun haydovchilar bo‘yicha moslik deklaratsiyasi

Asosiy qanot profillari va komplektatsiyalarining katalogi (arxiv)

Avtomatik eshiklar uchun profillar va komplektatsiyalar katalogi, yengil qanotlar bilan

Teleskopik eshiklar uchun profillar va komplektatsiyalar katalogi, yengil qanotlar bilan

Avtomatik eshik «antipanika» uchun profillar va komplektatsiyalar katalogi

Kafolat majburiyatlari chop etish

Mijozga tizimni to‘liq komplektatsiyasi bo‘yicha 2 yil kafolat beriladi, agar ekspluatatsiya shartlari bajarilgan bo‘lsa, yuklash vaqtidan boshlab.

Yangi mahsulotlar
Simsiz (barmoq) tugma AD-30 qo‘lda ochish boshqaruvi uchun ishlatiladi va u nafaqat toza xonalarda (operatsion va laboratoriya bloklari), balki ofis va savdo joylarida ham qo‘llaniladi.

Simsiz (barmoq) tugma AD-30 qo‘lda ochish boshqaruvi uchun ishlatiladi va u nafaqat toza xonalarda (operatsion va laboratoriya bloklari), balki ofis va savdo joylarida ham qo‘llaniladi.

AD-34 datchigi — kombinatsiyalashgan turdagi qurilma bo‘lib, bitta korpusda mikroto‘lqinli harakatni aniqlovchi radar va infraqizil mavjudlik pardasini birlashtiradi. Datchik avtomatik yuvish eshigi AD-SP haydovchisi bilan o‘rnatilganda xavfsizlik fotoelementlarining juftligi bilan birgalikda yoki ularning o‘rniga ishlashi mumkin.

AD-34 datchigi — kombinatsiyalashgan turdagi qurilma bo‘lib, bitta korpusda mikroto‘lqinli harakatni aniqlovchi radar va infraqizil mavjudlik pardasini birlashtiradi. Datchik avtomatik yuvish eshigi AD-SP haydovchisi bilan o‘rnatilganda xavfsizlik fotoelementlarining juftligi bilan birgalikda yoki ularning o‘rniga ishlashi mumkin.

Dizayn
To‘ldirish dizayni
Panellarni ikki tomonlama bo‘yash mavjudligi. Har xil turdagi to‘ldirish, qalinligi 8, 9 va 24 mm
Panellarni ikki tomonlama bo‘yash mavjudligi. Har xil turdagi to‘ldirish, qalinligi 8, 9 va 24 mm
Standart ranglar
RAL 9016 (oq)
RAL 9016 (oq)
RAL 9006 (silliq metall)
RAL 9006 (silliq metall)
RAL 7004 (kulrang)
RAL 7004 (kulrang)
RAL 1014 (bej)
RAL 1014 (bej)
RAL 2004 (to'q sariq)
RAL 2004 (to'q sariq)
RAL 3020 (qizil)
RAL 3020 (qizil)
RAL 3005 (bordo)
RAL 3005 (bordo)
RAL 6018 (ochiq yashil)
RAL 6018 (ochiq yashil)
RAL 6005 (yashil)
RAL 6005 (yashil)
RAL 7016 (antratsit)
RAL 7016 (antratsit)
RAL 5005 (ko'k)
RAL 5005 (ko'k)
RAL 8017 (jigarrang-qizil)
RAL 8017 (jigarrang-qizil)
RAL 9005 (qora)
RAL 9005 (qora)
RAL 8014 (jigarrang)
RAL 8014 (jigarrang)
Komplektatsiya
Bazaviy to'plam
Elektr dvigateli (art. AD-01SP)

Elektr dvigateli (art. AD-01SP)

Kontroller (art. AD-03SP)

Kontroller (art. AD-03SP)

Rejimlarni o'zgartirish tugmasi bilan displey (art. AD-08SP)

Rejimlarni o'zgartirish tugmasi bilan displey (art. AD-08SP)

Harakat sensori (art. AD-06, 1 dona)

Harakat sensori (art. AD-06, 1 dona)

Kompleks harakat va xavfsizlik sensori (art. AD-34, 1 dona)

Kompleks harakat va xavfsizlik sensori (art. AD-34, 1 dona)

Tortish roliki (art. AD-14SP, 1 dona)

Tortish roliki (art. AD-14SP, 1 dona)

Karetka komplekti (art. AD-15SP, 4 dona) AD-SP privozida

Karetka komplekti (art. AD-15SP, 4 dona) AD-SP privozida

* Karetka komplekti (4 dona) tashqi panellar uchun AD-SP-TELESCOPE privozida

* Karetka komplekti (4 dona) tashqi panellar uchun AD-SP-TELESCOPE privozida

* Karetka komplekti (4 dona) ichki panellar uchun AD-SP-TELESCOPE privozida

* Karetka komplekti (4 dona) ichki panellar uchun AD-SP-TELESCOPE privozida

Yon qoplamalar komplekti (art. AD-16SP, 2 dona) AD-SP/ (art. AD-16SPTel, 2 dona) AD-SP-TELESCOPE privozida

Yon qoplamalar komplekti (art. AD-16SP, 2 dona) AD-SP/ (art. AD-16SPTel, 2 dona) AD-SP-TELESCOPE privozida

Drayv kamar (art. AD-17, 11 m)

Drayv kamar (art. AD-17, 11 m)

To'xtatish mexanizmlari komplekti (art. AD-19SP, 2 dona) AD-SP privozida

To'xtatish mexanizmlari komplekti (art. AD-19SP, 2 dona) AD-SP privozida

* To'xtatish mexanizmlari komplekti (2 dona) AD-SP-TELESCOPE privozida

* To'xtatish mexanizmlari komplekti (2 dona) AD-SP-TELESCOPE privozida

Kamar tutqichlari komplekti (art. AD-20SP, 2 dona)

Kamar tutqichlari komplekti (art. AD-20SP, 2 dona)

Pastki yo'naltiruvchi (art. TPP-001-32D, 2 dona)

Pastki yo'naltiruvchi (art. TPP-001-32D, 2 dona)

Korpus qopqoq bilan (art. AHDS35 2009, 2011, 2012) AD-SP privozi uchun / (art. AHDS35 2019-2023) AD-SP-TELESCOPE privozi uchun

Korpus qopqoq bilan (art. AHDS35 2009, 2011, 2012) AD-SP privozi uchun / (art. AHDS35 2019-2023) AD-SP-TELESCOPE privozi uchun

Rel's bilan siqgich (art. AHDS35 2010 c AD-29) AD-SP privozi uchun / (art. AHDS35 2023 c AD-29TEL, 2 dona) AD-SP-TELESCOPE privozi uchun

Rel's bilan siqgich (art. AHDS35 2010 c AD-29) AD-SP privozi uchun / (art. AHDS35 2023 c AD-29TEL, 2 dona) AD-SP-TELESCOPE privozi uchun

Fotoelement uchun profil (art. AHDS35 0213, 2 dona)

Fotoelement uchun profil (art. AHDS35 0213, 2 dona)

Vertikal panelli profil, uchida kesilgan 30 × 35 mm (art. AHDS35 0106.FREZ)

Vertikal panelli profil, uchida kesilgan 30 × 35 mm (art. AHDS35 0106.FREZ)

Gorizontal panelli profil 64 × 35 mm (art. AHDS35 0108)

Gorizontal panelli profil 64 × 35 mm (art. AHDS35 0108)

Qismlar uchun qo'shimcha plastinka komplekti (art. AD-100KIT, 2 komplekt)

Qismlar uchun qo'shimcha plastinka komplekti (art. AD-100KIT, 2 komplekt)

Qo'shimcha to'plam
AD-07SP — elektr mexanik qulfi AD-SP privozi uchun, ruxsatsiz kirishdan ishonchli himoya qiladi / (art. AD-07SPTEL) AD-SP-TELESCOPE privozi uchun

AD-07SP — elektr mexanik qulfi AD-SP privozi uchun, ruxsatsiz kirishdan ishonchli himoya qiladi / (art. AD-07SPTEL) AD-SP-TELESCOPE privozi uchun

AD-27 — akkumulyator batareyasi (sig'imi 2,0 Ah), eshikka tashqi elektr ta'minotisiz 15–30 daqiqa (170 tsikl) davomida uzluksiz ishlashni ta'minlaydi

AD-27 — akkumulyator batareyasi (sig'imi 2,0 Ah), eshikka tashqi elektr ta'minotisiz 15–30 daqiqa (170 tsikl) davomida uzluksiz ishlashni ta'minlaydi

AD-30 — simsiz (lokat) PUSH tugmasi. Harakat sensori o'rniga eshikni qo'lda kontakt orqali boshqarish uchun ishlatiladi (tugmaga bosish orqali eshikni ochish)

AD-30 — simsiz (lokat) PUSH tugmasi. Harakat sensori o'rniga eshikni qo'lda kontakt orqali boshqarish uchun ishlatiladi (tugmaga bosish orqali eshikni ochish)

AD-31 — bexavfsiz infraqizil tugma. Harakat sensori o'rniga eshikni qo'lda bexavfsiz boshqarish uchun ishlatiladi (1 dan 15 sm gacha)

AD-31 — bexavfsiz infraqizil tugma. Harakat sensori o'rniga eshikni qo'lda bexavfsiz boshqarish uchun ishlatiladi (1 dan 15 sm gacha)

AD-32 — rejimlarni o'zgartirish tugmasi kalit bilan (5 ta rejim). Displeyli rejim o'zgartirish tugmasi o'rniga ishlatiladi va eshikni boshqarish uchun cheklangan kirish huquqini ta'minlaydi

AD-32 — rejimlarni o'zgartirish tugmasi kalit bilan (5 ta rejim). Displeyli rejim o'zgartirish tugmasi o'rniga ishlatiladi va eshikni boshqarish uchun cheklangan kirish huquqini ta'minlaydi

AD-34 — harakat va xavfsizlik uchun mo‘ljallangan kombinatsiyalashgan datchik. Ushbu qurilma bitta korpusda harakatni aniqlovchi mikroto‘lqinli radar datchigi hamda o‘tish joyida xavfsizlikni ta’minlovchi infraqizil pardali sensorni birlashtiradi

AD-34 — harakat va xavfsizlik uchun mo‘ljallangan kombinatsiyalashgan datchik. Ushbu qurilma bitta korpusda harakatni aniqlovchi mikroto‘lqinli radar datchigi hamda o‘tish joyida xavfsizlikni ta’minlovchi infraqizil pardali sensorni birlashtiradi

AD-09 — eshik o‘tish joyida xavfsizlikni ta’minlaydigan fotoelementlar to‘plami

AD-09 — eshik o‘tish joyida xavfsizlikni ta’minlaydigan fotoelementlar to‘plami

Texnik tavsif
O'lchamlar jadvali
Параметр
Показатель
Высота проема, мм
2 000–3 000
Ширина проема для двустворчатых дверей, мм
1 200–3 000
Толщина, мм
8–12 (temirlangan shisha uchun)
Притолока, мм
125 dan kam emas
Konstruktsiya
  1. Vertikal panel profili
  2. Gorizontal panel profili
  3. Shtapik
  4. To‘ldirish 8 mm, 9 mm (shtapik bilan) yoki 24 mm (shtapiksiz)
  5. Ichki siqgich
  6. Tashqi siqgich
  7. Markaziy siqgich
Standart konstruktiv yechimlar

Bitta panelli eshik (chapga ochiladigan)

Bitta panelli eshik (chapga ochiladigan)

Усл. обозначение, наименование параметра Расчетная формула
B, мм Ширина проема 2500 gacha
H, мм Высота проема 3000 gacha
Ikki panelli eshik

Ikki panelli eshik

Усл. обозначение, наименование параметра Расчетная формула
B, мм Ширина проема 3000 gacha
H, мм Высота проема 3000 gacha
Bitta panelli eshik, bir harakatlanmaydigan panel bilan (chapga ochiladigan)

Bitta panelli eshik, bir harakatlanmaydigan panel bilan (chapga ochiladigan)

Усл. обозначение, наименование параметра Расчетная формула
B, мм Ширина проема 5000 gacha
H, мм Высота проема 3000 gacha
Ikki panelli eshik, ikki harakatlanmaydigan panel bilan

Ikki panelli eshik, ikki harakatlanmaydigan panel bilan

Усл. обозначение, наименование параметра Расчетная формула
B, мм Ширина проема 6000 gacha
H, мм Высота проема 3000 gacha
Bitta panelli eshik, bir harakatlanmaydigan panel va framuga bilan (o‘ngga ochiladigan)

Bitta panelli eshik, bir harakatlanmaydigan panel va framuga bilan (o‘ngga ochiladigan)

Усл. обозначение, наименование параметра Расчетная формула
B, мм Ширина проема 1184 dan 6200 gacha
H, мм Высота проема 2200 dan 4000 gacha
W, мм Ширина прохода 700 dan 3000 gacha
K, мм Высота прохода 1800 dan 3000 gacha
Ikki panelli eshik, ikki harakatlanmaydigan panel va framuga bilan

Ikki panelli eshik, ikki harakatlanmaydigan panel va framuga bilan

Усл. обозначение, наименование параметра Расчетная формула
B, мм Ширина проема 1 806 dan 6 200 gacha
H, мм Высота проема 2 200 dan 4 000 gacha
W, мм Ширина прохода 1 000 dan 3 000 gacha
K, мм Высота прохода 1 800 dan 3 000 gacha
Ikki panelli eshik, ikki butun shishadan yasalgan panelli

Ikki panelli eshik, ikki butun shishadan yasalgan panelli

Усл. обозначение, наименование параметра Расчетная формула
B, мм Ширина проема 3 000 gacha
H, мм Высота проема 3 000 gacha
Texnik xususiyatlar
Параметр Значение Примечание
Толщина профилей, мм 35
Толщина заполнения, мм 8–12 Butun shishali eshik qanoti
Максимальная высота, м 3
Максимальный вес створки, кг. 100
Двигатель, В 24
Мощность, Вт 100
Напряжение питания, В 220
Диапазон рабочих температур, °С -20…+70
Интенсивность использования, % 100 Doimiy va intensiv harakatlanish uchun, kunu-tun ishlash rejimida
Mahsulotni ishlatish shartlari

1. Elektr haydovchi qurilmasi o‘rnatilgan eshik korpusini bino tashqarisiga, ko‘cha tomoniga o‘rnatish qat’iyan taqiqlanadi.

2. Eshik qanotlarini qo‘lda ochish va yopish faqat favqulodda holatlarda (elektr ta’minoti bo‘lmaganida) yoki sozlash ishlari davomida amalga oshiriladi.

3. Eshik qanotlarini qo‘lda ochish yoki yopish chog‘ida ortiqcha kuch ishlatmang. Qanotlarni keskin harakatlar bilan ochish qat’iyan man etiladi.

4. Bolalar va hayvonlar eshik qanotlarining ochilish/yopilish zonasida uzoq vaqt bo‘lishiga yo‘l qo‘ymang.

5. Bloklangan eshiklarni qo‘l bilan majburan ochishga, barmoqlar yoki begona buyumlarni harakatlanuvchi qanot bilan pol orasidagi bo‘shliqlarga tiqishga qat’iyan yo‘l qo‘yilmaydi — bu jarohatlarga olib kelishi mumkin.

6. Eshik qanotlarini o‘tkazishda ularga zarba bermang va ularning ochilish yoki yopilishiga to‘sqinlik qilmang. Eshik qanotlari harakatlanadigan zonada yugurish yoki turib qolish taqiqlanadi.

7. Eshik qanotlari harakatlanayotgan paytda ularning yo‘lida begona buyumlar va axlat bo‘lmasligiga e’tibor bering: bunday buyumlar qanotlarning egilishiga, ularning tiqilib qolishiga va eshik avtomatikasining ishlamay qolishiga olib kelishi mumkin.

8. Polga o‘rnatilgan yo‘riqchilarni va roliklarni ifloslantirmang, chunki bu eshik qanotlarining silliq harakatlanishini buzishi, ularning tiqilib qolishiga va elektr haydovchining ishlamay qolishiga olib kelishi mumkin.

9. Avtomatik eshik qanotlari eshik o‘tish joyi bo‘ylab yo‘riqchidan silliq harakatlanishi, eshikni ochish/yopish tsikli davomida qanotlar to‘liq ochiq yoki yopiq holatga yetganda majburiy to‘xtash bilan amalga oshirilishi kerak.

10. Eshikni xavfsizlik elementlari, ya'ni fotoelementlar yoki IR-parda o‘rnatilmagan holda ishlatish qat’iyan taqiqlanadi.

Qadoqlash
Упаковка в картон Характеристики упаковки
araxtdan yasalgan palet, pastki qismida polistirol bloklar bilan. Profil g‘ofrokarton varaqasi bilan o‘ralgan va PP lenta bilan mustahkamlangan
Упаковка в пузырчатую пленку Характеристики упаковки
Qadoqlash — bu profilning pufakli plyonka bilan o‘ralib, logotipli skotch bilan mustahkamlangan holati. Bitta profil qadoqlanishining og‘irligi 35 kg dan ortiq emas
Упаковка на палету Характеристики упаковки
Pufakli plyonkaga o‘ralgan profil to‘plamlari polistirol ramkadan yasalgan paletaga joylashtiriladi va skotch bilan mustahkamlanadi
Qo‘shimcha tavsif

Yuvish eshiklarini alohida o‘rnatish mumkin, shuningdek, binoning fasadiga yoki kirish guruhiga integratsiya qilish mumkin.

O'rnatish
Montaj usullari
Avtomatik eshik korpusini ochilishga o‘rnatish
Avtomatik eshik korpusini ochilishga o‘rnatish
Teleskopik eshik korpusini ochilishga o‘rnatish
Teleskopik eshik korpusini ochilishga o‘rnatish
Bino qurilishi uchun tayyorgarlik
  1. Ochilish parametrlarini o'lchash: N — ochilish balandligi (toza poldan ochilish yuqorisigacha bo'lgan masofa); B — ochilish kengligi (chap chekkadan o'ng chekkagacha bo'lgan masofa); h — yuqori ramka balandligi (ochilish yuqorisidan shiftgacha bo'lgan masofa). Yuqori ramka, ochilish kengligi va balandligini o'lchash kamida ikki joyda amalga oshiriladi. Yakuniy o'lchov sifatida har doim eng kichik qiymat qabul qilinadi.
  2. Konstruktsiyani sifatli o'rnatish va uning ishonchli ishlashini ta'minlash uchun, xonani ochilish uchun tayyorlash zarur. Ochilishning tozaligi uchun ma'lum talablar mavjud: Ochilish to'g'ri to'rtburchak shaklida bo'lishi kerak. Ramka yuzasi tekis va silliq bo'lishi, gips aralashmasining ortiqcha qatlamlari va yoriqlarsiz bo'lishi kerak. Pol yuzasi tekis, gorizontal, chiqindilar va chuqurliksiz bo'lishi kerak. 1 m uzunlikda 1 mm gacha og'ishlarga ruxsat etiladi. Vertikal va gorizontal yuzalar tekis bo'lishi kerak, og'ish 1 m uzunlikda 1 mm gacha bo'lishi mumkin. Agar ochilishlar yuqoridagi talablar bo'yicha tayyorlanmagan bo'lsa, o'lchovlarni olish va montajni boshlashdan oldin bu og'ishlarni bartaraf etish zarur. Yuqori ramka va yon devor yelkalari bir tekislikda bo'lishi kerak. Ochilish ramkasi mustahkam konstruktsiya, payvandlangan truba, fasad profili yoki vitraj ko'rinishida bo'lishi kerak.
Kafolat majburiyatlari

Mijozga tizimni to‘liq komplektatsiyasi bo‘yicha 2 yil kafolat beriladi, agar ekspluatatsiya shartlari bajarilgan bo‘lsa, yuklash vaqtidan boshlab.

Hujjatlar
Ko'rsatmalar

«Avtomatik yuvish eshigi AD-SP haydovchisi bilan» ko‘rsatmalar

«Teleskopik eshik AD-SP-TELESCOPE haydovchisi bilan» ko‘rsatmalar

Avtomatik/teleskopik eshiklarning yengil qanotlarini yig‘ish bo‘yicha ko‘rsatmalar

«Antipanika» qanotlarini yig‘ish bo‘yicha ko‘rsatmalar (ochilish funksiyasi bilan) avtomatik eshiklar

Framuga va avtomatik eshik bilan konstruksiyalarni yig‘ish bo‘yicha ko‘rsatmalar

AD-34 kombinatsiyalashgan harakat va xavfsizlik datchig‘ini sozlash bo‘yicha ko‘rsatmalar

O‘tish joyini tayyorlash va o‘rnatish talablari

Pasportlar va sertifikatlar

Avtomatik yuvish eshigi / haydovchi AD-SP / AD-SP-TELESCOPE pasporti

Aluminiy profiliga moslik sertifikati

Avtomatik eshiklar uchun haydovchilar bo‘yicha moslik deklaratsiyasi

Chizmalar

Asosiy qanot profillari va komplektatsiyalarining katalogi (arxiv)

Avtomatik eshiklar uchun profillar va komplektatsiyalar katalogi, yengil qanotlar bilan

Teleskopik eshiklar uchun profillar va komplektatsiyalar katalogi, yengil qanotlar bilan

Avtomatik eshik «antipanika» uchun profillar va komplektatsiyalar katalogi

Buyurtma berish
Kompaniya menejerlari barcha savollaringizga telefon orqali javob berishadi::