Catalog

SPEEDROLL SDO seriyasidagi tezkor rulonli eshiklar

Sanoat ob'ektlari, logistika markazlari va omborxonalardagi tashqi o'tish joylari eng og'ir sinovlarga duch keladi: shamol, yomg'ir, qor, harorat o'zgarishlari va intensiv trafik. Bunday sharoitlar uchun tezlik, germetiklik va eng muhimi, ajoyib shamolga chidamlilikni o'zida mujassam etgan darvozalar talab etiladi. DoorHan konserni eng murakkab ob-havo sharoitlarida samarali ishlash, shu bilan birga yuqori o'tkazuvchanlik va energiya tejashni ta'minlash uchun yaratilgan kuchli va ishonchli himoya majmuasi — tashqi o'rnatish uchun mo'ljallangan SpeedRoll SDO seriyali yuqori tezlikdagi rulonli darvozalarini taqdim etadi.

Shamol yuklamalariga fundamental chidamlilik. SDO darvozalarini ichki modellardan ajratib turadigan asosiy narsa — bu shamolga qarshi turish uchun maxsus ishlab chiqilgan kuchaytirilgan konstruksiyasidir. Darvoza polotnosi butun balandligi bo'ylab bir tekis taqsimlangan maxsus gorizontal profillar (qattiqlik qovurg'alari) bilan kuchaytirilgan. Bu muhandislik yechimi quyidagilarni ta'minlaydi:

  • Yuqori shamolga chidamlilik: Kuchaytiruvchi profillar hatto kuchli shamol esganda ham polotnoning "egilishiga" yoki "yelkan bo'lishiga" yo'l qo'ymaydi. Darvozalar o'z geometriyasini va germetikligini saqlab, xonani ishonchli himoya qiladi.
  • Barqarorlik va harakatning silliqligi: Qattiq polotno yo'naltiruvchilar bo'ylab tebranishlarsiz va chayqalishlarsiz silliqroq va barqarorroq harakatlanadi, bu butun konstruksiyaning xizmat muddatini uzaytiradi.

Tejash va samaradorlik uchun tezlik. Barcha SpeedRoll seriyali darvozalar singari, SDO modeli ham yuqori ochilish va yopilish tezligiga ega. Tashqi o'tish joylari uchun bu uch karra iqtisodiy samara beradi:

  • Maksimal energiya tejash: O'tish joyi minimal vaqt davomida ochiq qoladi. Bu qishda issiqlik yo'qotishlarini va yozda issiq havoning kirishini keskin kamaytiradi, bu esa butun binoni isitish va konditsionerlashda sezilarli tejashga olib keladi.
  • Trafikni optimallashtirish: Tez ish sikli transportning omborxonaga yoki hududga kechikishlarsiz kirishi va chiqishiga imkon beradi, bu bekor turishlarning oldini oladi va logistika jarayonlarini optimallashtiradi.
  • Ob-havodan himoya: Tez yopilish xonalar ichiga yomg'ir, qor, chang va ko'cha axlatlarining kirishini minimallashtiradi, bu tozalik va tartibni saqlashga yordam beradi.

Murosasiz ishonchlilik va xavfsizlik. SpeedRoll SDO darvozalari ko'cha sharoitida uzoq yillar davomida intensiv ishlashga mo'ljallangan. Yo'naltiruvchilar va val qutisini o'z ichiga olgan konstruksiyaning barcha yuk ko'taruvchi elementlari ruxlangan po'latdan yasalgan va korroziyadan himoyalangan. Darvoza asosida har qanday haroratda barqaror ishlashni ta'minlaydigan kuchli sanoat privodi yotadi. Xodimlar va texnikaning xavfsizligi standart komplektatsiyada allaqachon kafolatlangan. Polotnoning pastki chetiga simsiz optik xavfsizlik qirrasi o'rnatilgan. Har qanday to'siq bilan aloqa qilganda u darvoza harakatini bir zumda to'xtatadi va orqaga qaytaradi. Qo'shimcha ravishda o'tish joyiga fotoelementlar o'rnatilishi mumkin. DoorHan SpeedRoll SDO yuqori tezlikdagi darvozalarini tanlab, siz korxonangizning tashqi o'tish joylarini har qanday sinovlardan — ham intensiv trafikdan, ham tabiat kuchlaridan himoya qilish uchun eng ishonchli va samarali yechimga ega bo'lasiz.

Qo'llanilish sohasi:
Ombor majmualari. Sanoat ob'ektlari
Afzalliklar
Yuqori tezlikdagi eshik
Yuqori ochilish tezligi - 2,0 m / s gacha.
Avtomatlashtirish imkoniyati
O'z ishlab chiqarishimizni ishonchli avtomatlashtirish.
Qo'shimcha variantlar
Har xil qo'shimcha uskunalarni o'rnatish imkoniyati: fotosellar, kalit tugmalari, haydovchi va raf isitish tizimlari va boshqalar.
Sovuqqa chidamliligi
Muhim salbiy haroratlarda barqaror ishlash.
Kengaytirilgan asosiy uskunalar
Standart sifatida xavfsizlik asboblari to'plami.
Yuqori tezlikdagi eshik
Yuqori ochilish tezligi - 2,0 m / s gacha.
Avtomatlashtirish imkoniyati
O'z ishlab chiqarishimizni ishonchli avtomatlashtirish.
Qo'shimcha variantlar
Har xil qo'shimcha uskunalarni o'rnatish imkoniyati: fotosellar, kalit tugmalari, haydovchi va raf isitish tizimlari va boshqalar.
Sovuqqa chidamliligi
Muhim salbiy haroratlarda barqaror ishlash.
Kengaytirilgan asosiy uskunalar
Standart sifatida xavfsizlik asboblari to'plami.
Dizayn
Kanvas ranglari
RAL 9010 (oq)
RAL 9010 (oq)
RAL 5002 (ko'k)
RAL 5002 (ko'k)
RAL 6026 (yashil)
RAL 6026 (yashil)
RAL 9006 (kumush)
RAL 9006 (kumush)
RAL 1003 (sariq)
RAL 1003 (sariq)
RAL 3002 (qizil)
RAL 3002 (qizil)
RAL 2004 (to'q sariq)
RAL 2004 (to'q sariq)
Komplektatsiya
Bazaviy to'plam
Qo'shimcha to'plam
Ustunlar va qopqoqalar galvanizlangan po‘latdan yasalgan.

Ustunlar va qopqoqalar galvanizlangan po‘latdan yasalgan.

Galvanizlangan po‘latdan yasalgan val, diametri 90/130 mm.

Galvanizlangan po‘latdan yasalgan val, diametri 90/130 mm.

Yo‘l-yo‘riqlar — ekstrudirovka qilingan polietilen.

Yo‘l-yo‘riqlar — ekstrudirovka qilingan polietilen.

To‘qima — shaffof bo‘lmagan armaturali PVC, zichligi 900–1 200 g/m².

To‘qima — shaffof bo‘lmagan armaturali PVC, zichligi 900–1 200 g/m².

Boshqaruv bloki — po‘latdan yasalgan, bo‘yalgan korpus, o‘lchamlari 300 × 400 × 150 mm; himoya sinfi — IP54; chastota o‘zgartirgich bilan.

Boshqaruv bloki — po‘latdan yasalgan, bo‘yalgan korpus, o‘lchamlari 300 × 400 × 150 mm; himoya sinfi — IP54; chastota o‘zgartirgich bilan.

Fotoelementlar poldan 500 mm balandlikda o‘rnatiladi, shuningdek, to‘qimaning ochilishida noto‘g‘ri o‘ralishini aniqlash uchun yon ustunlarning yuqori nuqtalarida o‘rnatiladi.

Fotoelementlar poldan 500 mm balandlikda o‘rnatiladi, shuningdek, to‘qimaning ochilishida noto‘g‘ri o‘ralishini aniqlash uchun yon ustunlarning yuqori nuqtalarida o‘rnatiladi.

Uzoqdan ishlaydigan fotoelementlar ustunlarda va signal chiroqlari.

Uzoqdan ishlaydigan fotoelementlar ustunlarda va signal chiroqlari.

Boshqaruv blokining korpusi AISI304 zanglamas po‘latdan yasalgan.

Boshqaruv blokining korpusi AISI304 zanglamas po‘latdan yasalgan.

Privod va ustunlarni isitish.

Privod va ustunlarni isitish.

Yopilish jarayonida, agar sezgir pastki chet to‘siqqa tegsa, sensor orqali radio kanali orqali boshqaruv blokiga eshiklarni ochish signalini uzatadi; agar elektr ta'minoti uzilib qolsa, eshiklar avtomatik tarzda qarshi og‘irlik yordamida ochiladi.

Yopilish jarayonida, agar sezgir pastki chet to‘siqqa tegsa, sensor orqali radio kanali orqali boshqaruv blokiga eshiklarni ochish signalini uzatadi; agar elektr ta'minoti uzilib qolsa, eshiklar avtomatik tarzda qarshi og‘irlik yordamida ochiladi.

Texnik tavsif
O'lchamlar jadvali
Konstruktsiya
Standart konstruktiv yechimlar
Texnik xususiyatlar
Mahsulotni ishlatish shartlari
Qadoqlash
Параметр
Показатель
Ширина проема, мм
1 200–5 700
Высота проема, мм
1 800–5 800
Притолока, мм
450 dan
Пристенки, мм
225 dan
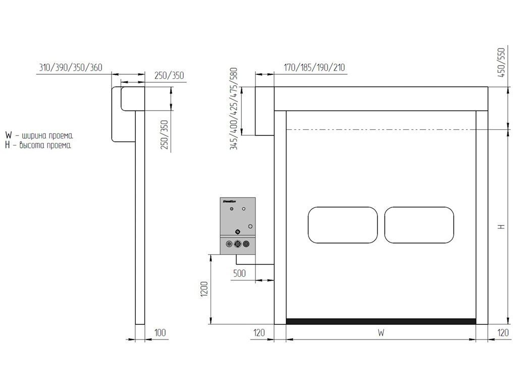
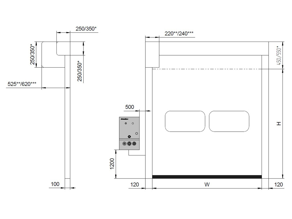
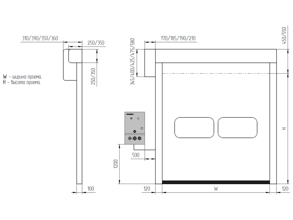
  1. Elektr dvigateli
  2. Val
  3. Val qopqog‘i
  4. Eshik to‘qimasi
  5. Shaffof qo‘shimcha (okno/panel)
  6. Ustun
  7. To‘qima harakatini yo‘naltiruvchi yo‘l-yo‘riq
  8. To‘qimaning pastki cheti
  9. Fotoelement
  10. Boshqaruv bloki

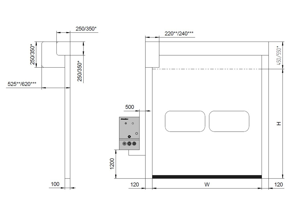
Yon tomondan haydovchiga ega darvozaning umumiy ko'rinishi (chapda haydash / o'ngda).

Yon tomondan haydovchiga ega darvozaning umumiy ko'rinishi (chapda haydash / o'ngda).

Усл. обозначение, наименование параметра Расчетная формула
B, мм Ширина проема 1 200–5 700
H, мм Высота проема 1 800–5 800
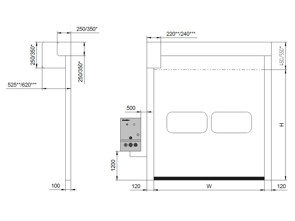
Old tomondan haydovchiga ega darvozaning umumiy ko'rinishi (oldingi chap / old o'ng).

Old tomondan haydovchiga ega darvozaning umumiy ko'rinishi (oldingi chap / old o'ng).

Усл. обозначение, наименование параметра Расчетная формула
B, мм Ширина проема 1 200–5 700
H, мм Высота проема 1 800–5 800
Параметр Значение Примечание
Ветровая нагрузка, км/ч CLASS3 (120 tagacha) 3000 × 3000 mm gacha bo'lgan eshiklar uchun
Ветровая нагрузка, км/ч CLASS2 (90 gacha) 5000 × 5000 mm gacha bo'lgan eshiklar uchun
Ветровая нагрузка, км/ч CLASS1 (82 gacha) 6000 × 6000 mm gacha bo'lgan eshiklar uchun
Скорость открывания, м/с 2,0 3000 × 3000 mm gacha bo'lgan eshiklar uchun
Скорость открывания, м/с 1,5 5000 × 5000 mm gacha bo'lgan eshiklar uchun
Скорость открывания, м/с 1,0 6000 × 6000 mm gacha bo'lgan eshiklar uchun
Скорость закрывания, м/с 0,5
Диапазон рабочих температур, °С -30...+50 -16...-30 °S harorat rejimida ishlatishda eshik konstruktsiyasida to‘qimada armatura yo‘q, shuningdek, shaffof bo‘limlarni o‘rnatish mumkin emas: «Xavfsizlik profili» opsiyasi mavjud emas.
Мощность, Вт 1 500
Класс защиты IP IP54 Oxirgi holatlar enkoder yordamida kuzatiladi
Напряжение питания, В 220 V/50 Hz Bir fazali
Напряжение питания, В 380 V/50 Hz Uch fazali
Безотказность, количество циклов открывания-закрывания, не менее 1 500 000 Ishlatish sharoitlariga bog‘liq

SpeedRoll seriyasidagi eshiklar uchun shamol yukiga qarshilik eshiklar yopiq holatda bo‘lganda keltirilgan. Eshiklar tabiiy yoki texnogen omillar sababli noaniq va kuchaytirilgan shamol yukiga duchor bo‘ladigan joylarda ishlatilmasligi kerak, masalan: dengiz bo‘ylarida yoki tog‘larda joylashgan binolar; ko‘p qavatli isitiladigan yer osti avtoturargohlari, ko‘plab kirish va chiqish joylari bilan; kuchli havo ta'minoti va chiqarilish tizimi bo‘lgan ishlab chiqarish obyektlari; ko‘p eshik o‘chish joylari mavjud, kuchli shabada paydo bo‘lishi mumkin bo‘lgan murakkab konfiguratsiyaga ega binolar. Agar yuqoridagi faktorlarning biri yoki bir nechtasi mavjud bo‘lsa, SpeedFold seriyasidagi eshiklar yoki HSSD seriyasidagi spiralli eshiklarni ishlatish tavsiya etiladi.

Eshiklarning ishonchli va uzluksiz ishlashini ta'minlash uchun ularni muntazam ravishda texnik tekshiruvdan o‘tkazish va xizmat ko‘rsatish tavsiya etiladi.

Eshiklarni qo‘l bilan ochish va yopish kaman yordamida amalga oshiriladi.

Eshiklarni zarbaga solmang va ularning erkin ochilish va yopilishiga to‘sqinlik qilmang.

PVC to‘qima yo‘l-yo‘riqlarini ifloslanishiga yo‘l qo‘ymang.

Eshiklarni ochish va yopish jarayonida o‘chish joyida bo‘lish taqiqlanadi, jarohatlanishning oldini olish maqsadida.

Eshiklarni ochish va yopish jarayonida o‘chish joyida begona buyumlar bo‘lmasligini kuzatib boring.

Binoning tashqarisiga o‘rnatilgan va harorat -15 °C dan past bo‘lgan sharoitda ishlatiladigan eshiklar uchun to‘qimada oynalar bo‘lishiga yo‘l qo‘yilmaydi.

Eshik to‘qimasining yo‘l-yo‘riqlarda o‘zini tiklash funksiyasi favqulodda holatlarda, transport vositasi tomonidan tasodifiy urilish holatlarida ishlash uchun mo‘ljallangan, lekin bu funksiya to‘qimani yo‘l-yo‘riqlardan qasddan va tizimli tarzda chiqarishda ishlash uchun mo‘ljallanmagan. Funksiya ishga tushishi to‘qimada o‘rnatilgan plastik yo‘l-yo‘riqlardan chiqib ketish imkoniyatini ta’minlovchi «zipper» tizimi yordamida ta’minlanadi. Funksiya ishga tushishi to‘qima va tizim elementlarining alohida qismlarining mustahkamlik parametrlarini oshib ketadigan zarbalar ta’sirida ta’minlanmaydi. Masalan, to‘qimaga yuqori tezlikda urilish, o‘tkir predmetlar bilan zarba berish, ko‘taruvchi vilkalar bilan eshikning yuqori qismiga zarba berish va shu kabi holatlar.

Упаковка в дерево Характеристики упаковки
Состав Pakupka yog‘ochdan yasalgan quti bo‘lib, tugunlar orasida karton joylashtirilgan, hammasi kamarlar bilan mahkamlangan.
Длина, мм Eshiklarning tarkibiy qismlarining uzunligiga bog‘liq
Ширина, мм 640–705
Высота, мм 480–730
Qo‘shimcha tavsif chop etish

DoorHan konserni yuk tashish transportiga eshiklarni gidravlik ko'tarish krani yoki kamida 2 metrli vilkali tutqichli avtoupakovshik yordamida yuklashni amalga oshiradi. Mijoz yoki o'rnatishchi qadoqlangan eshiklarni ko'chirish uchun shunga o'xshash uskuna taqdim etishi lozim. Vilka yog'och taglikni ishlab chiqaruvchi tomonidan taqdim etilgan tarzda olib kirishi va qarama-qarshi tomondan chiqishi kerak. Krani yoki boshqa ko'tarish vositasi ishlatilganda, yuk ko'tarish qobiliyatiga mos bo'lgan bog'ichlardan foydalanish tavsiya etiladi.

O'rnatish
Montaj usullari
Bino qurilishi uchun tayyorgarlik
Tezkor eshiklarni yopishtirma montaj qilish
Tezkor eshiklarni yopishtirma montaj qilish
  1. Barcha o‘lchovlar ichki xonada amalga oshiriladi. Har bir kattalikni o‘lchash kamida uchta nuqtada (eng chekka joylarda va markazda) bajarilishi lozim.
  2. B – o‘chish joyining kengligi (chap chetidan o‘ng chetiga qadar masofa).
  3. H – o‘chish joyining balandligi (poldan o‘chish joyining yuqori qismigacha bo‘lgan masofa).
  4. h – pritoloka (o‘chish joyining yuqori qismidan tomgacha bo‘lgan masofa).
  5. b1/b2 – chap/ong yon tomondagi masofa (mos ravishda o‘chish joyining tegishli chetidan to‘siqqa qadar masofa).
  6. H va B o‘lchovlari bo‘yicha yakuniy o‘lcham eng katta qiymat sifatida qabul qilinadi, h, b1 va b2 o‘lchovlari bo‘yicha esa eng kichik qiymat qabul qilinadi.
Hujjatlar
Ko'rsatmalar
Pasportlar va sertifikatlar
Chizmalar

SPEEDROLL SDO yuqori tezlikdagi rolikli eshiklari (tashqi foydalanish uchun)

GFA boshqaruv bloki

BMP boshqaruv bloki

DOORHAN boshqaruv bloki

DOORHAN SERVO boshqaruv bloki

Muvofiqlik sertifikati (yuqori tezlikdagi eshiklar)

Yuqori tezlikda harakatlanuvchi eshiklar uchun pasport

Muvofiqlik sertifikati (boshqaruv bloklari)

SPEEDROLL SDO yuqori tezlikda aylanma eshigi (yondan uzatma)

SPEEDROLL SDO yuqori tezlikda aylanuvchi darvoza (oldingi haydovchi)

SPEEDROLL SDO yuqori tezlikli rolikli eshiklarini o'rnatish diagrammasi (yon haydovchi)

SPEEDROLL SDO yuqori tezlikli rolikli eshiklarini o'rnatish diagrammasi (oldingi haydovchi)

Kafolat majburiyatlari chop etish

Mijozlarga DoorHan konserni tomonidan ishlab chiqarilgan tezkor rulon eshiklarining ishlashiga kafolat 1 yil davomida chakana savdolar va 2 yil davomida dilerlik buyurtmalari uchun sotib olingan kundan boshlab taqdim etiladi.

Yangi mahsulotlar
DoorHan SERVO drayveri (220V).

DoorHan SERVO drayveri (220V).

Dizayn
Kanvas ranglari
RAL 9010 (oq)
RAL 9010 (oq)
RAL 5002 (ko'k)
RAL 5002 (ko'k)
RAL 6026 (yashil)
RAL 6026 (yashil)
RAL 9006 (kumush)
RAL 9006 (kumush)
RAL 1003 (sariq)
RAL 1003 (sariq)
RAL 3002 (qizil)
RAL 3002 (qizil)
RAL 2004 (to'q sariq)
RAL 2004 (to'q sariq)
Komplektatsiya
Bazaviy to'plam
Ustunlar va qopqoqalar galvanizlangan po‘latdan yasalgan.

Ustunlar va qopqoqalar galvanizlangan po‘latdan yasalgan.

Galvanizlangan po‘latdan yasalgan val, diametri 90/130 mm.

Galvanizlangan po‘latdan yasalgan val, diametri 90/130 mm.

Yo‘l-yo‘riqlar — ekstrudirovka qilingan polietilen.

Yo‘l-yo‘riqlar — ekstrudirovka qilingan polietilen.

To‘qima — shaffof bo‘lmagan armaturali PVC, zichligi 900–1 200 g/m².

To‘qima — shaffof bo‘lmagan armaturali PVC, zichligi 900–1 200 g/m².

Boshqaruv bloki — po‘latdan yasalgan, bo‘yalgan korpus, o‘lchamlari 300 × 400 × 150 mm; himoya sinfi — IP54; chastota o‘zgartirgich bilan.

Boshqaruv bloki — po‘latdan yasalgan, bo‘yalgan korpus, o‘lchamlari 300 × 400 × 150 mm; himoya sinfi — IP54; chastota o‘zgartirgich bilan.

Fotoelementlar poldan 500 mm balandlikda o‘rnatiladi, shuningdek, to‘qimaning ochilishida noto‘g‘ri o‘ralishini aniqlash uchun yon ustunlarning yuqori nuqtalarida o‘rnatiladi.

Fotoelementlar poldan 500 mm balandlikda o‘rnatiladi, shuningdek, to‘qimaning ochilishida noto‘g‘ri o‘ralishini aniqlash uchun yon ustunlarning yuqori nuqtalarida o‘rnatiladi.

Uzoqdan ishlaydigan fotoelementlar ustunlarda va signal chiroqlari.

Uzoqdan ishlaydigan fotoelementlar ustunlarda va signal chiroqlari.

Qo'shimcha to'plam
Boshqaruv blokining korpusi AISI304 zanglamas po‘latdan yasalgan.

Boshqaruv blokining korpusi AISI304 zanglamas po‘latdan yasalgan.

Privod va ustunlarni isitish.

Privod va ustunlarni isitish.

Yopilish jarayonida, agar sezgir pastki chet to‘siqqa tegsa, sensor orqali radio kanali orqali boshqaruv blokiga eshiklarni ochish signalini uzatadi; agar elektr ta'minoti uzilib qolsa, eshiklar avtomatik tarzda qarshi og‘irlik yordamida ochiladi.

Yopilish jarayonida, agar sezgir pastki chet to‘siqqa tegsa, sensor orqali radio kanali orqali boshqaruv blokiga eshiklarni ochish signalini uzatadi; agar elektr ta'minoti uzilib qolsa, eshiklar avtomatik tarzda qarshi og‘irlik yordamida ochiladi.

Texnik tavsif
O'lchamlar jadvali
Параметр
Показатель
Ширина проема, мм
1 200–5 700
Высота проема, мм
1 800–5 800
Притолока, мм
450 dan
Пристенки, мм
225 dan
Konstruktsiya
  1. Elektr dvigateli
  2. Val
  3. Val qopqog‘i
  4. Eshik to‘qimasi
  5. Shaffof qo‘shimcha (okno/panel)
  6. Ustun
  7. To‘qima harakatini yo‘naltiruvchi yo‘l-yo‘riq
  8. To‘qimaning pastki cheti
  9. Fotoelement
  10. Boshqaruv bloki
Standart konstruktiv yechimlar

Yon tomondan haydovchiga ega darvozaning umumiy ko'rinishi (chapda haydash / o'ngda).

Yon tomondan haydovchiga ega darvozaning umumiy ko'rinishi (chapda haydash / o'ngda).

Усл. обозначение, наименование параметра Расчетная формула
B, мм Ширина проема 1 200–5 700
H, мм Высота проема 1 800–5 800
Old tomondan haydovchiga ega darvozaning umumiy ko'rinishi (oldingi chap / old o'ng).

Old tomondan haydovchiga ega darvozaning umumiy ko'rinishi (oldingi chap / old o'ng).

Усл. обозначение, наименование параметра Расчетная формула
B, мм Ширина проема 1 200–5 700
H, мм Высота проема 1 800–5 800
Texnik xususiyatlar
Параметр Значение Примечание
Ветровая нагрузка, км/ч CLASS3 (120 tagacha) 3000 × 3000 mm gacha bo'lgan eshiklar uchun
Ветровая нагрузка, км/ч CLASS2 (90 gacha) 5000 × 5000 mm gacha bo'lgan eshiklar uchun
Ветровая нагрузка, км/ч CLASS1 (82 gacha) 6000 × 6000 mm gacha bo'lgan eshiklar uchun
Скорость открывания, м/с 2,0 3000 × 3000 mm gacha bo'lgan eshiklar uchun
Скорость открывания, м/с 1,5 5000 × 5000 mm gacha bo'lgan eshiklar uchun
Скорость открывания, м/с 1,0 6000 × 6000 mm gacha bo'lgan eshiklar uchun
Скорость закрывания, м/с 0,5
Диапазон рабочих температур, °С -30...+50 -16...-30 °S harorat rejimida ishlatishda eshik konstruktsiyasida to‘qimada armatura yo‘q, shuningdek, shaffof bo‘limlarni o‘rnatish mumkin emas: «Xavfsizlik profili» opsiyasi mavjud emas.
Мощность, Вт 1 500
Класс защиты IP IP54 Oxirgi holatlar enkoder yordamida kuzatiladi
Напряжение питания, В 220 V/50 Hz Bir fazali
Напряжение питания, В 380 V/50 Hz Uch fazali
Безотказность, количество циклов открывания-закрывания, не менее 1 500 000 Ishlatish sharoitlariga bog‘liq
Mahsulotni ishlatish shartlari

SpeedRoll seriyasidagi eshiklar uchun shamol yukiga qarshilik eshiklar yopiq holatda bo‘lganda keltirilgan. Eshiklar tabiiy yoki texnogen omillar sababli noaniq va kuchaytirilgan shamol yukiga duchor bo‘ladigan joylarda ishlatilmasligi kerak, masalan: dengiz bo‘ylarida yoki tog‘larda joylashgan binolar; ko‘p qavatli isitiladigan yer osti avtoturargohlari, ko‘plab kirish va chiqish joylari bilan; kuchli havo ta'minoti va chiqarilish tizimi bo‘lgan ishlab chiqarish obyektlari; ko‘p eshik o‘chish joylari mavjud, kuchli shabada paydo bo‘lishi mumkin bo‘lgan murakkab konfiguratsiyaga ega binolar. Agar yuqoridagi faktorlarning biri yoki bir nechtasi mavjud bo‘lsa, SpeedFold seriyasidagi eshiklar yoki HSSD seriyasidagi spiralli eshiklarni ishlatish tavsiya etiladi.

Eshiklarning ishonchli va uzluksiz ishlashini ta'minlash uchun ularni muntazam ravishda texnik tekshiruvdan o‘tkazish va xizmat ko‘rsatish tavsiya etiladi.

Eshiklarni qo‘l bilan ochish va yopish kaman yordamida amalga oshiriladi.

Eshiklarni zarbaga solmang va ularning erkin ochilish va yopilishiga to‘sqinlik qilmang.

PVC to‘qima yo‘l-yo‘riqlarini ifloslanishiga yo‘l qo‘ymang.

Eshiklarni ochish va yopish jarayonida o‘chish joyida bo‘lish taqiqlanadi, jarohatlanishning oldini olish maqsadida.

Eshiklarni ochish va yopish jarayonida o‘chish joyida begona buyumlar bo‘lmasligini kuzatib boring.

Binoning tashqarisiga o‘rnatilgan va harorat -15 °C dan past bo‘lgan sharoitda ishlatiladigan eshiklar uchun to‘qimada oynalar bo‘lishiga yo‘l qo‘yilmaydi.

Eshik to‘qimasining yo‘l-yo‘riqlarda o‘zini tiklash funksiyasi favqulodda holatlarda, transport vositasi tomonidan tasodifiy urilish holatlarida ishlash uchun mo‘ljallangan, lekin bu funksiya to‘qimani yo‘l-yo‘riqlardan qasddan va tizimli tarzda chiqarishda ishlash uchun mo‘ljallanmagan. Funksiya ishga tushishi to‘qimada o‘rnatilgan plastik yo‘l-yo‘riqlardan chiqib ketish imkoniyatini ta’minlovchi «zipper» tizimi yordamida ta’minlanadi. Funksiya ishga tushishi to‘qima va tizim elementlarining alohida qismlarining mustahkamlik parametrlarini oshib ketadigan zarbalar ta’sirida ta’minlanmaydi. Masalan, to‘qimaga yuqori tezlikda urilish, o‘tkir predmetlar bilan zarba berish, ko‘taruvchi vilkalar bilan eshikning yuqori qismiga zarba berish va shu kabi holatlar.

Qadoqlash
Упаковка в дерево Характеристики упаковки
Состав Pakupka yog‘ochdan yasalgan quti bo‘lib, tugunlar orasida karton joylashtirilgan, hammasi kamarlar bilan mahkamlangan.
Длина, мм Eshiklarning tarkibiy qismlarining uzunligiga bog‘liq
Ширина, мм 640–705
Высота, мм 480–730
Qo‘shimcha tavsif

DoorHan konserni yuk tashish transportiga eshiklarni gidravlik ko'tarish krani yoki kamida 2 metrli vilkali tutqichli avtoupakovshik yordamida yuklashni amalga oshiradi. Mijoz yoki o'rnatishchi qadoqlangan eshiklarni ko'chirish uchun shunga o'xshash uskuna taqdim etishi lozim. Vilka yog'och taglikni ishlab chiqaruvchi tomonidan taqdim etilgan tarzda olib kirishi va qarama-qarshi tomondan chiqishi kerak. Krani yoki boshqa ko'tarish vositasi ishlatilganda, yuk ko'tarish qobiliyatiga mos bo'lgan bog'ichlardan foydalanish tavsiya etiladi.

O'rnatish
Montaj usullari
Tezkor eshiklarni yopishtirma montaj qilish
Tezkor eshiklarni yopishtirma montaj qilish
Bino qurilishi uchun tayyorgarlik
  1. Barcha o‘lchovlar ichki xonada amalga oshiriladi. Har bir kattalikni o‘lchash kamida uchta nuqtada (eng chekka joylarda va markazda) bajarilishi lozim.
  2. B – o‘chish joyining kengligi (chap chetidan o‘ng chetiga qadar masofa).
  3. H – o‘chish joyining balandligi (poldan o‘chish joyining yuqori qismigacha bo‘lgan masofa).
  4. h – pritoloka (o‘chish joyining yuqori qismidan tomgacha bo‘lgan masofa).
  5. b1/b2 – chap/ong yon tomondagi masofa (mos ravishda o‘chish joyining tegishli chetidan to‘siqqa qadar masofa).
  6. H va B o‘lchovlari bo‘yicha yakuniy o‘lcham eng katta qiymat sifatida qabul qilinadi, h, b1 va b2 o‘lchovlari bo‘yicha esa eng kichik qiymat qabul qilinadi.
Kafolat majburiyatlari

Mijozlarga DoorHan konserni tomonidan ishlab chiqarilgan tezkor rulon eshiklarining ishlashiga kafolat 1 yil davomida chakana savdolar va 2 yil davomida dilerlik buyurtmalari uchun sotib olingan kundan boshlab taqdim etiladi.

Hujjatlar
Ko'rsatmalar

SPEEDROLL SDO yuqori tezlikdagi rolikli eshiklari (tashqi foydalanish uchun)

GFA boshqaruv bloki

BMP boshqaruv bloki

DOORHAN boshqaruv bloki

DOORHAN SERVO boshqaruv bloki

Pasportlar va sertifikatlar

Muvofiqlik sertifikati (yuqori tezlikdagi eshiklar)

Yuqori tezlikda harakatlanuvchi eshiklar uchun pasport

Muvofiqlik sertifikati (boshqaruv bloklari)

Chizmalar

SPEEDROLL SDO yuqori tezlikda aylanma eshigi (yondan uzatma)

SPEEDROLL SDO yuqori tezlikda aylanuvchi darvoza (oldingi haydovchi)

SPEEDROLL SDO yuqori tezlikli rolikli eshiklarini o'rnatish diagrammasi (yon haydovchi)

SPEEDROLL SDO yuqori tezlikli rolikli eshiklarini o'rnatish diagrammasi (oldingi haydovchi)

Buyurtma berish
Kompaniya menejerlari barcha savollaringizga telefon orqali javob berishadi::