Catalog

Po‘lat sendvich-panellardan tayyorlangan, torstionli mexanizmga ega sanoat sektsiyali eshiklar ISD01

Sanoat binolari, omborxonalar, avtoyuvish shoxobchalari, AXYOSSHlar va qishloq xo'jaligi ob'ektlaridagi o'tish joylarini ishonchli yopish haqida gap ketganda, mustahkamlik, chidamlilik va xavfsizlikni o'zida mujassam etgan yechim talab etiladi. DoorHan konserni sanoatdagi "oltin standart" bo'lgan eng ommabop va universal modelimiz — ISD01 sanoat seksiyali darvozalarini taqdim etadi. Bu intensiv foydalanish uchun yaratilgan va o'n yillar davomida benuqson xizmat qilishga mo'ljallangan haqiqiy "ishchi ot"dir.

Ishonchlilik poydevori — torsion mexanizmi. ISD01 darvozalarining asosida sanoat darvozalari uchun professional standart bo'lgan kuchli va muvozanatlangan torsion mexanizmi yotadi. Bu quyidagilarni ta'minlaydi:

  • Eng yuqori ish resursi: Prujinalarning standart resursi kamida 25 000 "ochish-yopish" siklini tashkil etadi va 50 000, 75 000 yoki hatto 100 000 siklgacha oshirilishi mumkin. Bu hatto juda yuqori trafikli ob'ektlarda ham uzluksiz ishlashni kafolatlaydi.
  • Silliq va yengil yurish: Torsion val og'ir polotnoning og'irligini ideal muvozanatda ushlab turadi, uning silliq harakatini ta'minlaydi va avtomatik privodga tushadigan yukni kamaytiradi.
  • Asosiy komplektatsiyadagi xavfsizlik: Biz xavfsizlikda tejmaymiz. Har bir ISD01 darvozasi standart komplektatsiyada prujina uzilishidan va tros uzilishidan himoya qiluvchi qurilmalar bilan jihozlanadi. Ushbu mexanizmlar favqulodda vaziyatda polotnoni bir zumda bloklaydi, uning qulab tushishiga yo'l qo'ymaydi va xodimlar hamda uskunalarni himoya qiladi.

Polotnoning energiya samaradorligi va chidamliligi. Darvoza polotnosi DoorHan firma sendvich-panellaridan qalinligi 40 mm qilib yig'iladi.

  • A'lo darajadagi issiqlik izolyatsiyasi: Zich penopoliuretan bilan to'ldirish va butun perimetri bo'ylab zichlagichlar tizimi xonani sovuq va issiqdan ishonchli himoya qiladi, isitish va konditsionerlash xarajatlarini sezilarli darajada kamaytirishga yordam beradi.
  • Korroziyaga chidamlilik: Darvozaning barcha po'lat elementlari, jumladan sendvich-panellar, yo'naltiruvchilar, petlyalar va kronshteynlar ruxlangan po'latdan yasalgan, bu ularning hatto yuqori namlik sharoitida ham zanglashga yuqori darajada chidamliligini kafolatlaydi.

Har qanday vazifalarni hal qilish uchun moslashuvchanlik. ISD01 darvozalari har qanday talablarga moslashtirilishi mumkin. Polotnoga xodimlarning o'tishi uchun eshikcha, tabiiy yoritish uchun derazalar yoki hatto maksimal ko'rinish uchun to'laqonli panoramali seksiyalar o'rnatilishi mumkin. Ko'tarilish turlarining keng tanlovi darvozalarni har qanday shift arxitekturasiga ega bo'lgan xonalarga o'rnatish imkonini beradi. DoorHan ISD01 sanoat darvozalarini tanlab, siz bozordagi eng ishonchli, xavfsiz va vaqt sinovidan o'tgan yechimga ega bo'lasiz.


Qo'llanilish sohasi:
Sanoat obyektlari
Afzalliklar
GOST talablariga muvofiqlik
Darvozalar konstruksiyasi davlat standarti GOST 31174-2017 «Metall darvozalar» talablariga to‘liq mos keladi.
Issiqlik samaradorligi
Sendvich-panelda sovuq otkazuvchi koprikning yo‘qligi, butun kontur bo‘ylab zichlagichlar hisobiga ta’minlangan germetiklik, issiqlik ajratkichli polotno profillari darvozaning maksimal issiqlik samaradorligini kafolatlaydi.
Qo‘llanilishining universalligi
Turli xil ko'tarilish turlari eshiklarni ichki makonning har qanday geometrik shakliga mos ravishda o'rnatish imkonini beradi.
Xavfsizlik
Tros uzilishidan va prujina uzilishidan himoya tizimlari favqulodda holatlarda polotnoning tushib ketishining oldini oladi.
Uzoq xizmat muddati
Yillar davomida takomillashtirilgan konstruksiya va butlovchi qismlarning mustahkamligi uzoq muddatli ekspluatatsiyani kafolatlaydi.
GOST talablariga muvofiqlik
Darvozalar konstruksiyasi davlat standarti GOST 31174-2017 «Metall darvozalar» talablariga to‘liq mos keladi.
Issiqlik samaradorligi
Sendvich-panelda sovuq otkazuvchi koprikning yo‘qligi, butun kontur bo‘ylab zichlagichlar hisobiga ta’minlangan germetiklik, issiqlik ajratkichli polotno profillari darvozaning maksimal issiqlik samaradorligini kafolatlaydi.
Qo‘llanilishining universalligi
Turli xil ko'tarilish turlari eshiklarni ichki makonning har qanday geometrik shakliga mos ravishda o'rnatish imkonini beradi.
Xavfsizlik
Tros uzilishidan va prujina uzilishidan himoya tizimlari favqulodda holatlarda polotnoning tushib ketishining oldini oladi.
Uzoq xizmat muddati
Yillar davomida takomillashtirilgan konstruksiya va butlovchi qismlarning mustahkamligi uzoq muddatli ekspluatatsiyani kafolatlaydi.
Dizayn
Panel dizayni
Yuzaki turi
Ranglar
Doska
Doska
Gorizontal chiziq
Gorizontal chiziq
Keng markaziy chiziq
Keng markaziy chiziq
To‘lqin
To‘lqin
Gorizontal chiziq (panelning ichki tomoni)
Gorizontal chiziq (panelning ichki tomoni)
Daraxt qobig‘i (panelning tashqi tomoni)
Daraxt qobig‘i (panelning tashqi tomoni)
Stucco (panelning ichki tomoni)
Stucco (panelning ichki tomoni)
RAL 9003 (oq)
RAL 9003 (oq)
RAL 9006 (kumush)
RAL 9006 (kumush)
RAL 7004 (kulrang)
RAL 7004 (kulrang)
RAL 1014 (bej)
RAL 1014 (bej)
RAL 6005 (yashil)
RAL 6005 (yashil)
RAL 5005 (ko'k)
RAL 5005 (ko'k)
RAL 7016 (antratsit)
RAL 7016 (antratsit)
RAL 7016 (
RAL 7016 ("sovuq", qo'shimcha to'lov)
RAL 3000 (qizil)
RAL 3000 (qizil)
RAL 3005 (bordo)
RAL 3005 (bordo)
RAL 8017 (jigarrang-qizil)
RAL 8017 (jigarrang-qizil)
RAL 8017 (
RAL 8017 ("sovuq", qo'shimcha to'lov)
Oltin eman
Oltin eman
Venge
Venge
RAL kartasiga muvofiq nostandart rang (qo'shimcha haq)
RAL kartasiga muvofiq nostandart rang (qo'shimcha haq)
Komplektatsiya
Bazaviy to'plam
Qo'shimcha to'plam
Polotno 40 mm qalinlikdagi energiya samarali sendvich-panellaridan iborat bo‘lib, ichki halqalar va yon tayanchlar uchun mustahkamlashga ega.

Polotno 40 mm qalinlikdagi energiya samarali sendvich-panellaridan iborat bo‘lib, ichki halqalar va yon tayanchlar uchun mustahkamlashga ega.

Yo‘riqnoma va burchakli ustunlar to‘plami 2 mm qalinlikdagi po‘latdan ishlab chiqilgan bo‘lib, ortiqcha mustahkamlik zaxirasiga ega va montaj uchun zarur bo‘lgan barcha perforatsiyalarga ega.

Yo‘riqnoma va burchakli ustunlar to‘plami 2 mm qalinlikdagi po‘latdan ishlab chiqilgan bo‘lib, ortiqcha mustahkamlik zaxirasiga ega va montaj uchun zarur bo‘lgan barcha perforatsiyalarga ega.

Torsion mexanizmi 25 000 tsiklga mo‘ljallangan. Eshik konstruktsiyasining uzoq umr ko‘rishi polotnoning og‘irliksiz ochilishi va yopilishini ta'minlaydi.

Torsion mexanizmi 25 000 tsiklga mo‘ljallangan. Eshik konstruktsiyasining uzoq umr ko‘rishi polotnoning og‘irliksiz ochilishi va yopilishini ta'minlaydi.

Prujina uzilishidan himoya qurilmasi favqulodda holatlarda valni blokirovka qiladi, bu esa eshik polotnoning tushib ketishini oldini oladi.

Prujina uzilishidan himoya qurilmasi favqulodda holatlarda valni blokirovka qiladi, bu esa eshik polotnoning tushib ketishini oldini oladi.

Tros uzilishidan himoya qurilmasi eshik polotnosiga pastki kranştayn sifatida o‘rnatiladi. Tros uzilganda mexanizm ishga tushadi va polotnoning tushib ketishini oldini oladi.

Tros uzilishidan himoya qurilmasi eshik polotnosiga pastki kranştayn sifatida o‘rnatiladi. Tros uzilganda mexanizm ishga tushadi va polotnoning tushib ketishini oldini oladi.

Montaj uchun to‘plam, mahsulot pasporti va montaj bo‘yicha ko‘rsatmalar bilan qutila.

Montaj uchun to‘plam, mahsulot pasporti va montaj bo‘yicha ko‘rsatmalar bilan qutila.

Ergonomik tutqich eshikni oson va qulay ochish va yopishni ta'minlaydi.

Ergonomik tutqich eshikni oson va qulay ochish va yopishni ta'minlaydi.

Mexanik tutqich polotnoni ichkaridan qulflash imkonini beradi. U oddiylik va ishonchliligi bilan ajralib turadi.

Mexanik tutqich polotnoni ichkaridan qulflash imkonini beradi. U oddiylik va ishonchliligi bilan ajralib turadi.

Maxsus dizaynli derazalar (627 × 327 yoki 607 × 202 mm o‘lchamda) polotnoga zich yopishishini ta'minlaydi, bu esa uni muzlashdan va issiqlik yo‘qotishdan himoya qiladi. Derazalar qora rangdagi ramkalar bilan ishlab chiqariladi.

Maxsus dizaynli derazalar (627 × 327 yoki 607 × 202 mm o‘lchamda) polotnoga zich yopishishini ta'minlaydi, bu esa uni muzlashdan va issiqlik yo‘qotishdan himoya qiladi. Derazalar qora rangdagi ramkalar bilan ishlab chiqariladi.

Mexanik qulflash mexanizmi polotnoni yopiq holatda qulflash imkonini beradi, ham ichkaridan, ham tashqaridan.

Mexanik qulflash mexanizmi polotnoni yopiq holatda qulflash imkonini beradi, ham ichkaridan, ham tashqaridan.

Kalitka takomillashtirilgan konstruktsiyaga ega bo‘lib, yuqori mustahkamlik va estetik tashqi ko‘rinishi bilan ajralib turadi. Shchitning minimal balandligi – 2 130 mm.

Kalitka takomillashtirilgan konstruktsiyaga ega bo‘lib, yuqori mustahkamlik va estetik tashqi ko‘rinishi bilan ajralib turadi. Shchitning minimal balandligi – 2 130 mm.

Eshiklarni avtomatlashtirish imkoniyati drayverlar va xavfsizlik tizimlari bilan (qarang «Eshiklar uchun avtomatika» bo‘limi).

Eshiklarni avtomatlashtirish imkoniyati drayverlar va xavfsizlik tizimlari bilan (qarang «Eshiklar uchun avtomatika» bo‘limi).

Qo‘l tasmali drayver barcha turdagi sanoat eshiklariga o‘rnatiladi va eshik polotnosini qo‘lda ko‘tarish va tushirish uchun mo‘ljallangan.

Qo‘l tasmali drayver barcha turdagi sanoat eshiklariga o‘rnatiladi va eshik polotnosini qo‘lda ko‘tarish va tushirish uchun mo‘ljallangan.

Torsion mexanizmi, 100 000 tsiklga qadar xizmat qilish uchun mo‘ljallangan.

Torsion mexanizmi, 100 000 tsiklga qadar xizmat qilish uchun mo‘ljallangan.

Anti-korroziya butlovchi qismlar to‘plamini yuqori namlik sharoitlarida ishlatiladigan eshiklar uchun ishonchli korroziyaga qarshi himoya va eshikning barqaror ishlashini ta'minlash maqsadida o‘rnatish tavsiya etiladi. Ushbu to‘plam oshirilgan xizmat muddatiga ega bo‘lib, quyidagilarni o‘z ichiga oladi: bo‘yalgan prujina, bo‘yalgan yo‘riqnoma, zanglamaydigan yon tayanchlar, halqalar va o‘tkazgichlar, zanglamaydigan tros, bo‘yalgan yon qoplamalar.

Anti-korroziya butlovchi qismlar to‘plamini yuqori namlik sharoitlarida ishlatiladigan eshiklar uchun ishonchli korroziyaga qarshi himoya va eshikning barqaror ishlashini ta'minlash maqsadida o‘rnatish tavsiya etiladi. Ushbu to‘plam oshirilgan xizmat muddatiga ega bo‘lib, quyidagilarni o‘z ichiga oladi: bo‘yalgan prujina, bo‘yalgan yo‘riqnoma, zanglamaydigan yon tayanchlar, halqalar va o‘tkazgichlar, zanglamaydigan tros, bo‘yalgan yon qoplamalar.

Qo‘shimcha tashqi muhr konturi polotnoning muhrga maksimal yopishishini ta'minlaydi. Muhrlar o‘rtasida hosil bo‘ladigan havo kamerası eng yaxshi izolyatsiyani ta'minlaydi, xonaga sovuqning kirishiga to‘sqinlik qiladi.

Qo‘shimcha tashqi muhr konturi polotnoning muhrga maksimal yopishishini ta'minlaydi. Muhrlar o‘rtasida hosil bo‘ladigan havo kamerası eng yaxshi izolyatsiyani ta'minlaydi, xonaga sovuqning kirishiga to‘sqinlik qiladi.

«Termopaketi» opsiyasi T-bridge texnologiyasidan foydalanilgan holda yuqori (pastki) alyuminiy profilini o‘rnatishni nazarda tutadi, bu esa issiqlik yo‘qotilishini oldini olish imkonini beradi.

«Termopaketi» opsiyasi T-bridge texnologiyasidan foydalanilgan holda yuqori (pastki) alyuminiy profilini o‘rnatishni nazarda tutadi, bu esa issiqlik yo‘qotilishini oldini olish imkonini beradi.

Izkronedaydigan sektsiyali eshiklar ishlab chiqarish korxonalari uchun portlash xavfli muhitlarda qo‘llaniladi. Ushbu modifikatsiyada ishlatiladigan konstruktsion yechimlar ekspluatatsiya davomida iskra hosil bo‘lishini oldini olishga va konstruktsiyaning tugunlarida xavfli elektrostatik zaryadlarning to‘planishiga yo‘l qo‘ymaslikka imkon beradi.

Izkronedaydigan sektsiyali eshiklar ishlab chiqarish korxonalari uchun portlash xavfli muhitlarda qo‘llaniladi. Ushbu modifikatsiyada ishlatiladigan konstruktsion yechimlar ekspluatatsiya davomida iskra hosil bo‘lishini oldini olishga va konstruktsiyaning tugunlarida xavfli elektrostatik zaryadlarning to‘planishiga yo‘l qo‘ymaslikka imkon beradi.

Texnik tavsif
O'lchamlar jadvali
Teshik o'lchamlari
Konstruktsiya
Standart konstruktiv yechimlar
Texnik xususiyatlar
Mahsulotni ishlatish shartlari
Qadoqlash
Параметр
Показатель
Высота проема, мм
2 000–8 000
Ширина проема, мм
1 100–8 000
Притолока, мм
150 dan
Пристенки, мм
120 dan
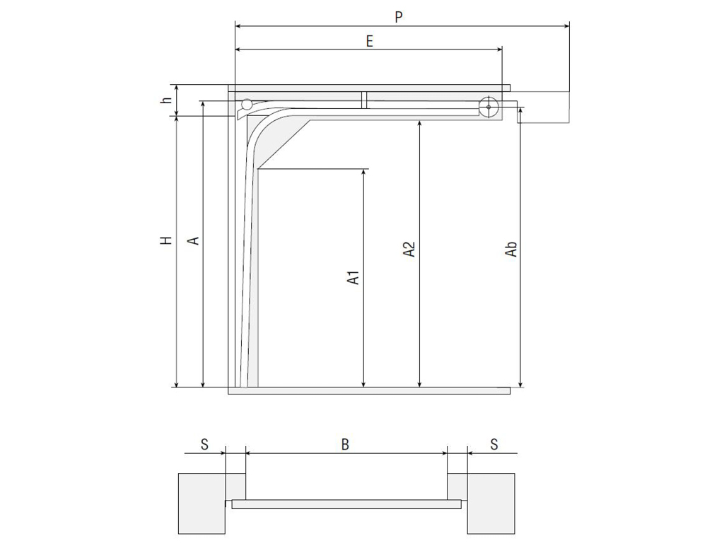
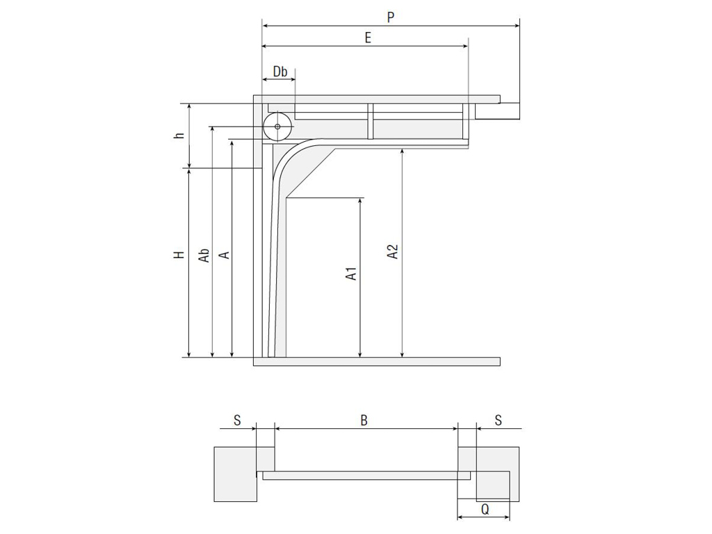
  1. Vertikal yo‘riqnoma
  2. Burchakli ustun
  3. Val silindrik
  4. Prujina uzilishidan himoya qurilmasi
  5. Baraban
  6. P-shaklidagi kranştayn
  7. Balanslashadigan prujinali mexanizm (torsion prujinasi)
  8. Ulanish muftasi
  9. Ichki tayanch kranştayni
  10. Yuqori tayanch, rolik ushlagichi bilan
  11. Yon tayanch, rolik ushlagichi bilan
  12. Kuchaytiruvchi delta-profili
  13. Tros uzilishidan himoya qurilmasi
  14. Sendvich-panel
  15. Ichki halqa
  16. Pastki profil va muhr
  17. Yon muhr
  18. Yuqori profil
  19. Yuqori muhr
  20. Yon qoplama, o'rnatish uchun teshiklari bilan
  21. «Stupenka» tutqichi
  22. Prujinali amortizator
  23. Shiftga o‘rnatish uchun kranştayn

Pastki ko‘tarilish, baraban old tomondan.

Pastki ko‘tarilish, baraban old tomondan.

Усл. обозначение, наименование параметра Расчетная формула
H, мм Высота проема H
h, мм Высота притолоки ≥ 230; ≥ 260 (shift drayveri bilan); ≥ 280 (H ≥ 3 700 bo‘lganda); ≥ 280 (val drayveri bilan, H < 3 700 bo‘lganda).
B, мм Ширина проема B
A, мм Высота угловой стойки H + 110
Ab, мм Высота оси вала и барабана ≥ A + 59
A1, мм Высота вертикальной направляющей А - 543
A2, мм Высота горизонтальной направляющей А - 106
E, мм Длина горизонтальных направляющих Н + 300
Db, мм Рабочая зона торсионного механизма Kirish o‘lchamlari va panelling og‘irligiga bog‘liq
S, мм Минимальное боковое пространство 120
P, мм Зона расположения потолочного привода Н + 1 185
n, мм Перекрытие проема в открытом положении 190 gacha – shift drayversiz, kirish eni 4 500 gacha; 235 gacha – shift drayversiz, kirish eni 4 500 dan ortiq; 10 gacha – shift drayveri bilan, kirish eni 4 500 gacha; 70 gacha – shift drayveri bilan, kirish eni 4 500 dan ortiq.
Pastki ko‘tarilish, baraban old tomondan (standart yo‘riqnoma komplekti RKTN).

Pastki ko‘tarilish, baraban old tomondan (standart yo‘riqnoma komplekti RKTN).

Усл. обозначение, наименование параметра Расчетная формула
H, мм Высота проема H
h, мм Высота притолоки ≥ 160
B, мм Ширина проема B
A, мм Высота угловой стойки H + 54
Ab, мм Высота оси вала и барабана ≥ A + 59
A1, мм Высота вертикальной направляющей А - 552
A2, мм Высота горизонтальной направляющей А - 115
E, мм Длина горизонтальных направляющих Н + 440
Db, мм Рабочая зона торсионного механизма Kirish o‘lchamlari va panelling og‘irligiga bog‘liq
S, мм Минимальное боковое пространство 120
P, мм Зона расположения потолочного привода Н + 1 185
n, мм Перекрытие проема в открытом положении 245 gacha – shift drayversiz, kirish eni 4 500 gacha; 300 gacha – shift drayversiz, kirish eni 4 500 dan ortiq; 60 gacha – shift drayveri bilan, kirish eni 4 500 gacha; 125 gacha – shift drayveri bilan, kirish eni 4 500 dan ortiq
Pastki ko‘tarilish, baraban orqadan.

Pastki ko‘tarilish, baraban orqadan.

Усл. обозначение, наименование параметра Расчетная формула
H, мм Высота проема H
h, мм Высота притолоки ≥ 150; ≥ 160 (shift drayveri bilan)
B, мм Ширина проема B
A, мм Высота угловой стойки h > 170 bo‘lganda: H + 110; 150 ≤ h ≤ 170 bo‘lganda: H + h - 60
Ab, мм Высота оси вала и барабана h ≤ 170 bo‘lganda: H + 55; 150 ≤ h ≤ 170 bo‘lganda: H + h - 47
A1, мм Высота вертикальной направляющей А - 543
A2, мм Высота горизонтальной направляющей А - 106
E, мм Длина горизонтальных направляющих Н + 510
Db, мм Рабочая зона торсионного механизма Kirish o‘lchamlari va panelling og‘irligiga bog‘liq
S, мм Минимальное боковое пространство 120
P, мм Зона расположения потолочного привода Н + 1 185
n, мм Перекрытие проема в открытом положении 240 (drayversiz); 40...60 (shift drayveri bilan)
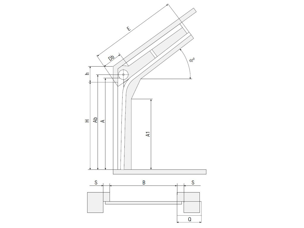
Standart qiyshiq ko‘tarilish.

Standart qiyshiq ko‘tarilish.

Усл. обозначение, наименование параметра Расчетная формула
H, мм Высота проема H
h, мм Высота притолоки > 500
B, мм Ширина проема B
A, мм Высота угловой стойки H + 250…985
Ab, мм Высота оси вала и барабана А + 86/97
A1, мм Высота вертикальной направляющей Н - 300
E, мм Длина горизонтальных направляющих Buning uchun α° burchagiga bog‘liq (o‘rnatish zonasini ichkariga cheklovchi o‘lchov)
Db, мм Рабочая зона торсионного механизма Kirish o‘lchamlari va panelling og‘irligiga bog‘liq
S, мм Минимальное боковое пространство 120
α° Угол наклона направляющих к горизонтали 5...65 (5° ga ko‘paytirilgan)
Q, мм Зона расположения привода на вал 300
Yuqori ko‘tarilish.

Yuqori ko‘tarilish.

Усл. обозначение, наименование параметра Расчетная формула
H, мм Высота проема H
h, мм Высота притолоки ≥ 660
B, мм Ширина проема B
HL, мм Расстояние от уровня горизонтальных направляющих до проема Standart bo‘yicha h - 330
A, мм Высота угловой стойки H + HL
Ab, мм Высота оси вала и барабана A + 86/97
A1, мм Высота вертикальной направляющей А - 580
A2, мм Высота горизонтальной направляющей А - 53
E, мм Длина горизонтальных направляющих H - НL + 470...600
Db, мм Рабочая зона торсионного механизма Kirish o‘lchamlari va panelling og‘irligiga bog‘liq
S, мм Минимальное боковое пространство 120
Q, мм Зона расположения привода на вал 300
Yuqori ko‘tarilish, baraban pastdan.

Yuqori ko‘tarilish, baraban pastdan.

Усл. обозначение, наименование параметра Расчетная формула
H, мм Высота проема H
h, мм Высота притолоки ≥1 600
B, мм Ширина проема B
HL, мм Расстояние от уровня горизонтальных направляющих до проема 1 330 ≤ HL ≤ h - 150
A, мм Высота угловой стойки H + HL
Ab, мм Высота оси вала и барабана H + 400...600 + 280
A1, мм Высота вертикальной направляющей А - 580
A2, мм Высота горизонтальной направляющей А - 53
E, мм Длина горизонтальных направляющих H - НL + 470...600
Db, мм Рабочая зона торсионного механизма Kirish o‘lchamlari va panelling og‘irligiga bog‘liq
S, мм Минимальное боковое пространство ≥ 300
Q, мм Зона расположения привода на вал ≥ 500
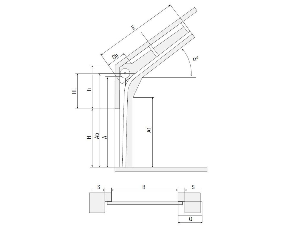
Qiyshiq yuqori ko‘tarilish.

Qiyshiq yuqori ko‘tarilish.

Усл. обозначение, наименование параметра Расчетная формула
H, мм Высота проема H
h, мм Высота притолоки ≥ 660
B, мм Ширина проема B
HL, мм Расстояние от уровня горизонтальных направляющих до проема 330
A, мм Высота угловой стойки H + HL + 15...749
Ab, мм Высота оси вала и барабана ≤ А + 86/97
A1, мм Высота вертикальной направляющей Н + HL - 330...580
E, мм Длина горизонтальных направляющих Buning uchun α° burchagiga bog‘liq (o‘rnatish zonasini ichkariga cheklovchi o‘lchov)
Db, мм Рабочая зона торсионного механизма Kirish o‘lchamlari va panelling og‘irligiga bog‘liq
S, мм Минимальное боковое пространство 120
α° Угол наклона направляющих к горизонтали 5...65 (5° ga ko‘paytirilgan)
Q, мм Зона расположения привода на вал 300
Qiyshiq yuqori ko‘tarilish, baraban pastdan.

Qiyshiq yuqori ko‘tarilish, baraban pastdan.

Усл. обозначение, наименование параметра Расчетная формула
H, мм Высота проема H
h, мм Высота притолоки ≥ 1 600
B, мм Ширина проема B
HL, мм Расстояние от уровня горизонтальных направляющих до проема ≥ 1 330
A, мм Высота угловой стойки H + HL + 15...749
Ab, мм Высота оси вала и барабана > H + 680
A1, мм Высота вертикальной направляющей Н + HL - 330...580
E, мм Длина горизонтальных направляющих Buning uchun α° burchagiga bog‘liq (o‘rnatish zonasini ichkariga cheklovchi o‘lchov)
Db, мм Рабочая зона торсионного механизма Kirish o‘lchamlari va panelling og‘irligiga bog‘liq
S, мм Минимальное боковое пространство 300 min
α° Угол наклона направляющих к горизонтали 5...65 (5° ga ko‘paytirilgan)
Q, мм Зона расположения привода на вал ≥ 650
Vertikal ko‘tarilish.

Vertikal ko‘tarilish.

Усл. обозначение, наименование параметра Расчетная формула
H, мм Высота проема H
h, мм Высота притолоки > Н + 500
B, мм Ширина проема B
A, мм Высота угловой стойки 2H + 120
Ab, мм Высота оси вала и барабана A + 166
S, мм Минимальное боковое пространство 120
Q, мм Зона расположения привода на вал 300
Vertikal ko‘tarilish, baraban pastdan.

Vertikal ko‘tarilish, baraban pastdan.

Усл. обозначение, наименование параметра Расчетная формула
H, мм Высота проема H
h, мм Высота притолоки > H + 120
B, мм Ширина проема B
A, мм Высота угловой стойки 2H + 120
Ab, мм Высота оси вала и барабана H + 680
S, мм Минимальное боковое пространство 500 min
Q, мм Зона расположения привода на вал ≥ 650
Standart ko‘tarilish.

Standart ko‘tarilish.

Усл. обозначение, наименование параметра Расчетная формула
H, мм Высота проема H
h, мм Высота притолоки R381: ≥ 420; R305: ≥ 350
B, мм Ширина проема B
A, мм Высота угловой стойки R381: H + 235; R305: H + 165
Ab, мм Высота оси вала и барабана A + 97
A1, мм Высота вертикальной направляющей R381: A - 580; R305: A - 490
A2, мм Высота горизонтальной направляющей А - 110
E, мм Длина горизонтальных направляющих R381: H + 200; R305: H + 250
Db, мм Рабочая зона торсионного механизма Kirish o‘lchamlari va panelling og‘irligiga bog‘liq
S, мм Минимальное боковое пространство 120
P, мм Зона расположения потолочного привода Н + 1 060
Q, мм Зона расположения привода на вал 300
Параметр Значение Примечание
Сопротивление теплопередаче полотна, м² · °С/Вт, класс (ГОСТ 31174) 1,13 (А) Qiymat eshik o‘lchamiga bog‘liq bo‘lib, 3 500 × 3 000 mm o‘lchamdagi eshiklar uchun ko‘rsatilgan
Звукоизоляция, дБ, класс (ГОСТ 31174) 24 (А)
Сопротивление ветровой нагрузке, Па, класс (ГОСТ 31174) 460 (В)
Усилие ручного открывания и закрывания, Н, не более 260
Предел водонепроницаемости при перепаде давления, Па (ГОСТ 31174) 250
Объемная воздухопроницаемость, м³/м²*ч (ГОСТ 31174) 4,9
Безотказность, количество циклов открывания-закрывания, не менее Eshiklarning ishonchliligi – 120 000, torsion mexanizmining ishonchliligi – 25 000 (standart bo‘yicha)
Вес полотна ворот, кг/м² 13,5 Aniq qiymat eshik konstruktsiyasida ishlatiladigan panellarning tip-o‘lchamiga bog‘liq

1. Eshik polotnosi bo‘laklari yo‘riqnomalar bo‘yicha silliq harakatlanishi kerak, shu bilan birga eshiklar balanslangan bo‘lishi lozim, ya'ni ularning og‘irligi prujinalarning burilish momenti bilan kompensatsiya qilinishi kerak.

2. Eshiklarni qo‘l bilan ochish va yopish faqat tutqich yordamida amalga oshiriladi.

3. Eshiklarni qo‘lda ochish va yopishda ularga katta kuch sarflamang. Keskin tortishishlar taqiqlanadi.

4. Eshiklar ishlayotgan paytda odamlar va hayvonlarning eshiklar ta'sir zonasında bo‘lmasligiga e'tibor bering.

5. Harakatdagi eshik polotnosi ostida harakatlanish qat'iyan man etilgan, chunki bu jarohatlarga olib kelishi mumkin.

6. Eshiklarni zarbalarga duchor qilmang va ularning ochilishi va yopilishi paytida erkin harakat qilishiga to‘sqinlik qilmayin.

7. Polotnoning harakati davomida proyemda tashqi ob'ektlar va axlatning bo‘lmasligiga e'tibor bering. Ularning mavjudligi polotnoning chetlanishiga va yopilishiga olib kelishi mumkin.

8. Yo‘riqnoma va roliklarni ifloslanishga duchor qilmang, chunki bu harakatning silliqligini buzishi mumkin, va agar elektr drayveri mavjud bo‘lsa, bu uning ortiqcha yuklanishiga va nosozligiga olib kelishi mumkin.

Упаковка в картон Характеристики упаковки
Описание Yo‘riqnoma tizimi va sektsiyali eshik shchiti qat'iy kombinatsiyalangan qadoqlashga ega bo‘lib, karton va poliuretan bilan o‘ralgan va stretch-plastik bilan mahkamlangan; montaj uchun to‘plam g‘ofrokarton qutisiga joylashtirilgan va qadoqlash plyonkasi bilan yopilgan; barcha qadoqlarda buyurtma ma'lumotlari va kompaniyaning brend logotipi ko‘rsatilgan axborot yorliqlari mavjud
Состав Karton, poliuretan, stretch-plastik, skotch
Ширина, мм Shchitni qadoqlash – 500 dan 800 gacha
Высота, мм Shchitni qadoqlash – 200 dan 800 gacha
Длина, мм Shchitni qadoqlash – 2 100 dan 8 100 gacha
Вес брутто, кг 1 000 gacha
Количество в упаковке, шт. Shchitni qadoqlash – 3 dan 17 gacha panellar; yo‘riqnoma qadoqlash – 1 ta yo‘riqnoma tizimi; to‘plam qadoqlash – to‘plam bilan quticha (bir nechta bo‘lishi mumkin); qo‘shimcha qadoqlashlar mumkin (ramka, delta-profili va boshqalar).
Qo‘shimcha tavsif chop etish

Sandvich-panellarni ishlab chiqarilganidan so‘ng 6 oydan ko‘p bo‘lmagan muddatgacha, yopiq omborlarda yoki soyada, gorizontal holatda tekis yuzada zavod qadoqlanishida saqlash tavsiya etiladi. Panellar to‘g‘ridan-to‘g‘ri quyosh nurlaridan, atmosferadagi yog‘ingarchilikdan va ifloslanishdan himoyalangan bo‘lishi kerak.

O'rnatish
Montaj usullari
Bino qurilishi uchun tayyorgarlik
Yopish montaji: yo‘riqnoma tizimi kirishning ichki tomonidagi devorlar va pritoloka ustiga o‘rnatiladi.
Yopish montaji: yo‘riqnoma tizimi kirishning ichki tomonidagi devorlar va pritoloka ustiga o‘rnatiladi.
  1. Kerakli ko‘rsatkichlarni olish uchun yetarli bo‘ladi o‘lchov lenta va qurilish darajasi. Barcha o‘lchovlar ichki makonda amalga oshiriladi. Har bir o‘lchovni olish uchun uni kamida uchta nuqtada (oxirgi holatlar va markazda) o‘lchash zarur.
  2. H – kirish balandligi (pol dan kirishning yuqori qismigacha bo‘lgan masofa).
  3. B – kirish eni (kiriyning chapdan o‘ng chetigacha bo‘lgan masofa).
  4. h – pritoloka (kirişning yuqori qismidan shiftgacha bo‘lgan masofa), 150 mm dan.
  5. b1 / b2 – chap/ong yon tomondagi masofa (mos ravishda kiriyning chetidan to‘siqqa qadar bo‘lgan masofa), 120 mm dan.
  6. L – xona chuqurligi.
  7. H va B o‘lchovlari amalga oshirilganda, yakuniy o‘lchov sifatida eng katta qiymat qabul qilinadi.
  8. h, b1, b2 va L o‘lchovlari amalga oshirilganda, yakuniy o‘lchov sifatida eng kichik qiymat qabul qilinadi.
  9. Polning balandlik farqi kirish eni bo‘yicha 10 mm dan ortiq bo‘lmasligi kerak. Montaj yuzasining (devorlar va pritoloka) tekisligini ta'minlash zarur. Yo‘riqnoma tizimini o‘rnatish uchun asos mustahkam va monolit bo‘lishi kerak, agar bunday asos mavjud bo‘lmasa, qo‘shimcha ramka yoki kirishning metall mahsulotlari bilan shakllantirilishi talab qilinadi.
Hujjatlar
Ko'rsatmalar
Pasportlar va sertifikatlar
Chizmalar

ISD01 seriyasidagi sanoat bo'linma eshiklarini o'rnatish bo'yicha qo'llanma

Standart va yuqori turdagi ko'tarishli sektsiyali eshiklarni o'rnatish bo'yicha qo'llanma

"ISD01 Sanoat Sektsiyali Eshiklari" pasporti

"Binolar va Inshootlar Uchun Eshiklar Sertifikati"

"Portlovchi Muhitlarda Ishlash Uchun Sektsion Eshiklar Sertifikati"

"Sandvich Panellariga Moslik Sertifikati"

"Voratlar Uchun Yordamchi Mahsulotlarga Moslik Sertifikati"

"Metall Sektsion Vorotlarga Moslik Sertifikati" (Belarus)

"Expert Xulosa, SanPiNga Moslik"

ISD01, past ko‘tarilish, hisoblangan yo‘riqnoma tizimi

ISD01, past ko‘tarilish, hisoblangan yo‘riqnoma tizimi, proyem ramkasi

ISD01, past ko‘tarilish, hisoblangan yo‘riqnoma tizimi, proyemni shakllantirish

ISD01, past ko‘tarilish, RKTN yo‘riqnoma to‘plamlari

ISD01, past ko‘tarilish, RKTN yo‘riqnoma to‘plamlari, proyem ramkasi

ISD01, past ko‘tarilish, RKTN yo‘riqnoma to‘plamlari, proyemni shakllantirish

ISD01, past ko‘tarilish, baraban orqa tomonda

ISD01, past ko‘tarilish, baraban orqa tomonda, proyem ramkasi

ISD01, past ko‘tarilish, baraban orqa tomonda, proyemni shakllantirish

ISD01, standart ko‘tarilish

ISD01, standart ko‘tarilish, proyem ramkasi

ISD01, standart ko‘tarilish, proyemni shakllantirish

ISD01, standart tayanishli ko‘tarilish

ISD01, standart tayanishli ko‘tarilish, proyem ramkasi

ISD01, standart tayanishli ko‘tarilish, proyemni shakllantirish

ISD01, yuqori ko‘tarilish

ISD01, yuqori ko‘tarilish, proyem ramkasi

ISD01, yuqori ko‘tarilish, proyemni shakllantirish

ISD01, yuqori ko‘tarilish, yo‘riqnomalarning ikki karra egilish bilan

ISD01, yuqori ko‘tarilish, yo‘riqnomalarning ikki karra egilish bilan, proyem ramkasi

ISD01, yuqori ko‘tarilish, yo‘riqnomalarning ikki karra egilish bilan, proyemni shakllantirish

ISD01, yuqori ko‘tarilish, val pastda (silindrik val, 100 × 100 trubaga o‘rnatish)

ISD01, yuqori ko‘tarilish, val pastda (silindrik val, 100 × 100 trubaga o‘rnatish), proyem ramkasi

ISD01, yuqori ko‘tarilish, val pastda (silindrik val, 100 × 100 trubaga o‘rnatish), proyemni shakllantirish

ISD01, yuqori tayanishli ko‘tarilish

ISD01, yuqori tayanishli ko‘tarilish, proyem ramkasi

ISD01, yuqori tayanishli ko‘tarilish, proyemni shakllantirish

ISD01, yuqori tayanishli ko‘tarilish, val pastda (silindrik val, 100 × 100 trubaga o‘rnatish)

ISD01, yuqori tayanishli ko‘tarilish, val pastda (silindrik val, 100 × 100 trubaga o‘rnatish), proyem ramkasi

ISD01, yuqori tayanishli ko‘tarilish, val pastda (silindrik val, 100 × 100 trubaga o‘rnatish), proyemni shakllantirish

ISD01, vertikal ko‘tarilish

ISD01, vertikal ko‘tarilish, proyem ramkasi

ISD01, vertikal ko‘tarilish, proyemni shakllantirish

ISD01, vertikal ko‘tarilish, val pastda (silindrik val, 100 × 100 trubaga o‘rnatish)

ISD01, vertikal ko‘tarilish, val pastda (silindrik val, 100 × 100 trubaga o‘rnatish), proyem ramkasi

ISD01, vertikal ko‘tarilish, val pastda (silindrik val, 100 × 100 trubaga o‘rnatish), proyem shakllantirish

Kalitka va oyna joylashuvi sektsion eshik matosida (Kalitka V4 Standard)

Kalitka va derazalarni sektsiyali eshikning to‘qimalarida joylashtirish (V5 kalitkasi)

Kafolat majburiyatlari chop etish

Mijozga sandvich-panellar va po‘lat profillaridan iborat yo‘riqnoma tizimida teshikdan o‘tgan korroziya bo‘lmasligi uchun 10 yil kafolat taqdim etiladi.

Yangi mahsulotlar
To'liq yangilangan torsion mexanizmining tayanch kranşteynlar tizimi o'rnatish jarayonini sezilarli darajada yengillashtirishga imkon berdi:  Torsion mexanizmni yig'ish holatida qulay o'rnatish va podshipniklarni oldindan o'rnatilgan tashqi trubadagi kranşteynlarga osonlik bilan mahkamlash;  Yulni uzishdan himoya qurilmalarini bevosita tayanch kranşteyniga ulash, o'rnatish moslamalarini ishlatmasdan amalga oshiriladi;  Yangi tizim kranşteynni qamrab oluvchi clamp bilan o'rnatishni taklif qiladi, bu esa o'rnatish jarayonida tayanch kranşteynlarining holatini o'zgartirish imkonini beradi.

To'liq yangilangan torsion mexanizmining tayanch kranşteynlar tizimi o'rnatish jarayonini sezilarli darajada yengillashtirishga imkon berdi: Torsion mexanizmni yig'ish holatida qulay o'rnatish va podshipniklarni oldindan o'rnatilgan tashqi trubadagi kranşteynlarga osonlik bilan mahkamlash; Yulni uzishdan himoya qurilmalarini bevosita tayanch kranşteyniga ulash, o'rnatish moslamalarini ishlatmasdan amalga oshiriladi; Yangi tizim kranşteynni qamrab oluvchi clamp bilan o'rnatishni taklif qiladi, bu esa o'rnatish jarayonida tayanch kranşteynlarining holatini o'zgartirish imkonini beradi.

Yangi sandoch-panellarning ranglari – RAL 8017 va RAL 7016, muzli effektga ega mat yuzaga ega.

Yangi sandoch-panellarning ranglari – RAL 8017 va RAL 7016, muzli effektga ega mat yuzaga ega.

Barcha prujinalarni uzilishidan himoya qurilmalarining butun liniyasi to'liq yangilandi. Yangi konstruktsiya montajni osonlashtirdi va mahsulotning kuchlanish xususiyatlarini 30% ga oshirdi.

Barcha prujinalarni uzilishidan himoya qurilmalarining butun liniyasi to'liq yangilandi. Yangi konstruktsiya montajni osonlashtirdi va mahsulotning kuchlanish xususiyatlarini 30% ga oshirdi.

Yangi amortizatorlar – standart va uzaytirilgan versiyalar. Jim ishlash, keng sozlash diapazoni va deformatsiyalarga qarshi kuchaytirilgan chidamlilik.

Yangi amortizatorlar – standart va uzaytirilgan versiyalar. Jim ishlash, keng sozlash diapazoni va deformatsiyalarga qarshi kuchaytirilgan chidamlilik.

Yangi V5ST eshik – yorug'lik o'chirishlari bilan standart profil to'plamlari asosida past eshik tashqarisi.

Yangi V5ST eshik – yorug'lik o'chirishlari bilan standart profil to'plamlari asosida past eshik tashqarisi.

Dizayn
Panel dizayni
Doska
Doska
Gorizontal chiziq
Gorizontal chiziq
Keng markaziy chiziq
Keng markaziy chiziq
To‘lqin
To‘lqin
Gorizontal chiziq (panelning ichki tomoni)
Gorizontal chiziq (panelning ichki tomoni)
Yuzaki turi
Daraxt qobig‘i (panelning tashqi tomoni)
Daraxt qobig‘i (panelning tashqi tomoni)
Stucco (panelning ichki tomoni)
Stucco (panelning ichki tomoni)
Ranglar
RAL 9003 (oq)
RAL 9003 (oq)
RAL 9006 (kumush)
RAL 9006 (kumush)
RAL 7004 (kulrang)
RAL 7004 (kulrang)
RAL 1014 (bej)
RAL 1014 (bej)
RAL 6005 (yashil)
RAL 6005 (yashil)
RAL 5005 (ko'k)
RAL 5005 (ko'k)
RAL 7016 (antratsit)
RAL 7016 (antratsit)
RAL 7016 (
RAL 7016 ("sovuq", qo'shimcha to'lov)
RAL 3000 (qizil)
RAL 3000 (qizil)
RAL 3005 (bordo)
RAL 3005 (bordo)
RAL 8017 (jigarrang-qizil)
RAL 8017 (jigarrang-qizil)
RAL 8017 (
RAL 8017 ("sovuq", qo'shimcha to'lov)
Oltin eman
Oltin eman
Venge
Venge
RAL kartasiga muvofiq nostandart rang (qo'shimcha haq)
RAL kartasiga muvofiq nostandart rang (qo'shimcha haq)
Komplektatsiya
Bazaviy to'plam
Polotno 40 mm qalinlikdagi energiya samarali sendvich-panellaridan iborat bo‘lib, ichki halqalar va yon tayanchlar uchun mustahkamlashga ega.

Polotno 40 mm qalinlikdagi energiya samarali sendvich-panellaridan iborat bo‘lib, ichki halqalar va yon tayanchlar uchun mustahkamlashga ega.

Yo‘riqnoma va burchakli ustunlar to‘plami 2 mm qalinlikdagi po‘latdan ishlab chiqilgan bo‘lib, ortiqcha mustahkamlik zaxirasiga ega va montaj uchun zarur bo‘lgan barcha perforatsiyalarga ega.

Yo‘riqnoma va burchakli ustunlar to‘plami 2 mm qalinlikdagi po‘latdan ishlab chiqilgan bo‘lib, ortiqcha mustahkamlik zaxirasiga ega va montaj uchun zarur bo‘lgan barcha perforatsiyalarga ega.

Torsion mexanizmi 25 000 tsiklga mo‘ljallangan. Eshik konstruktsiyasining uzoq umr ko‘rishi polotnoning og‘irliksiz ochilishi va yopilishini ta'minlaydi.

Torsion mexanizmi 25 000 tsiklga mo‘ljallangan. Eshik konstruktsiyasining uzoq umr ko‘rishi polotnoning og‘irliksiz ochilishi va yopilishini ta'minlaydi.

Prujina uzilishidan himoya qurilmasi favqulodda holatlarda valni blokirovka qiladi, bu esa eshik polotnoning tushib ketishini oldini oladi.

Prujina uzilishidan himoya qurilmasi favqulodda holatlarda valni blokirovka qiladi, bu esa eshik polotnoning tushib ketishini oldini oladi.

Tros uzilishidan himoya qurilmasi eshik polotnosiga pastki kranştayn sifatida o‘rnatiladi. Tros uzilganda mexanizm ishga tushadi va polotnoning tushib ketishini oldini oladi.

Tros uzilishidan himoya qurilmasi eshik polotnosiga pastki kranştayn sifatida o‘rnatiladi. Tros uzilganda mexanizm ishga tushadi va polotnoning tushib ketishini oldini oladi.

Montaj uchun to‘plam, mahsulot pasporti va montaj bo‘yicha ko‘rsatmalar bilan qutila.

Montaj uchun to‘plam, mahsulot pasporti va montaj bo‘yicha ko‘rsatmalar bilan qutila.

Ergonomik tutqich eshikni oson va qulay ochish va yopishni ta'minlaydi.

Ergonomik tutqich eshikni oson va qulay ochish va yopishni ta'minlaydi.

Qo'shimcha to'plam
Mexanik tutqich polotnoni ichkaridan qulflash imkonini beradi. U oddiylik va ishonchliligi bilan ajralib turadi.

Mexanik tutqich polotnoni ichkaridan qulflash imkonini beradi. U oddiylik va ishonchliligi bilan ajralib turadi.

Maxsus dizaynli derazalar (627 × 327 yoki 607 × 202 mm o‘lchamda) polotnoga zich yopishishini ta'minlaydi, bu esa uni muzlashdan va issiqlik yo‘qotishdan himoya qiladi. Derazalar qora rangdagi ramkalar bilan ishlab chiqariladi.

Maxsus dizaynli derazalar (627 × 327 yoki 607 × 202 mm o‘lchamda) polotnoga zich yopishishini ta'minlaydi, bu esa uni muzlashdan va issiqlik yo‘qotishdan himoya qiladi. Derazalar qora rangdagi ramkalar bilan ishlab chiqariladi.

Mexanik qulflash mexanizmi polotnoni yopiq holatda qulflash imkonini beradi, ham ichkaridan, ham tashqaridan.

Mexanik qulflash mexanizmi polotnoni yopiq holatda qulflash imkonini beradi, ham ichkaridan, ham tashqaridan.

Kalitka takomillashtirilgan konstruktsiyaga ega bo‘lib, yuqori mustahkamlik va estetik tashqi ko‘rinishi bilan ajralib turadi. Shchitning minimal balandligi – 2 130 mm.

Kalitka takomillashtirilgan konstruktsiyaga ega bo‘lib, yuqori mustahkamlik va estetik tashqi ko‘rinishi bilan ajralib turadi. Shchitning minimal balandligi – 2 130 mm.

Eshiklarni avtomatlashtirish imkoniyati drayverlar va xavfsizlik tizimlari bilan (qarang «Eshiklar uchun avtomatika» bo‘limi).

Eshiklarni avtomatlashtirish imkoniyati drayverlar va xavfsizlik tizimlari bilan (qarang «Eshiklar uchun avtomatika» bo‘limi).

Qo‘l tasmali drayver barcha turdagi sanoat eshiklariga o‘rnatiladi va eshik polotnosini qo‘lda ko‘tarish va tushirish uchun mo‘ljallangan.

Qo‘l tasmali drayver barcha turdagi sanoat eshiklariga o‘rnatiladi va eshik polotnosini qo‘lda ko‘tarish va tushirish uchun mo‘ljallangan.

Torsion mexanizmi, 100 000 tsiklga qadar xizmat qilish uchun mo‘ljallangan.

Torsion mexanizmi, 100 000 tsiklga qadar xizmat qilish uchun mo‘ljallangan.

Anti-korroziya butlovchi qismlar to‘plamini yuqori namlik sharoitlarida ishlatiladigan eshiklar uchun ishonchli korroziyaga qarshi himoya va eshikning barqaror ishlashini ta'minlash maqsadida o‘rnatish tavsiya etiladi. Ushbu to‘plam oshirilgan xizmat muddatiga ega bo‘lib, quyidagilarni o‘z ichiga oladi: bo‘yalgan prujina, bo‘yalgan yo‘riqnoma, zanglamaydigan yon tayanchlar, halqalar va o‘tkazgichlar, zanglamaydigan tros, bo‘yalgan yon qoplamalar.

Anti-korroziya butlovchi qismlar to‘plamini yuqori namlik sharoitlarida ishlatiladigan eshiklar uchun ishonchli korroziyaga qarshi himoya va eshikning barqaror ishlashini ta'minlash maqsadida o‘rnatish tavsiya etiladi. Ushbu to‘plam oshirilgan xizmat muddatiga ega bo‘lib, quyidagilarni o‘z ichiga oladi: bo‘yalgan prujina, bo‘yalgan yo‘riqnoma, zanglamaydigan yon tayanchlar, halqalar va o‘tkazgichlar, zanglamaydigan tros, bo‘yalgan yon qoplamalar.

Qo‘shimcha tashqi muhr konturi polotnoning muhrga maksimal yopishishini ta'minlaydi. Muhrlar o‘rtasida hosil bo‘ladigan havo kamerası eng yaxshi izolyatsiyani ta'minlaydi, xonaga sovuqning kirishiga to‘sqinlik qiladi.

Qo‘shimcha tashqi muhr konturi polotnoning muhrga maksimal yopishishini ta'minlaydi. Muhrlar o‘rtasida hosil bo‘ladigan havo kamerası eng yaxshi izolyatsiyani ta'minlaydi, xonaga sovuqning kirishiga to‘sqinlik qiladi.

«Termopaketi» opsiyasi T-bridge texnologiyasidan foydalanilgan holda yuqori (pastki) alyuminiy profilini o‘rnatishni nazarda tutadi, bu esa issiqlik yo‘qotilishini oldini olish imkonini beradi.

«Termopaketi» opsiyasi T-bridge texnologiyasidan foydalanilgan holda yuqori (pastki) alyuminiy profilini o‘rnatishni nazarda tutadi, bu esa issiqlik yo‘qotilishini oldini olish imkonini beradi.

Izkronedaydigan sektsiyali eshiklar ishlab chiqarish korxonalari uchun portlash xavfli muhitlarda qo‘llaniladi. Ushbu modifikatsiyada ishlatiladigan konstruktsion yechimlar ekspluatatsiya davomida iskra hosil bo‘lishini oldini olishga va konstruktsiyaning tugunlarida xavfli elektrostatik zaryadlarning to‘planishiga yo‘l qo‘ymaslikka imkon beradi.

Izkronedaydigan sektsiyali eshiklar ishlab chiqarish korxonalari uchun portlash xavfli muhitlarda qo‘llaniladi. Ushbu modifikatsiyada ishlatiladigan konstruktsion yechimlar ekspluatatsiya davomida iskra hosil bo‘lishini oldini olishga va konstruktsiyaning tugunlarida xavfli elektrostatik zaryadlarning to‘planishiga yo‘l qo‘ymaslikka imkon beradi.

Texnik tavsif
O'lchamlar jadvali
Параметр
Показатель
Высота проема, мм
2 000–8 000
Ширина проема, мм
1 100–8 000
Притолока, мм
150 dan
Пристенки, мм
120 dan
Konstruktsiya
  1. Vertikal yo‘riqnoma
  2. Burchakli ustun
  3. Val silindrik
  4. Prujina uzilishidan himoya qurilmasi
  5. Baraban
  6. P-shaklidagi kranştayn
  7. Balanslashadigan prujinali mexanizm (torsion prujinasi)
  8. Ulanish muftasi
  9. Ichki tayanch kranştayni
  10. Yuqori tayanch, rolik ushlagichi bilan
  11. Yon tayanch, rolik ushlagichi bilan
  12. Kuchaytiruvchi delta-profili
  13. Tros uzilishidan himoya qurilmasi
  14. Sendvich-panel
  15. Ichki halqa
  16. Pastki profil va muhr
  17. Yon muhr
  18. Yuqori profil
  19. Yuqori muhr
  20. Yon qoplama, o'rnatish uchun teshiklari bilan
  21. «Stupenka» tutqichi
  22. Prujinali amortizator
  23. Shiftga o‘rnatish uchun kranştayn
Standart konstruktiv yechimlar

Pastki ko‘tarilish, baraban old tomondan.

Pastki ko‘tarilish, baraban old tomondan.

Усл. обозначение, наименование параметра Расчетная формула
H, мм Высота проема H
h, мм Высота притолоки ≥ 230; ≥ 260 (shift drayveri bilan); ≥ 280 (H ≥ 3 700 bo‘lganda); ≥ 280 (val drayveri bilan, H < 3 700 bo‘lganda).
B, мм Ширина проема B
A, мм Высота угловой стойки H + 110
Ab, мм Высота оси вала и барабана ≥ A + 59
A1, мм Высота вертикальной направляющей А - 543
A2, мм Высота горизонтальной направляющей А - 106
E, мм Длина горизонтальных направляющих Н + 300
Db, мм Рабочая зона торсионного механизма Kirish o‘lchamlari va panelling og‘irligiga bog‘liq
S, мм Минимальное боковое пространство 120
P, мм Зона расположения потолочного привода Н + 1 185
n, мм Перекрытие проема в открытом положении 190 gacha – shift drayversiz, kirish eni 4 500 gacha; 235 gacha – shift drayversiz, kirish eni 4 500 dan ortiq; 10 gacha – shift drayveri bilan, kirish eni 4 500 gacha; 70 gacha – shift drayveri bilan, kirish eni 4 500 dan ortiq.
Pastki ko‘tarilish, baraban old tomondan (standart yo‘riqnoma komplekti RKTN).

Pastki ko‘tarilish, baraban old tomondan (standart yo‘riqnoma komplekti RKTN).

Усл. обозначение, наименование параметра Расчетная формула
H, мм Высота проема H
h, мм Высота притолоки ≥ 160
B, мм Ширина проема B
A, мм Высота угловой стойки H + 54
Ab, мм Высота оси вала и барабана ≥ A + 59
A1, мм Высота вертикальной направляющей А - 552
A2, мм Высота горизонтальной направляющей А - 115
E, мм Длина горизонтальных направляющих Н + 440
Db, мм Рабочая зона торсионного механизма Kirish o‘lchamlari va panelling og‘irligiga bog‘liq
S, мм Минимальное боковое пространство 120
P, мм Зона расположения потолочного привода Н + 1 185
n, мм Перекрытие проема в открытом положении 245 gacha – shift drayversiz, kirish eni 4 500 gacha; 300 gacha – shift drayversiz, kirish eni 4 500 dan ortiq; 60 gacha – shift drayveri bilan, kirish eni 4 500 gacha; 125 gacha – shift drayveri bilan, kirish eni 4 500 dan ortiq
Pastki ko‘tarilish, baraban orqadan.

Pastki ko‘tarilish, baraban orqadan.

Усл. обозначение, наименование параметра Расчетная формула
H, мм Высота проема H
h, мм Высота притолоки ≥ 150; ≥ 160 (shift drayveri bilan)
B, мм Ширина проема B
A, мм Высота угловой стойки h > 170 bo‘lganda: H + 110; 150 ≤ h ≤ 170 bo‘lganda: H + h - 60
Ab, мм Высота оси вала и барабана h ≤ 170 bo‘lganda: H + 55; 150 ≤ h ≤ 170 bo‘lganda: H + h - 47
A1, мм Высота вертикальной направляющей А - 543
A2, мм Высота горизонтальной направляющей А - 106
E, мм Длина горизонтальных направляющих Н + 510
Db, мм Рабочая зона торсионного механизма Kirish o‘lchamlari va panelling og‘irligiga bog‘liq
S, мм Минимальное боковое пространство 120
P, мм Зона расположения потолочного привода Н + 1 185
n, мм Перекрытие проема в открытом положении 240 (drayversiz); 40...60 (shift drayveri bilan)
Standart qiyshiq ko‘tarilish.

Standart qiyshiq ko‘tarilish.

Усл. обозначение, наименование параметра Расчетная формула
H, мм Высота проема H
h, мм Высота притолоки > 500
B, мм Ширина проема B
A, мм Высота угловой стойки H + 250…985
Ab, мм Высота оси вала и барабана А + 86/97
A1, мм Высота вертикальной направляющей Н - 300
E, мм Длина горизонтальных направляющих Buning uchun α° burchagiga bog‘liq (o‘rnatish zonasini ichkariga cheklovchi o‘lchov)
Db, мм Рабочая зона торсионного механизма Kirish o‘lchamlari va panelling og‘irligiga bog‘liq
S, мм Минимальное боковое пространство 120
α° Угол наклона направляющих к горизонтали 5...65 (5° ga ko‘paytirilgan)
Q, мм Зона расположения привода на вал 300
Yuqori ko‘tarilish.

Yuqori ko‘tarilish.

Усл. обозначение, наименование параметра Расчетная формула
H, мм Высота проема H
h, мм Высота притолоки ≥ 660
B, мм Ширина проема B
HL, мм Расстояние от уровня горизонтальных направляющих до проема Standart bo‘yicha h - 330
A, мм Высота угловой стойки H + HL
Ab, мм Высота оси вала и барабана A + 86/97
A1, мм Высота вертикальной направляющей А - 580
A2, мм Высота горизонтальной направляющей А - 53
E, мм Длина горизонтальных направляющих H - НL + 470...600
Db, мм Рабочая зона торсионного механизма Kirish o‘lchamlari va panelling og‘irligiga bog‘liq
S, мм Минимальное боковое пространство 120
Q, мм Зона расположения привода на вал 300
Yuqori ko‘tarilish, baraban pastdan.

Yuqori ko‘tarilish, baraban pastdan.

Усл. обозначение, наименование параметра Расчетная формула
H, мм Высота проема H
h, мм Высота притолоки ≥1 600
B, мм Ширина проема B
HL, мм Расстояние от уровня горизонтальных направляющих до проема 1 330 ≤ HL ≤ h - 150
A, мм Высота угловой стойки H + HL
Ab, мм Высота оси вала и барабана H + 400...600 + 280
A1, мм Высота вертикальной направляющей А - 580
A2, мм Высота горизонтальной направляющей А - 53
E, мм Длина горизонтальных направляющих H - НL + 470...600
Db, мм Рабочая зона торсионного механизма Kirish o‘lchamlari va panelling og‘irligiga bog‘liq
S, мм Минимальное боковое пространство ≥ 300
Q, мм Зона расположения привода на вал ≥ 500
Qiyshiq yuqori ko‘tarilish.

Qiyshiq yuqori ko‘tarilish.

Усл. обозначение, наименование параметра Расчетная формула
H, мм Высота проема H
h, мм Высота притолоки ≥ 660
B, мм Ширина проема B
HL, мм Расстояние от уровня горизонтальных направляющих до проема 330
A, мм Высота угловой стойки H + HL + 15...749
Ab, мм Высота оси вала и барабана ≤ А + 86/97
A1, мм Высота вертикальной направляющей Н + HL - 330...580
E, мм Длина горизонтальных направляющих Buning uchun α° burchagiga bog‘liq (o‘rnatish zonasini ichkariga cheklovchi o‘lchov)
Db, мм Рабочая зона торсионного механизма Kirish o‘lchamlari va panelling og‘irligiga bog‘liq
S, мм Минимальное боковое пространство 120
α° Угол наклона направляющих к горизонтали 5...65 (5° ga ko‘paytirilgan)
Q, мм Зона расположения привода на вал 300
Qiyshiq yuqori ko‘tarilish, baraban pastdan.

Qiyshiq yuqori ko‘tarilish, baraban pastdan.

Усл. обозначение, наименование параметра Расчетная формула
H, мм Высота проема H
h, мм Высота притолоки ≥ 1 600
B, мм Ширина проема B
HL, мм Расстояние от уровня горизонтальных направляющих до проема ≥ 1 330
A, мм Высота угловой стойки H + HL + 15...749
Ab, мм Высота оси вала и барабана > H + 680
A1, мм Высота вертикальной направляющей Н + HL - 330...580
E, мм Длина горизонтальных направляющих Buning uchun α° burchagiga bog‘liq (o‘rnatish zonasini ichkariga cheklovchi o‘lchov)
Db, мм Рабочая зона торсионного механизма Kirish o‘lchamlari va panelling og‘irligiga bog‘liq
S, мм Минимальное боковое пространство 300 min
α° Угол наклона направляющих к горизонтали 5...65 (5° ga ko‘paytirilgan)
Q, мм Зона расположения привода на вал ≥ 650
Vertikal ko‘tarilish.

Vertikal ko‘tarilish.

Усл. обозначение, наименование параметра Расчетная формула
H, мм Высота проема H
h, мм Высота притолоки > Н + 500
B, мм Ширина проема B
A, мм Высота угловой стойки 2H + 120
Ab, мм Высота оси вала и барабана A + 166
S, мм Минимальное боковое пространство 120
Q, мм Зона расположения привода на вал 300
Vertikal ko‘tarilish, baraban pastdan.

Vertikal ko‘tarilish, baraban pastdan.

Усл. обозначение, наименование параметра Расчетная формула
H, мм Высота проема H
h, мм Высота притолоки > H + 120
B, мм Ширина проема B
A, мм Высота угловой стойки 2H + 120
Ab, мм Высота оси вала и барабана H + 680
S, мм Минимальное боковое пространство 500 min
Q, мм Зона расположения привода на вал ≥ 650
Standart ko‘tarilish.

Standart ko‘tarilish.

Усл. обозначение, наименование параметра Расчетная формула
H, мм Высота проема H
h, мм Высота притолоки R381: ≥ 420; R305: ≥ 350
B, мм Ширина проема B
A, мм Высота угловой стойки R381: H + 235; R305: H + 165
Ab, мм Высота оси вала и барабана A + 97
A1, мм Высота вертикальной направляющей R381: A - 580; R305: A - 490
A2, мм Высота горизонтальной направляющей А - 110
E, мм Длина горизонтальных направляющих R381: H + 200; R305: H + 250
Db, мм Рабочая зона торсионного механизма Kirish o‘lchamlari va panelling og‘irligiga bog‘liq
S, мм Минимальное боковое пространство 120
P, мм Зона расположения потолочного привода Н + 1 060
Q, мм Зона расположения привода на вал 300
Texnik xususiyatlar
Параметр Значение Примечание
Сопротивление теплопередаче полотна, м² · °С/Вт, класс (ГОСТ 31174) 1,13 (А) Qiymat eshik o‘lchamiga bog‘liq bo‘lib, 3 500 × 3 000 mm o‘lchamdagi eshiklar uchun ko‘rsatilgan
Звукоизоляция, дБ, класс (ГОСТ 31174) 24 (А)
Сопротивление ветровой нагрузке, Па, класс (ГОСТ 31174) 460 (В)
Усилие ручного открывания и закрывания, Н, не более 260
Предел водонепроницаемости при перепаде давления, Па (ГОСТ 31174) 250
Объемная воздухопроницаемость, м³/м²*ч (ГОСТ 31174) 4,9
Безотказность, количество циклов открывания-закрывания, не менее Eshiklarning ishonchliligi – 120 000, torsion mexanizmining ishonchliligi – 25 000 (standart bo‘yicha)
Вес полотна ворот, кг/м² 13,5 Aniq qiymat eshik konstruktsiyasida ishlatiladigan panellarning tip-o‘lchamiga bog‘liq
Mahsulotni ishlatish shartlari

1. Eshik polotnosi bo‘laklari yo‘riqnomalar bo‘yicha silliq harakatlanishi kerak, shu bilan birga eshiklar balanslangan bo‘lishi lozim, ya'ni ularning og‘irligi prujinalarning burilish momenti bilan kompensatsiya qilinishi kerak.

2. Eshiklarni qo‘l bilan ochish va yopish faqat tutqich yordamida amalga oshiriladi.

3. Eshiklarni qo‘lda ochish va yopishda ularga katta kuch sarflamang. Keskin tortishishlar taqiqlanadi.

4. Eshiklar ishlayotgan paytda odamlar va hayvonlarning eshiklar ta'sir zonasında bo‘lmasligiga e'tibor bering.

5. Harakatdagi eshik polotnosi ostida harakatlanish qat'iyan man etilgan, chunki bu jarohatlarga olib kelishi mumkin.

6. Eshiklarni zarbalarga duchor qilmang va ularning ochilishi va yopilishi paytida erkin harakat qilishiga to‘sqinlik qilmayin.

7. Polotnoning harakati davomida proyemda tashqi ob'ektlar va axlatning bo‘lmasligiga e'tibor bering. Ularning mavjudligi polotnoning chetlanishiga va yopilishiga olib kelishi mumkin.

8. Yo‘riqnoma va roliklarni ifloslanishga duchor qilmang, chunki bu harakatning silliqligini buzishi mumkin, va agar elektr drayveri mavjud bo‘lsa, bu uning ortiqcha yuklanishiga va nosozligiga olib kelishi mumkin.

Qadoqlash
Упаковка в картон Характеристики упаковки
Описание Yo‘riqnoma tizimi va sektsiyali eshik shchiti qat'iy kombinatsiyalangan qadoqlashga ega bo‘lib, karton va poliuretan bilan o‘ralgan va stretch-plastik bilan mahkamlangan; montaj uchun to‘plam g‘ofrokarton qutisiga joylashtirilgan va qadoqlash plyonkasi bilan yopilgan; barcha qadoqlarda buyurtma ma'lumotlari va kompaniyaning brend logotipi ko‘rsatilgan axborot yorliqlari mavjud
Состав Karton, poliuretan, stretch-plastik, skotch
Ширина, мм Shchitni qadoqlash – 500 dan 800 gacha
Высота, мм Shchitni qadoqlash – 200 dan 800 gacha
Длина, мм Shchitni qadoqlash – 2 100 dan 8 100 gacha
Вес брутто, кг 1 000 gacha
Количество в упаковке, шт. Shchitni qadoqlash – 3 dan 17 gacha panellar; yo‘riqnoma qadoqlash – 1 ta yo‘riqnoma tizimi; to‘plam qadoqlash – to‘plam bilan quticha (bir nechta bo‘lishi mumkin); qo‘shimcha qadoqlashlar mumkin (ramka, delta-profili va boshqalar).
Qo‘shimcha tavsif

Sandvich-panellarni ishlab chiqarilganidan so‘ng 6 oydan ko‘p bo‘lmagan muddatgacha, yopiq omborlarda yoki soyada, gorizontal holatda tekis yuzada zavod qadoqlanishida saqlash tavsiya etiladi. Panellar to‘g‘ridan-to‘g‘ri quyosh nurlaridan, atmosferadagi yog‘ingarchilikdan va ifloslanishdan himoyalangan bo‘lishi kerak.

O'rnatish
Montaj usullari
Yopish montaji: yo‘riqnoma tizimi kirishning ichki tomonidagi devorlar va pritoloka ustiga o‘rnatiladi.
Yopish montaji: yo‘riqnoma tizimi kirishning ichki tomonidagi devorlar va pritoloka ustiga o‘rnatiladi.
Bino qurilishi uchun tayyorgarlik
  1. Kerakli ko‘rsatkichlarni olish uchun yetarli bo‘ladi o‘lchov lenta va qurilish darajasi. Barcha o‘lchovlar ichki makonda amalga oshiriladi. Har bir o‘lchovni olish uchun uni kamida uchta nuqtada (oxirgi holatlar va markazda) o‘lchash zarur.
  2. H – kirish balandligi (pol dan kirishning yuqori qismigacha bo‘lgan masofa).
  3. B – kirish eni (kiriyning chapdan o‘ng chetigacha bo‘lgan masofa).
  4. h – pritoloka (kirişning yuqori qismidan shiftgacha bo‘lgan masofa), 150 mm dan.
  5. b1 / b2 – chap/ong yon tomondagi masofa (mos ravishda kiriyning chetidan to‘siqqa qadar bo‘lgan masofa), 120 mm dan.
  6. L – xona chuqurligi.
  7. H va B o‘lchovlari amalga oshirilganda, yakuniy o‘lchov sifatida eng katta qiymat qabul qilinadi.
  8. h, b1, b2 va L o‘lchovlari amalga oshirilganda, yakuniy o‘lchov sifatida eng kichik qiymat qabul qilinadi.
  9. Polning balandlik farqi kirish eni bo‘yicha 10 mm dan ortiq bo‘lmasligi kerak. Montaj yuzasining (devorlar va pritoloka) tekisligini ta'minlash zarur. Yo‘riqnoma tizimini o‘rnatish uchun asos mustahkam va monolit bo‘lishi kerak, agar bunday asos mavjud bo‘lmasa, qo‘shimcha ramka yoki kirishning metall mahsulotlari bilan shakllantirilishi talab qilinadi.
Kafolat majburiyatlari

Mijozga sandvich-panellar va po‘lat profillaridan iborat yo‘riqnoma tizimida teshikdan o‘tgan korroziya bo‘lmasligi uchun 10 yil kafolat taqdim etiladi.

Hujjatlar
Ko'rsatmalar

ISD01 seriyasidagi sanoat bo'linma eshiklarini o'rnatish bo'yicha qo'llanma

Standart va yuqori turdagi ko'tarishli sektsiyali eshiklarni o'rnatish bo'yicha qo'llanma

Pasportlar va sertifikatlar

"ISD01 Sanoat Sektsiyali Eshiklari" pasporti

"Binolar va Inshootlar Uchun Eshiklar Sertifikati"

"Portlovchi Muhitlarda Ishlash Uchun Sektsion Eshiklar Sertifikati"

"Sandvich Panellariga Moslik Sertifikati"

"Voratlar Uchun Yordamchi Mahsulotlarga Moslik Sertifikati"

"Metall Sektsion Vorotlarga Moslik Sertifikati" (Belarus)

"Expert Xulosa, SanPiNga Moslik"

Chizmalar

ISD01, past ko‘tarilish, hisoblangan yo‘riqnoma tizimi

ISD01, past ko‘tarilish, hisoblangan yo‘riqnoma tizimi, proyem ramkasi

ISD01, past ko‘tarilish, hisoblangan yo‘riqnoma tizimi, proyemni shakllantirish

ISD01, past ko‘tarilish, RKTN yo‘riqnoma to‘plamlari

ISD01, past ko‘tarilish, RKTN yo‘riqnoma to‘plamlari, proyem ramkasi

ISD01, past ko‘tarilish, RKTN yo‘riqnoma to‘plamlari, proyemni shakllantirish

ISD01, past ko‘tarilish, baraban orqa tomonda

ISD01, past ko‘tarilish, baraban orqa tomonda, proyem ramkasi

ISD01, past ko‘tarilish, baraban orqa tomonda, proyemni shakllantirish

ISD01, standart ko‘tarilish

ISD01, standart ko‘tarilish, proyem ramkasi

ISD01, standart ko‘tarilish, proyemni shakllantirish

ISD01, standart tayanishli ko‘tarilish

ISD01, standart tayanishli ko‘tarilish, proyem ramkasi

ISD01, standart tayanishli ko‘tarilish, proyemni shakllantirish

ISD01, yuqori ko‘tarilish

ISD01, yuqori ko‘tarilish, proyem ramkasi

ISD01, yuqori ko‘tarilish, proyemni shakllantirish

ISD01, yuqori ko‘tarilish, yo‘riqnomalarning ikki karra egilish bilan

ISD01, yuqori ko‘tarilish, yo‘riqnomalarning ikki karra egilish bilan, proyem ramkasi

ISD01, yuqori ko‘tarilish, yo‘riqnomalarning ikki karra egilish bilan, proyemni shakllantirish

ISD01, yuqori ko‘tarilish, val pastda (silindrik val, 100 × 100 trubaga o‘rnatish)

ISD01, yuqori ko‘tarilish, val pastda (silindrik val, 100 × 100 trubaga o‘rnatish), proyem ramkasi

ISD01, yuqori ko‘tarilish, val pastda (silindrik val, 100 × 100 trubaga o‘rnatish), proyemni shakllantirish

ISD01, yuqori tayanishli ko‘tarilish

ISD01, yuqori tayanishli ko‘tarilish, proyem ramkasi

ISD01, yuqori tayanishli ko‘tarilish, proyemni shakllantirish

ISD01, yuqori tayanishli ko‘tarilish, val pastda (silindrik val, 100 × 100 trubaga o‘rnatish)

ISD01, yuqori tayanishli ko‘tarilish, val pastda (silindrik val, 100 × 100 trubaga o‘rnatish), proyem ramkasi

ISD01, yuqori tayanishli ko‘tarilish, val pastda (silindrik val, 100 × 100 trubaga o‘rnatish), proyemni shakllantirish

ISD01, vertikal ko‘tarilish

ISD01, vertikal ko‘tarilish, proyem ramkasi

ISD01, vertikal ko‘tarilish, proyemni shakllantirish

ISD01, vertikal ko‘tarilish, val pastda (silindrik val, 100 × 100 trubaga o‘rnatish)

ISD01, vertikal ko‘tarilish, val pastda (silindrik val, 100 × 100 trubaga o‘rnatish), proyem ramkasi

ISD01, vertikal ko‘tarilish, val pastda (silindrik val, 100 × 100 trubaga o‘rnatish), proyem shakllantirish

Kalitka va oyna joylashuvi sektsion eshik matosida (Kalitka V4 Standard)

Kalitka va derazalarni sektsiyali eshikning to‘qimalarida joylashtirish (V5 kalitkasi)

Buyurtma berish
Kompaniya menejerlari barcha savollaringizga telefon orqali javob berishadi::