Catalog

AD-SP drayveri uchun avtomatik suriladigan eshik to‘plami (bitta harakatlanuvchi, bitta harakatsiz qopqoq va yuqoridan framuga)

Zamonaviy arxitektura tobora ko'proq keng ko'lamli va ochiq maydonlardan, jumladan, juda baland va keng kirish o'tish joylaridan foydalanishni nazarda tutadi. Bunday ulug'vor loyihalar uchun DoorHan konserni kuchli va nafis yechimni taklif etadi — bitta harakatlanuvchi, bitta harakatsiz stvorkali va yuqori framugali avtomatik surilma eshiklar to'plami. Ushbu tizim balandligi 4 metrgacha va kengligi 6.2 metrgacha bo'lgan kirish joylarini benuqson avtomatlashtirish imkonini beradi, bu uni savdo-ko'ngilochar markazlar, avtosalonlar, aeroportlar, vokzallar va mehmonxona majmualari uchun ideal tanlovga aylantiradi.

Nostandart vazifalar uchun muhandislik mukammalligi. Biz murakkab me'moriy sharoitlarga osongina moslashadigan konstruksiyani ishlab chiqdik:

  • Baland o'tish joylari uchun yechim: Yuqori harakatsiz framuga eshikni baland o'tish joyiga uyg'un tarzda joylashtirish imkonini beradi, bunda harakatlanuvchi stvorkaning standart va qulay balandligi saqlanib qoladi. Bu privodning barqaror ishlashini va butun konstruksiyaning estetik ko'rinishini ta'minlaydi.
  • Pritoloka yo'qligi: Tizim hatto yuqori yuk ko'taruvchi to'sin (pritoloka) mavjud bo'lmagan o'tish joylariga ham montaj qilish uchun loyihalashtirilgan, bu uning qo'llanilish doirasini sezilarli darajada kengaytiradi.
  • Tez montaj va ko'proq yorug'lik: Profillarning noyob mexanik birikma texnologiyasi nafaqat ob'ektda yig'ish jarayonini sezilarli darajada tezlashtiradi, balki yupqaroq va nafisroq ramkalardan foydalanish imkonini beradi. Bu oynalangan maydonni kengaytiradi, kirishni yorug'roq va mehmondo'st qiladi.

To'liq nazorat va boshqaruvda moslashuvchanlik. Eshik AD-SP privodi asosidagi intellektual boshqaruv tizimi bilan jihozlangan. Qulay displeyli rejimlar o'zgartirgichi yordamida operator eshikni har qanday vaziyatga moslashtirish uchun oltita ish algoritmidan birini tanlashi mumkin: ikki tomonga to'liq avtomatik o'tishdan tortib, issiqlikni tejash uchun "qishki" rejim yoki tunda to'liq bloklashgacha.

Ishonchlilik va iqtisodiy foyda. Biz o'rnatishga to'liq tayyor bo'lgan to'plamni yetkazib beramiz, unga barcha komponentlar kiradi — dvigatel va kontrollerdan tortib datchiklar va profillargacha. Bu ularning ideal mosligini va uzluksiz uzoq muddatli ishlashini kafolatlaydi. Konstruksiyani optimallashtirish bizga metall sig'imini kamaytirish va bunday ko'lamdagi yechimlar uchun bozorda eng jozibador narxlardan birini taklif qilish imkonini berdi. Mahsulotimiz sifati butun tizimga ikki yillik kafolat bilan tasdiqlangan. DoorHan'ni tanlab, siz eng dadil me'moriy g'oyalar uchun zamonaviy, ishonchli va estetik yechimga ega bo'lasiz.


Qo'llanilish sohasi:
Savdo va biznes markazlari
Xususiy sektor
Afzalliklar
Funktsionallik
Mahsulotni olti rejimda ishlatish imkoniyati odamlar o‘tish tartibini tashkil etishda har qanday vazifani hal qilish imkonini beradi.
Qopqoq to‘ldiruvining xilma-xilligi
Qopqoqni 8 yoki 9 mm qalinlikdagi xavfsiz shishani yoki 24 mm li shishali paket bilan to‘ldirish imkoniyati.
Oson yig‘ilish
Yunik dryukli ulanish qopqoqlarni yig‘ish va mahsulotni umumiy montajini sezilarli darajada qisqartirishga imkon beradi, shuningdek, yoritilish bo‘shlig‘ini oshiradi.
Mahsulot konstruktsiyalari va sinflarining xilma-xilligi
Afzallik har qanday o'chish uchun optimal konstruktsiyani tanlash imkonini beradi: ustun va devor yonqalari yo‘qligida, devor yonqalari cheklangan (yetarli emas) kenglikda, boshqa chiqishlar yo‘qligida.
Jozibador narx
Metall iste'molini kamaytirish va profil tizimini optimallashtirish hisobiga mahsulot jozibador narxga ega.
Funktsionallik
Mahsulotni olti rejimda ishlatish imkoniyati odamlar o‘tish tartibini tashkil etishda har qanday vazifani hal qilish imkonini beradi.
Qopqoq to‘ldiruvining xilma-xilligi
Qopqoqni 8 yoki 9 mm qalinlikdagi xavfsiz shishani yoki 24 mm li shishali paket bilan to‘ldirish imkoniyati.
Oson yig‘ilish
Yunik dryukli ulanish qopqoqlarni yig‘ish va mahsulotni umumiy montajini sezilarli darajada qisqartirishga imkon beradi, shuningdek, yoritilish bo‘shlig‘ini oshiradi.
Mahsulot konstruktsiyalari va sinflarining xilma-xilligi
Afzallik har qanday o'chish uchun optimal konstruktsiyani tanlash imkonini beradi: ustun va devor yonqalari yo‘qligida, devor yonqalari cheklangan (yetarli emas) kenglikda, boshqa chiqishlar yo‘qligida.
Jozibador narx
Metall iste'molini kamaytirish va profil tizimini optimallashtirish hisobiga mahsulot jozibador narxga ega.
Dizayn
To‘ldirish dizayni
Standart ranglar
Qopqoqlarning ikkala tomondan bo‘yalmaganligi. Har qanday turdagi to‘ldirish, 8, 9 va 24 mm qalinlikda.
Qopqoqlarning ikkala tomondan bo‘yalmaganligi. Har qanday turdagi to‘ldirish, 8, 9 va 24 mm qalinlikda.
RAL 9016 (oq)
RAL 9016 (oq)
RAL 9006 (silliq metall)
RAL 9006 (silliq metall)
RAL 7004 (kulrang)
RAL 7004 (kulrang)
RAL 1014 (bej)
RAL 1014 (bej)
RAL 2004 (to'q sariq)
RAL 2004 (to'q sariq)
RAL 3020 (qizil)
RAL 3020 (qizil)
RAL 3005 (bordo)
RAL 3005 (bordo)
RAL 6018 (ochiq yashil)
RAL 6018 (ochiq yashil)
RAL 6005 (yashil)
RAL 6005 (yashil)
RAL 7016 (antratsit)
RAL 7016 (antratsit)
RAL 5005 (ko'k)
RAL 5005 (ko'k)
RAL 8017 (jigarrang-qizil)
RAL 8017 (jigarrang-qizil)
RAL 9005 (qora)
RAL 9005 (qora)
RAL 8014 (jigarrang)
RAL 8014 (jigarrang)
Komplektatsiya
Bazaviy to'plam
Qo'shimcha to'plam
Elektr dvigateli (art. AD-01SP)

Elektr dvigateli (art. AD-01SP)

Kontroller (art. AD-03SP)

Kontroller (art. AD-03SP)

Rejimlarni o‘zgartirish tugmasi displey bilan (art. AD-08SP)

Rejimlarni o‘zgartirish tugmasi displey bilan (art. AD-08SP)

Harakat sensori (art. AD-06, 1 dona)

Harakat sensori (art. AD-06, 1 dona)

Harakat va xavfsizlik kombinatsiyalashgan sensori (art. AD-34, 1 dona)

Harakat va xavfsizlik kombinatsiyalashgan sensori (art. AD-34, 1 dona)

Tortish roliki (art. AD-14SP, 1 dona)

Tortish roliki (art. AD-14SP, 1 dona)

Karatka to‘plami (art. AD-15SP, 4 dona) AD-SP drayverida

Karatka to‘plami (art. AD-15SP, 4 dona) AD-SP drayverida

* Tashqi qanotlar uchun karatka to‘plami (4 dona) AD-SP-TELESCOPE drayverida

* Tashqi qanotlar uchun karatka to‘plami (4 dona) AD-SP-TELESCOPE drayverida

* Ichki qanotlar uchun karatka to‘plami (4 dona) AD-SP-TELESCOPE drayverida

* Ichki qanotlar uchun karatka to‘plami (4 dona) AD-SP-TELESCOPE drayverida

Quti yon qopqog‘ining to‘plami (art. AD-16SP, 2 dona) AD-SP da / (art. AD-16SPTel, 2 dona) AD-SP-TELESCOPE da

Quti yon qopqog‘ining to‘plami (art. AD-16SP, 2 dona) AD-SP da / (art. AD-16SPTel, 2 dona) AD-SP-TELESCOPE da

Drayv kamar (art. AD-17, 11 m)

Drayv kamar (art. AD-17, 11 m)

Stoporlar to‘plami (art. AD-19SP, 2 dona) AD-SP drayverida

Stoporlar to‘plami (art. AD-19SP, 2 dona) AD-SP drayverida

* Stoporlar to‘plami (2 dona) AD-SP-TELESCOPE drayverida

* Stoporlar to‘plami (2 dona) AD-SP-TELESCOPE drayverida

Kamar ushlagichlari to‘plami (art. AD-20SP, 2 dona)

Kamar ushlagichlari to‘plami (art. AD-20SP, 2 dona)

Pastki yo‘riqchi (art. TPP-001-32D, 2 dona)

Pastki yo‘riqchi (art. TPP-001-32D, 2 dona)

Quti bilan yopqoq (art. AHDS35 2009, 2011, 2012) AD-SP drayveri uchun / (art. AHDS35 2019-2023) AD-SP-TELESCOPE drayveri uchun

Quti bilan yopqoq (art. AHDS35 2009, 2011, 2012) AD-SP drayveri uchun / (art. AHDS35 2019-2023) AD-SP-TELESCOPE drayveri uchun

Burg‘u bilan siqish (art. AHDS35 2010 c AD-29) AD-SP drayveri uchun / (art. AHDS35 2023 c AD-29TEL, 2 dona) AD-SP-TELESCOPE drayveri uchun

Burg‘u bilan siqish (art. AHDS35 2010 c AD-29) AD-SP drayveri uchun / (art. AHDS35 2023 c AD-29TEL, 2 dona) AD-SP-TELESCOPE drayveri uchun

Fotoelektron sensor uchun profil (art. AHDS35 0213, 2 dona)

Fotoelektron sensor uchun profil (art. AHDS35 0213, 2 dona)

Vertikal qanot profili 30 × 35 mm o‘chirish bilan (art. AHDS35 0106.FREZ)

Vertikal qanot profili 30 × 35 mm o‘chirish bilan (art. AHDS35 0106.FREZ)

Gorizontal qanot profili 64 × 35 mm (art. AHDS35 0108)

Gorizontal qanot profili 64 × 35 mm (art. AHDS35 0108)

Qattiq plastinkalar to‘plami (art. AD-100KIT, 2 ta to‘plam)

Qattiq plastinkalar to‘plami (art. AD-100KIT, 2 ta to‘plam)

AD-07SP — elektromexanik qulflovchi AD-SP drayveri uchun, ruxsatsiz kirishdan ishonchli himoya qiladi / (art. AD-07SPTEL) AD-SP-TELESCOPE drayveri uchun

AD-07SP — elektromexanik qulflovchi AD-SP drayveri uchun, ruxsatsiz kirishdan ishonchli himoya qiladi / (art. AD-07SPTEL) AD-SP-TELESCOPE drayveri uchun

AD-27 — akkumulyator batareyasi (sig‘imi 2,0 Ah) tashqi quvvatlanishsiz eshikning 15-30 daqiqa (170 tsikl) davomida uzluksiz ishlashini ta'minlaydi

AD-27 — akkumulyator batareyasi (sig‘imi 2,0 Ah) tashqi quvvatlanishsiz eshikning 15-30 daqiqa (170 tsikl) davomida uzluksiz ishlashini ta'minlaydi

AD-30 — simsiz (elka) PUSH tugmasi. Harakat sensorini o‘rniga eshikni qo‘l bilan boshqarish uchun ishlatiladi (tugmaga bosish orqali eshikni ochish)

AD-30 — simsiz (elka) PUSH tugmasi. Harakat sensorini o‘rniga eshikni qo‘l bilan boshqarish uchun ishlatiladi (tugmaga bosish orqali eshikni ochish)

AD-31 — bekontakt infratuzilma tugmasi. Harakat sensorini o‘rniga eshikni qo‘l bilan bekontakt boshqarish uchun ishlatiladi (1 dan 15 sm gacha)

AD-31 — bekontakt infratuzilma tugmasi. Harakat sensorini o‘rniga eshikni qo‘l bilan bekontakt boshqarish uchun ishlatiladi (1 dan 15 sm gacha)

AD-32 — rejimlarni o‘zgartirish tugmasi kalit bilan (5 ta rejim). Eshikni boshqarishda cheklangan kirish imkoniyatini ta'minlaydi va displeyli rejim almashtirgich o‘rniga ishlatiladi

AD-32 — rejimlarni o‘zgartirish tugmasi kalit bilan (5 ta rejim). Eshikni boshqarishda cheklangan kirish imkoniyatini ta'minlaydi va displeyli rejim almashtirgich o‘rniga ishlatiladi

AD-34 — kombinatsiyalangan harakat va xavfsizlik sensori. Birlashtirilgan korpusda mikroto‘lqinli harakat radar sensori va eshik proyomida xavfsizlik uchun infratuzilma pardasi mavjud

AD-34 — kombinatsiyalangan harakat va xavfsizlik sensori. Birlashtirilgan korpusda mikroto‘lqinli harakat radar sensori va eshik proyomida xavfsizlik uchun infratuzilma pardasi mavjud

AD-09 — fotoelektron sensorlar to‘plami, eshik proyomida xavfsizlikni ta'minlaydi

AD-09 — fotoelektron sensorlar to‘plami, eshik proyomida xavfsizlikni ta'minlaydi

Texnik tavsif
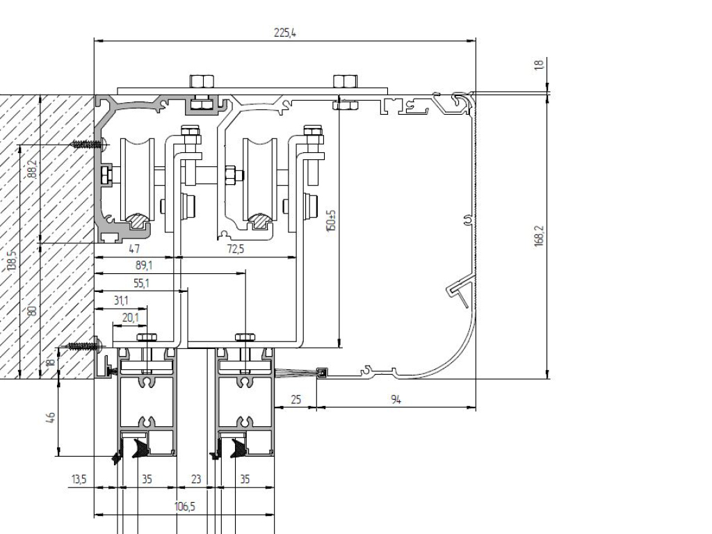
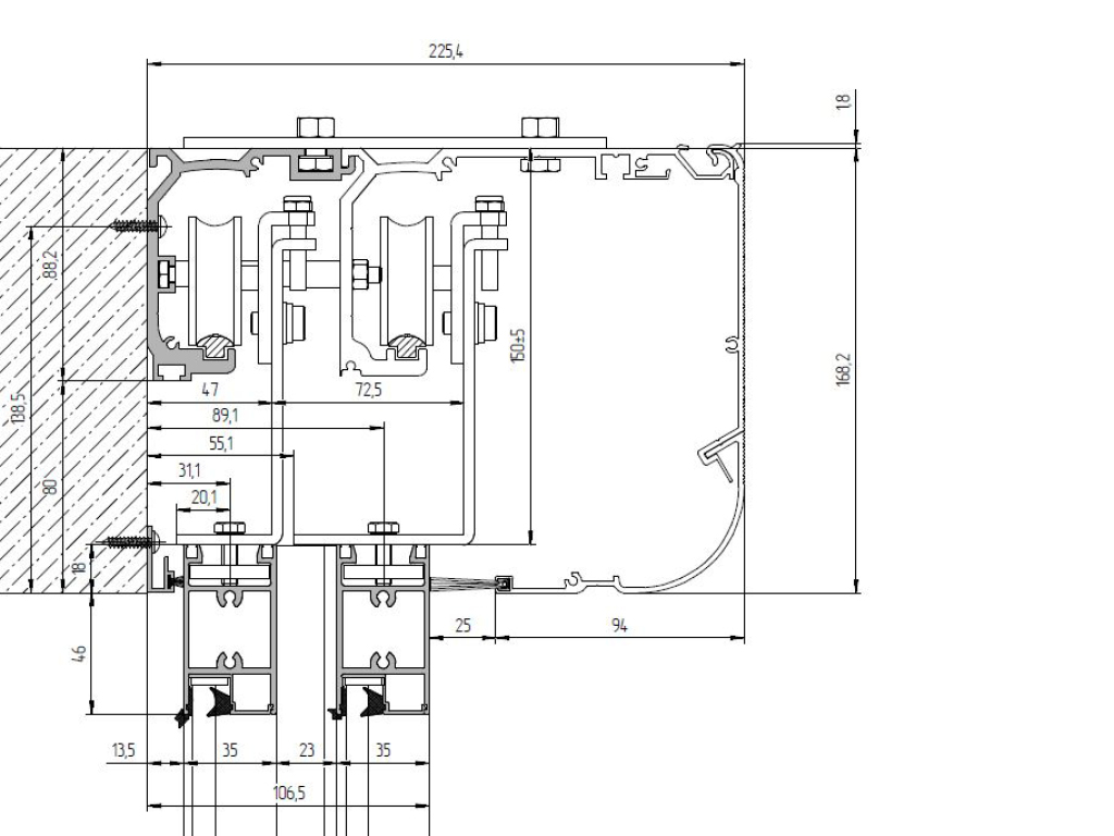
O'lchamlar jadvali
Konstruktsiya
Standart konstruktiv yechimlar
Texnik xususiyatlar
Mahsulotni ishlatish shartlari
Qadoqlash
Параметр
Показатель
Высота проема, мм
2200 dan 4000 gacha
Ширина проема для одностворчатых дверей, мм
1184 dan 6200 gacha (bitta qattiq barg va transom bilan)
Притолока, мм
shart emas
  1. Qopqoqning vertikal profili
  2. Qopqoqning gorizontal profili
  3. Shtapik
  4. To‘ldirish 8 mm, 9 mm (shtapik bilan) yoki 24 mm (shtapiksiz)
  5. Ichki muhr
  6. Tashqi muhr
  7. Markaziy muhr

Birinchi qanotli eshik (chapga ochilishi)

Birinchi qanotli eshik (chapga ochilishi)

Усл. обозначение, наименование параметра Расчетная формула
B, мм Ширина проема 2500 gacha
H, мм Высота проема 3000 gacha
Ikki qanotli eshik

Ikki qanotli eshik

Усл. обозначение, наименование параметра Расчетная формула
B, мм Ширина проема 3000 gacha
H, мм Высота проема 3000 gacha
Birinchi qanotli eshik birta harakatsiz qanot bilan (chapga ochilishi)

Birinchi qanotli eshik birta harakatsiz qanot bilan (chapga ochilishi)

Усл. обозначение, наименование параметра Расчетная формула
B, мм Ширина проема 5000 gacha
H, мм Высота проема 3000 gacha
Ikki qanotli eshik ikkita harakatsiz qanot bilan

Ikki qanotli eshik ikkita harakatsiz qanot bilan

Усл. обозначение, наименование параметра Расчетная формула
B, мм Ширина проема 6000 gacha
H, мм Высота проема 3000 gacha
Birinchi qanotli eshik birta harakatsiz qanot va framag‘a bilan (o‘ngga ochilishi)

Birinchi qanotli eshik birta harakatsiz qanot va framag‘a bilan (o‘ngga ochilishi)

Усл. обозначение, наименование параметра Расчетная формула
B, мм Ширина проема 1184 dan 6200 gacha
H, мм Высота проема 2200 dan 4000 gacha
W, мм Ширина прохода 700 dan 3000 gacha
K, мм Высота прохода 1800 dan 3000 gacha
Ikki qanotli eshik ikkita harakatsiz qanot va framag‘a bilan

Ikki qanotli eshik ikkita harakatsiz qanot va framag‘a bilan

Усл. обозначение, наименование параметра Расчетная формула
B, мм Ширина проема 1806 dan 6200 gacha
H, мм Высота проема 2200 dan 4000 gacha
W, мм Ширина прохода 1000 dan 3000 gacha
K, мм Высота прохода 1800 dan 3000 gacha
Ikki qanotli eshik ikkita butun shishali qanot bilan

Ikki qanotli eshik ikkita butun shishali qanot bilan

Усл. обозначение, наименование параметра Расчетная формула
B, мм Ширина проема 3000 gacha
H, мм Высота проема 3000 gacha
Усл. обозначение, наименование параметра Расчетная формула
H, мм Высота проема от 2 000 до 2 400
B, мм Ширина проема от 700 до 1 250
Параметр Значение Примечание
Толщина профилей, мм 35
Толщина заполнения, мм 8 yoki 9 Yengillashtirilgan qanot
Максимальная высота, м 4
Максимальный вес створки, кг. 200/180 Bitta qanotli eshik/Ikki qanotli eshik
Двигатель, В 24
Мощность, Вт 100
Напряжение питания, В 220
Диапазон рабочих температур, °С -20…+70
Интенсивность использования, % 100 Intensiv o‘tish uchun, 24 soat davomida

1. Eshikni elektr dvigateli bilan tashqi tomondan, ko‘chadan o‘rnatish qat'iyan man etiladi.

2. Eshik kanotlarini qo‘l bilan ochish va yopish faqat favqulodda holatda (elektr energiyasi yo‘q bo‘lsa) yoki sozlash ishlari davomida amalga oshiriladi.

3. Eshik kanotlarini qo‘l bilan ochish va yopishda katta kuch sarflamang. Eshik kanotlarini keskin zarbalar bilan ochish taqiqlanadi.

4. Bolalar va hayvonlar eshik kanotlarini ochish/yopish zonasida uzoq vaqt bo‘lmasligini nazorat qiling.

5. Blokirovka qilingan eshiklarni qo‘l bilan ochishga urinish, barmoqlarni yoki begona narsalarni harakatlanuvchi kanot va pol orasidagi yoriqlarga tiqish qat'iyan man etiladi, chunki bu jarohatlarga olib kelishi mumkin.

6. Kanotlarni o‘tish paytida urib o‘tmaslik va ularni ochish yoki yopilishiga to‘sqinlik qilmaslik kerak. Eshik kanotlari harakatlanadigan zonasida yugurish yoki turish taqiqlanadi.

7. Kanotlar harakatlanayotganda ularning yo‘lida begona narsalar va axlat bo‘lmasligini nazorat qiling: ularning mavjudligi eshik kanotlarining yonma-yon harakatlanishiga, ularning tiqilishiga va eshik avtomatikasining buzilishiga olib kelishi mumkin.

8. Polga o‘rnatilgan yo‘riqchilar va karetkalarning g‘ildiraklarini ifloslantirmaslik kerak, chunki bu eshik kanotlarining yengil harakatini buzilishiga, ularning tiqilishiga va elektr dvigatelining nosozligiga olib kelishi mumkin.

9. Avtomatik eshik kanotlari eshik doirasida yo‘riqchi rels bo‘ylab tekis harakatlanishi kerak, eshik ochilishi/yopilishi tsiklida kanotlar to‘liq ochilgan yoki yopilgan holatga yetganda majburiy to‘xtash bilan.

10. Eshikni xavfsizlik elementlari, masalan, fotoelementlar yoki IR pardasi o‘rnatilmagan holda ishlatish qat'iyan man etiladi.

Упаковка в картон Характеристики упаковки
Yog‘och palet, pastki qismida polistirol bloklari bilan. Profil g‘ofrokarton varaqasi bilan o‘ralgan va PP lentasi bilan mahkamlangan
Упаковка в пузырчатую пленку Характеристики упаковки
Qadoqlash profillarni havo pufakchalari bilan o‘rab, logo‘li skotch bilan mahkamlangan holda taqdim etiladi. Bir qadoqning og‘irligi 35 kg dan oshmaydi
Упаковка на палету Характеристики упаковки
Pufakchali plyonka bilan qadoqlangan profil paketlari polistirol ramkali paletaga joylashtiriladi va skotch bilan mahkamlanadi
Qo‘shimcha tavsif chop etish

Silliq eshiklarni alohida o‘rnatish yoki binoning fasadiga yoki kirish guruhiga integratsiya qilish mumkin.

O'rnatish
Montaj usullari
Bino qurilishi uchun tayyorgarlik
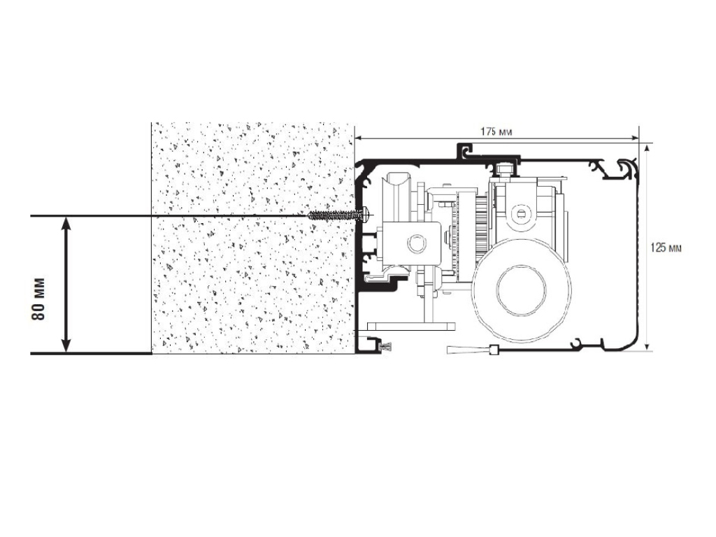
Avtomatik eshikning qutisini o‘choqqa o‘rnatish
Avtomatik eshikning qutisini o‘choqqa o‘rnatish
Teleskopik eshik qutisini o‘choqqa o‘rnatish
Teleskopik eshik qutisini o‘choqqa o‘rnatish
  1. O‘choq parametrlar: Н — o‘choq balandligi (toza poldan o‘choqning yuqori qismigacha bo‘lgan masofa); В — o‘choq kengligi (o‘choqning chap chetidan o‘ng chetigacha bo‘lgan masofa); h — ustun balandligi (o‘choqning yuqori qismidan shiftgacha bo‘lgan masofa). Ustun, o‘choq kengligi va balandligini o‘lchash kamida ikki joyda amalga oshiriladi. Yakuniy o‘lchov sifatida har doim eng kichik qiymat olinadi.
  2. Sifatli montaj uchun konstruktsiyani va uning keyingi ishonchli ishlashini ta'minlash uchun xona o‘choqni tayyorlash zarur. O‘choqning tozaligi bilan bog‘liq ma'lum talablar mavjud: O‘choq to‘g‘ri burchakli shaklda bo‘lishi kerak. Ramka yuzasi tekis va silliq bo‘lishi, gipsli eritma oqishlari va yoriqlar bo‘lmasligi kerak. Polning yuzasi tekis va gorizontal bo‘lishi, shishlar va pastliklar bo‘lmasligi kerak. 1 m uzunlikdagi tekislikda 1 mm gacha og‘ish mumkin. Vertikal va gorizontal yuzalar tekis bo‘lishi, 1 m uzunlikdagi og‘ish 1 mm dan oshmasligi kerak. Agar o‘choq tayyorlashda yuqoridagi talablar bo‘yicha og‘ishlar mavjud bo‘lsa, o‘lchamlarni olishdan va montajni boshlashdan oldin bu og‘ishlar bartaraf etilishi kerak. Ustun va yon devorlar bir tekislikda bo‘lishi kerak. O‘choq ramkasi mustahkam konstruktsiya, payvandlangan truba, fasad profili yoki vitraj shaklida bo‘lishi kerak.
Hujjatlar
Ko'rsatmalar
Pasportlar va sertifikatlar
Chizmalar

«AD-SP dvigateli bilan avtomatik silliq eshik» ko'rsatmasi

«AD-SP-TELESCOPE dvigateli bilan teleskopik eshik» ko'rsatmasi

Avtomatik/teleskopik eshiklarning yengil qanotlarini yig'ish bo'yicha ko'rsatma

«Antipanika» qanotlarini yig'ish ko'rsatmasi (ochish funktsiyasi bilan) avtomatik eshiklar

Framuga va avtomatik eshik bilan konstruksiyalarni yig'ish bo'yicha ko'rsatma

AD-34 harakat va xavfsizlik kombinatsiyalashgan sensori sozlash bo'yicha ko'rsatma

Oshkora va o'rnatish uchun talablar

Avtomatik silliq eshik pasporti / AD-SP / AD-SP-TELESCOPE dvigateli

Aluminiy profiliga moslik sertifikati

Avtomatik eshiklar uchun dvigatellar bo'yicha moslik deklaratsiyasi

Asosiy eshikning profil va komponentlar katalogi (arxiv)

Avtomatik eshik uchun profil va komponentlar katalogi yengil eshiklar bilan

Telescopik eshik uchun profil va komponentlar katalogi yengil eshiklar bilan

«Antipanika» avtomatik eshigi uchun profil va komponentlar katalogi

Kafolat majburiyatlari chop etish

Mijozga tizimni to‘liq majmuasiga 2 yil kafolat beriladi, yuklashdan boshlab, foydalanish shartlariga rioya qilgan holda.

Yangi mahsulotlar
Bespоrovоdli (tirsak bilan bosiladigan) AD-30 tugmasi eshiklarni qo‘lda ochishni boshqarish uchun mo‘ljallangan bo‘lib, u toza xonalar (jarrohlik va laboratoriya bloklari) hamda ofis va savdo binolarida qo‘llaniladi.

Bespоrovоdli (tirsak bilan bosiladigan) AD-30 tugmasi eshiklarni qo‘lda ochishni boshqarish uchun mo‘ljallangan bo‘lib, u toza xonalar (jarrohlik va laboratoriya bloklari) hamda ofis va savdo binolarida qo‘llaniladi.

Datchik AD-34 — bu kombinatsiyalangan turdagi qurilma bo‘lib, u bitta korpusda mikroto‘lqinli harakat datchigi-radar va infraqizil ishtirok pardasini birlashtiradi. Ushbu datchik AD-SP privodi o‘rnatilgan avtomatik suriluvchi eshik tizimida xavfsizlik fotoelementlari juftligi o‘rniga yoki ular bilan birgalikda ishlashi mumkin.

Datchik AD-34 — bu kombinatsiyalangan turdagi qurilma bo‘lib, u bitta korpusda mikroto‘lqinli harakat datchigi-radar va infraqizil ishtirok pardasini birlashtiradi. Ushbu datchik AD-SP privodi o‘rnatilgan avtomatik suriluvchi eshik tizimida xavfsizlik fotoelementlari juftligi o‘rniga yoki ular bilan birgalikda ishlashi mumkin.

Dizayn
To‘ldirish dizayni
Qopqoqlarning ikkala tomondan bo‘yalmaganligi. Har qanday turdagi to‘ldirish, 8, 9 va 24 mm qalinlikda.
Qopqoqlarning ikkala tomondan bo‘yalmaganligi. Har qanday turdagi to‘ldirish, 8, 9 va 24 mm qalinlikda.
Standart ranglar
RAL 9016 (oq)
RAL 9016 (oq)
RAL 9006 (silliq metall)
RAL 9006 (silliq metall)
RAL 7004 (kulrang)
RAL 7004 (kulrang)
RAL 1014 (bej)
RAL 1014 (bej)
RAL 2004 (to'q sariq)
RAL 2004 (to'q sariq)
RAL 3020 (qizil)
RAL 3020 (qizil)
RAL 3005 (bordo)
RAL 3005 (bordo)
RAL 6018 (ochiq yashil)
RAL 6018 (ochiq yashil)
RAL 6005 (yashil)
RAL 6005 (yashil)
RAL 7016 (antratsit)
RAL 7016 (antratsit)
RAL 5005 (ko'k)
RAL 5005 (ko'k)
RAL 8017 (jigarrang-qizil)
RAL 8017 (jigarrang-qizil)
RAL 9005 (qora)
RAL 9005 (qora)
RAL 8014 (jigarrang)
RAL 8014 (jigarrang)
Komplektatsiya
Bazaviy to'plam
Elektr dvigateli (art. AD-01SP)

Elektr dvigateli (art. AD-01SP)

Kontroller (art. AD-03SP)

Kontroller (art. AD-03SP)

Rejimlarni o‘zgartirish tugmasi displey bilan (art. AD-08SP)

Rejimlarni o‘zgartirish tugmasi displey bilan (art. AD-08SP)

Harakat sensori (art. AD-06, 1 dona)

Harakat sensori (art. AD-06, 1 dona)

Harakat va xavfsizlik kombinatsiyalashgan sensori (art. AD-34, 1 dona)

Harakat va xavfsizlik kombinatsiyalashgan sensori (art. AD-34, 1 dona)

Tortish roliki (art. AD-14SP, 1 dona)

Tortish roliki (art. AD-14SP, 1 dona)

Karatka to‘plami (art. AD-15SP, 4 dona) AD-SP drayverida

Karatka to‘plami (art. AD-15SP, 4 dona) AD-SP drayverida

* Tashqi qanotlar uchun karatka to‘plami (4 dona) AD-SP-TELESCOPE drayverida

* Tashqi qanotlar uchun karatka to‘plami (4 dona) AD-SP-TELESCOPE drayverida

* Ichki qanotlar uchun karatka to‘plami (4 dona) AD-SP-TELESCOPE drayverida

* Ichki qanotlar uchun karatka to‘plami (4 dona) AD-SP-TELESCOPE drayverida

Quti yon qopqog‘ining to‘plami (art. AD-16SP, 2 dona) AD-SP da / (art. AD-16SPTel, 2 dona) AD-SP-TELESCOPE da

Quti yon qopqog‘ining to‘plami (art. AD-16SP, 2 dona) AD-SP da / (art. AD-16SPTel, 2 dona) AD-SP-TELESCOPE da

Drayv kamar (art. AD-17, 11 m)

Drayv kamar (art. AD-17, 11 m)

Stoporlar to‘plami (art. AD-19SP, 2 dona) AD-SP drayverida

Stoporlar to‘plami (art. AD-19SP, 2 dona) AD-SP drayverida

* Stoporlar to‘plami (2 dona) AD-SP-TELESCOPE drayverida

* Stoporlar to‘plami (2 dona) AD-SP-TELESCOPE drayverida

Kamar ushlagichlari to‘plami (art. AD-20SP, 2 dona)

Kamar ushlagichlari to‘plami (art. AD-20SP, 2 dona)

Pastki yo‘riqchi (art. TPP-001-32D, 2 dona)

Pastki yo‘riqchi (art. TPP-001-32D, 2 dona)

Quti bilan yopqoq (art. AHDS35 2009, 2011, 2012) AD-SP drayveri uchun / (art. AHDS35 2019-2023) AD-SP-TELESCOPE drayveri uchun

Quti bilan yopqoq (art. AHDS35 2009, 2011, 2012) AD-SP drayveri uchun / (art. AHDS35 2019-2023) AD-SP-TELESCOPE drayveri uchun

Burg‘u bilan siqish (art. AHDS35 2010 c AD-29) AD-SP drayveri uchun / (art. AHDS35 2023 c AD-29TEL, 2 dona) AD-SP-TELESCOPE drayveri uchun

Burg‘u bilan siqish (art. AHDS35 2010 c AD-29) AD-SP drayveri uchun / (art. AHDS35 2023 c AD-29TEL, 2 dona) AD-SP-TELESCOPE drayveri uchun

Fotoelektron sensor uchun profil (art. AHDS35 0213, 2 dona)

Fotoelektron sensor uchun profil (art. AHDS35 0213, 2 dona)

Vertikal qanot profili 30 × 35 mm o‘chirish bilan (art. AHDS35 0106.FREZ)

Vertikal qanot profili 30 × 35 mm o‘chirish bilan (art. AHDS35 0106.FREZ)

Gorizontal qanot profili 64 × 35 mm (art. AHDS35 0108)

Gorizontal qanot profili 64 × 35 mm (art. AHDS35 0108)

Qattiq plastinkalar to‘plami (art. AD-100KIT, 2 ta to‘plam)

Qattiq plastinkalar to‘plami (art. AD-100KIT, 2 ta to‘plam)

Qo'shimcha to'plam
AD-07SP — elektromexanik qulflovchi AD-SP drayveri uchun, ruxsatsiz kirishdan ishonchli himoya qiladi / (art. AD-07SPTEL) AD-SP-TELESCOPE drayveri uchun

AD-07SP — elektromexanik qulflovchi AD-SP drayveri uchun, ruxsatsiz kirishdan ishonchli himoya qiladi / (art. AD-07SPTEL) AD-SP-TELESCOPE drayveri uchun

AD-27 — akkumulyator batareyasi (sig‘imi 2,0 Ah) tashqi quvvatlanishsiz eshikning 15-30 daqiqa (170 tsikl) davomida uzluksiz ishlashini ta'minlaydi

AD-27 — akkumulyator batareyasi (sig‘imi 2,0 Ah) tashqi quvvatlanishsiz eshikning 15-30 daqiqa (170 tsikl) davomida uzluksiz ishlashini ta'minlaydi

AD-30 — simsiz (elka) PUSH tugmasi. Harakat sensorini o‘rniga eshikni qo‘l bilan boshqarish uchun ishlatiladi (tugmaga bosish orqali eshikni ochish)

AD-30 — simsiz (elka) PUSH tugmasi. Harakat sensorini o‘rniga eshikni qo‘l bilan boshqarish uchun ishlatiladi (tugmaga bosish orqali eshikni ochish)

AD-31 — bekontakt infratuzilma tugmasi. Harakat sensorini o‘rniga eshikni qo‘l bilan bekontakt boshqarish uchun ishlatiladi (1 dan 15 sm gacha)

AD-31 — bekontakt infratuzilma tugmasi. Harakat sensorini o‘rniga eshikni qo‘l bilan bekontakt boshqarish uchun ishlatiladi (1 dan 15 sm gacha)

AD-32 — rejimlarni o‘zgartirish tugmasi kalit bilan (5 ta rejim). Eshikni boshqarishda cheklangan kirish imkoniyatini ta'minlaydi va displeyli rejim almashtirgich o‘rniga ishlatiladi

AD-32 — rejimlarni o‘zgartirish tugmasi kalit bilan (5 ta rejim). Eshikni boshqarishda cheklangan kirish imkoniyatini ta'minlaydi va displeyli rejim almashtirgich o‘rniga ishlatiladi

AD-34 — kombinatsiyalangan harakat va xavfsizlik sensori. Birlashtirilgan korpusda mikroto‘lqinli harakat radar sensori va eshik proyomida xavfsizlik uchun infratuzilma pardasi mavjud

AD-34 — kombinatsiyalangan harakat va xavfsizlik sensori. Birlashtirilgan korpusda mikroto‘lqinli harakat radar sensori va eshik proyomida xavfsizlik uchun infratuzilma pardasi mavjud

AD-09 — fotoelektron sensorlar to‘plami, eshik proyomida xavfsizlikni ta'minlaydi

AD-09 — fotoelektron sensorlar to‘plami, eshik proyomida xavfsizlikni ta'minlaydi

Texnik tavsif
O'lchamlar jadvali
Параметр
Показатель
Высота проема, мм
2200 dan 4000 gacha
Ширина проема для одностворчатых дверей, мм
1184 dan 6200 gacha (bitta qattiq barg va transom bilan)
Притолока, мм
shart emas
Konstruktsiya
  1. Qopqoqning vertikal profili
  2. Qopqoqning gorizontal profili
  3. Shtapik
  4. To‘ldirish 8 mm, 9 mm (shtapik bilan) yoki 24 mm (shtapiksiz)
  5. Ichki muhr
  6. Tashqi muhr
  7. Markaziy muhr
Standart konstruktiv yechimlar

Birinchi qanotli eshik (chapga ochilishi)

Birinchi qanotli eshik (chapga ochilishi)

Усл. обозначение, наименование параметра Расчетная формула
B, мм Ширина проема 2500 gacha
H, мм Высота проема 3000 gacha
Ikki qanotli eshik

Ikki qanotli eshik

Усл. обозначение, наименование параметра Расчетная формула
B, мм Ширина проема 3000 gacha
H, мм Высота проема 3000 gacha
Birinchi qanotli eshik birta harakatsiz qanot bilan (chapga ochilishi)

Birinchi qanotli eshik birta harakatsiz qanot bilan (chapga ochilishi)

Усл. обозначение, наименование параметра Расчетная формула
B, мм Ширина проема 5000 gacha
H, мм Высота проема 3000 gacha
Ikki qanotli eshik ikkita harakatsiz qanot bilan

Ikki qanotli eshik ikkita harakatsiz qanot bilan

Усл. обозначение, наименование параметра Расчетная формула
B, мм Ширина проема 6000 gacha
H, мм Высота проема 3000 gacha
Birinchi qanotli eshik birta harakatsiz qanot va framag‘a bilan (o‘ngga ochilishi)

Birinchi qanotli eshik birta harakatsiz qanot va framag‘a bilan (o‘ngga ochilishi)

Усл. обозначение, наименование параметра Расчетная формула
B, мм Ширина проема 1184 dan 6200 gacha
H, мм Высота проема 2200 dan 4000 gacha
W, мм Ширина прохода 700 dan 3000 gacha
K, мм Высота прохода 1800 dan 3000 gacha
Ikki qanotli eshik ikkita harakatsiz qanot va framag‘a bilan

Ikki qanotli eshik ikkita harakatsiz qanot va framag‘a bilan

Усл. обозначение, наименование параметра Расчетная формула
B, мм Ширина проема 1806 dan 6200 gacha
H, мм Высота проема 2200 dan 4000 gacha
W, мм Ширина прохода 1000 dan 3000 gacha
K, мм Высота прохода 1800 dan 3000 gacha
Ikki qanotli eshik ikkita butun shishali qanot bilan

Ikki qanotli eshik ikkita butun shishali qanot bilan

Усл. обозначение, наименование параметра Расчетная формула
B, мм Ширина проема 3000 gacha
H, мм Высота проема 3000 gacha
Усл. обозначение, наименование параметра Расчетная формула
H, мм Высота проема от 2 000 до 2 400
B, мм Ширина проема от 700 до 1 250
Texnik xususiyatlar
Параметр Значение Примечание
Толщина профилей, мм 35
Толщина заполнения, мм 8 yoki 9 Yengillashtirilgan qanot
Максимальная высота, м 4
Максимальный вес створки, кг. 200/180 Bitta qanotli eshik/Ikki qanotli eshik
Двигатель, В 24
Мощность, Вт 100
Напряжение питания, В 220
Диапазон рабочих температур, °С -20…+70
Интенсивность использования, % 100 Intensiv o‘tish uchun, 24 soat davomida
Mahsulotni ishlatish shartlari

1. Eshikni elektr dvigateli bilan tashqi tomondan, ko‘chadan o‘rnatish qat'iyan man etiladi.

2. Eshik kanotlarini qo‘l bilan ochish va yopish faqat favqulodda holatda (elektr energiyasi yo‘q bo‘lsa) yoki sozlash ishlari davomida amalga oshiriladi.

3. Eshik kanotlarini qo‘l bilan ochish va yopishda katta kuch sarflamang. Eshik kanotlarini keskin zarbalar bilan ochish taqiqlanadi.

4. Bolalar va hayvonlar eshik kanotlarini ochish/yopish zonasida uzoq vaqt bo‘lmasligini nazorat qiling.

5. Blokirovka qilingan eshiklarni qo‘l bilan ochishga urinish, barmoqlarni yoki begona narsalarni harakatlanuvchi kanot va pol orasidagi yoriqlarga tiqish qat'iyan man etiladi, chunki bu jarohatlarga olib kelishi mumkin.

6. Kanotlarni o‘tish paytida urib o‘tmaslik va ularni ochish yoki yopilishiga to‘sqinlik qilmaslik kerak. Eshik kanotlari harakatlanadigan zonasida yugurish yoki turish taqiqlanadi.

7. Kanotlar harakatlanayotganda ularning yo‘lida begona narsalar va axlat bo‘lmasligini nazorat qiling: ularning mavjudligi eshik kanotlarining yonma-yon harakatlanishiga, ularning tiqilishiga va eshik avtomatikasining buzilishiga olib kelishi mumkin.

8. Polga o‘rnatilgan yo‘riqchilar va karetkalarning g‘ildiraklarini ifloslantirmaslik kerak, chunki bu eshik kanotlarining yengil harakatini buzilishiga, ularning tiqilishiga va elektr dvigatelining nosozligiga olib kelishi mumkin.

9. Avtomatik eshik kanotlari eshik doirasida yo‘riqchi rels bo‘ylab tekis harakatlanishi kerak, eshik ochilishi/yopilishi tsiklida kanotlar to‘liq ochilgan yoki yopilgan holatga yetganda majburiy to‘xtash bilan.

10. Eshikni xavfsizlik elementlari, masalan, fotoelementlar yoki IR pardasi o‘rnatilmagan holda ishlatish qat'iyan man etiladi.

Qadoqlash
Упаковка в картон Характеристики упаковки
Yog‘och palet, pastki qismida polistirol bloklari bilan. Profil g‘ofrokarton varaqasi bilan o‘ralgan va PP lentasi bilan mahkamlangan
Упаковка в пузырчатую пленку Характеристики упаковки
Qadoqlash profillarni havo pufakchalari bilan o‘rab, logo‘li skotch bilan mahkamlangan holda taqdim etiladi. Bir qadoqning og‘irligi 35 kg dan oshmaydi
Упаковка на палету Характеристики упаковки
Pufakchali plyonka bilan qadoqlangan profil paketlari polistirol ramkali paletaga joylashtiriladi va skotch bilan mahkamlanadi
Qo‘shimcha tavsif

Silliq eshiklarni alohida o‘rnatish yoki binoning fasadiga yoki kirish guruhiga integratsiya qilish mumkin.

O'rnatish
Montaj usullari
Avtomatik eshikning qutisini o‘choqqa o‘rnatish
Avtomatik eshikning qutisini o‘choqqa o‘rnatish
Teleskopik eshik qutisini o‘choqqa o‘rnatish
Teleskopik eshik qutisini o‘choqqa o‘rnatish
Bino qurilishi uchun tayyorgarlik
  1. O‘choq parametrlar: Н — o‘choq balandligi (toza poldan o‘choqning yuqori qismigacha bo‘lgan masofa); В — o‘choq kengligi (o‘choqning chap chetidan o‘ng chetigacha bo‘lgan masofa); h — ustun balandligi (o‘choqning yuqori qismidan shiftgacha bo‘lgan masofa). Ustun, o‘choq kengligi va balandligini o‘lchash kamida ikki joyda amalga oshiriladi. Yakuniy o‘lchov sifatida har doim eng kichik qiymat olinadi.
  2. Sifatli montaj uchun konstruktsiyani va uning keyingi ishonchli ishlashini ta'minlash uchun xona o‘choqni tayyorlash zarur. O‘choqning tozaligi bilan bog‘liq ma'lum talablar mavjud: O‘choq to‘g‘ri burchakli shaklda bo‘lishi kerak. Ramka yuzasi tekis va silliq bo‘lishi, gipsli eritma oqishlari va yoriqlar bo‘lmasligi kerak. Polning yuzasi tekis va gorizontal bo‘lishi, shishlar va pastliklar bo‘lmasligi kerak. 1 m uzunlikdagi tekislikda 1 mm gacha og‘ish mumkin. Vertikal va gorizontal yuzalar tekis bo‘lishi, 1 m uzunlikdagi og‘ish 1 mm dan oshmasligi kerak. Agar o‘choq tayyorlashda yuqoridagi talablar bo‘yicha og‘ishlar mavjud bo‘lsa, o‘lchamlarni olishdan va montajni boshlashdan oldin bu og‘ishlar bartaraf etilishi kerak. Ustun va yon devorlar bir tekislikda bo‘lishi kerak. O‘choq ramkasi mustahkam konstruktsiya, payvandlangan truba, fasad profili yoki vitraj shaklida bo‘lishi kerak.
Kafolat majburiyatlari

Mijozga tizimni to‘liq majmuasiga 2 yil kafolat beriladi, yuklashdan boshlab, foydalanish shartlariga rioya qilgan holda.

Hujjatlar
Ko'rsatmalar

«AD-SP dvigateli bilan avtomatik silliq eshik» ko'rsatmasi

«AD-SP-TELESCOPE dvigateli bilan teleskopik eshik» ko'rsatmasi

Avtomatik/teleskopik eshiklarning yengil qanotlarini yig'ish bo'yicha ko'rsatma

«Antipanika» qanotlarini yig'ish ko'rsatmasi (ochish funktsiyasi bilan) avtomatik eshiklar

Framuga va avtomatik eshik bilan konstruksiyalarni yig'ish bo'yicha ko'rsatma

AD-34 harakat va xavfsizlik kombinatsiyalashgan sensori sozlash bo'yicha ko'rsatma

Oshkora va o'rnatish uchun talablar

Pasportlar va sertifikatlar

Avtomatik silliq eshik pasporti / AD-SP / AD-SP-TELESCOPE dvigateli

Aluminiy profiliga moslik sertifikati

Avtomatik eshiklar uchun dvigatellar bo'yicha moslik deklaratsiyasi

Chizmalar

Asosiy eshikning profil va komponentlar katalogi (arxiv)

Avtomatik eshik uchun profil va komponentlar katalogi yengil eshiklar bilan

Telescopik eshik uchun profil va komponentlar katalogi yengil eshiklar bilan

«Antipanika» avtomatik eshigi uchun profil va komponentlar katalogi

Buyurtma berish
Kompaniya menejerlari barcha savollaringizga telefon orqali javob berishadi::