Перегрузочное оборудование
Двустворчатые раздвижные двери
Каталог

Секционные противопожарные ворота с пределом огнестойкости EI60

Секционные Противопожарные Ворота DoorHan EI 60: Компактная и Умная Защита от Огня

В современных зданиях, особенно в подземных паркингах, логистических центрах и производственных цехах, каждый метр пространства на счету. Установка традиционных распашных противопожарных ворот здесь часто невозможна из-за нехватки места для открытия створок. Но требования пожарной безопасности остаются неизменными: проемы должны быть надежно защищены. Инновационным решением этой дилеммы являются секционные противопожарные ворота DoorHan с пределом огнестойкости EI 60. Они сочетают в себе высокую огнестойкость с главным преимуществом секционных конструкций — компактностью и экономией пространства.

Принцип Действия и Конструктивные Отличия

Внешне секционные противопожарные ворота похожи на обычные гаражные, но их внутренняя конструкция кардинально отличается и направлена на сопротивление огню.

  • Полотно из огнестойких сэндвич-панелей: Полотно ворот состоит из горизонтальных секций (сэндвич-панелей), соединенных между собой петлями. Наполнителем для этих панелей служит плотная негорючая минеральная вата, которая выдерживает высокие температуры и служит эффективным барьером для теплового излучения.

  • Система направляющих и подъема: Полотно движется по вертикальным и горизонтальным направляющим, уходя под потолок. Это позволяет полностью освободить проем и не занимать полезное пространство перед ним.

  • Термоуплотнительные ленты: Как и в других противопожарных конструкциях, по периметру проема и в местах стыков секций прокладываются специальные ленты. При нагревании они вспениваются, герметично запечатывая все зазоры и не давая дыму и угарному газу проникнуть в соседнее помещение.

  • Предел огнестойкости EI 60: Ворота сертифицированы и гарантированно сохраняют свою целостность (E) и теплоизолирующую способность (I) в течение 60 минут, что достаточно для безопасной эвакуации людей и работы пожарных команд.

Интеграция с Автоматикой — Ключ к Эффективности

Главное преимущество секционных противопожарных ворот — их тесная интеграция с системами автоматики и пожарной безопасности.

  • Электропривод: Ворота всегда оснащаются мощным электроприводом. В штатном режиме они используются как обычные проездные ворота, управляясь с пульта, кнопки или по сигналу системы контроля доступа.

  • Связь с пожарной сигнализацией: Привод ворот подключается к блоку управления пожарной сигнализацией. При поступлении сигнала тревоги (от датчика дыма или ручного извещателя) автоматика отменяет все другие команды и принудительно закрывает ворота.

  • Бесперебойное питание: Система оснащается источником бесперебойного питания (ИБП), который гарантирует закрытие ворот даже в случае отключения основного электроснабжения здания во время пожара.

Области Применения: Где Экономия Пространства Решает Всё

  • Подземные и многоуровневые паркинги: Это идеальное и зачастую единственно возможное решение для разделения уровней парковки на пожарные отсеки.

  • Производственные и складские помещения: Где плотная расстановка оборудования или стеллажей не позволяет установить распашные ворота.

  • Торговые центры: Для защиты въездов в зоны разгрузки.

  • Автосервисы и СТО: Для изоляции ремонтных зон от клиентских.

Секционные противопожарные ворота DoorHan EI 60 — это современное, умное и безопасное решение, которое позволяет выполнить строгие требования пожарной безопасности, не жертвуя при этом полезной площадью. Это надежная защита, которая в обычном режиме работает как удобные автоматические ворота, а в момент опасности превращается в непреодолимый огненный барьер.



Зона применения:
Промышленные объекты
Индустриальные парки, заводы, фабрики, энергетические и нефтегазовые объекты, электростанции, машиностроительные предприятия, производственные комплексы, деревообрабатывающие производства, механические цеха, цеха пищевого производства.
Логистические центры
Распределительные центры, транспортно-логистические центры, индустриальные и логистические парки, технопарки.
Складские помещения
Складские комплексы и помещения, книгохранилища, хранилища музейных фондов, архивы.
Технологические помещения
Котельные, насосные станции, лабораторные помещения, ремонтные цеха, мастерские.
Сельскохозяйственные предприятия
Агропромышленные, животноводческие и рыбоперерабатывающие комплексы, птицефабрики, хранилища кормов, зернохранилища, склады хранения удобрений, пестицидов и агрохимикатов.
Объекты транспортной инфраструктуры
Транспортные и ремонтные депо, аэропорты, вертолетные площадки, железнодорожные вокзалы, автовокзалы, автостоянки, гаражи, авторемонтные мастерские.
Здания гражданского назначения
Жилые комплексы, паркинги, выставочные и торговые комплексы.
Социальные объекты
Театры, школы, кинотеатры, концертные залы, музеи, библиотеки, цирки, спортивные комплексы, стадионы, ледовые дворцы, физкультурно-оздоровительные комплексы.
Преимущества
Высокое качество
Контроль всего цикла производства и изготовление комплектующих из высокотехнологичных материалов гарантируют качество и долговечность конструкции ворот.
Надежная защита зданий с повышенными требованиями к пожарной безопасности
Сертификаты подтверждают соответствие требованиям пожарной безопасности, надежность и безопасность продукции.
Продуманная конструкция
Прочная конструкция ворот с качественными комплектующими гарантирует правильную балансировку, надежное соединение огнестойких панелей полотна, прижим полотна к плоскости проема, герметизацию мест прилегания и стыков частей полотна системой уплотнителей.
Большой выбор конструктивных решений
Возможность выбора встраиваемых объектов и дополнительной комплектации обеспечивает удобство эксплуатации, безопасность людей при эвакуации и тушение огня без необходимости подъема ворот.
Конкурентная цена
Минимизация затрат благодаря полному циклу производства всех элементов конструкции на современном технологичном оборудовании.
Минимальные сроки производства
Все комплектующие для противопожарных ворот изготавливаются на собственном заводе концерна в Москве, что гарантирует оптимальные сроки производства продукции.
Быстрый расчет стоимости
Мы предлагаем оперативный предварительный расчет стоимости изделия, изготовленного по индивидуальным размерам заказчика.
Поставка в страны ЕАЭС
Широкая дилерская сеть и развитая логистика позволяют выполнять поставку изделий в страны Евразийского экономического союза в минимальные сроки.
Сертификация ISO 9001
Все заводы концерна DoorHan проходят ежегодную добровольную сертификацию менеджмента качества.
Высокое качество
Контроль всего цикла производства и изготовление комплектующих из высокотехнологичных материалов гарантируют качество и долговечность конструкции ворот.
Надежная защита зданий с повышенными требованиями к пожарной безопасности
Сертификаты подтверждают соответствие требованиям пожарной безопасности, надежность и безопасность продукции.
Продуманная конструкция
Прочная конструкция ворот с качественными комплектующими гарантирует правильную балансировку, надежное соединение огнестойких панелей полотна, прижим полотна к плоскости проема, герметизацию мест прилегания и стыков частей полотна системой уплотнителей.
Большой выбор конструктивных решений
Возможность выбора встраиваемых объектов и дополнительной комплектации обеспечивает удобство эксплуатации, безопасность людей при эвакуации и тушение огня без необходимости подъема ворот.
Конкурентная цена
Минимизация затрат благодаря полному циклу производства всех элементов конструкции на современном технологичном оборудовании.
Минимальные сроки производства
Все комплектующие для противопожарных ворот изготавливаются на собственном заводе концерна в Москве, что гарантирует оптимальные сроки производства продукции.
Быстрый расчет стоимости
Мы предлагаем оперативный предварительный расчет стоимости изделия, изготовленного по индивидуальным размерам заказчика.
Поставка в страны ЕАЭС
Широкая дилерская сеть и развитая логистика позволяют выполнять поставку изделий в страны Евразийского экономического союза в минимальные сроки.
Сертификация ISO 9001
Все заводы концерна DoorHan проходят ежегодную добровольную сертификацию менеджмента качества.
Дизайн
Тип поверхности сэндвич-панели
Цвета
Стукко
Стукко
RAL 9002 (белый, стандартный)
RAL 9002 (белый, стандартный)
RAL 8014 (коричневый)
RAL 8014 (коричневый)
RAL 9003 (белый)
RAL 9003 (белый)
RAL 5005 (синий)
RAL 5005 (синий)
RAL 6005 (зеленый)
RAL 6005 (зеленый)
RAL 3005 (бордовый)
RAL 3005 (бордовый)
RAL 9006 (серебристый)
RAL 9006 (серебристый)
RAL 1014 (бежевый)
RAL 1014 (бежевый)
RAL 7004 (серый)
RAL 7004 (серый)
RAL 3000 (красный)
RAL 3000 (красный)
RAL 7016 (антрацит)
RAL 7016 (антрацит)
Нестандартный цвет по карте RAL (наценка)
Нестандартный цвет по карте RAL (наценка)
Комплектация
Базовая комплектация
Дополнительная комплектация
Щит ворот толщиной 60 мм из стальных сэндвич-панелей с минеральной ватой высокой плотности и усиливающими профилями.

Щит ворот толщиной 60 мм из стальных сэндвич-панелей с минеральной ватой высокой плотности и усиливающими профилями.

Окрашенные торсионные пружины подбираются индивидуально, учитывая вес щита ворот, что обеспечивает долговечность конструкции.

Окрашенные торсионные пружины подбираются индивидуально, учитывая вес щита ворот, что обеспечивает долговечность конструкции.

Комплект боковых направляющих изготовлен из оцинкованной стали и обладает повышенным запасом прочности.

Комплект боковых направляющих изготовлен из оцинкованной стали и обладает повышенным запасом прочности.

Устройство защиты от обрыва троса предотвращает падение полотна ворот, срабатывая при его обрыве.

Устройство защиты от обрыва троса предотвращает падение полотна ворот, срабатывая при его обрыве.

Устройство защиты от разрыва пружины блокирует вал при нештатных ситуациях.

Устройство защиты от разрыва пружины блокирует вал при нештатных ситуациях.

Амортизаторы используются для ограничения хода полотна ворот, а также для придания импульса движению ворот на закрытие.

Амортизаторы используются для ограничения хода полотна ворот, а также для придания импульса движению ворот на закрытие.

Коробка с комплектом крепежных элементов и документацией.

Коробка с комплектом крепежных элементов и документацией.

Встроенная калитка (размер в свету 900 × 2 051 мм) обеспечивает доступ в помещение без необходимости подъема ворот и может служить эвакуационным выходом. Возможно встраивание калитки в ворота шириной до 5 500 мм.

Встроенная калитка (размер в свету 900 × 2 051 мм) обеспечивает доступ в помещение без необходимости подъема ворот и может служить эвакуационным выходом. Возможно встраивание калитки в ворота шириной до 5 500 мм.

Огнестойкое окно (размером 400 × 300 мм) в полотне ворот повышает удобство их эксплуатации, обеспечивая обзор пространства за воротами. Окно надежно препятствует выходу огня из помещения, где возник пожар, так как благодаря прочной металлической раме выдерживает высокую механическую нагрузку и не деформируется при значительных перепадах температур и интенсивном нагреве. <br> Противопожарный люк (размер в свету 200 × 200 мм) применяется для тушения пожара без необходимости открывания ворот.

Огнестойкое окно (размером 400 × 300 мм) в полотне ворот повышает удобство их эксплуатации, обеспечивая обзор пространства за воротами. Окно надежно препятствует выходу огня из помещения, где возник пожар, так как благодаря прочной металлической раме выдерживает высокую механическую нагрузку и не деформируется при значительных перепадах температур и интенсивном нагреве.
Противопожарный люк (размер в свету 200 × 200 мм) применяется для тушения пожара без необходимости открывания ворот.

Ручка с противопожарными замками «антипаника» позволит быстро покинуть помещение при эвакуации.

Ручка с противопожарными замками «антипаника» позволит быстро покинуть помещение при эвакуации.

Доводчик предлагается в качестве дополнительной комплектации и может быть установлен на калитку в качестве устройства самозакрывания при пожаре.

Доводчик предлагается в качестве дополнительной комплектации и может быть установлен на калитку в качестве устройства самозакрывания при пожаре.

Секционные противопожарные ворота во взрывобезопасном исполнении применяются в зонах производственных помещений с потенциально взрывоопасными средами с повышенными требованиями к пожарной безопасности. Надежное электрическое соединение всех металлических элементов конструкции между собой и заземляющим контуром и другие специальные конструктивные решения предотвращают возможность накопления опасных электростатических зарядов.

Секционные противопожарные ворота во взрывобезопасном исполнении применяются в зонах производственных помещений с потенциально взрывоопасными средами с повышенными требованиями к пожарной безопасности. Надежное электрическое соединение всех металлических элементов конструкции между собой и заземляющим контуром и другие специальные конструктивные решения предотвращают возможность накопления опасных электростатических зарядов.

Возможность автоматизации противопожарных секционных ворот электроприводами DoorHan (см. раздел «Автоматика для ворот»).

Возможность автоматизации противопожарных секционных ворот электроприводами DoorHan (см. раздел «Автоматика для ворот»).

Приемник внешний одноканальный серии dhre-1.

Приемник внешний одноканальный серии dhre-1.

Фотоэлементы серии photocell-n (фотоэлемент-н).

Фотоэлементы серии photocell-n (фотоэлемент-н).

Сигнальная лампа серии lamp-pro (лампа-про).

Сигнальная лампа серии lamp-pro (лампа-про).

Пульт 4-канальный серии transmitter 4 (трансмиттер 4).

Пульт 4-канальный серии transmitter 4 (трансмиттер 4).

Ключ-кнопка для управления.

Ключ-кнопка для управления.

Модуль для управления с мобильного телефона.

Модуль для управления с мобильного телефона.

Техническое описание
Таблица размеров
Размеры проема
Конструкция
Стандартные конструктивные решения
Технические характеристики
Условия эксплуатации продукции
Упаковка
Параметр
Показатель
Высота проема, мм
2 000–6 000 *
Ширина проема, мм
2 000–6 000 *
Притолока, мм
От 650
Пристенки, мм
От 300
Глубина помещения, мм
Высота проема + 700
* Ворота размером более 5 000 мм по ширине и высоте необходимо предварительно согласовывать с конструктором
  1. Направляющая для полотна ворот
  2. Торсионный механизм
  3. Вал
  4. Верхний профиль
  5. Боковая опора с роликом
  6. Угловая стойка с вертикальной направляющей
  7. Кронштейн крепления горизонтальных направляющих к потолку
  8. Амортизатор
  9. Внутренний опорный кронштейн
  10. Устройство от обрыва пружины и барабан
  11. Верхний уплотнитель
  12. Петля
  13. Полотно ворот из сэндвич-панелей
  14. Боковая крышка
  15. Кронштейн с устройством защиты от обрыва троса
  16. Нижний профиль
  17. Нижний уплотнитель
  18. Встроенная калитка
  19. Люк противопожарный

Панели противопожарных секционных ворот состоят из двух стальных листов и минераловатной прослойки между ними, с боковой стороны закладывается гипсокартон с усиливающим профилем. Панели обладают повышенными жароустойчивыми и огнеупорными свойствами. Также панели устойчивы к широкому спектру химикатов, масел и растворителей, а полимерные покрытия внешних поверхностей делают их невосприимчивыми к коррозионному воздействию окружающей среды. <br>Конструкция панели:  <br>1) гипсокартон;  <br>2) минераловатная прослойка плотностью 130 кг/м³;  <br>3) стальной лист толщиной 0,5 мм;  <br>4) усиливающий профиль под петли (предотвращает разбалтывание петель и повышает взломоустойчивость).

Панели противопожарных секционных ворот состоят из двух стальных листов и минераловатной прослойки между ними, с боковой стороны закладывается гипсокартон с усиливающим профилем. Панели обладают повышенными жароустойчивыми и огнеупорными свойствами. Также панели устойчивы к широкому спектру химикатов, масел и растворителей, а полимерные покрытия внешних поверхностей делают их невосприимчивыми к коррозионному воздействию окружающей среды.
Конструкция панели:
1) гипсокартон;
2) минераловатная прослойка плотностью 130 кг/м³;
3) стальной лист толщиной 0,5 мм;
4) усиливающий профиль под петли (предотвращает разбалтывание петель и повышает взломоустойчивость).

Секционные противопожарные ворота. Основные размеры. <br> Благодаря тому, что ворота открываются вверх и откатываются под потолок, они не занимают много места внутри помещения, оставляя свободное пространство у проема. Большой выбор типов подъема ворот позволяет устанавливать их в помещения с различными размерами притолоки.<br> Ворота спроектированы и изготовлены из высококачественных материалов с применением современных технологий. Противопожарные секционные ворота DoorHan имеют более легкий вес по сравнению с аналогами, предлагаемыми на рынке. Они обладают высокой прочностью, термо- и звукоизоляцией. Противопожарные ворота DoorHan полностью отвечают требованиям российских строительных стандартов и имеют сертификаты соответствия.

Секционные противопожарные ворота. Основные размеры.
Благодаря тому, что ворота открываются вверх и откатываются под потолок, они не занимают много места внутри помещения, оставляя свободное пространство у проема. Большой выбор типов подъема ворот позволяет устанавливать их в помещения с различными размерами притолоки.
Ворота спроектированы и изготовлены из высококачественных материалов с применением современных технологий. Противопожарные секционные ворота DoorHan имеют более легкий вес по сравнению с аналогами, предлагаемыми на рынке. Они обладают высокой прочностью, термо- и звукоизоляцией. Противопожарные ворота DoorHan полностью отвечают требованиям российских строительных стандартов и имеют сертификаты соответствия.

Усл. обозначение, наименование параметра Расчетная формула
H, мм Высота проема H
B, мм Ширина проема B
L, мм Ширина полотна B + 200
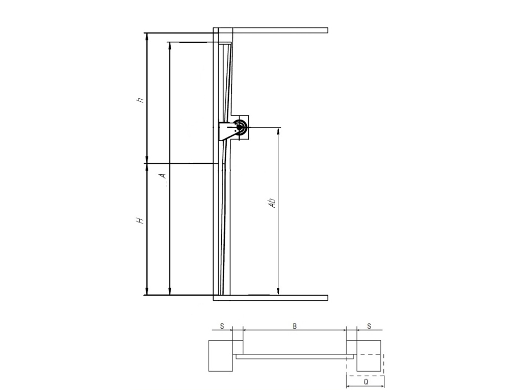
Стандартный подъем.

Стандартный подъем.

Усл. обозначение, наименование параметра Расчетная формула
H, мм Высота проема H
h, мм Высота притолоки h ≥ 650
B, мм Ширина проема B
A, мм Высота угловой стойки H + 425
Ab, мм Высота оси вала и барабана А + 166
A1, мм Высота вертикальной направляющей A - 580
A2, мм Высота горизонтальной направляющей A - 110
E, мм Длина горизонтальных направляющих H + 479
B1, мм Координата промежуточной точки крепления направляющих к потолку E/2
Db, мм Рабочая зона торсионного механизма Зависит от размеров проема и веса щита
S, мм Минимальное боковое пространство 300
Q, мм Зона расположения привода на вал 450
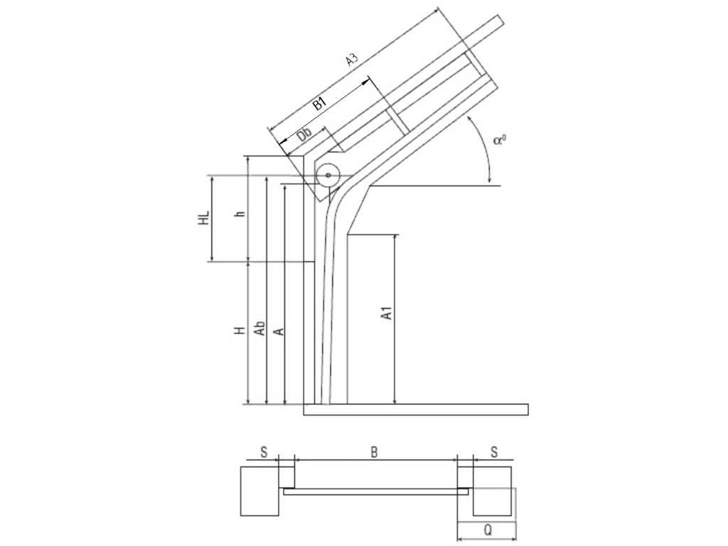
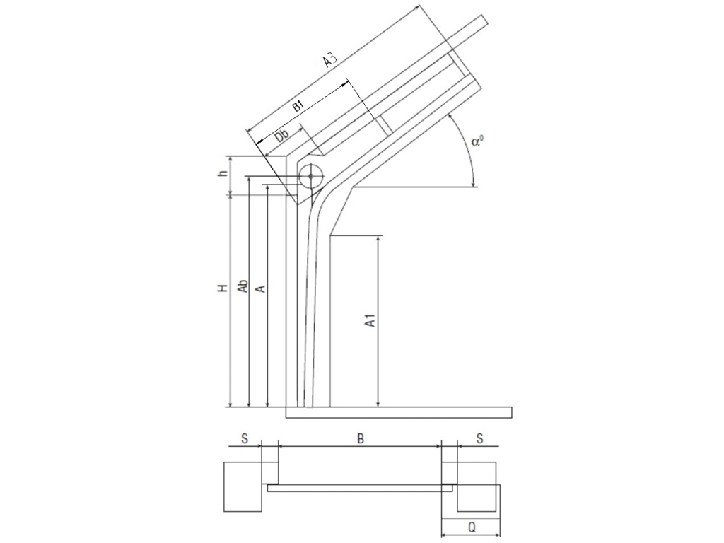
Стандартный наклонный подъем.

Стандартный наклонный подъем.

Усл. обозначение, наименование параметра Расчетная формула
H, мм Высота проема H
h, мм Высота притолоки h > 650
B, мм Ширина проема B
A, мм Высота угловой стойки H + 250…985
Ab, мм Высота оси вала и барабана А + 86/97
A1, мм Высота вертикальной направляющей Н - 445
A3, мм Размер ограничивающий рабочую зону ворот (без привода или с приводом на вал) Зависит от угла α°
B1, мм Координата промежуточной точки крепления направляющих к потолку A3/2
Db, мм Рабочая зона торсионного механизма Зависит от размеров проема и веса щита
S, мм Минимальное боковое пространство 300
α° Угол наклона направляющих к горизонтали 5…65 (кратен 5°)
Q, мм Зона расположения привода на вал 450
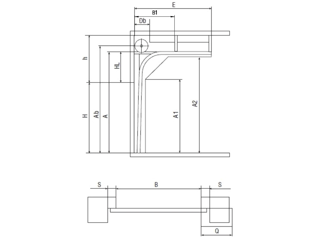
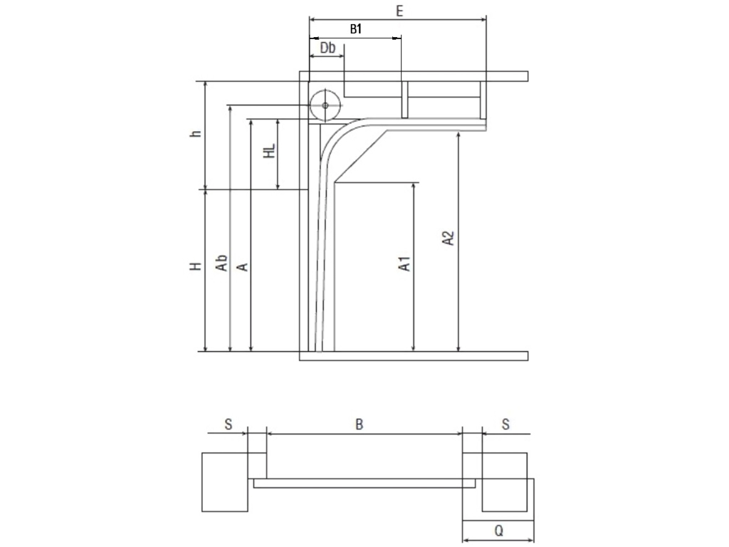
Высокий подъем.

Высокий подъем.

Усл. обозначение, наименование параметра Расчетная формула
H, мм Высота проема H
h, мм Высота притолоки h ≥ 750
B, мм Ширина проема B
HL, мм Расстояние от уровня горизонтальных направляющих до проема По умолчанию h - 330
A, мм Высота угловой стойки H + HL
Ab, мм Высота оси вала и барабана A + 86/97
A1, мм Высота вертикальной направляющей A - 580
A2, мм Высота горизонтальной направляющей A - 53
E, мм Длина горизонтальных направляющих H - НL + 470…900
B1, мм Координата промежуточной точки крепления направляющих к потолку E/2
Db, мм Рабочая зона торсионного механизма Зависит от размеров проема и веса щита
S, мм Минимальное боковое пространство 300
Q, мм Зона расположения привода на вал 450
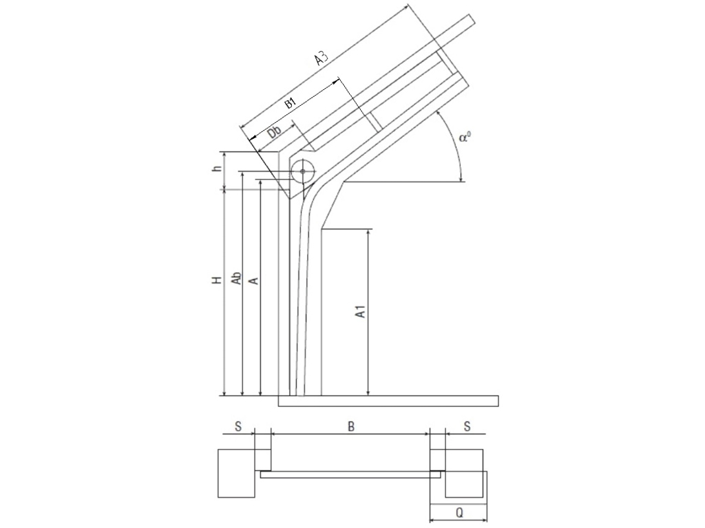
Наклонный высокий подъем.

Наклонный высокий подъем.

Усл. обозначение, наименование параметра Расчетная формула
H, мм Высота проема H
h, мм Высота притолоки 700
B, мм Ширина проема B
HL, мм Расстояние от уровня горизонтальных направляющих до проема 330
A, мм Высота угловой стойки H + HL + 15…749
Ab, мм Высота оси вала и барабана ≤ А + 86/97
A1, мм Высота вертикальной направляющей Н + HL - 330…580
A3, мм Размер ограничивающий рабочую зону ворот (без привода или с приводом на вал) Зависит от угла α°
B1, мм Координата промежуточной точки крепления направляющих к потолку A3/2
Db, мм Рабочая зона торсионного механизма Зависит от размеров проема и веса щита
S, мм Минимальное боковое пространство 300
α° Угол наклона направляющих к горизонтали 5…65 (кратен 5°)
Q, мм Зона расположения привода на вал 450
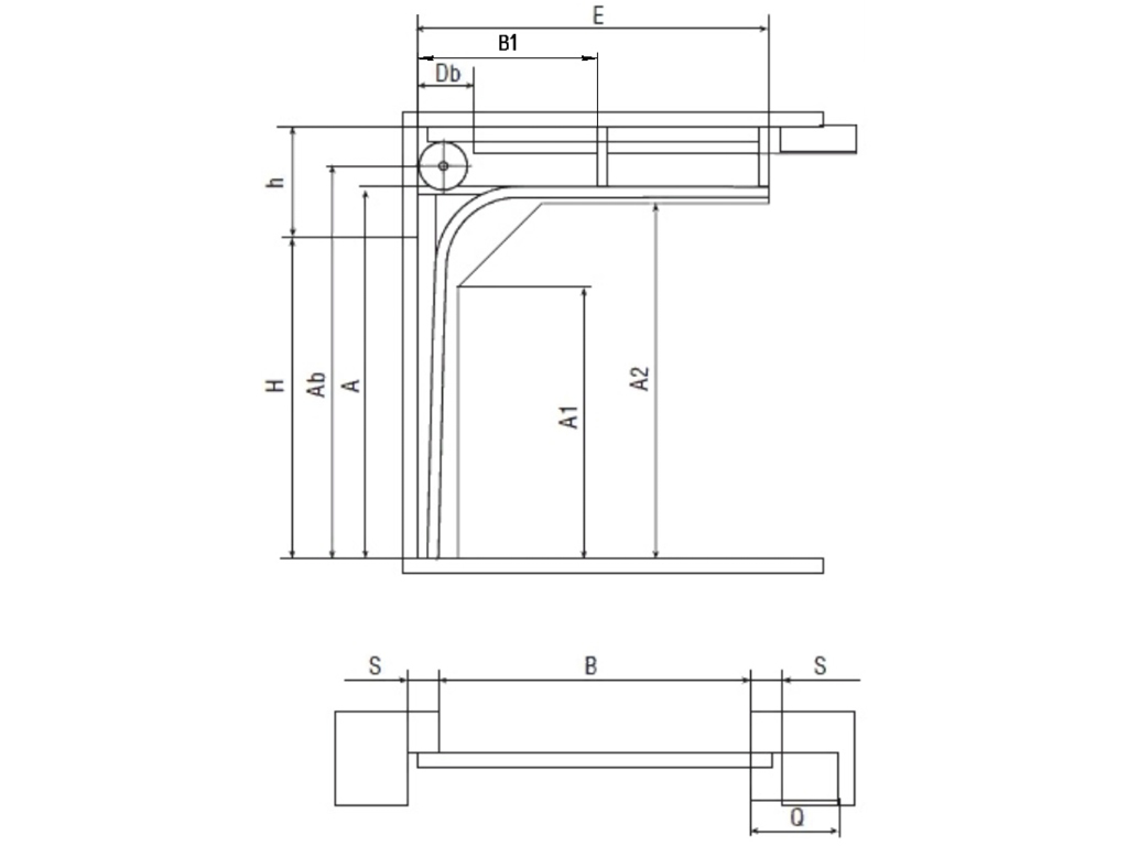
Высокий подъем, вал снизу.

Высокий подъем, вал снизу.

Усл. обозначение, наименование параметра Расчетная формула
H, мм Высота проема H
h, мм Высота притолоки h ≥ 1 650
B, мм Ширина проема B
HL, мм Расстояние от уровня горизонтальных направляющих до проема 1 330 ≤ HL ≤ h - 150
A, мм Высота угловой стойки H + HL
Ab, мм Высота оси вала и барабана H + 400…600 + 280 (монтаж на трубе); H + 1 203 (октагональный вал)
A1, мм Высота вертикальной направляющей A-580
A2, мм Высота горизонтальной направляющей A-53
E, мм Длина горизонтальных направляющих H - НL + 470…900
B1, мм Координата промежуточной точки крепления направляющих к потолку E/2
S, мм Минимальное боковое пространство 300
Q, мм Зона расположения привода на вал 450
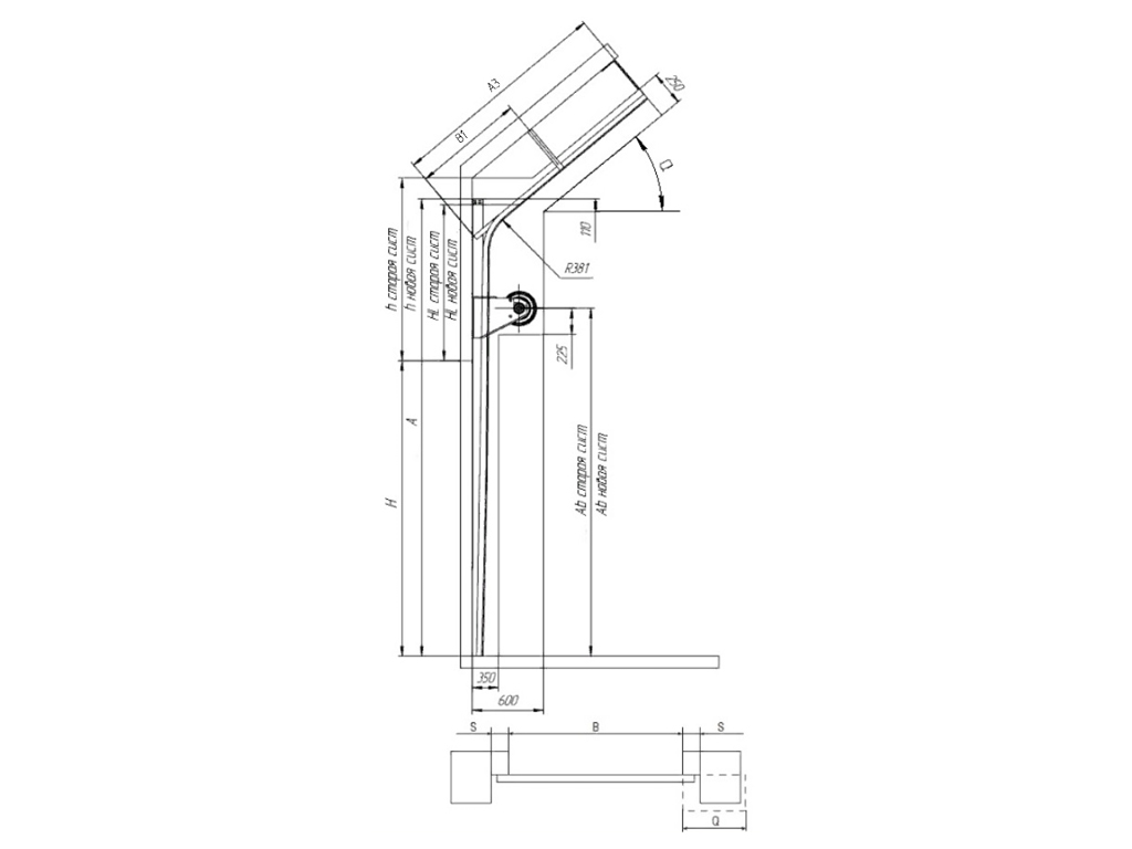
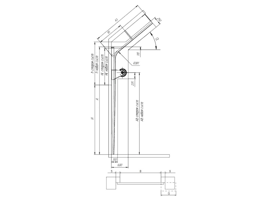
Высокий наклонный подъем вал снизу.

Высокий наклонный подъем вал снизу.

Усл. обозначение, наименование параметра Расчетная формула
H, мм Высота проема H
h, мм Высота притолоки h > 1 750 — старая система; h > 2 440 — новая система
B, мм Ширина проема B
HL, мм Расстояние от уровня горизонтальных направляющих до проема HL ≥ 1 330 — старая система; HL ≥ 2 020 — новая система
A, мм Высота угловой стойки H + HL + 235
Ab, мм Высота оси вала и барабана H + 680 — старая система; H + 1 370 — новая система
A3, мм Размер ограничивающий рабочую зону ворот (без привода или с приводом на вал) H + 800...1 000
B1, мм Координата промежуточной точки крепления направляющих к потолку A3/2
S, мм Минимальное боковое пространство 300
Q, мм Зона расположения привода на вал 450
α° Угол наклона направляющих к горизонтали 5...65 (кратен 5°)
Вертикальный подъем вал снизу.

Вертикальный подъем вал снизу.

Усл. обозначение, наименование параметра Расчетная формула
H, мм Высота проема H
h, мм Высота притолоки > H + 350
B, мм Ширина проема B
A, мм Высота угловой стойки 2H + 200
Ab, мм Высота оси вала и барабана H + 400…600 + 280 (монтаж на трубе); H + 1 203 (октагональный вал)
S, мм Минимальное боковое пространство 500 min
Q, мм Зона расположения привода на вал ≥ 650
Стальные вставки и профили, установленные внутри и снаружи верхней и нижней панелей, обеспечивают необходимую жесткость. Алюминиевый профиль-усилитель устанавливается на верхнюю панель калитки. ПРИМЕЧАНИЕ: предназначены для ворот шириной более 4 500 мм с калиткой.

Стальные вставки и профили, установленные внутри и снаружи верхней и нижней панелей, обеспечивают необходимую жесткость. Алюминиевый профиль-усилитель устанавливается на верхнюю панель калитки. ПРИМЕЧАНИЕ: предназначены для ворот шириной более 4 500 мм с калиткой.

Для усиления жесткости в зоне калитки используются специальные стальные профили, а увеличенная высота порога калитки обеспечивает дополнительную прочность. ПРИМЕЧАНИЕ: предназначены для ворот шириной более 4 500 мм с калиткой.

Для усиления жесткости в зоне калитки используются специальные стальные профили, а увеличенная высота порога калитки обеспечивает дополнительную прочность. ПРИМЕЧАНИЕ: предназначены для ворот шириной более 4 500 мм с калиткой.

Параметр Значение Примечание
Предел огнестойкости, мин Не менее 60
Приведенное сопротивление теплопередаче, м² *°С/Вт Не менее 0,4–0,8
Ресурс, циклов 20 000
Вес полотна, кг/м² 22
Усилие ручного открывания и закрывания, Н, не более Не более 300

1. Секционные противопожарные ворота не предназначены для интенсивного использования. Рекомендуется использование при проверке пожарной сигнализации, сервисном обслуживании и по прямому назначению.

2. Секционные противопожарные ворота должны работать плавно, без заклиниваний и рывков.

3. В случае появления при работе секционных ворот посторонних звуков (скрип, скрежет) необходимо приостановить использование и обратиться к квалифицированному персоналу.

4. Во избежание несчастного случая следите, чтобы в момент работы ворот люди и животные не находились в зоне действия ворот.

5. Следите, чтобы в момент работы ворот в проеме не было посторонних предметов.

6. В случае установки дополнительного оборудования, не предусмотренного для использования совместно с секционными противопожарными воротами, необходимо обращаться в техническую службу предприятия-изготовителя для консультации.

7. Досрочному списанию подлежат ворота, выполнившие свою функцию по прямому назначению при пожаре. В этом случае ворота подлежат демонтажу и замене.

8. Своевременно производите чистку подвижных частей ворот во избежание их заклинивания.

9. Во избежание травм не трогайте руками подвижные части ворот (ролики, панели и т.п.) во время их движения.

10. Для обеспечения надежной и бесперебойной работы ворот рекомендуется регулярно (не реже 1 раза в 6 месяцев) проводить их технический осмотр и обслуживание.

11. Не допускается при работе ворот удерживать полотно. Это может привести к травме или поломке конструкции.

12. Не допускайте детей к устройствам управления автоматическими воротами (кнопкам, пультам).

13. Не подвергайте ворота ударам и не препятствуйте их свободному открыванию и закрыванию.

14. Внимательно ознакомьтесь с инструкцией по эксплуатации автоматического привода для надежной и долговечной работы.

15. В случае использования секционных противопожарных ворот или их комплектующих не по назначению производитель не несет ответственности за их целостность и надежность.

Упаковка в картон Характеристики упаковки
Описание Упаковка направляющих ворот представляет собой 2 слоя картона, обернутого с перехлестом не менее 100 мм на стыке листов картона; картонная упаковка сверху покрыта стретч-пленкой в 2 слоя и закреплена скотчем с логотипом компании
Состав Картон пятислойный, стретч-пленка, скотч с логотипом
Длина, мм 2 000–6 000
Упаковка в пузырчатую пленку Характеристики упаковки
Описание Панели ворот складывают вместе, при этом между панелями прокладывают пенопластовые блоки толщиной 50 мм, по торцам панелей устанавливают пенопластовые блоки толщиной 80 мм для защиты от возможных ударов при транспортировании, фиксируют их скотчем; обматывают панели воздушно-пузырчатой пленкой по всей длине; по торцам панелей пленку загибают по схеме «конверт», стыки заклеивают скотчем
Длина, мм 2 000–6 000
Ширина, мм 590
Высота, мм 300–500
Количество в упаковке, шт. 3–5
Упаковка в дерево Характеристики упаковки
Описание Собирают поддон из деревянных брусков при помощи универсальных шурупов по дереву с потайной головкой; шаг поперечных брусков должен равняться 1500 мм; укладывают на собранный поддон пенопластовые блоки толщиной 25–50 мм
Длина, мм 2 000
Ширина, мм 1 100
Высота, мм Подбирается по месту
Дополнительное описание печать

Рекомендуется хранить сэндвич-панели в заводской упаковке в горизонтальном положении на ровной поверхности не более 6 месяцев с момента производства в складах закрытого типа или под навесом. Панели должны быть защищены от прямых солнечных лучей, атмосферных осадков и загрязнений.

Установка
Способы монтажа
Подготовка строительного объекта
Накладной монтаж. Система направляющих устанавливается на пристенки и притолоку с внутренней стороны проема относительно помещения.
Накладной монтаж. Система направляющих устанавливается на пристенки и притолоку с внутренней стороны проема относительно помещения.
  1. Замер каждой величины необходимо производить как минимум по трем точкам (в крайних положениях и по центру).
  2. Н – высота проема (расстояние от пола до верха проема).
  3. В – ширина проема (расстояние от левого края до правого края проема).
  4. h – притолока (расстояние от верха проема до потолка).
  5. b1/b2 – левое/правое боковое расстояние (расстояние от соответствующего края проема до препятствия).
  6. D – глубина помещения (расстояние от края проема до внутренней стены гаража).
  7. При замере H и B за итоговый размер принимается наибольшая величина, при замере h, b1, b2 и D — наименьшая.
  8. Перепад уровня пола по всей ширине проема не должен превышать 10 мм. Необходимо обеспечить выдержку монтажной плоскости (пристенков и притолоки). Основание под установку системы направляющих должно быть монолитным и прочным, при отсутствии такового требуется дополнительная окантовка либо формирование проема металлоизделиями.
Документация
Инструкции
Паспорта и сертификаты
Чертежи

Руководство по монтажу и эксплуатации ворот секционных противопожарных серии isd fp

Паспорт «Секционные противопожарные ворота серии isd fp EI60» 2024

Паспорт «Секционные противопожарные ворота серии isd fp EI60» 2021

Паспорт «Секционные противопожарные ворота для работы во взрывоопасных средах серии isd fp EI60» 2022

Сертификат № EAЭC RU C-RU.ПБ68.В.02162/24

Сертификат № EAЭC RU C-RU.ПБ68.В.00334/21

Сертификат № EAЭC RU C-RU.АЖ58.В.03478/22

Секционные противопожарные ворота. Стандартный подъем

Секционные противопожарные ворота. Стандартный наклонный подъем

Секционные противопожарные ворота. Высокий подъем

Секционные противопожарные ворота. Высокий наклонный подъем

Секционные противопожарные ворота. Высокий подъем, вал снизу

Секционные противопожарные ворота. Высокий наклонный подъем, вал снизу

Секционные противопожарные ворота. Вертикальный подъем вал снизу

Гарантийные обязательства печать

Покупателю предоставляется гарантия работоспособности секционных противопожарных ворот производства концерна DoorHan на срок 1 год с момента приобретения их заказчиком. ВНИМАНИЕ! В случае несоблюдения правил эксплуатации, а также правил регламента работ по сервисному обслуживанию, гарантия на ворота не распространяется.

Дизайн
Тип поверхности сэндвич-панели
Стукко
Стукко
Цвета
RAL 9002 (белый, стандартный)
RAL 9002 (белый, стандартный)
RAL 8014 (коричневый)
RAL 8014 (коричневый)
RAL 9003 (белый)
RAL 9003 (белый)
RAL 5005 (синий)
RAL 5005 (синий)
RAL 6005 (зеленый)
RAL 6005 (зеленый)
RAL 3005 (бордовый)
RAL 3005 (бордовый)
RAL 9006 (серебристый)
RAL 9006 (серебристый)
RAL 1014 (бежевый)
RAL 1014 (бежевый)
RAL 7004 (серый)
RAL 7004 (серый)
RAL 3000 (красный)
RAL 3000 (красный)
RAL 7016 (антрацит)
RAL 7016 (антрацит)
Нестандартный цвет по карте RAL (наценка)
Нестандартный цвет по карте RAL (наценка)
Комплектация
Базовая комплектация
Щит ворот толщиной 60 мм из стальных сэндвич-панелей с минеральной ватой высокой плотности и усиливающими профилями.

Щит ворот толщиной 60 мм из стальных сэндвич-панелей с минеральной ватой высокой плотности и усиливающими профилями.

Окрашенные торсионные пружины подбираются индивидуально, учитывая вес щита ворот, что обеспечивает долговечность конструкции.

Окрашенные торсионные пружины подбираются индивидуально, учитывая вес щита ворот, что обеспечивает долговечность конструкции.

Комплект боковых направляющих изготовлен из оцинкованной стали и обладает повышенным запасом прочности.

Комплект боковых направляющих изготовлен из оцинкованной стали и обладает повышенным запасом прочности.

Устройство защиты от обрыва троса предотвращает падение полотна ворот, срабатывая при его обрыве.

Устройство защиты от обрыва троса предотвращает падение полотна ворот, срабатывая при его обрыве.

Устройство защиты от разрыва пружины блокирует вал при нештатных ситуациях.

Устройство защиты от разрыва пружины блокирует вал при нештатных ситуациях.

Амортизаторы используются для ограничения хода полотна ворот, а также для придания импульса движению ворот на закрытие.

Амортизаторы используются для ограничения хода полотна ворот, а также для придания импульса движению ворот на закрытие.

Коробка с комплектом крепежных элементов и документацией.

Коробка с комплектом крепежных элементов и документацией.

Дополнительная комплектация
Встроенная калитка (размер в свету 900 × 2 051 мм) обеспечивает доступ в помещение без необходимости подъема ворот и может служить эвакуационным выходом. Возможно встраивание калитки в ворота шириной до 5 500 мм.

Встроенная калитка (размер в свету 900 × 2 051 мм) обеспечивает доступ в помещение без необходимости подъема ворот и может служить эвакуационным выходом. Возможно встраивание калитки в ворота шириной до 5 500 мм.

Огнестойкое окно (размером 400 × 300 мм) в полотне ворот повышает удобство их эксплуатации, обеспечивая обзор пространства за воротами. Окно надежно препятствует выходу огня из помещения, где возник пожар, так как благодаря прочной металлической раме выдерживает высокую механическую нагрузку и не деформируется при значительных перепадах температур и интенсивном нагреве. <br> Противопожарный люк (размер в свету 200 × 200 мм) применяется для тушения пожара без необходимости открывания ворот.

Огнестойкое окно (размером 400 × 300 мм) в полотне ворот повышает удобство их эксплуатации, обеспечивая обзор пространства за воротами. Окно надежно препятствует выходу огня из помещения, где возник пожар, так как благодаря прочной металлической раме выдерживает высокую механическую нагрузку и не деформируется при значительных перепадах температур и интенсивном нагреве.
Противопожарный люк (размер в свету 200 × 200 мм) применяется для тушения пожара без необходимости открывания ворот.

Ручка с противопожарными замками «антипаника» позволит быстро покинуть помещение при эвакуации.

Ручка с противопожарными замками «антипаника» позволит быстро покинуть помещение при эвакуации.

Доводчик предлагается в качестве дополнительной комплектации и может быть установлен на калитку в качестве устройства самозакрывания при пожаре.

Доводчик предлагается в качестве дополнительной комплектации и может быть установлен на калитку в качестве устройства самозакрывания при пожаре.

Секционные противопожарные ворота во взрывобезопасном исполнении применяются в зонах производственных помещений с потенциально взрывоопасными средами с повышенными требованиями к пожарной безопасности. Надежное электрическое соединение всех металлических элементов конструкции между собой и заземляющим контуром и другие специальные конструктивные решения предотвращают возможность накопления опасных электростатических зарядов.

Секционные противопожарные ворота во взрывобезопасном исполнении применяются в зонах производственных помещений с потенциально взрывоопасными средами с повышенными требованиями к пожарной безопасности. Надежное электрическое соединение всех металлических элементов конструкции между собой и заземляющим контуром и другие специальные конструктивные решения предотвращают возможность накопления опасных электростатических зарядов.

Возможность автоматизации противопожарных секционных ворот электроприводами DoorHan (см. раздел «Автоматика для ворот»).

Возможность автоматизации противопожарных секционных ворот электроприводами DoorHan (см. раздел «Автоматика для ворот»).

Приемник внешний одноканальный серии dhre-1.

Приемник внешний одноканальный серии dhre-1.

Фотоэлементы серии photocell-n (фотоэлемент-н).

Фотоэлементы серии photocell-n (фотоэлемент-н).

Сигнальная лампа серии lamp-pro (лампа-про).

Сигнальная лампа серии lamp-pro (лампа-про).

Пульт 4-канальный серии transmitter 4 (трансмиттер 4).

Пульт 4-канальный серии transmitter 4 (трансмиттер 4).

Ключ-кнопка для управления.

Ключ-кнопка для управления.

Модуль для управления с мобильного телефона.

Модуль для управления с мобильного телефона.

Техническое описание
Таблица размеров
Параметр
Показатель
Высота проема, мм
2 000–6 000 *
Ширина проема, мм
2 000–6 000 *
Притолока, мм
От 650
Пристенки, мм
От 300
Глубина помещения, мм
Высота проема + 700
* Ворота размером более 5 000 мм по ширине и высоте необходимо предварительно согласовывать с конструктором
Конструкция
  1. Направляющая для полотна ворот
  2. Торсионный механизм
  3. Вал
  4. Верхний профиль
  5. Боковая опора с роликом
  6. Угловая стойка с вертикальной направляющей
  7. Кронштейн крепления горизонтальных направляющих к потолку
  8. Амортизатор
  9. Внутренний опорный кронштейн
  10. Устройство от обрыва пружины и барабан
  11. Верхний уплотнитель
  12. Петля
  13. Полотно ворот из сэндвич-панелей
  14. Боковая крышка
  15. Кронштейн с устройством защиты от обрыва троса
  16. Нижний профиль
  17. Нижний уплотнитель
  18. Встроенная калитка
  19. Люк противопожарный
Стандартные конструктивные решения

Панели противопожарных секционных ворот состоят из двух стальных листов и минераловатной прослойки между ними, с боковой стороны закладывается гипсокартон с усиливающим профилем. Панели обладают повышенными жароустойчивыми и огнеупорными свойствами. Также панели устойчивы к широкому спектру химикатов, масел и растворителей, а полимерные покрытия внешних поверхностей делают их невосприимчивыми к коррозионному воздействию окружающей среды. <br>Конструкция панели:  <br>1) гипсокартон;  <br>2) минераловатная прослойка плотностью 130 кг/м³;  <br>3) стальной лист толщиной 0,5 мм;  <br>4) усиливающий профиль под петли (предотвращает разбалтывание петель и повышает взломоустойчивость).

Панели противопожарных секционных ворот состоят из двух стальных листов и минераловатной прослойки между ними, с боковой стороны закладывается гипсокартон с усиливающим профилем. Панели обладают повышенными жароустойчивыми и огнеупорными свойствами. Также панели устойчивы к широкому спектру химикатов, масел и растворителей, а полимерные покрытия внешних поверхностей делают их невосприимчивыми к коррозионному воздействию окружающей среды.
Конструкция панели:
1) гипсокартон;
2) минераловатная прослойка плотностью 130 кг/м³;
3) стальной лист толщиной 0,5 мм;
4) усиливающий профиль под петли (предотвращает разбалтывание петель и повышает взломоустойчивость).

Секционные противопожарные ворота. Основные размеры. <br> Благодаря тому, что ворота открываются вверх и откатываются под потолок, они не занимают много места внутри помещения, оставляя свободное пространство у проема. Большой выбор типов подъема ворот позволяет устанавливать их в помещения с различными размерами притолоки.<br> Ворота спроектированы и изготовлены из высококачественных материалов с применением современных технологий. Противопожарные секционные ворота DoorHan имеют более легкий вес по сравнению с аналогами, предлагаемыми на рынке. Они обладают высокой прочностью, термо- и звукоизоляцией. Противопожарные ворота DoorHan полностью отвечают требованиям российских строительных стандартов и имеют сертификаты соответствия.

Секционные противопожарные ворота. Основные размеры.
Благодаря тому, что ворота открываются вверх и откатываются под потолок, они не занимают много места внутри помещения, оставляя свободное пространство у проема. Большой выбор типов подъема ворот позволяет устанавливать их в помещения с различными размерами притолоки.
Ворота спроектированы и изготовлены из высококачественных материалов с применением современных технологий. Противопожарные секционные ворота DoorHan имеют более легкий вес по сравнению с аналогами, предлагаемыми на рынке. Они обладают высокой прочностью, термо- и звукоизоляцией. Противопожарные ворота DoorHan полностью отвечают требованиям российских строительных стандартов и имеют сертификаты соответствия.

Усл. обозначение, наименование параметра Расчетная формула
H, мм Высота проема H
B, мм Ширина проема B
L, мм Ширина полотна B + 200
Стандартный подъем.

Стандартный подъем.

Усл. обозначение, наименование параметра Расчетная формула
H, мм Высота проема H
h, мм Высота притолоки h ≥ 650
B, мм Ширина проема B
A, мм Высота угловой стойки H + 425
Ab, мм Высота оси вала и барабана А + 166
A1, мм Высота вертикальной направляющей A - 580
A2, мм Высота горизонтальной направляющей A - 110
E, мм Длина горизонтальных направляющих H + 479
B1, мм Координата промежуточной точки крепления направляющих к потолку E/2
Db, мм Рабочая зона торсионного механизма Зависит от размеров проема и веса щита
S, мм Минимальное боковое пространство 300
Q, мм Зона расположения привода на вал 450
Стандартный наклонный подъем.

Стандартный наклонный подъем.

Усл. обозначение, наименование параметра Расчетная формула
H, мм Высота проема H
h, мм Высота притолоки h > 650
B, мм Ширина проема B
A, мм Высота угловой стойки H + 250…985
Ab, мм Высота оси вала и барабана А + 86/97
A1, мм Высота вертикальной направляющей Н - 445
A3, мм Размер ограничивающий рабочую зону ворот (без привода или с приводом на вал) Зависит от угла α°
B1, мм Координата промежуточной точки крепления направляющих к потолку A3/2
Db, мм Рабочая зона торсионного механизма Зависит от размеров проема и веса щита
S, мм Минимальное боковое пространство 300
α° Угол наклона направляющих к горизонтали 5…65 (кратен 5°)
Q, мм Зона расположения привода на вал 450
Высокий подъем.

Высокий подъем.

Усл. обозначение, наименование параметра Расчетная формула
H, мм Высота проема H
h, мм Высота притолоки h ≥ 750
B, мм Ширина проема B
HL, мм Расстояние от уровня горизонтальных направляющих до проема По умолчанию h - 330
A, мм Высота угловой стойки H + HL
Ab, мм Высота оси вала и барабана A + 86/97
A1, мм Высота вертикальной направляющей A - 580
A2, мм Высота горизонтальной направляющей A - 53
E, мм Длина горизонтальных направляющих H - НL + 470…900
B1, мм Координата промежуточной точки крепления направляющих к потолку E/2
Db, мм Рабочая зона торсионного механизма Зависит от размеров проема и веса щита
S, мм Минимальное боковое пространство 300
Q, мм Зона расположения привода на вал 450
Наклонный высокий подъем.

Наклонный высокий подъем.

Усл. обозначение, наименование параметра Расчетная формула
H, мм Высота проема H
h, мм Высота притолоки 700
B, мм Ширина проема B
HL, мм Расстояние от уровня горизонтальных направляющих до проема 330
A, мм Высота угловой стойки H + HL + 15…749
Ab, мм Высота оси вала и барабана ≤ А + 86/97
A1, мм Высота вертикальной направляющей Н + HL - 330…580
A3, мм Размер ограничивающий рабочую зону ворот (без привода или с приводом на вал) Зависит от угла α°
B1, мм Координата промежуточной точки крепления направляющих к потолку A3/2
Db, мм Рабочая зона торсионного механизма Зависит от размеров проема и веса щита
S, мм Минимальное боковое пространство 300
α° Угол наклона направляющих к горизонтали 5…65 (кратен 5°)
Q, мм Зона расположения привода на вал 450
Высокий подъем, вал снизу.

Высокий подъем, вал снизу.

Усл. обозначение, наименование параметра Расчетная формула
H, мм Высота проема H
h, мм Высота притолоки h ≥ 1 650
B, мм Ширина проема B
HL, мм Расстояние от уровня горизонтальных направляющих до проема 1 330 ≤ HL ≤ h - 150
A, мм Высота угловой стойки H + HL
Ab, мм Высота оси вала и барабана H + 400…600 + 280 (монтаж на трубе); H + 1 203 (октагональный вал)
A1, мм Высота вертикальной направляющей A-580
A2, мм Высота горизонтальной направляющей A-53
E, мм Длина горизонтальных направляющих H - НL + 470…900
B1, мм Координата промежуточной точки крепления направляющих к потолку E/2
S, мм Минимальное боковое пространство 300
Q, мм Зона расположения привода на вал 450
Высокий наклонный подъем вал снизу.

Высокий наклонный подъем вал снизу.

Усл. обозначение, наименование параметра Расчетная формула
H, мм Высота проема H
h, мм Высота притолоки h > 1 750 — старая система; h > 2 440 — новая система
B, мм Ширина проема B
HL, мм Расстояние от уровня горизонтальных направляющих до проема HL ≥ 1 330 — старая система; HL ≥ 2 020 — новая система
A, мм Высота угловой стойки H + HL + 235
Ab, мм Высота оси вала и барабана H + 680 — старая система; H + 1 370 — новая система
A3, мм Размер ограничивающий рабочую зону ворот (без привода или с приводом на вал) H + 800...1 000
B1, мм Координата промежуточной точки крепления направляющих к потолку A3/2
S, мм Минимальное боковое пространство 300
Q, мм Зона расположения привода на вал 450
α° Угол наклона направляющих к горизонтали 5...65 (кратен 5°)
Вертикальный подъем вал снизу.

Вертикальный подъем вал снизу.

Усл. обозначение, наименование параметра Расчетная формула
H, мм Высота проема H
h, мм Высота притолоки > H + 350
B, мм Ширина проема B
A, мм Высота угловой стойки 2H + 200
Ab, мм Высота оси вала и барабана H + 400…600 + 280 (монтаж на трубе); H + 1 203 (октагональный вал)
S, мм Минимальное боковое пространство 500 min
Q, мм Зона расположения привода на вал ≥ 650
Стальные вставки и профили, установленные внутри и снаружи верхней и нижней панелей, обеспечивают необходимую жесткость. Алюминиевый профиль-усилитель устанавливается на верхнюю панель калитки. ПРИМЕЧАНИЕ: предназначены для ворот шириной более 4 500 мм с калиткой.

Стальные вставки и профили, установленные внутри и снаружи верхней и нижней панелей, обеспечивают необходимую жесткость. Алюминиевый профиль-усилитель устанавливается на верхнюю панель калитки. ПРИМЕЧАНИЕ: предназначены для ворот шириной более 4 500 мм с калиткой.

Для усиления жесткости в зоне калитки используются специальные стальные профили, а увеличенная высота порога калитки обеспечивает дополнительную прочность. ПРИМЕЧАНИЕ: предназначены для ворот шириной более 4 500 мм с калиткой.

Для усиления жесткости в зоне калитки используются специальные стальные профили, а увеличенная высота порога калитки обеспечивает дополнительную прочность. ПРИМЕЧАНИЕ: предназначены для ворот шириной более 4 500 мм с калиткой.

Технические характеристики
Параметр Значение Примечание
Предел огнестойкости, мин Не менее 60
Приведенное сопротивление теплопередаче, м² *°С/Вт Не менее 0,4–0,8
Ресурс, циклов 20 000
Вес полотна, кг/м² 22
Усилие ручного открывания и закрывания, Н, не более Не более 300
Условия эксплуатации продукции

1. Секционные противопожарные ворота не предназначены для интенсивного использования. Рекомендуется использование при проверке пожарной сигнализации, сервисном обслуживании и по прямому назначению.

2. Секционные противопожарные ворота должны работать плавно, без заклиниваний и рывков.

3. В случае появления при работе секционных ворот посторонних звуков (скрип, скрежет) необходимо приостановить использование и обратиться к квалифицированному персоналу.

4. Во избежание несчастного случая следите, чтобы в момент работы ворот люди и животные не находились в зоне действия ворот.

5. Следите, чтобы в момент работы ворот в проеме не было посторонних предметов.

6. В случае установки дополнительного оборудования, не предусмотренного для использования совместно с секционными противопожарными воротами, необходимо обращаться в техническую службу предприятия-изготовителя для консультации.

7. Досрочному списанию подлежат ворота, выполнившие свою функцию по прямому назначению при пожаре. В этом случае ворота подлежат демонтажу и замене.

8. Своевременно производите чистку подвижных частей ворот во избежание их заклинивания.

9. Во избежание травм не трогайте руками подвижные части ворот (ролики, панели и т.п.) во время их движения.

10. Для обеспечения надежной и бесперебойной работы ворот рекомендуется регулярно (не реже 1 раза в 6 месяцев) проводить их технический осмотр и обслуживание.

11. Не допускается при работе ворот удерживать полотно. Это может привести к травме или поломке конструкции.

12. Не допускайте детей к устройствам управления автоматическими воротами (кнопкам, пультам).

13. Не подвергайте ворота ударам и не препятствуйте их свободному открыванию и закрыванию.

14. Внимательно ознакомьтесь с инструкцией по эксплуатации автоматического привода для надежной и долговечной работы.

15. В случае использования секционных противопожарных ворот или их комплектующих не по назначению производитель не несет ответственности за их целостность и надежность.

Упаковка
Упаковка в картон Характеристики упаковки
Описание Упаковка направляющих ворот представляет собой 2 слоя картона, обернутого с перехлестом не менее 100 мм на стыке листов картона; картонная упаковка сверху покрыта стретч-пленкой в 2 слоя и закреплена скотчем с логотипом компании
Состав Картон пятислойный, стретч-пленка, скотч с логотипом
Длина, мм 2 000–6 000
Упаковка в пузырчатую пленку Характеристики упаковки
Описание Панели ворот складывают вместе, при этом между панелями прокладывают пенопластовые блоки толщиной 50 мм, по торцам панелей устанавливают пенопластовые блоки толщиной 80 мм для защиты от возможных ударов при транспортировании, фиксируют их скотчем; обматывают панели воздушно-пузырчатой пленкой по всей длине; по торцам панелей пленку загибают по схеме «конверт», стыки заклеивают скотчем
Длина, мм 2 000–6 000
Ширина, мм 590
Высота, мм 300–500
Количество в упаковке, шт. 3–5
Упаковка в дерево Характеристики упаковки
Описание Собирают поддон из деревянных брусков при помощи универсальных шурупов по дереву с потайной головкой; шаг поперечных брусков должен равняться 1500 мм; укладывают на собранный поддон пенопластовые блоки толщиной 25–50 мм
Длина, мм 2 000
Ширина, мм 1 100
Высота, мм Подбирается по месту
Дополнительное описание

Рекомендуется хранить сэндвич-панели в заводской упаковке в горизонтальном положении на ровной поверхности не более 6 месяцев с момента производства в складах закрытого типа или под навесом. Панели должны быть защищены от прямых солнечных лучей, атмосферных осадков и загрязнений.

Установка
Способы монтажа
Накладной монтаж. Система направляющих устанавливается на пристенки и притолоку с внутренней стороны проема относительно помещения.
Накладной монтаж. Система направляющих устанавливается на пристенки и притолоку с внутренней стороны проема относительно помещения.
Подготовка строительного объекта
  1. Замер каждой величины необходимо производить как минимум по трем точкам (в крайних положениях и по центру).
  2. Н – высота проема (расстояние от пола до верха проема).
  3. В – ширина проема (расстояние от левого края до правого края проема).
  4. h – притолока (расстояние от верха проема до потолка).
  5. b1/b2 – левое/правое боковое расстояние (расстояние от соответствующего края проема до препятствия).
  6. D – глубина помещения (расстояние от края проема до внутренней стены гаража).
  7. При замере H и B за итоговый размер принимается наибольшая величина, при замере h, b1, b2 и D — наименьшая.
  8. Перепад уровня пола по всей ширине проема не должен превышать 10 мм. Необходимо обеспечить выдержку монтажной плоскости (пристенков и притолоки). Основание под установку системы направляющих должно быть монолитным и прочным, при отсутствии такового требуется дополнительная окантовка либо формирование проема металлоизделиями.
Гарантийные обязательства

Покупателю предоставляется гарантия работоспособности секционных противопожарных ворот производства концерна DoorHan на срок 1 год с момента приобретения их заказчиком. ВНИМАНИЕ! В случае несоблюдения правил эксплуатации, а также правил регламента работ по сервисному обслуживанию, гарантия на ворота не распространяется.

Документация
Инструкции

Руководство по монтажу и эксплуатации ворот секционных противопожарных серии isd fp

Паспорта и сертификаты

Паспорт «Секционные противопожарные ворота серии isd fp EI60» 2024

Паспорт «Секционные противопожарные ворота серии isd fp EI60» 2021

Паспорт «Секционные противопожарные ворота для работы во взрывоопасных средах серии isd fp EI60» 2022

Сертификат № EAЭC RU C-RU.ПБ68.В.02162/24

Сертификат № EAЭC RU C-RU.ПБ68.В.00334/21

Сертификат № EAЭC RU C-RU.АЖ58.В.03478/22

Чертежи

Секционные противопожарные ворота. Стандартный подъем

Секционные противопожарные ворота. Стандартный наклонный подъем

Секционные противопожарные ворота. Высокий подъем

Секционные противопожарные ворота. Высокий наклонный подъем

Секционные противопожарные ворота. Высокий подъем, вал снизу

Секционные противопожарные ворота. Высокий наклонный подъем, вал снизу

Секционные противопожарные ворота. Вертикальный подъем вал снизу

Оформить заказ
Менеджеры компании ответят на все
вопросы по телефону: